LIFULL HOME'Sは物件鮮度No.1!※評価について
ハイツ白梅園 3階/303
3万円/管理費等2,000円
17時間前 更新
画像一覧
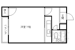
1/30間取り
間取
2/30外観
3/30外観
4/30リビング/ダイニング
5/30リビング/ダイニング
6/30室内
7/30室内
8/30キッチン
9/30キッチン
10/30キッチン
11/30キッチン
12/30浴室
13/30浴室
14/30浴室
15/30浴室
16/30トイレ
17/30洗面
18/30収納
19/30収納
20/30収納
21/30収納
22/30収納
23/30収納
24/30設備
25/30設備
26/30玄関
27/30バルコニー
28/30その他
29/30その他
30/30周辺
イズミヤ 白梅町店まで200m
間取り
外観
外観
リビング/ダイニング
リビング/ダイニング
室内
室内
キッチン
キッチン
キッチン
キッチン
浴室
浴室
浴室
浴室
トイレ
洗面
収納
収納
収納
収納
収納
収納
設備
設備
玄関
バルコニー
その他
その他
周辺
仲介手数料割引
当店の仲介手数料は家賃の50%(外税)になります。(居住用物件に限ります)
- 利用条件
- アパマンショップ今出川店 ウインズリンク株式会社で利用可
- 他特典との併用可
利用方法
来店時に本特典の画面をスマートフォンやタブレットでスタッフに提示、または画面印刷した用紙を提示ください。
有効期限 2026年11月14日まで
学生専用マンション 立命館大学の学生さんにオススメ
物件のこだわり/設備・条件
新築(非該当)
2階以上の物件(該当)
南向き(非該当)
駐車場(非該当)
オートロック(非該当)
エアコン(該当)
バス・トイレ別(非該当)
追焚機能(非該当)
フローリング(該当)
ペット相談(非該当)
入居条件
単身者限定、学生歓迎、即入居可キッチン/バス・トイレ
設備・サービス
エアコン、シューズボックス、光ファイバー、公営水道、都市ガス、下水、フローリング、バルコニー、バイク置き場あり、駐輪場ありその他
住まい探し特典あり備考
学生限定。京福北野白梅町駅まですぐの1Kマンションです(徒歩3分)。JR、京福のダブルアクセス。敷金、更新料ナシです。コンビニ、スーパーなど近くにあって便利ですよ。光ファイバー対応しています。京都の賃貸ならアパマンショップにお任せください。「こちらの室内写真は同じ建物内の別のお部屋の参考写真となります」
物件周辺の生活情報
買い物
- コンビニ(200m)
- スーパー(200m)
その他施設
- 総合病院(911m)
- 北野天満宮(355m)
交通
- 京福電気鉄道北野線 北野白梅町駅 徒歩3分
- 普通(停車)
- JR山陰本線 円町駅 徒歩15分
- 普通(停車)
- 快速とっとりライナー(通過)
- 快速通勤ライナー(通過)
- 快速(停車)
※急行等の停車駅情報について
急行等の停車駅に関するデータは、随時更新をしておりますが、最新の内容であることを保証するものではありません。
最新かつ正確な情報につきましては、各鉄道会社のウェブサイトにてご確認ください
物件周辺の口コミ
- 京都府京都市北区北野上白梅町に住む人の口コミ20代女性
大型スーパーやバス停が近く住みやすい。しかし、JRの駅が遠く、徒歩だと時間が少しかかる。あと、物価が少し高いところも気にならところ。
口コミを見る
この物件周辺に住む人の口コミ
口コミは、LIFULL HOME'Sが実際にこの物件の周辺に住む18歳~69歳の男女を対象に、WEBアンケート調査を実施しています。内容には回答者の主観的な表現が含まれる場合があるほか、事実と異なる場合もございます。ご了承ください。
- 京都府京都市北区北野上白梅町に住む人の口コミ20代女性
- 大型スーパーやバス停が近く住みやすい。しかし、JRの駅が遠く、徒歩だと時間が少しかかる。あと、物価が少し高いところも気にならところ。
- 京都府京都市北区北野上白梅町に住む人の口コミ30代女性
- スーパーマーケットも何軒もあるので色々まわれる点や繁華街までもバスや自転車でいけるので便利な点。夜遅くまでやっているお店はチェーン店が多いので個人店で美味しいお店がもう少しあれば嬉しい。
- 京都府京都市北区小松原北町に住む人の口コミ20代女性
- 学生が多く飲食店は充実しているが、ショッピングセンターなど服や娯楽品などは買えない。薬局も大手ではなく、ローカルなので品揃えが良くない。夜でも道が明るく安心だが、学生が騒いでいる時がある。
- 京都府京都市上京区千本通笹屋町下るに住む人の口コミ20代女性
- 利便性が高い。銀行、コンビニ、スーパー、眼科、内科、皮膚科、接骨院などの病院、学校など、全て自転車で行けるところ。また、バス停が近い。
- 京都府京都市北区平野鳥居前町に住む人の口コミ30代女性
- 落ち着いた街並みと子どもを連れて散歩しやすい神社があること。観光地など京都らしさを感じられる場所が多いこと。
- 京都府京都市北区大将軍西鷹司町に住む人の口コミ20代女性
- 交通の便もそこまで悪くなく、かつスーパーなども近くに複数あるため。
- 京都府京都市北区紫野南舟岡町に住む人の口コミ20代女性
- バス以外の交通機関が少し遠くて不便だけど、自転車があればまあまあなんとかなるのと、スーパーが多いので買い物は便利。オシャレなカフェや食べログ掲載店も多いので。
- 京都府京都市上京区千本通笹屋町下る西入に住む人の口コミ30代女性
- スーパーが徒歩範囲に何件かあるので、チラシを見ながら特売品を買えるのが便利なこと。バスで繁華街まで一本で行けること。治安面で特に不安な思いをしたことがない(現時点では)など。
- 京都府京都市北区紫野上柏野町に住む人の口コミ30代女性
- 静かな街並みなので落ち着いて生活できる。交通の便があまり良くない
- 京都府京都市北区衣笠荒見町に住む人の口コミ30代男性
- 政令指定都市にふさわしい都会要件(利便性について)はいちおうクリアしていると思われる
物件概要
- 建物構造
- RC(鉄筋コンクリート)
- 駐車場
- 無
- 総戸数
- 15戸
- 契約形態
- -
- 契約期間
- 2年間
- 更新料
- -
- その他費用
- 室内清掃費用:33,000円
- 保証会社
- -
- 住宅保険
- 要
- 管理
- 管理員:巡回
- LIFULL HOME'S
物件番号 - 0113628-0225565
- 自社管理番号
- 85038-303
- 取引態様
- 仲介
- 会社名
- アパマンショップ今出川店 ウインズリンク株式会社
営業スタッフコメント

アパマンショップ今出川店 ウインズリンク株式会社営業
井田優一
最高の物件が見つかるまでご一緒にお探ししましょう!
業界経験3年
資格少額短期保険募集人
- 物件情報
- アパマンショップ今出川店は、地下鉄 今出川駅 4番出口より北向きの隣にございます。店舗の目の前には同志社大学(今出川キャンパス)がございます。地下鉄今出川駅は市内の地下鉄の中心になりますので様々なエリアのお部屋を探しやすくなっております。学生の方も社会人の方もご家族の方も、お部屋を探される方を全力でサポートさせていただきます。ぜひ信頼のアパマンブランド、アパマンショップ今出川店にご来店ください。
アパマンショップ今出川店は、地下鉄 今出川駅 4番出口より北向きの隣にございます。店舗の目の前には同志社大学(今出川キャンパス)がございます。地下鉄今出川駅は市内の地下鉄の中心になりますので様々なエリアのお部屋を探しやすくなっております。学生の方も社会人の方もご家族の方も、お部屋を探される方を全力でサポートさせていただきます。ぜひ信頼のアパマンブランド、アパマンショップ今出川店にご来店ください。
- 電話でお問合せ(通話無料)
お問合せ先 :アパマンショップ今出川店 ウインズリンク株式会社
不動産会社情報
アパマンショップ今出川店 ウインズリンク株式会社アパマンショップ今出川店
京都府京都市上京区烏丸通今出川上る岡松町272 クローバービル1階
京都市営烏丸線 今出川駅 徒歩1分
- 営業時間
- 09:30~19:00
- 定休日
- なし(盆休み8/13〜8/16・年末年始12/27〜1/4)
京都市上京区・中京区・北区・左京区・右京区等、地下鉄烏丸線今出川・鞍馬口・丸太町駅等地下鉄沿線、同志社大学・京都大学・立命館大学等でのお部屋探しはアパマンショップ今出川店にお任せ下さい!
- 店舗の特徴
- 賃貸管理業務
- 24時間管理物件取扱い
- リフォーム対応
- 引越し業者紹介可
- 年中無休
- 保証人不要な物件あり
- 法人契約取扱い
- 女性スタッフ対応可
- 駅から歩いて3分以内
電話でお問合せお客様の電話番号は不動産会社には通知されません
- 不動産会社に
つながります
お客様の電話番号は不動産会社に通知されません
- ※光IP電話、及びIP電話からはご利用になれません
- ※お電話によるお問合せは、店舗営業時間内にお願いします。つながらない場合は、お問合せフォームよりお問合せください
- ※不動産会社がお電話に出られなかった場合、お問合せいただいた後に不動産会社より折り返しのお電話がある場合がございます(お客様が非通知設定した場合は対象外です)
- ※株式会社LIFULLは電話会社が提供するサービスを介してお客様の発信者番号を受領後、折り返し専用の電話番号を発番してお問合せの不動産会社に通知します(お客様の発信者番号がお問合せの不動産会社に通知されることはございません)
- ※携帯電話からお問合せいただいた方に対し、株式会社LIFULLは電話会社が提供するメッセ―ジサービスを介してお客様の発信者番号を受領後、ショートメッセージ(SMS)またはLINE通知メッセージによるお問合せ内容に関する通知をお届けする場合があります
- ※お客様が通話中に不動産会社にお伝えになったお客様の個人情報及び、電話会社が発番する折り返し専用の電話番号は、お問合せ先不動産会社が資料送付・電子メール送信・電話連絡などの目的で保管する可能性があります。お問合せ先不動産会社が保管する個人情報の取扱いについては、各不動産会社に直接お問合せください
- ※株式会社LIFULLでは本サービスを円滑に運用するために、お客様の発信者番号をサービスご利用の控えとして一定期間保管いたします
- ※上記および株式会社LIFULLの個人情報の取扱い方針に同意のうえ、お電話ください
【LIFULL HOME'S物件番号】0113628-0225565【自社管理番号】85038-303
初期費用・月額費用をあわせて確認!この物件に住んだときの費用めやす
めやすを見るこの物件に住んだときの費用めやす
- 初期費用
- 月額費用
- 追加費用※ご確認ください
追加で費用が
かかる場合があります
必ずご確認ください
初期費用めやす約0円
追加で費用がかかります(※)敷金
0
- 礼金
30,000
賃料+共益費・管理費の1ヶ月分として換算
賃料の1ヶ月分+税として換算。不動産会社によって金額が異なるため正確な金額は不動産会社にお問合せください
※追加費用もチェック!
これらの項目以外にも費用がかかる場合があります。正確な金額は不動産会社にお問合せください。
- 初期費用
- 鍵交換費:不動産会社に要確認
- 室内清掃費:33,000円
- 火災保険費:不動産会社に要確認
- 保証会社
- 不動産会社に要確認
不動産会社より
学生専用マンション 立命館大学の学生さんにオススメ
学生限定。京福北野白梅町駅まですぐの1Kマンションです(徒歩3分)。JR、京福のダブルアクセス。敷金、更新料ナシです。コンビニ、スーパーなど近くにあって便利ですよ。光ファイバー対応しています。京都の賃貸ならアパマンショップにお任せください。「こちらの室内写真は同じ建物内の別のお部屋の参考写真となります」
- 保存する
- 共有する
- ※各種情報と現状に差異がある場合は、現状優先となります
- ※不動産会社が入力した情報を基に物件の位置を表示しています。詳しくは不動産会社までお問合せください
- ※不動産会社の方からの上記電話番号によるお問合せはお断りしております。こちら不動産会社詳細からお問合せください
- ※LIFULL HOME'Sは物件鮮度No.1を目指していきます。閲覧中の物件が「成約済である」「実際の物件情報と異なる点がある」などの場合、「掲載110番」からお問合せください
- ※QRコードは株式会社デンソーウェーブの登録商標です
LIFULL HOME'S 地図・周辺情報
買い物
- ローソン 北野白梅町店
- Seriaイズミヤ白梅町店
- ドラッグユタカ北野白梅店
- ファミリーマート 北野白梅町店
- イズミヤ ショッピングセンター白梅町店
グルメ
- ケンタッキーフライドチキン 白梅町店
- なか卯 北野白梅町店
- 天下一品白梅町店
- 餃子の王将 白梅町店
- 小川珈琲白梅町店
育児・教育
- みょうりんえん
- 京都市立衣笠小学校
- 私立洛星中学校
- 北野幼稚園
- 京都市立大将軍小学校
医療
- 社会福祉法人聖ヨゼフ会聖ヨゼフ医療福祉センター
- 医療法人相馬病院
- 医療法人愛智会京都北野病院
- 社会福祉法人京都社会事業財団西陣病院
- 医療法人社団洛和会洛和会丸太町病院
公共施設・郵便局
- 京都大将軍郵便局
- 京都市中央図書館
- 京都府上京警察署
- 京都小松原郵便局
- 京都市北図書館
公園
- 土堂公園
- 船岡山公園
- 梅屋広場公園
- 京都御苑
- 大宮交通公園
利用可能な駅
- 徒歩10分以内
京福電気鉄道北野線
- 北野白梅町駅徒歩3分
- すべての駅
京福電気鉄道北野線
- 等持院・立命館大学衣笠キャンパス前駅徒歩11分
- 龍安寺駅徒歩15分
- 妙心寺駅徒歩19分
- 御室仁和寺駅徒歩25分
- 宇多野駅徒歩31分
- 鳴滝駅徒歩36分
- 常盤駅3.2km
- 撮影所前駅3.8km
JR山陰本線
- 円町駅徒歩15分
- 花園駅徒歩28分
- 二条駅徒歩33分
京都地下鉄東西線
- 西大路御池駅徒歩27分
- 二条城前駅3.3km
- 太秦天神川駅3.5km
京福電気鉄道嵐山本線
- 西大路三条駅徒歩29分
- 西院駅徒歩37分
- 山ノ内駅3.2km
- 蚕ノ社駅3.4km
- 太秦広隆寺駅3.4km
- 嵐電天神川駅3.5km
京都市営烏丸線
- 今出川駅徒歩34分
- 鞍馬口駅3.4km
- 丸太町駅3.8km
- 北大路駅3.8km
阪急京都本線
- 西院駅徒歩35分
- 周辺情報は2023年07月21日時点のものになります。
- 周辺情報は、参考情報としてのみご利用ください(周辺情報は、株式会社LIFULLが地図情報の提供事業者から提供を受けた情報とLIFULL HOME'Sの物件情報に基づき、独自の方法で抽出し提供しているものです。周辺情報は、移転や閉鎖等により情報が最新ではない、または正しくない場合がありますが、地図情報の提供事業者から提供された情報をそのまま周辺情報として表示しているため、正確かつ最新の情報へ修正することができないことがあります。)
- 周辺情報は、株式会社LIFULLが掲載するものであり、不動産物件情報を掲載している不動産会社が掲載するものではありません
- 交通情報の一部については、株式会社LIFULLが掲載するものであり、不動産物件情報を掲載している不動産会社が掲載するものではない場合があります。交通情報に関する質問などは株式会社LIFULLにお問合せください












