LIFULL HOME'Sは物件鮮度No.1!※評価について
物件概要
- お問合せ状況
- 現在この物件はお問合せできません
- 交通
- 所在地
京都府京都市南区東九条河辺町
地図を見る- 築年月
- 2009年6月(築17年)
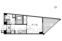
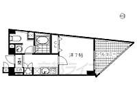
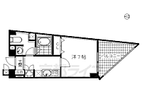
- 間取り
- 1K
- 主要採光面
- 南
- 専有面積
- 28.72㎡
- 所在階/階数
- 6階/6階建
- 建物構造
- RC(鉄筋コンクリート)
- 総戸数
- 28戸
物件のこだわり/設備・条件
新築(非該当)
2階以上の物件(該当)
南向き(該当)
駐車場(非該当)
オートロック(該当)
エアコン(該当)
バス・トイレ別(該当)
追焚機能(非該当)
フローリング(該当)
ペット相談(非該当)
位置
角部屋入居条件
二人入居可キッチン/バス・トイレ
専用バス、専用トイレ、バス・トイレ別、シャワー、温水洗浄便座、洗面所独立、給湯IHコンロ、コンロ二口、システムキッチンセキュリティ
オートロック、防犯カメラ、TVモニタ付インターホン駐車・駐輪
バイク置き場あり、駐輪場ありテレビ・通信
CS対応、BS対応、光ファイバー電気・ガス・水道
公営水道、下水、オール電化収納
シューズボックス室内
エアコン、フローリング、室内洗濯機置場、照明器具付き建物設備
エレベーター、ゴミ出し24時間OK、宅配ボックス特徴
バリアフリー、デザイナーズ、住まい探し特典ありバルコニー・庭
バルコニー、南面バルコニー
物件周辺の生活情報
買い物
- コンビニ(23m)
- スーパー(300m)
その他施設
- 総合病院(1,200m)
- 銀行(160m)
- イオンモールKYOTO(1,497m)
交通
- 京都市営烏丸線 十条駅 徒歩1分
- 普通(停車)
- 急行(停車)
- JR東海道・山陽本線 京都駅 徒歩15分
- 普通(停車)
- 新快速(停車)
- 快速(停車)
- 緩行電車(停車)
- 特別快速(通過)
- 区間快速(通過)
※急行等の停車駅情報について
急行等の停車駅に関するデータは、随時更新をしておりますが、最新の内容であることを保証するものではありません。
最新かつ正確な情報につきましては、各鉄道会社のウェブサイトにてご確認ください
LIFULL HOME'S 地図・周辺情報
買い物
- ファミリーマート 烏丸十条店
- ライフ 伏見深草店
- ドラッグユタカ伏見フケノ内店
- セブンイレブン 京都烏丸十条店
- ジャパン 京都十条店
グルメ
- ステーキガスト 京都十条通店
- ガスト 京都十条通店(から好し取扱店)
- 和食さと 大石橋店
- 吉野家 京都九条店
- マクドナルド 竹田街道店
育児・教育
- 東和保育園
- 京都市立九条弘道小学校
- 京都市立凌風小中学校
- 松ノ木保育園
- 京都市立九条塔南小学校
医療
- 医療法人社団育成会京都久野病院介護医療院
- 医療法人五木田病院介護医療院
- 医療法人社団育生会京都久野病院
- 医療法人財団医道会稲荷山武田病院
- 洛和会ヘルスケアシステム洛和会東寺南病院
公共施設・郵便局
- 京都札ノ辻郵便局
- 京都市南図書館
- 京都府南警察署
- 京都東九条郵便局
- 京都市吉祥院図書館
公園
- 深草墓園
- 深草西浦南公園
- 梅小路公園
- 梅小路公園
- 唐橋西寺公園
利用可能な駅
- 徒歩10分以内
京都市営烏丸線
- 十条駅徒歩1分
- 九条駅徒歩9分
近鉄京都線
- 十条駅徒歩10分
- すべての駅
JR東海道・山陽本線
- 京都駅徒歩15分
- 西大路駅3.2km
京阪本線
- 鳥羽街道駅徒歩15分
- 伏見稲荷駅徒歩18分
- 龍谷大前深草駅徒歩25分
- 七条駅徒歩33分
- 藤森駅徒歩34分
- 清水五条駅3.4km
- 墨染駅3.9km
近鉄京都線
- 上鳥羽口駅徒歩17分
- 東寺駅徒歩19分
- 竹田駅徒歩34分
京都市営烏丸線
- くいな橋駅徒歩21分
- 五条駅徒歩32分
JR奈良線
- 稲荷駅徒歩21分
- 東福寺駅徒歩24分
JR山陰本線
- 梅小路京都西駅3.2km
- 丹波口駅4km
- 周辺情報は2023年07月21日時点のものになります。
- 周辺情報は、参考情報としてのみご利用ください(周辺情報は、株式会社LIFULLが地図情報の提供事業者から提供を受けた情報とLIFULL HOME'Sの物件情報に基づき、独自の方法で抽出し提供しているものです。周辺情報は、移転や閉鎖等により情報が最新ではない、または正しくない場合がありますが、地図情報の提供事業者から提供された情報をそのまま周辺情報として表示しているため、正確かつ最新の情報へ修正することができないことがあります。)
- 周辺情報は、株式会社LIFULLが掲載するものであり、不動産物件情報を掲載している不動産会社が掲載するものではありません
- 交通情報の一部については、株式会社LIFULLが掲載するものであり、不動産物件情報を掲載している不動産会社が掲載するものではない場合があります。交通情報に関する質問などは株式会社LIFULLにお問合せください



















































