LIFULL HOME'Sは物件鮮度No.1!※評価について
シャト−嵐望 1階
7万円/管理費等5,000円
12時間前 更新
画像一覧
1/28外観
2/28外観
3/28リビング/ダイニング
洋室
4/28室内
和室
5/28寝室
和室
6/28寝室
和室
7/28子供部屋
洋室
8/28キッチン
キッチン
9/28キッチン
キッチン
10/28キッチン
キッチン
11/28浴室
風呂
12/28浴室
風呂
13/28トイレ
トイレ
14/28洗面
洗面所
15/28収納
収納
16/28収納
収納
17/28設備
洗濯機置場
18/28玄関
玄関
19/28バルコニー
ベランダ
20/28エントランス
エントランス
21/28その他
眺望
22/28その他
エアコン
23/28その他
パネル類
24/28その他
眺望
25/28その他
エアコン
26/28周辺
フレスコ 梅津店まで200メートル
27/28周辺
ファミリーマート 松尾大社前店まで680メートル
28/28周辺
スギ薬局 梅津店まで600メートル
外観
外観
リビング/ダイニング
室内
寝室
寝室
子供部屋
キッチン
キッチン
キッチン
浴室
浴室
トイレ
洗面
収納
収納
設備
玄関
バルコニー
エントランス
その他
その他
その他
その他
その他
周辺
周辺
周辺
お問合せ先 :株式会社エリッツ 太秦店
住まい探し特典内容
電気・ガス・インターネットの手続き代行のご案内します。
- 利用条件
- 株式会社エリッツ 太秦店で利用可
- 他特典との併用可
利用方法
来店時に本特典の画面をスマートフォンやタブレットでスタッフに提示、または画面印刷した用紙を提示ください。
有効期限 なし
梅津エリアの物件です--パノラマ掲載--
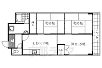
基本情報
不動産用語- 賃料
- 7万円
- 管理費等
- 5,000円
初期費用などお気軽にお問合せください
物件のこだわり/設備・条件
新築(非該当)
2階以上の物件(非該当)
南向き(該当)
駐車場あり(該当)
オートロック(非該当)
エアコン(該当)
バス・トイレ別(該当)
追焚機能(非該当)
フローリング(該当)
ペット相談(非該当)
入居条件
二人入居可、即入居可キッチン/バス・トイレ
設備・サービス
エアコン、CATV、BS対応、インターネット対応、インターネット使用料無料、公営水道、都市ガス、下水、フローリング、バルコニー、室内洗濯機置場、南面バルコニー、駐車場あり、駐輪場ありその他
住まい探し特典あり備考
阪急松尾大社駅まで徒歩10分のネット無料3LDKです。市バスも5分でご利用できるのが嬉しいですね。お車お持ちのご家族さんでも、敷地内駐車場ございますので大丈夫です。・インターネット無料
物件周辺の生活情報
学校
- 梅津北小学校(1,000m)
- 梅津中学校(650m)
買い物
- コンビニ(680m)
- スーパー(200m)
- ドラッグストア(600m)
交通
- 阪急京都本線 西院駅 バス25分 梅ノ宮神社前下車 徒歩5分
- 普通(停車)
- 準急(停車)
- 堺筋準急(停車)
- 通勤特急(停車)
- 特急(通過)
- 急行(停車)
- 準特急(停車)
- 阪急嵐山線 松尾大社駅 徒歩10分
- 普通(停車)
※急行等の停車駅情報について
急行等の停車駅に関するデータは、随時更新をしておりますが、最新の内容であることを保証するものではありません。
最新かつ正確な情報につきましては、各鉄道会社のウェブサイトにてご確認ください
物件周辺の口コミ
- 京都府京都市右京区嵯峨石ケ坪町に住む人の口コミ50代男性
自然も伝統も豊かな一方、都市なので利便性も高く、かと言って京都特有の排他性もなく住みやすい。
口コミを見る
この物件周辺に住む人の口コミ
口コミは、LIFULL HOME'Sが実際にこの物件の周辺に住む18歳~69歳の男女を対象に、WEBアンケート調査を実施しています。内容には回答者の主観的な表現が含まれる場合があるほか、事実と異なる場合もございます。ご了承ください。
- 京都府京都市右京区嵯峨石ケ坪町に住む人の口コミ50代男性
- 自然も伝統も豊かな一方、都市なので利便性も高く、かと言って京都特有の排他性もなく住みやすい。
- 京都府京都市中京区壬生森町に住む人の口コミ60代女性
- 京都のメインストリートで地下鉄、JR、京福電鉄、阪急電車が徒歩圏内、バス停が目の前、コンビニエンスストアがいっぱいあります。徒歩圏内でデパートや映画にも行けるので気に入っています。
- 京都府京都市西京区上桂今井町に住む人の口コミ60代男性
- 幹線道路から離れていて騒音がすくない。四季を感じる自然が豊か。
- 京都府京都市西京区松尾井戸町に住む人の口コミ30代女性
- 古い家もあるが世代とともに入れ替わり、新しく分譲して若い世代が入ってきたりして高齢化せずに活気を保っている。
- 京都府京都市右京区梅津罧原町に住む人の口コミ40代女性
- 交通の便利さ、近くにスーパーもあり、病院も近くにあり、不便に感じた事があまりない。
- 京都府京都市右京区蛸薬師通西大路西入に住む人の口コミ60代女性
- 自然は少ないが高齢化すると共に交通の便の良いところが良いと思っている。
- 京都府京都市西京区上桂今井町に住む人の口コミ40代女性
- 衣食住に関するものは近所のお店でまかなえる点は満足している地域の繋がりは若い世代とのギャップを感じて不便。
- 京都府京都市右京区西院西淳和院町に住む人の口コミ60代男性
- 交通・買い物・病院ととにかく便利、コンビニは歩いて5分位に10軒あり、美容室も10件以上ある
- 京都府京都市右京区高辻通西大路西入に住む人の口コミ50代女性
- スーパー コンビニ 銀行 駅など生活に必要なものが徒歩圏にあるから
- 京都府京都市右京区嵯峨野東田町に住む人の口コミ60代女性
- 買い物も便利 公共交通機関もあり 自然環境もよい 世界遺産も近くにあり なんといっても京都なので
物件概要
- 建物構造
- RC(鉄筋コンクリート)
- 駐車場
- 空有 10,000円(税込)
- 総戸数
- 20戸
- 契約形態
- -
- 契約期間
- 2年間
- 更新料
- -
- その他費用
- -
- 保証会社
加入要
保証会社利用料:60、000円
- 住宅保険
- 要
- 管理
- -
- LIFULL HOME'S
物件番号 - 0117105-0227737
- 自社管理番号
- 7392-0107
- 取引態様
- 一般媒介
- 会社名
- 株式会社エリッツ 太秦店
営業スタッフコメント

株式会社エリッツ 太秦店
砂原侑哉
賃貸のことならお気軽になんでもご相談ください。
業界経験1年
資格宅地建物取引士
- 会社実績や特徴・サービス情報
- 京都・滋賀・大阪・兵庫に40店舗以上ある賃貸のエリッツにお任せください。 JR太秦駅、JR嵯峨嵐山駅、地下鉄太秦天神川駅を中心に花園方面や京福電車沿線の単身、ファミリー問わずご紹介いたします。京都嵯峨芸術大学、京都栄養医療専門学校、京都学園大学などの学生様向けの賃貸物件から社会人様のお部屋探しまでご相談ください。
京都・滋賀・大阪・兵庫に40店舗以上ある賃貸のエリッツにお任せください。 JR太秦駅、JR嵯峨嵐山駅、地下鉄太秦天神川駅を中心に花園方面や京福電車沿線の単身、ファミリー問わずご紹介いたします。京都嵯峨芸術大学、京都栄養医療専門学校、京都学園大学などの学生様向けの賃貸物件から社会人様のお部屋探しまでご相談ください。
- 電話でお問合せ(通話無料)
お問合せ先 :株式会社エリッツ 太秦店
不動産会社情報
株式会社エリッツ 太秦店賃貸のエリッツ太秦店

京都府京都市右京区太秦帷子ケ辻町11−56
京福電気鉄道嵐山本線 帷子ノ辻駅 徒歩1分
- 営業時間
- 10:00~19:00
- 定休日
- 水曜日(祝日を除く)、年末年始 ※部屋探しのお問い合わせは無休
優良店認定
太秦店は、JR山陰(嵯峨野)線・京福嵐山線・京福北野線・地下鉄東西線の沿線、太秦・嵯峨・常盤・嵐山エリアのお部屋探しを得意とします。
- 店舗の特徴
- 24時間管理物件取扱い
- 引越し業者紹介可
- 駐車場あり
- 系列店舗での対応可
- 社宅・寮物件取扱い
- オンライン相談可
- 保証人不要な物件あり
- 法人契約取扱い
- 駅から歩いて3分以内
電話でお問合せお客様の電話番号は不動産会社には通知されません
- 不動産会社に
つながります
お客様の電話番号は不動産会社に通知されません
- ※光IP電話、及びIP電話からはご利用になれません
- ※お電話によるお問合せは、店舗営業時間内にお願いします。つながらない場合は、お問合せフォームよりお問合せください
- ※不動産会社がお電話に出られなかった場合、お問合せいただいた後に不動産会社より折り返しのお電話がある場合がございます(お客様が非通知設定した場合は対象外です)
- ※株式会社LIFULLは電話会社が提供するサービスを介してお客様の発信者番号を受領後、折り返し専用の電話番号を発番してお問合せの不動産会社に通知します(お客様の発信者番号がお問合せの不動産会社に通知されることはございません)
- ※携帯電話からお問合せいただいた方に対し、株式会社LIFULLは電話会社が提供するメッセ―ジサービスを介してお客様の発信者番号を受領後、ショートメッセージ(SMS)またはLINE通知メッセージによるお問合せ内容に関する通知をお届けする場合があります
- ※お客様が通話中に不動産会社にお伝えになったお客様の個人情報及び、電話会社が発番する折り返し専用の電話番号は、お問合せ先不動産会社が資料送付・電子メール送信・電話連絡などの目的で保管する可能性があります。お問合せ先不動産会社が保管する個人情報の取扱いについては、各不動産会社に直接お問合せください
- ※株式会社LIFULLでは本サービスを円滑に運用するために、お客様の発信者番号をサービスご利用の控えとして一定期間保管いたします
- ※上記および株式会社LIFULLの個人情報の取扱い方針に同意のうえ、お電話ください
【LIFULL HOME'S物件番号】0117105-0227737【自社管理番号】7392-0107
オンライン対応
オンライン内見・オンライン相談・IT重説に対応している物件です

「オンライン内見」「オンライン相談」「IT重説」とは?
物件の内見や不動産会社スタッフとの相談、契約前の重要事項説明をオンライン(ビデオ通話)で行うことができるサービスです。
オンライン内見
ビデオ通話で現地(物件)にいる不動産会社スタッフと映像・音声を使ってリアルタイムで会話しながら内見ができます。
オンライン相談
「物件について聞きたいことがある」など不動産会社スタッフへの相談もビデオ通話で行うことができます。
IT重説
契約前の重要事項説明(重説)をビデオ通話で行うことができます。
利用時の注意事項
- ビデオ通話については各不動産会社指定のものとなります。
- ビデオ通話利用時には通信が発生します。従量課金制通信サービスや通信量に上限があるネット回線・プランを利用する場合は、通信量にご注意ください。
- 通信速度やアプリの設定によってはビデオ通話の画質が低下することがあります。安定した画質で利用するためにも、Wi-Fi環境下での利用を推奨します。
- ご利用のビデオ通話アプリによっては、対象のOSやブラウザに制限がある場合があります。詳しくはお問合せ先不動産会社にご確認ください。
初期費用・月額費用をあわせて確認!この物件に住んだときの費用めやす
めやすを見るこの物件に住んだときの費用めやす
- 初期費用
- 月額費用
- 追加費用※ご確認ください
追加で費用が
かかる場合があります
必ずご確認ください
初期費用めやす約0円
追加で費用がかかります(※)敷金
0
- 礼金
70,000
賃料+共益費・管理費の1ヶ月分として換算
賃料の1ヶ月分+税として換算。不動産会社によって金額が異なるため正確な金額は不動産会社にお問合せください
※追加費用もチェック!
これらの項目以外にも費用がかかる場合があります。正確な金額は不動産会社にお問合せください。
- 初期費用
- 鍵交換費:不動産会社に要確認
- 室内清掃費:不動産会社に要確認
- 火災保険費:不動産会社に要確認
- 月額費用
- 駐車場費:10,000円(税込)※契約任意
- 保証会社
- 60、000円
不動産会社より
梅津エリアの物件です--パノラマ掲載--
阪急松尾大社駅まで徒歩10分のネット無料3LDKです。市バスも5分でご利用できるのが嬉しいですね。お車お持ちのご家族さんでも、敷地内駐車場ございますので大丈夫です。・インターネット無料
- 保存する
- 共有する
- ※各種情報と現状に差異がある場合は、現状優先となります
- ※不動産会社が入力した情報を基に物件の位置を表示しています。詳しくは不動産会社までお問合せください
- ※不動産会社の方からの上記電話番号によるお問合せはお断りしております。こちら不動産会社詳細からお問合せください
- ※LIFULL HOME'Sは物件鮮度No.1を目指していきます。閲覧中の物件が「成約済である」「実際の物件情報と異なる点がある」などの場合、「掲載110番」からお問合せください
- ※QRコードは株式会社デンソーウェーブの登録商標です
この物件を取扱う他の会社
LIFULL HOME'Sでは、主要項目が同一の物件をまとめて表示しています。所在地や営業時間、掲載画像等から不動産会社を選んでお問合せください。
株式会社エリッツ 長岡天神店
京都府長岡京市開田3丁目1−22
阪急京都本線 長岡天神駅 徒歩1分
- 営業時間
- 10:00~19:00
- 定休日
- 水曜日(祝日を除く)お部屋探しのお問合せは無休です
株式会社エリッツ 園部駅西口店
優良店認定
京都府南丹市園部町小山東町溝辺6-21 そのべ西口ステーションビル
JR山陰本線 園部駅 徒歩1分
- 営業時間
- 10:00~19:00
- 定休日
- 火・水曜日 (祝日を除く)、 ※部屋探しのお問い合わせは無休
株式会社エリッツ 亀岡駅前店
優良店認定
京都府亀岡市追分町大堀17番地6 満寿家ビル1F
JR山陰本線 亀岡駅 徒歩1分
- 営業時間
- 10:00~19:00
- 定休日
- 年中無休(年末年始を除く)
最近見た賃貸物件
LIFULL HOME'S 地図・周辺情報
買い物
- ファミリーマート 松尾大社前店
- フレスコ 梅津店
- ディスカウントドラッグコスモス梅津店
- ファミリーマート 四条通梅津店
- フレンドマート 梅津店
グルメ
- すき家 四条梅津店
- CoCo壱番屋 右京梅津段町店
- 餃子の王将 梅津段町店
- ガスト 京都嵯峨野店(から好し取扱店)
- 餃子の王将 太秦店
育児・教育
- 富士保育園
- 京都市立嵐山東小学校
- 京都市立梅津中学校
- 富士夜間保育園
- 京都市立梅津小学校
医療
- 内田病院
- 公益社団法人京都保健会京都民医連中央病院
- 身原病院
- 医療法人弘正会西京都病院
- 医療法人河端病院
公共施設・郵便局
- 京都梅津徳丸郵便局
- 京都市右京中央図書館
- 右京警察署
- 京都嵐山郵便局
- 京都市西京図書館
公園
- 嵐山モンキーパークいわたやま
- 広沢池公園
- 御陵公園
- 西院公園
利用可能な駅
- 徒歩10分以内
阪急京都本線
- 西院駅 バス25分 梅ノ宮神社前下車徒歩5分
阪急嵐山線
- 松尾大社駅徒歩10分
- すべての駅
京福電気鉄道嵐山本線
- 有栖川駅徒歩20分
- 鹿王院駅徒歩25分
- 帷子ノ辻駅徒歩25分
- 車折神社駅徒歩26分
- 嵐電嵯峨駅徒歩27分
- 嵐山駅徒歩31分
- 太秦広隆寺駅徒歩32分
- 嵐電天神川駅徒歩35分
- 蚕ノ社駅徒歩36分
- 山ノ内駅3.4km
阪急嵐山線
- 嵐山駅徒歩23分
- 上桂駅徒歩27分
京福電気鉄道北野線
- 撮影所前駅徒歩28分
- 常盤駅徒歩36分
- 鳴滝駅3.2km
嵯峨野観光鉄道
- トロッコ嵯峨駅徒歩31分
- トロッコ嵐山駅3.6km
JR山陰本線
- 嵯峨嵐山駅徒歩31分
- 太秦駅徒歩32分
- 花園駅3.6km
京都地下鉄東西線
- 太秦天神川駅徒歩36分
阪急京都本線
- 西京極駅3.4km
- 桂駅3.9km
- 周辺情報は2023年07月21日時点のものになります。
- 周辺情報は、参考情報としてのみご利用ください(周辺情報は、株式会社LIFULLが地図情報の提供事業者から提供を受けた情報とLIFULL HOME'Sの物件情報に基づき、独自の方法で抽出し提供しているものです。周辺情報は、移転や閉鎖等により情報が最新ではない、または正しくない場合がありますが、地図情報の提供事業者から提供された情報をそのまま周辺情報として表示しているため、正確かつ最新の情報へ修正することができないことがあります。)
- 周辺情報は、株式会社LIFULLが掲載するものであり、不動産物件情報を掲載している不動産会社が掲載するものではありません
- 交通情報の一部については、株式会社LIFULLが掲載するものであり、不動産物件情報を掲載している不動産会社が掲載するものではない場合があります。交通情報に関する質問などは株式会社LIFULLにお問合せください


















































