LIFULL HOME'Sは物件鮮度No.1!※評価について
阪急京都本線 西院駅 バス25分 梅ノ宮神社前下車 徒歩5分(1階/3LDK/60m²)
阪急京都本線 西院駅 バス25分 梅ノ宮神社前下車 徒歩5分(1階/3LDK/60m²)
7万円/管理費等5,000円
11時間前 更新
画像一覧
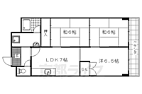
1/30間取り
2/30外観
3/30外観
4/30リビング/ダイニング
洋室
5/30室内
和室
6/30寝室
和室
7/30寝室
和室
8/30子供部屋
洋室
9/30キッチン
キッチン
10/30キッチン
キッチン
11/30キッチン
キッチン
12/30浴室
風呂
13/30浴室
風呂
14/30トイレ
トイレ
15/30洗面
洗面所
16/30収納
収納
17/30収納
収納
18/30設備
洗濯機置場
19/30玄関
玄関
20/30バルコニー
ベランダ
21/30エントランス
エントランス
22/30その他
眺望
23/30その他
エアコン
24/30その他
パネル類
25/30その他
眺望
26/30その他
エアコン
27/30その他
集合ポスト
28/30周辺
フレスコ 梅津店まで200メートル
29/30周辺
ファミリーマート 松尾大社前店まで680メートル
30/30周辺
スギ薬局 梅津店まで600メートル
間取り
外観
外観
リビング/ダイニング
室内
寝室
寝室
子供部屋
キッチン
キッチン
キッチン
浴室
浴室
トイレ
洗面
収納
収納
設備
玄関
バルコニー
エントランス
その他
その他
その他
その他
その他
その他
周辺
周辺
周辺
お問合せ先 :株式会社エリッツ 西京極店
1〜4月は引越しシーズンのピークです。お問合せはお早めに!
住まい探し特典内容
電気・ガス・インターネットの手続き代行のご案内します。
- 利用条件
- 株式会社エリッツ 西京極店で利用可
- 他特典との併用可
利用方法
来店時に本特典の画面をスマートフォンやタブレットでスタッフに提示、または画面印刷した用紙を提示ください。
有効期限 なし
梅津エリアの物件です--パノラマ掲載--
物件のこだわり/設備・条件
新築(非該当)
2階以上の物件(非該当)
南向き(該当)
駐車場あり(該当)
オートロック(非該当)
エアコン(該当)
バス・トイレ別(該当)
追焚機能(非該当)
フローリング(該当)
ペット相談(非該当)
入居条件
二人入居可、即入居可- 上記以外や相談可の
詳細はお問合せください - 上記以外や相談可の詳細は
お電話ください(通話無料)電話でお問合せ キッチン/バス・トイレ
設備・サービス
エアコン、CATV、BS対応、インターネット対応、インターネット使用料無料、公営水道、都市ガス、下水、フローリング、バルコニー、室内洗濯機置場、南面バルコニー、駐車場あり、駐輪場ありその他
住まい探し特典あり備考
阪急松尾大社駅まで徒歩10分のネット無料3LDKです。市バスも5分でご利用できるのが嬉しいですね。お車お持ちのご家族さんでも、敷地内駐車場ございますので大丈夫です。・インターネット無料
物件周辺の生活情報
学校
- 梅津北小学校(1,000m)
- 梅津中学校(650m)
買い物
- コンビニ(680m)
- スーパー(200m)
- ドラッグストア(600m)
交通
- 阪急京都本線 西院駅 バス25分 梅ノ宮神社前下車 徒歩5分
- 普通(停車)
- 準急(停車)
- 堺筋準急(停車)
- 通勤特急(停車)
- 特急(通過)
- 急行(停車)
- 準特急(停車)
- 阪急嵐山線 松尾大社駅 徒歩10分
- 普通(停車)
※急行等の停車駅情報について
急行等の停車駅に関するデータは、随時更新をしておりますが、最新の内容であることを保証するものではありません。
最新かつ正確な情報につきましては、各鉄道会社のウェブサイトにてご確認ください
物件周辺の口コミ
- 京都府京都市右京区西京極西大丸町に住む人の口コミ40代女性
生まれてずっと住んでいるので他の地域と比べる事はできないが、駅やスーパーや公園が近くにあり生活するにはとても便利だから。
口コミを見る
この物件周辺に住む人の口コミ
口コミは、LIFULL HOME'Sが実際にこの物件の周辺に住む18歳~69歳の男女を対象に、WEBアンケート調査を実施しています。内容には回答者の主観的な表現が含まれる場合があるほか、事実と異なる場合もございます。ご了承ください。
- 京都府京都市右京区西京極西大丸町に住む人の口コミ40代女性
- 生まれてずっと住んでいるので他の地域と比べる事はできないが、駅やスーパーや公園が近くにあり生活するにはとても便利だから。
- 京都府京都市右京区山ノ内山ノ下町に住む人の口コミ30代男性
- 買い物の便利さと駅から少し離れた住宅街で過ごしやすい。役所も近いので手続きも便利。
- 京都府京都市右京区梅津徳丸町に住む人の口コミ40代男性
- スーパーやコンビニが近く買い物しやすい。自転車利用である程度の物は揃う。
- 京都府京都市中京区壬生西大竹町に住む人の口コミ40代女性
- 交通の便がとても良いのが魅力的。年々、お店や病院や学校、高齢者施設なども増えてきている。近所では、高齢化が進んできている。もっと住みやすくなるよう道路のバリアフリーや公園などがあればと思います。
- 京都府京都市中京区壬生淵田町に住む人の口コミ50代男性
- 歴史のある町であり、神社仏閣が近くにある等、観光地に住んでいるから。
- 京都府京都市右京区蛸薬師通西大路西入に住む人の口コミ60代女性
- 自然は少ないが高齢化すると共に交通の便の良いところが良いと思っている。
- 京都府京都市西京区松室吾田神町に住む人の口コミ30代男性
- 近くにサイクリングロードが貯まったのであるので散歩、ランニング、サイクリングがとてもしやすい。自然が多い。
- 京都府京都市右京区松原通春日西入に住む人の口コミ50代男性
- 運動施設があって、飲み屋な度も充実しているので有意義にすごせます
- 京都府京都市中京区壬生東檜町に住む人の口コミ30代女性
- 買い物、通勤、子育て、カフェなどの外食、病院もいっぱいある。自然はあまりないけれど、それ以外のものは何でも充実しているから。
- 京都府京都市西京区山田北ノ町に住む人の口コミ50代男性
- 街中やショッピングセンターまでそんなに遠くなく、近くは自然が多く、ランニングをするにも適している
物件概要
- 建物構造
- RC(鉄筋コンクリート)
- 駐車場
- 空有 10,000円(税込)
- 総戸数
- 20戸
- 契約形態
- -
- 契約期間
- 2年間
- 更新料
- -
- その他費用
- -
- 保証会社
加入要
保証会社利用料:60、000円
- 住宅保険
- 要
- 管理
- -
- LIFULL HOME'S
物件番号 - 0117102-0317557
- 自社管理番号
- 7392-0107
- 取引態様
- 一般媒介
- 会社名
- 株式会社エリッツ 西京極店
営業スタッフコメント

株式会社エリッツ 西京極店
森田
丁寧にお客様のご要望をお伺いいたします。
業界経験1年
資格少額短期保険募集人
- スタッフ情報
- エリッツ西京極店の渡辺です。西京極に住んで4年目です。新人ですが、明るく元気に全力でサポートさせて頂きます。宜しくお願いします。
エリッツ西京極店の渡辺です。西京極に住んで4年目です。新人ですが、明るく元気に全力でサポートさせて頂きます。宜しくお願いします。
- 電話でお問合せ(通話無料)
お問合せ先 :株式会社エリッツ 西京極店
不動産会社情報
株式会社エリッツ 西京極店賃貸のエリッツ西京極店

京都府京都市右京区西京極西池田町9−4 コスミック西京極1F
阪急京都本線 西京極駅 徒歩2分
- 営業時間
- 10:00~19:00
- 定休日
- 水曜日(祝日を除く)、年末年始 ※部屋探しのお問い合わせは無休
優良店認定
学生様・社会人様の単身用物件、新婚様・家族様のファミリー物件など取扱い多数ございます。西京極周辺だけでなく、右京区・南区など様々なエリアの賃貸物件も取り揃えています。お部屋探しは当店へお任せ下さい!
- 店舗の特徴
- 引越し業者紹介可
- オンライン相談可
- 保証人不要な物件あり
- 法人契約取扱い
- 駅から歩いて3分以内
電話でお問合せお客様の電話番号は不動産会社には通知されません
- 不動産会社に
つながります
お客様の電話番号は不動産会社に通知されません
- ※光IP電話、及びIP電話からはご利用になれません
- ※お電話によるお問合せは、店舗営業時間内にお願いします。つながらない場合は、お問合せフォームよりお問合せください
- ※不動産会社がお電話に出られなかった場合、お問合せいただいた後に不動産会社より折り返しのお電話がある場合がございます(お客様が非通知設定した場合は対象外です)
- ※株式会社LIFULLは電話会社が提供するサービスを介してお客様の発信者番号を受領後、折り返し専用の電話番号を発番してお問合せの不動産会社に通知します(お客様の発信者番号がお問合せの不動産会社に通知されることはございません)
- ※携帯電話からお問合せいただいた方に対し、株式会社LIFULLは電話会社が提供するメッセ―ジサービスを介してお客様の発信者番号を受領後、ショートメッセージ(SMS)またはLINE通知メッセージによるお問合せ内容に関する通知をお届けする場合があります
- ※お客様が通話中に不動産会社にお伝えになったお客様の個人情報及び、電話会社が発番する折り返し専用の電話番号は、お問合せ先不動産会社が資料送付・電子メール送信・電話連絡などの目的で保管する可能性があります。お問合せ先不動産会社が保管する個人情報の取扱いについては、各不動産会社に直接お問合せください
- ※株式会社LIFULLでは本サービスを円滑に運用するために、お客様の発信者番号をサービスご利用の控えとして一定期間保管いたします
- ※上記および株式会社LIFULLの個人情報の取扱い方針に同意のうえ、お電話ください
【LIFULL HOME'S物件番号】
オンライン対応
オンライン内見・オンライン相談・IT重説に対応している物件です

「オンライン内見」「オンライン相談」「IT重説」とは?
物件の内見や不動産会社スタッフとの相談、契約前の重要事項説明をオンライン(ビデオ通話)で行うことができるサービスです。
オンライン内見
ビデオ通話で現地(物件)にいる不動産会社スタッフと映像・音声を使ってリアルタイムで会話しながら内見ができます。
オンライン相談
「物件について聞きたいことがある」など不動産会社スタッフへの相談もビデオ通話で行うことができます。
IT重説
契約前の重要事項説明(重説)をビデオ通話で行うことができます。
利用時の注意事項
- ビデオ通話については各不動産会社指定のものとなります。
- ビデオ通話利用時には通信が発生します。従量課金制通信サービスや通信量に上限があるネット回線・プランを利用する場合は、通信量にご注意ください。
- 通信速度やアプリの設定によってはビデオ通話の画質が低下することがあります。安定した画質で利用するためにも、Wi-Fi環境下での利用を推奨します。
- ご利用のビデオ通話アプリによっては、対象のOSやブラウザに制限がある場合があります。詳しくはお問合せ先不動産会社にご確認ください。
初期費用・月額費用をあわせて確認!この物件に住んだときの費用めやす
めやすを見るこの物件に住んだときの費用めやす
- 初期費用
- 月額費用
- 追加費用※ご確認ください
追加で費用が
かかる場合があります
必ずご確認ください
初期費用めやす約0円
追加で費用がかかります(※)敷金
0
- 礼金
0
賃料+共益費・管理費の1ヶ月分として換算
賃料の1ヶ月分+税として換算。不動産会社によって金額が異なるため正確な金額は不動産会社にお問合せください
※追加費用もチェック!
これらの項目以外にも費用がかかる場合があります。正確な金額は不動産会社にお問合せください。
- 初期費用
- 鍵交換費:不動産会社に要確認
- 室内清掃費:不動産会社に要確認
- 火災保険費:不動産会社に要確認
- 月額費用
- 駐車場費:10,000円(税込)※契約任意
- 保証会社
- 60、000円
不動産会社より
梅津エリアの物件です--パノラマ掲載--
阪急松尾大社駅まで徒歩10分のネット無料3LDKです。市バスも5分でご利用できるのが嬉しいですね。お車お持ちのご家族さんでも、敷地内駐車場ございますので大丈夫です。・インターネット無料
- 保存する
- 共有する
- ※各種情報と現状に差異がある場合は、現状優先となります
- ※不動産会社が入力した情報を基に物件の位置を表示しています。詳しくは不動産会社までお問合せください
- ※不動産会社の方からの上記電話番号によるお問合せはお断りしております。こちら不動産会社詳細からお問合せください
- ※LIFULL HOME'Sは物件鮮度No.1を目指していきます。閲覧中の物件が「成約済である」「実際の物件情報と異なる点がある」などの場合、「掲載110番」からお問合せください
- ※QRコードは株式会社デンソーウェーブの登録商標です
この物件を取扱う他の会社
LIFULL HOME'Sでは、主要項目が同一の物件をまとめて表示しています。所在地や営業時間、掲載画像等から不動産会社を選んでお問合せください。
株式会社エリッツ 亀岡駅前店
優良店認定
京都府亀岡市追分町大堀17番地6 満寿家ビル1F
JR山陰本線 亀岡駅 徒歩1分
- 営業時間
- 10:00~19:00
- 定休日
- 年中無休(年末年始を除く)
LIFULL HOME'S 地図・周辺情報
買い物
- ファミリーマート 松尾大社前店
- フレスコ 梅津店
- ディスカウントドラッグコスモス梅津店
- ファミリーマート 四条通梅津店
- フレンドマート 梅津店
グルメ
- すき家 四条梅津店
- CoCo壱番屋 右京梅津段町店
- 餃子の王将 梅津段町店
- ガスト 京都嵯峨野店(から好し取扱店)
- 餃子の王将 太秦店
育児・教育
- 富士保育園
- 京都市立嵐山東小学校
- 京都市立梅津中学校
- 富士夜間保育園
- 京都市立梅津小学校
医療
- 内田病院
- 公益社団法人京都保健会京都民医連中央病院
- 身原病院
- 医療法人弘正会西京都病院
- 医療法人河端病院
公共施設・郵便局
- 京都梅津徳丸郵便局
- 京都市右京中央図書館
- 右京警察署
- 京都嵐山郵便局
- 京都市西京図書館
公園
- 嵐山モンキーパークいわたやま
- 広沢池公園
- 御陵公園
- 西院公園
利用可能な駅
- 徒歩10分以内
阪急京都本線
- 西院駅 バス25分 梅ノ宮神社前下車徒歩5分
阪急嵐山線
- 松尾大社駅徒歩10分
- すべての駅
京福電気鉄道嵐山本線
- 有栖川駅徒歩20分
- 鹿王院駅徒歩25分
- 帷子ノ辻駅徒歩25分
- 車折神社駅徒歩26分
- 嵐電嵯峨駅徒歩27分
- 嵐山駅徒歩31分
- 太秦広隆寺駅徒歩32分
- 嵐電天神川駅徒歩35分
- 蚕ノ社駅徒歩36分
- 山ノ内駅3.4km
阪急嵐山線
- 嵐山駅徒歩23分
- 上桂駅徒歩27分
京福電気鉄道北野線
- 撮影所前駅徒歩28分
- 常盤駅徒歩36分
- 鳴滝駅3.2km
嵯峨野観光鉄道
- トロッコ嵯峨駅徒歩31分
- トロッコ嵐山駅3.6km
JR山陰本線
- 嵯峨嵐山駅徒歩31分
- 太秦駅徒歩32分
- 花園駅3.6km
京都地下鉄東西線
- 太秦天神川駅徒歩36分
阪急京都本線
- 西京極駅3.4km
- 桂駅3.9km
- 周辺情報は2023年07月21日時点のものになります。
- 周辺情報は、参考情報としてのみご利用ください(周辺情報は、株式会社LIFULLが地図情報の提供事業者から提供を受けた情報とLIFULL HOME'Sの物件情報に基づき、独自の方法で抽出し提供しているものです。周辺情報は、移転や閉鎖等により情報が最新ではない、または正しくない場合がありますが、地図情報の提供事業者から提供された情報をそのまま周辺情報として表示しているため、正確かつ最新の情報へ修正することができないことがあります。)
- 周辺情報は、株式会社LIFULLが掲載するものであり、不動産物件情報を掲載している不動産会社が掲載するものではありません
- 交通情報の一部については、株式会社LIFULLが掲載するものであり、不動産物件情報を掲載している不動産会社が掲載するものではない場合があります。交通情報に関する質問などは株式会社LIFULLにお問合せください
















