LIFULL HOME'Sは物件鮮度No.1!※評価について
脇田建設ビル(5階/601/3LDK/45.6m²)
脇田建設ビル(5階/601/3LDK/45.6m²)
6万円/管理費等5,000円
10時間前 更新
画像一覧
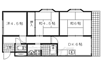
1/30間取り
間取
2/30外観
3/30外観
4/30リビング/ダイニング
8帖のLDKです。
5/30リビング/ダイニング
6帖の和室です。
6/30リビング/ダイニング
8帖のLDKです。
7/30リビング/ダイニング
4.5帖の洋室です。
8/30リビング/ダイニング
4.5帖の和室です。
9/30室内
洗濯機スペースです。
10/30室内
冷蔵庫スペースです。
11/30キッチン
きれいなキッチンです。
12/30キッチン
コンロ置き場です。
13/30キッチン
流し台です。
14/30浴室
広めの浴室です。
15/30トイレ
清潔感のあるトイレです。
16/30洗面
独立洗面台です。
17/30洗面
きれいな洗面所です。
18/30収納
キッチン下の収納です。
19/30収納
キッチン上の収納です。
20/30収納
洗面台の収納です。
21/30収納
靴箱置けます。
22/30収納
和室の収納です。
23/30設備
洗濯竿掛けです。
24/30設備
備え付きの冷暖房です。
25/30玄関
段差の低い玄関です。
26/30バルコニー
東向きのバルコニーです。
27/30その他
お部屋までの廊下です。
28/30その他
バルコニーからの風景です。
29/30その他
きれいな廊下です。
30/30周辺
サークルK城陽北清水店まで123m
間取り
外観
外観
リビング/ダイニング
リビング/ダイニング
リビング/ダイニング
リビング/ダイニング
リビング/ダイニング
室内
室内
キッチン
キッチン
キッチン
浴室
トイレ
洗面
洗面
収納
収納
収納
収納
収納
設備
設備
玄関
バルコニー
その他
その他
その他
周辺
お問合せ先 :(株)京都ライフ 小倉店
1〜4月は引越しシーズンのピークです。お問合せはお早めに!
仲介手数料割引
成約時の仲介手数料半月分の税別でご紹介可能です。
- 利用条件
- (株)京都ライフ 小倉店で利用可
- 他特典との併用可
- 個人契約、居住用物件に限ります。 大東建託、積水ハウス物件は除く。
利用方法
来店時に本特典の画面をスマートフォンやタブレットでスタッフに提示、または画面印刷した用紙を提示ください。
有効期限 なし
お買い物が便利 全戸東向きベランダで採光良し。 JR長池駅まで徒歩6分の3LDKマンションです。
物件のこだわり/設備・条件
新築(非該当)
2階以上の物件(該当)
南向き(非該当)
駐車場あり(該当)
オートロック(非該当)
エアコン(非該当)
バス・トイレ別(該当)
追焚機能(非該当)
フローリング(非該当)
ペット相談(非該当)
入居条件
二人入居可、即入居可キッチン/バス・トイレ
設備・サービス
防犯カメラ、TVモニタ付インターホン、公営水道、都市ガス、下水、バルコニー、室内洗濯機置場、エレベーター、駐車場あり、駐輪場ありその他
住まい探し特典あり備考
更新料ナシ。コンビニ、スーパー、ドラッグストアなど近くにあって便利ですよ。 物件情報はもちろん京都のエリア情報まで幅広く対応させていただきます!
物件周辺の生活情報
買い物
- コンビニ(123m)
- スーパー(361m)
- ドラッグストア(369m)
その他施設
- 総合病院(2,200m)
- 銀行(1,300m)
- 城陽長池郵便局(198m)
交通
- JR奈良線 長池駅 徒歩6分
- 普通(停車)
- 区間快速(停車)
- 快速(通過)
- みやこ路快速(通過)
- 近鉄京都線 富野荘駅 徒歩22分
- 普通(停車)
- 準急(停車)
- 急行(通過)
※急行等の停車駅情報について
急行等の停車駅に関するデータは、随時更新をしておりますが、最新の内容であることを保証するものではありません。
最新かつ正確な情報につきましては、各鉄道会社のウェブサイトにてご確認ください
物件周辺の口コミ
- 京都府城陽市富野に住む人の口コミ40代女性
交通も買い物も便利 人間関係も問題ないが あまり愛着がわいてないので
口コミを見る
この物件周辺に住む人の口コミ
口コミは、LIFULL HOME'Sが実際にこの物件の周辺に住む18歳~69歳の男女を対象に、WEBアンケート調査を実施しています。内容には回答者の主観的な表現が含まれる場合があるほか、事実と異なる場合もございます。ご了承ください。
- 京都府城陽市富野に住む人の口コミ40代女性
- 交通も買い物も便利 人間関係も問題ないが あまり愛着がわいてないので
- 京都府城陽市富野に住む人の口コミ40代女性
- 交通の便が良く、ショッピングモールは近くにあり、住みやすい街だと思う。ただ、狭い道が多い。
- 京都府城陽市富野に住む人の口コミ40代男性
- 必用な物はほぼ揃うし、閑静で治安も良く終の住処としては最適だと思う、ただ子供の数が減っている事や、地域の繋がりが希薄になってきている点がコミュニティの維持と言う意味で気になっている
- 京都府城陽市富野に住む人の口コミ40代女性
- 街に清潔感があり 住民もご近所は穏やかな人が多い。街が開発されてる最中で便利になって来ている
- 京都府城陽市富野に住む人の口コミ50代女性
- 京都府の南部にあり奈良県、大阪市内に行くのに鉄道や高速道路が整備されて交通の便では素晴らしいと思います。田舎であり自然がたくさんありお野菜や果物も美味しくかなり拓けた環境にあり住みやすいです。
- 京都府城陽市富野に住む人の口コミ40代男性
- 住んでいる地域で生活のほとんどは賄うことができ環境的にも悪くはないと思われるが、都市整備がおくれており昔ながらの狭い道が多く渋滞おきるなど不満な点もあるため
- 京都府城陽市富野に住む人の口コミ40代女性
- 私鉄、JRの駅にも歩いていける。徒歩で行けるスーパー何軒かあり、内一件はホームセンター、ドラッグストア併設のとこれなので、買い物にはこまらない。緑が多く、比較的保育園、幼稚園多いので子育てによい環境
- 京都府城陽市富野に住む人の口コミ40代男性
- 最低限の必需品が自転車で行ける。また、車での移動なら外食、量販店なども10数分で移動可能。
- 京都府城陽市富野に住む人の口コミ30代女性
- 買い物、子育て、交通などが決して便利とは言い切れないが、普段生活するなかで困ることはない。
- 京都府城陽市富野に住む人の口コミ40代女性
- 生活圏内に徒歩や自転車でも行ける距離に大型スーパーや病院もある。電車も私鉄、JRのアクセスがあり、緑が多い田舎街ではあるが。梅田や京都市内にも一時間足らすでいける。
物件概要
- 建物構造
- 鉄骨造
- 駐車場
- 空有 11,000円(税込)
- 総戸数
- 33戸
- 契約形態
- -
- 契約期間
- 2年間
- 更新料
- -
- その他費用
- 鍵交換費用:16,500円、室内清掃費用:49,500円、リロレント24:19,800円、害虫駆除費:22,000円
- 保証会社
加入要
保証会社:ジャックス
保証会社利用料:初回:月額賃料等の60%、更新時:1.2万円
- 住宅保険
- 要
- 管理
- -
- LIFULL HOME'S
物件番号 - 0100017-0219294
- 自社管理番号
- 25081-601
- 取引態様
- 仲介
- 会社名
- (株)京都ライフ 小倉店
営業スタッフコメント

(株)京都ライフ 小倉店
中江
営業の立場ではなくお客様の立場でご紹介。
業界経験3年
資格少額短期保険募集人
- 会社実績や特徴・サービス情報
- 宇治市、城陽市、京田辺市、京都南エリアのお部屋探しは「京都ライフ」へお任せ下さい。仲介手数料は一律、家賃の50%(税別)。来客用ガレージも完備。学生様の新生活も全力でサポートいたします。
宇治市、城陽市、京田辺市、京都南エリアのお部屋探しは「京都ライフ」へお任せ下さい。仲介手数料は一律、家賃の50%(税別)。来客用ガレージも完備。学生様の新生活も全力でサポートいたします。
- 電話でお問合せ(通話無料)
お問合せ先 :(株)京都ライフ 小倉店
不動産会社情報
(株)京都ライフ 小倉店京都ライフ小倉店
京都府宇治市小倉町神楽田21-5 ア‐バネックス小倉ビル1F
近鉄京都線 小倉駅 徒歩2分
- 営業時間
- 09:30~19:00
- 定休日
- 年中無休(盆正月を除く)
京都全域くまなくネット!京都でのお部屋探しは創業40年の「かんたんお部屋探しは・・・京都ライフへ!!
- 店舗の特徴
- 賃貸管理業務
- 24時間管理物件取扱い
- リフォーム対応
- 引越し業者紹介可
- 年中無休
- 保証人不要な物件あり
- 法人契約取扱い
- 駅から歩いて3分以内
電話でお問合せお客様の電話番号は不動産会社には通知されません
- 不動産会社に
つながります
お客様の電話番号は不動産会社に通知されません
- ※光IP電話、及びIP電話からはご利用になれません
- ※お電話によるお問合せは、店舗営業時間内にお願いします。つながらない場合は、お問合せフォームよりお問合せください
- ※不動産会社がお電話に出られなかった場合、お問合せいただいた後に不動産会社より折り返しのお電話がある場合がございます(お客様が非通知設定した場合は対象外です)
- ※株式会社LIFULLは電話会社が提供するサービスを介してお客様の発信者番号を受領後、折り返し専用の電話番号を発番してお問合せの不動産会社に通知します(お客様の発信者番号がお問合せの不動産会社に通知されることはございません)
- ※携帯電話からお問合せいただいた方に対し、株式会社LIFULLは電話会社が提供するメッセ―ジサービスを介してお客様の発信者番号を受領後、ショートメッセージ(SMS)またはLINE通知メッセージによるお問合せ内容に関する通知をお届けする場合があります
- ※お客様が通話中に不動産会社にお伝えになったお客様の個人情報及び、電話会社が発番する折り返し専用の電話番号は、お問合せ先不動産会社が資料送付・電子メール送信・電話連絡などの目的で保管する可能性があります。お問合せ先不動産会社が保管する個人情報の取扱いについては、各不動産会社に直接お問合せください
- ※株式会社LIFULLでは本サービスを円滑に運用するために、お客様の発信者番号をサービスご利用の控えとして一定期間保管いたします
- ※上記および株式会社LIFULLの個人情報の取扱い方針に同意のうえ、お電話ください
【LIFULL HOME'S物件番号】0100017-0219294【自社管理番号】25081-601
オンライン対応
オンライン内見・オンライン相談・IT重説に対応している物件です

「オンライン内見」「オンライン相談」「IT重説」とは?
物件の内見や不動産会社スタッフとの相談、契約前の重要事項説明をオンライン(ビデオ通話)で行うことができるサービスです。
オンライン内見
ビデオ通話で現地(物件)にいる不動産会社スタッフと映像・音声を使ってリアルタイムで会話しながら内見ができます。
オンライン相談
「物件について聞きたいことがある」など不動産会社スタッフへの相談もビデオ通話で行うことができます。
IT重説
契約前の重要事項説明(重説)をビデオ通話で行うことができます。
利用時の注意事項
- ビデオ通話については各不動産会社指定のものとなります。
- ビデオ通話利用時には通信が発生します。従量課金制通信サービスや通信量に上限があるネット回線・プランを利用する場合は、通信量にご注意ください。
- 通信速度やアプリの設定によってはビデオ通話の画質が低下することがあります。安定した画質で利用するためにも、Wi-Fi環境下での利用を推奨します。
- ご利用のビデオ通話アプリによっては、対象のOSやブラウザに制限がある場合があります。詳しくはお問合せ先不動産会社にご確認ください。
初期費用・月額費用をあわせて確認!この物件に住んだときの費用めやす
めやすを見るこの物件に住んだときの費用めやす
- 初期費用
- 月額費用
- 追加費用※ご確認ください
追加で費用が
かかる場合があります
必ずご確認ください
初期費用めやす約0円
追加で費用がかかります(※)敷金
0
- 礼金
0
賃料+共益費・管理費の1ヶ月分として換算
賃料の1ヶ月分+税として換算。不動産会社によって金額が異なるため正確な金額は不動産会社にお問合せください
※追加費用もチェック!
これらの項目以外にも費用がかかる場合があります。正確な金額は不動産会社にお問合せください。
- 初期費用
- 鍵交換費:16,500円
- 室内清掃費:49,500円
- 火災保険費:不動産会社に要確認
- 月額費用
- 駐車場費:11,000円(税込)※契約任意
- その他
- リロレント24:19800円
- 害虫駆除費:22000円
- 保証会社
- 初回:月額賃料等の60%、更新時:1.2万円
不動産会社より
お買い物が便利 全戸東向きベランダで採光良し。 JR長池駅まで徒歩6分の3LDKマンションです。
更新料ナシ。コンビニ、スーパー、ドラッグストアなど近くにあって便利ですよ。 物件情報はもちろん京都のエリア情報まで幅広く対応させていただきます!
- 保存する
- 共有する
- ※各種情報と現状に差異がある場合は、現状優先となります
- ※不動産会社が入力した情報を基に物件の位置を表示しています。詳しくは不動産会社までお問合せください
- ※不動産会社の方からの上記電話番号によるお問合せはお断りしております。こちら不動産会社詳細からお問合せください
- ※LIFULL HOME'Sは物件鮮度No.1を目指していきます。閲覧中の物件が「成約済である」「実際の物件情報と異なる点がある」などの場合、「掲載110番」からお問合せください
- ※QRコードは株式会社デンソーウェーブの登録商標です
したい暮らしのタグから探す
この物件を取扱う他の会社
LIFULL HOME'Sでは、主要項目が同一の物件をまとめて表示しています。所在地や営業時間、掲載画像等から不動産会社を選んでお問合せください。
(株)京都ライフ 今出川店
京都府京都市上京区烏丸通今出川上る御所八幡町115 コーポ千尋 1階
京都市営烏丸線 今出川駅 徒歩1分
- 営業時間
- 09:30~19:00
- 定休日
- 年中無休(盆正月を除く)
株式会社京都ライフ 山科店
京都府京都市山科区竹鼻竹ノ街道町11
JR東海道・山陽本線 山科駅 徒歩3分
- 営業時間
- 09:30~19:00
- 定休日
- 夏期休暇 8月13日〜8月16日 年末年始休暇 12月27日〜1月4日
株式会社京都ライフ 立命館大学前店
優良店認定
京都府京都市北区小松原北町26-5
京福電気鉄道北野線 等持院・立命館大学衣笠キャンパス前駅 徒歩8分
- 営業時間
- 09:30~19:00
- 定休日
- 水曜定休(4/21〜9/20の期間)、盆・正月
LIFULL HOME'S 地図・周辺情報
買い物
- セブンイレブン 城陽長池店
- ダイソーアルプラザ城陽店
- マツモトキヨシアル・プラザ城陽店
- ファミリーマート 城陽奈島店
- アヤハディオ 城陽店
グルメ
- サガミ 京都城陽店
- コメダ珈琲店城陽長池店
- マクドナルド 城陽アルプラザ店
- サイゼリヤ 城陽アルプラザ店
- 天下一品アル・プラザ城陽店
育児・教育
- 城陽市立富野幼稚園
- 城陽市立富野小学校
- 城陽市立南城陽中学校
- 清心保育園
- 城陽市立寺田南小学校
医療
- 財団法人大日本仏教慈善会財団あそかビハーラ病院
- 医療法人晴風園ほうゆうリハビリテーション病院
- 医療法人社団石鎚会京都田辺記念病院
- 独立行政法人国立病院機構南京都病院
- 医療法人社団石鎚会京都田辺中央病院
公共施設・郵便局
- 城陽長池郵便局
- 城陽市立図書館
- 城陽警察署
- 城陽富野郵便局
- 京田辺市立中央図書館中部分室
公園
- 京都府立木津川運動公園
- 城陽市総合運動公園
- 尼塚第7幼児公園
- 木津川運動公園
利用可能な駅
- 徒歩10分以内
JR奈良線
- 長池駅徒歩6分
- すべての駅
近鉄京都線
- 富野荘駅徒歩22分
- 寺田駅3.2km
- 新田辺駅4.8km
JR奈良線
- 山城青谷駅徒歩28分
- 城陽駅徒歩35分
- 山城多賀駅3.7km
JR片町線(学研都市線)
- 京田辺駅5.2km
- 周辺情報は2023年07月21日時点のものになります。
- 周辺情報は、参考情報としてのみご利用ください(周辺情報は、株式会社LIFULLが地図情報の提供事業者から提供を受けた情報とLIFULL HOME'Sの物件情報に基づき、独自の方法で抽出し提供しているものです。周辺情報は、移転や閉鎖等により情報が最新ではない、または正しくない場合がありますが、地図情報の提供事業者から提供された情報をそのまま周辺情報として表示しているため、正確かつ最新の情報へ修正することができないことがあります。)
- 周辺情報は、株式会社LIFULLが掲載するものであり、不動産物件情報を掲載している不動産会社が掲載するものではありません
- 交通情報の一部については、株式会社LIFULLが掲載するものであり、不動産物件情報を掲載している不動産会社が掲載するものではない場合があります。交通情報に関する質問などは株式会社LIFULLにお問合せください


















