LIFULL HOME'Sは物件鮮度No.1!※評価について
物件概要
- お問合せ状況
- 現在この物件はお問合せできません
- 交通
- 所在地
京都府京都市左京区高野竹屋町
地図を見る- 築年月
- 1992年6月(築34年)
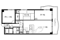
- 間取り
- 3LDK
- 主要採光面
- 南
- 専有面積
- 77.09㎡
- 所在階/階数
- 3階/6階建
- 建物構造
- RC(鉄筋コンクリート)
- 総戸数
- 25戸
物件のこだわり/設備・条件
新築(非該当)
2階以上の物件(該当)
南向き(該当)
駐車場あり(該当)
オートロック(該当)
エアコン(該当)
バス・トイレ別(該当)
追焚機能(該当)
フローリング(該当)
ペット相談(非該当)
入居条件
楽器相談可、二人入居可キッチン/バス・トイレ
専用バス、専用トイレ、バス・トイレ別、追焚機能、シャワー、温水洗浄便座、洗面所独立、給湯ガスコンロ設置済、コンロ四口以上、システムキッチン、カウンターキッチンセキュリティ
オートロック、TVモニタ付インターホン駐車・駐輪
駐車場あり、駐輪場ありテレビ・通信
BS対応、光ファイバー電気・ガス・水道
公営水道、都市ガス、下水収納
シューズボックス室内
エアコン、フローリング、室内洗濯機置場建物設備
エレベーター特徴
住まい探し特典ありバルコニー・庭
バルコニー、南面バルコニー
物件周辺の生活情報
学校
- 養徳小学校(510m)
- 高野中学校(250m)
買い物
- コンビニ(90m)
- スーパー(140m)
その他施設
- 総合病院(330m)
- 高野保育園(230m)
交通
- 京阪本線 出町柳駅 徒歩23分
- 普通(停車)
- 区間急行(通過)
- 急行(停車)
- 特急(停車)
- 通勤準急・準急(停車)
- 快速特急 洛楽(停車)
- 通勤快急・快速急行(停車)
- 京都市営烏丸線 松ヶ崎駅 徒歩20分
- 普通(停車)
- 急行(停車)
※急行等の停車駅情報について
急行等の停車駅に関するデータは、随時更新をしておりますが、最新の内容であることを保証するものではありません。
最新かつ正確な情報につきましては、各鉄道会社のウェブサイトにてご確認ください
LIFULL HOME'S 地図・周辺情報
買い物
- ローソン 北大路高野店
- イズミヤ ショッピングセンター高野店
- フジタ薬局高野店
- セブンイレブン 京都田中上古川町店
- Can★Doイズミヤ高野店
グルメ
- なか卯 北大路高野店
- 丸亀製麺洛北阪急スクエア店
- 廻転寿司京都CHOJIRO洛北阪急スクエア店
- スターバックスコーヒー洛北阪急スクエア店
- 星乃珈琲店洛北阪急スクエア店
育児・教育
- 高野保育園
- 京都市立養徳小学校
- 京都市立高野中学校
- 子どものその保育園
- 京都市立修学院第二小学校
医療
- 医療法人社団順和会京都下鴨病院
- 医療法人一仁会脳神経リハビリ北大路病院
- 公益社団法人信和会京都民医連あすかい病院
- (財)日本バプテスト連盟医療団総合病院日本バプテスト病院
- 医療法人財団康生会北山武田病院
公共施設・郵便局
- 京都高野竹屋郵便局
- 京都市左京図書館
- 京都市左京区役所
- 左京郵便局
- 京都市北図書館
公園
- 宝が池公園子どもの楽園
- 吉田山公園
- 宝が池公園
- 京都御苑
- 岩倉南公園
利用可能な駅
- 徒歩10分以内
叡山電鉄叡山本線
- 茶山・京都芸術大学駅徒歩10分
- 一乗寺駅徒歩10分
- すべての駅
叡山電鉄叡山本線
- 元田中駅徒歩12分
- 修学院駅徒歩17分
- 宝ケ池駅徒歩28分
- 三宅八幡駅徒歩36分
京都市営烏丸線
- 松ヶ崎駅徒歩20分
- 北山駅徒歩29分
- 北大路駅徒歩30分
- 鞍馬口駅徒歩32分
- 今出川駅3.2km
- 国際会館駅3.3km
京阪本線
- 出町柳駅徒歩23分
- 神宮丸太町駅3.2km
叡山電鉄鞍馬線
- 八幡前駅3.2km
- 周辺情報は2023年07月21日時点のものになります。
- 周辺情報は、参考情報としてのみご利用ください(周辺情報は、株式会社LIFULLが地図情報の提供事業者から提供を受けた情報とLIFULL HOME'Sの物件情報に基づき、独自の方法で抽出し提供しているものです。周辺情報は、移転や閉鎖等により情報が最新ではない、または正しくない場合がありますが、地図情報の提供事業者から提供された情報をそのまま周辺情報として表示しているため、正確かつ最新の情報へ修正することができないことがあります。)
- 周辺情報は、株式会社LIFULLが掲載するものであり、不動産物件情報を掲載している不動産会社が掲載するものではありません
- 交通情報の一部については、株式会社LIFULLが掲載するものであり、不動産物件情報を掲載している不動産会社が掲載するものではない場合があります。交通情報に関する質問などは株式会社LIFULLにお問合せください











































