LIFULL HOME'Sは物件鮮度No.1!※評価について
物件概要
- お問合せ状況
- 現在この物件はお問合せできません
- 交通
- 所在地
京都府京都市伏見区石田森西
地図を見る- 築年月
- 1984年10月(築42年)
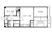
- 間取り
- 3LDK
- 主要採光面
- 西
- 専有面積
- 56.7㎡
- 所在階/階数
- 3階/6階建
- 建物構造
- RC(鉄筋コンクリート)
物件のこだわり/設備・条件
新築(非該当)
2階以上の物件(該当)
南向き(非該当)
駐車場あり(該当)
オートロック(非該当)
エアコン(該当)
バス・トイレ別(該当)
追焚機能(非該当)
フローリング(非該当)
ペット相談(非該当)
入居条件
二人入居可キッチン/バス・トイレ
給湯、専用バス、専用トイレ、バス・トイレ別、シャワー、シャワー付洗面化粧台、温水洗浄便座設備・サービス
エアコン、インターネット対応、公営水道、都市ガス、下水、室内洗濯機置場、エレベーター、駐車場あり、駐輪場あり
物件周辺の生活情報
交通
- 京都地下鉄東西線 石田駅 徒歩5分
- 普通(停車)
- 京都地下鉄東西線 六地蔵駅 徒歩10分
- 普通(停車)
※急行等の停車駅情報について
急行等の停車駅に関するデータは、随時更新をしておりますが、最新の内容であることを保証するものではありません。
最新かつ正確な情報につきましては、各鉄道会社のウェブサイトにてご確認ください
LIFULL HOME'S 地図・周辺情報
買い物
- ファミリーマート 石田森東店
- コレモ石田店
- フジタ薬局石田店
- ファミリーマート 堀池石田店
- ホームセンターコーナン 六地蔵店
グルメ
- すき家 伏見石田店
- CoCo壱番屋 伏見醍醐店
- 和食さと 醍醐店
- 天下一品六地蔵店
- サンマルクカフェMOMOテラス店
育児・教育
- 桜木こども園
- 京都市立石田小学校
- 京都市立小栗栖中学校
- はなぶさ保育園
- 京都市立小栗栖宮山小学校
医療
- 医療法人医仁会武田総合病院
- 医療法人財団桜花会醍醐病院
- 医療法人徳洲会六地蔵総合病院
- 医療法人新生十全会なごみの里病院
- 京都市桃陽病院
公共施設・郵便局
- 伏見小栗栖郵便局
- 京都市醍醐図書館
- 京都市伏見区役所醍醐支所
- 京都石田郵便局
- 京都市醍醐中央図書館
公園
- 伏見北堀公園
- 伏見桃山城運動公園
- 二子塚古墳公園
利用可能な駅
- 徒歩10分以内
京都地下鉄東西線
- 石田駅徒歩5分
- 六地蔵駅徒歩10分
- すべての駅
京阪宇治線
- 六地蔵駅徒歩18分
- 木幡駅徒歩26分
- 桃山南口駅徒歩30分
- 黄檗駅3.4km
京都地下鉄東西線
- 醍醐駅徒歩21分
- 小野駅徒歩37分
JR奈良線
- 木幡駅徒歩25分
- 黄檗駅3.4km
- JR藤森駅3.6km
- 桃山駅3.6km
- 周辺情報は2023年07月21日時点のものになります。
- 周辺情報は、参考情報としてのみご利用ください(周辺情報は、株式会社LIFULLが地図情報の提供事業者から提供を受けた情報とLIFULL HOME'Sの物件情報に基づき、独自の方法で抽出し提供しているものです。周辺情報は、移転や閉鎖等により情報が最新ではない、または正しくない場合がありますが、地図情報の提供事業者から提供された情報をそのまま周辺情報として表示しているため、正確かつ最新の情報へ修正することができないことがあります。)
- 周辺情報は、株式会社LIFULLが掲載するものであり、不動産物件情報を掲載している不動産会社が掲載するものではありません
- 交通情報の一部については、株式会社LIFULLが掲載するものであり、不動産物件情報を掲載している不動産会社が掲載するものではない場合があります。交通情報に関する質問などは株式会社LIFULLにお問合せください













































