LIFULL HOME'Sは物件鮮度No.1!※評価について
最近見た賃貸物件
物件のエリア、間取りから再検索
過去掲載時の参考情報
以下の物件情報は広告情報ではありません。LIFULL HOME'Sが過去に掲載された物件情報を元に作成した参考情報です。
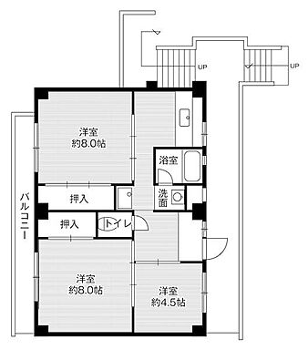
賃貸一戸建て物件概要
- お問合せ状況
- 現在この物件はお問合せできません
- 交通
西武池袋線 大泉学園駅 徒歩30分
都営大江戸線 光が丘駅 3.5km
西武池袋・豊島線 石神井公園 徒歩37分
- 所在地
東京都練馬区大泉町4丁目39-21
地図を見る- 築年月
- 2021年4月(築5年)
- 間取り
- 3SLDK
- 主要採光面
- 南西
- 専有面積
- 77.84㎡
- 所在階/階数
- -/2階建
- 建物構造
- 木造
物件のこだわり/設備・条件
新築(非該当)
2階以上の物件(非該当)
南向き(非該当)
駐車場あり(該当)
オートロック(非該当)
エアコン(該当)
バス・トイレ別(該当)
追焚機能(該当)
フローリング(非該当)
ペット相談(非該当)
位置
角部屋入居条件
二人入居可キッチン/バス・トイレ
ガスコンロ設置済、コンロ二口、システムキッチン、食器洗い乾燥機、浄水器・活水器、専用バス、専用トイレ、バス・トイレ別、追焚機能、温水洗浄便座、浴室乾燥機、洗面所独立、オートバス設備・サービス
TVモニタ付インターホン、エアコン、床暖房、ウォークインクローゼット、光ファイバー、公営水道、下水、室内洗濯機置場、駐車場ありその他
住まい探し特典あり
物件周辺の生活情報
学校
- 練馬区立橋戸小学校(546m)
- 練馬区立大泉北中学校(889m)
買い物
- コンビニ(438m)
- スーパー(314m)
- ドラッグストア(799m)
その他施設
- グラッチェガーデンズ 練馬土支田店(869m)
交通
- 西武池袋線 大泉学園駅 徒歩30分
- 普通(停車)
- 準急(停車)
- 通勤準急(停車)
- 快速(通過)
- 通勤急行(停車)
- 急行(通過)
- 快速急行(通過)
- 都営大江戸線 光が丘駅 3.5km
- 普通(停車)
※急行等の停車駅情報について
急行等の停車駅に関するデータは、随時更新をしておりますが、最新の内容であることを保証するものではありません。
最新かつ正確な情報につきましては、各鉄道会社のウェブサイトにてご確認ください
この物件を取扱う他の会社
LIFULL HOME'Sでは、主要項目が同一の物件をまとめて表示しています。所在地や営業時間、掲載画像等から不動産会社を選んでお問合せください。

アエラス所沢店 (株式会社アエラス)
優良店認定
埼玉県所沢市日吉町11-20 フジビル 6階
西武池袋線 所沢駅 徒歩1分
- 営業時間
- 10:00~19:00(※時間外対応出来る場合もございます。)
- 定休日
- 毎週水曜日 ※12/27〜1/3は冬季休業

アエラス石神井公園店 (株式会社アエラス.FR)
東京都練馬区石神井町3丁目21-10 セリオ石神井公園 1階
西武池袋線 石神井公園駅 徒歩1分
- 営業時間
- 10:00~19:00(※時間外対応出来る場合もございます。)
- 定休日
- 毎週水曜日 ※12/28〜1/3は冬季休業

アエラスひばりヶ丘店 (株式会社アエラス.ER)
東京都西東京市谷戸町3丁目27-11 JCビル 1階
西武池袋線 ひばりヶ丘駅 徒歩1分
- 営業時間
- 10:00~19:00(※移転準備のためアエラス石神井公園店・所沢店にて営業中です。)
- 定休日
- アエラス石神井公園店は年中無休/アエラス所沢店は毎週水曜日

アエラス三鷹店 (株式会社アエラス.PR)
東京都武蔵野市中町1丁目13-2 村越ビル 4階
JR中央線 三鷹駅 徒歩1分
- 営業時間
- 10:00~19:00(※時間外対応出来る場合もございます)
- 定休日
- 年中無休(年末年始などを除く) ※12/27〜1/3は冬季休業
LIFULL HOME'S 地図・周辺情報
買い物
- ファミリーマート 大泉町四丁目店
- 業務スーパー 練馬大泉店
- ドラッグセイムス練馬大泉店
- セブンイレブン 練馬大泉学園小前店
- マルエツ 大泉学園店
グルメ
- ドムドム ハンバーガーマルエツ大泉学園店
- 丸源ラーメン大泉学園店
- びっくりドンキー 大泉学園店
- デニーズ 大泉店
- 無添くら寿司 大泉インター店
育児・教育
- 大泉学園幼稚園
- 練馬区立大泉学園小学校
- 練馬区立大泉学園中学校
- マーガレット保育園分園
- 練馬区立大泉北小学校
医療
- 医療法人社団健育会ねりま健育会病院
- 医療法人社団一陽会陽和病院
- 医療法人財団厚生協会大泉病院
- 久保田産婦人科病院
- 医療法人社団純正会東大泉病院
公共施設・郵便局
- 練馬大泉四郵便局
- 練馬区立大泉図書館
- 練馬区大泉区民事務所
- 大泉郵便局
- 練馬区立稲荷山図書館
公園
- 北大泉公園
- 都立大泉中央公園
- 練馬区立清水山の森
- 大泉公園
- 土支田農業公園
利用可能な駅
- すべての駅
西武池袋線
- 大泉学園駅徒歩30分
都営大江戸線
- 光が丘駅3.5km
- その他交通
- 西武池袋・豊島線 石神井公園 徒歩37分
- 周辺情報は2023年07月21日時点のものになります。
- 周辺情報は、参考情報としてのみご利用ください(周辺情報は、株式会社LIFULLが地図情報の提供事業者から提供を受けた情報とLIFULL HOME'Sの物件情報に基づき、独自の方法で抽出し提供しているものです。周辺情報は、移転や閉鎖等により情報が最新ではない、または正しくない場合がありますが、地図情報の提供事業者から提供された情報をそのまま周辺情報として表示しているため、正確かつ最新の情報へ修正することができないことがあります。)
- 周辺情報は、株式会社LIFULLが掲載するものであり、不動産物件情報を掲載している不動産会社が掲載するものではありません
- 交通情報の一部については、株式会社LIFULLが掲載するものであり、不動産物件情報を掲載している不動産会社が掲載するものではない場合があります。交通情報に関する質問などは株式会社LIFULLにお問合せください













































