LIFULL HOME'Sは物件鮮度No.1!※評価について
叡山電鉄叡山本線 一乗寺駅 徒歩5分(3階/1K/17.5m²)
叡山電鉄叡山本線 一乗寺駅 徒歩5分(3階/1K/17.5m²)
3.7万円/管理費等3,000円
4時間前 更新
画像一覧
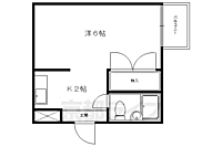
1/30間取り
2/30外観
3/30外観
4/30リビング/ダイニング
居室
5/30リビング/ダイニング
居室
6/30リビング/ダイニング
居室
7/30キッチン
キッチン
8/30キッチン
キッチン
9/30浴室
風呂
10/30浴室
ユニットバス
11/30トイレ
トイレ
12/30洗面
洗面所
13/30収納
収納
14/30収納
収納
15/30設備
冷蔵庫置場
16/30設備
洗濯機置場
17/30玄関
玄関
18/30バルコニー
ベランダ
19/30バルコニー
ベランダ
20/30エントランス
エントランス
21/30その他
眺望
22/30その他
エアコン
23/30その他
ドアフォン(TV含)
24/30その他
眺望
25/30その他
外観
26/30その他
駐輪場
27/30その他
集合ポスト
28/30周辺
生鮮館なかむら 一乗寺店まで400メートル
29/30周辺
セブンイレブン 一乗寺北大丸町店まで280メートル
30/30周辺
ドラッグストアユタカ 一乗寺店まで200メートル
間取り
外観
外観
リビング/ダイニング
リビング/ダイニング
リビング/ダイニング
キッチン
キッチン
浴室
浴室
トイレ
洗面
収納
収納
設備
設備
玄関
バルコニー
バルコニー
エントランス
その他
その他
その他
その他
その他
その他
その他
周辺
周辺
周辺
お問合せ先 :株式会社エリッツ 北大路店
1〜3月は引越しシーズンのピークです。お問合せはお早めに!
住まい探し特典内容
電気・ガス・インターネットの手続き代行のご案内します。
- 利用条件
- 株式会社エリッツ 北大路店で利用可
- 他特典との併用可
利用方法
来店時に本特典の画面をスマートフォンやタブレットでスタッフに提示、または画面印刷した用紙を提示ください。
有効期限 なし
インターネット無料の賃貸マンション。--パノラマ掲載--
基本情報
不動産用語- 賃料
- 3.7万円
- 管理費等
- 3,000円
初期費用などお気軽にお問合せください
- 敷金/礼金
- 1ヶ月/1ヶ月
- 保証金/敷引・償却金
- -/-
- 交通
叡山電鉄叡山本線 一乗寺駅 徒歩5分
叡山電鉄叡山本線 修学院駅 徒歩7分
叡山電鉄叡山本線 茶山・京都芸術大学駅 徒歩17分
阪急電鉄京都線 烏丸駅 バス32分 一乗寺北大丸町下車 徒歩2分
他14駅が利用可能(地図で調べる)- 所在地
京都府京都市左京区一乗寺東杉ノ宮町
地図を見る- 築年月
- 1989年3月(築37年)
- 主要採光面
- 南
- 専有面積
- 17.5㎡
- バルコニー面積
- -
- 所在階/階数
- 3階/3階建
- 現況
- 空家
- 入居可能時期
- 即時

人気物件はすぐに埋まってしまいます。
気になったらお早めにお問合せください。
- 情報公開日
2026/02/10
本日 公開
- 情報更新日
2026/02/10
4時間前 更新
- 次回更新
予定日 - 2026/02/16
物件のこだわり/設備・条件
新築(非該当)
2階以上の物件(該当)
南向き(該当)
駐車場(非該当)
オートロック(非該当)
エアコン(該当)
バス・トイレ別(非該当)
追焚機能(非該当)
フローリング(該当)
ペット相談(非該当)
入居条件
二人入居不可、単身者限定、即入居可キッチン/バス・トイレ
設備・サービス
TVモニタ付インターホン、エアコン、クローゼット、CATV、BS対応、インターネット対応、インターネット使用料無料、公営水道、都市ガス、下水、フローリング、バルコニー、洗濯機置場あり、南面バルコニー、駐輪場ありその他
初期費用カード決済可、住まい探し特典あり備考
一乗寺のラーメン通り周辺にある賃貸マンションです。周辺には有名なラーメン店はもちろん、コンビニやスーパーがある生活に便利な立地です。インターネットが無料で使えるのも、嬉しいですね。・インターネット無料 ハウスクリーニング22000円(退去時)
物件周辺の生活情報
買い物
- コンビニ(280m)
- スーパー(400m)
- ドラッグストア(200m)
その他施設
- 総合病院(1,340m)
交通
- 叡山電鉄叡山本線 一乗寺駅 徒歩5分
- 普通(停車)
- 京都地下鉄東西線 東山駅 バス18分 一乗寺北大丸町下車 徒歩2分
- 普通(停車)
※急行等の停車駅情報について
急行等の停車駅に関するデータは、随時更新をしておりますが、最新の内容であることを保証するものではありません。
最新かつ正確な情報につきましては、各鉄道会社のウェブサイトにてご確認ください
物件周辺の口コミ
- 京都府京都市東山区三条通神宮道東入3丁目に住む人の口コミ20代女性
日常生活を送るのに必要なお店や施設がそれなりの近さである 近所付き合いがなくても困らないこと。
口コミを見る
この物件周辺に住む人の口コミ
口コミは、LIFULL HOME'Sが実際にこの物件の周辺に住む18歳~69歳の男女を対象に、WEBアンケート調査を実施しています。内容には回答者の主観的な表現が含まれる場合があるほか、事実と異なる場合もございます。ご了承ください。
- 京都府京都市東山区三条通神宮道東入3丁目に住む人の口コミ20代女性
- 日常生活を送るのに必要なお店や施設がそれなりの近さである 近所付き合いがなくても困らないこと。
- 京都府京都市左京区松ケ崎小竹薮町に住む人の口コミ30代男性
- 治安かよく地下鉄の駅まで徒歩圏内で静か。一方、大型商業施設やスーパーも数点あり普段暮らす上で不自由はない
- 京都府京都市左京区一乗寺宮ノ東町に住む人の口コミ20代女性
- 今まで住んでいて不満もないし、ここに住んでいてよかったと思えるから。
- 京都府京都市左京区高野東開町に住む人の口コミ10代女性
- 交通の便が良い点と、夜遅くまで営業しているスーパーや外食チェーン、コンビニが豊富にある点
- 京都府京都市左京区聖護院蓮華蔵町に住む人の口コミ30代女性
- 清潔感、閑静、町整備が整っている、伝統を感じられる自社仏閣がある、治安はいい。しかし美観地区であるためか、スーパーまで遠い。あっても品数が少なく割高なスーパーしかない。生活については便利ではない。
- 京都府京都市左京区一乗寺東浦町に住む人の口コミ30代男性
- 比叡山ふもとで山にもすぐに登れてなおスーパーや飲食店も多くとても便利で自然も多い
- 京都府京都市左京区松ケ崎木ノ本町に住む人の口コミ20代女性
- 買い物の点ではそこまで充実していないが、問題なく暮らせるから
- 京都府京都市左京区下鴨北茶ノ木町に住む人の口コミ30代男性
- 回りは高級住宅があるので少し家賃が高い。しかし、治安がいいので夜遅くに子供が一人で塾から帰って来れる。
- 京都府京都市左京区一乗寺東閉川原町に住む人の口コミ30代女性
- 児童館、公園が多く小さい子供を育てやすいことと、保育園も多いので家庭にあったところを選択できた。わざわざ遠出しなくてもお店もたくさんあるので近場で完結する。
- 京都府京都市左京区高野東開町に住む人の口コミ30代女性
- 自分や家族に必要な物は徒歩数分の場所で購入することができるし、バス停も近い。書館、小学校も近くにあり育児も比較的しやすい環境。昔馴染みの知り合いが多く、人との関わりを持てるので孤独さもない。
物件概要
- 建物構造
- 鉄骨造
- 駐車場
- 近隣 13,200円(税込) 物件からの距離454m
- 総戸数
- 11戸
- 契約形態
- -
- 契約期間
- 2年間
- 更新料
- 新賃料の1ヶ月分
- その他費用
- 管理会社書類代(初回):5,500円、水道代(月額):21,265円
- 保証会社
加入要
保証会社利用料:21、265円
- 住宅保険
- 要
- 管理
- -
- LIFULL HOME'S
物件番号 - 0111203-0275913
- 自社管理番号
- 13814-0303
- 取引態様
- 仲介
- 会社名
- 株式会社エリッツ 北大路店
営業スタッフコメント

株式会社エリッツ 北大路店
岩本悠
元気いっぱいで頑張ります。
業界経験1年
- 会社実績や特徴・サービス情報
- 京都には賃貸住宅が盛りだくさん。選び放題だからこそ、探すのが難しいんです。私たちエリッツは京都市内に30店舗以上、様々な地域の物件をご提案、ご紹介、ご案内させて頂きますので、ご安心ください。
京都には賃貸住宅が盛りだくさん。選び放題だからこそ、探すのが難しいんです。私たちエリッツは京都市内に30店舗以上、様々な地域の物件をご提案、ご紹介、ご案内させて頂きますので、ご安心ください。
- 電話でお問合せ(通話無料)
お問合せ先 :株式会社エリッツ 北大路店
不動産会社情報
株式会社エリッツ 北大路店賃貸のエリッツ北大路店

京都府京都市北区小山上総町8-2 AYメゾン烏丸北大路1F
京都市営烏丸線 北大路駅 徒歩2分
- 営業時間
- 10:00~19:00
- 定休日
- 年中無休(年末年始を除く)
優良店認定
学生の街京都。その中でも北区、左京区は突出して多いエリアです。北大路店では主に大谷大学や京都産業大学、京都府立大学、京都工芸繊維大学や京都精華大学生のお部屋探しをお手伝いさせていただいております。
- 店舗の特徴
- 24時間管理物件取扱い
- 引越し業者紹介可
- 年中無休
- オンライン相談可
- 保証人不要な物件あり
- 法人契約取扱い
- 女性スタッフ対応可
- 駅から歩いて3分以内
電話でお問合せお客様の電話番号は不動産会社には通知されません
- 不動産会社に
つながります
お客様の電話番号は不動産会社に通知されません
- ※光IP電話、及びIP電話からはご利用になれません
- ※お電話によるお問合せは、店舗営業時間内にお願いします。つながらない場合は、お問合せフォームよりお問合せください
- ※不動産会社がお電話に出られなかった場合、お問合せいただいた後に不動産会社より折り返しのお電話がある場合がございます(お客様が非通知設定した場合は対象外です)
- ※株式会社LIFULLは電話会社が提供するサービスを介してお客様の発信者番号を受領後、折り返し専用の電話番号を発番してお問合せの不動産会社に通知します(お客様の発信者番号がお問合せの不動産会社に通知されることはございません)
- ※携帯電話からお問合せいただいた方に対し、株式会社LIFULLは電話会社が提供するメッセ―ジサービスを介してお客様の発信者番号を受領後、ショートメッセージ(SMS)またはLINE通知メッセージによるお問合せ内容に関する通知をお届けする場合があります
- ※お客様が通話中に不動産会社にお伝えになったお客様の個人情報及び、電話会社が発番する折り返し専用の電話番号は、お問合せ先不動産会社が資料送付・電子メール送信・電話連絡などの目的で保管する可能性があります。お問合せ先不動産会社が保管する個人情報の取扱いについては、各不動産会社に直接お問合せください
- ※株式会社LIFULLでは本サービスを円滑に運用するために、お客様の発信者番号をサービスご利用の控えとして一定期間保管いたします
- ※上記および株式会社LIFULLの個人情報の取扱い方針に同意のうえ、お電話ください
【LIFULL HOME'S物件番号】0111203-0275913【自社管理番号】13814-0303
オンライン対応
オンライン内見・オンライン相談・IT重説に対応している物件です

「オンライン内見」「オンライン相談」「IT重説」とは?
物件の内見や不動産会社スタッフとの相談、契約前の重要事項説明をオンライン(ビデオ通話)で行うことができるサービスです。
オンライン内見
ビデオ通話で現地(物件)にいる不動産会社スタッフと映像・音声を使ってリアルタイムで会話しながら内見ができます。
オンライン相談
「物件について聞きたいことがある」など不動産会社スタッフへの相談もビデオ通話で行うことができます。
IT重説
契約前の重要事項説明(重説)をビデオ通話で行うことができます。
利用時の注意事項
- ビデオ通話については各不動産会社指定のものとなります。
- ビデオ通話利用時には通信が発生します。従量課金制通信サービスや通信量に上限があるネット回線・プランを利用する場合は、通信量にご注意ください。
- 通信速度やアプリの設定によってはビデオ通話の画質が低下することがあります。安定した画質で利用するためにも、Wi-Fi環境下での利用を推奨します。
- ご利用のビデオ通話アプリによっては、対象のOSやブラウザに制限がある場合があります。詳しくはお問合せ先不動産会社にご確認ください。
初期費用・月額費用をあわせて確認!この物件に住んだときの費用めやす
めやすを見るこの物件に住んだときの費用めやす
- 初期費用
- 月額費用
- 追加費用※ご確認ください
追加で費用が
かかる場合があります
必ずご確認ください
初期費用めやす約0円
追加で費用がかかります(※)敷金
37,000
- 礼金
37,000
賃料+共益費・管理費の1ヶ月分として換算
賃料の1ヶ月分+税として換算。不動産会社によって金額が異なるため正確な金額は不動産会社にお問合せください
※追加費用もチェック!
これらの項目以外にも費用がかかる場合があります。正確な金額は不動産会社にお問合せください。
- 初期費用
- 鍵交換費:不動産会社に要確認
- 室内清掃費:不動産会社に要確認
- 火災保険費:不動産会社に要確認
- 月額費用
- 駐車場費:13,200円(税込)※近隣
- その他
- 管理会社書類代(初回):5500円
- 水道代(月額):21265円
- 保証会社
- 21、265円
不動産会社より
インターネット無料の賃貸マンション。--パノラマ掲載--
一乗寺のラーメン通り周辺にある賃貸マンションです。周辺には有名なラーメン店はもちろん、コンビニやスーパーがある生活に便利な立地です。インターネットが無料で使えるのも、嬉しいですね。・インターネット無料 ハウスクリーニング22000円(退去時)
- 保存する
- 共有する
- ※各種情報と現状に差異がある場合は、現状優先となります
- ※不動産会社が入力した情報を基に物件の位置を表示しています。詳しくは不動産会社までお問合せください
- ※不動産会社の方からの上記電話番号によるお問合せはお断りしております。こちら不動産会社詳細からお問合せください
- ※LIFULL HOME'Sは物件鮮度No.1を目指していきます。閲覧中の物件が「成約済である」「実際の物件情報と異なる点がある」などの場合、「掲載110番」からお問合せください
- ※QRコードは株式会社デンソーウェーブの登録商標です
LIFULL HOME'S 地図・周辺情報
買い物
- ファミリーマート 東大路山端店
- Can★Do一乗寺店
- ダックス左京山端店
- セブンイレブン 一乗寺北大丸町店
- 生鮮館なかむら 一乗寺店
グルメ
- サンマルク京都北山通り店
- なか卯 一乗寺店
- 焼肉屋さかい 京都一乗寺店
- マクドナルド 北白川店
- サイゼリヤ 京都一乗寺店
育児・教育
- 高野川保育園
- 京都市立修学院第二小学校
- 京都市立修学院中学校
- 子どものその保育園
- 京都市立松ケ崎小学校
医療
- 医療法人一仁会脳神経リハビリ北大路病院
- 医療法人社団順和会京都下鴨病院
- (財)日本バプテスト連盟医療団総合病院日本バプテスト病院
- 公益社団法人信和会京都民医連あすかい病院
- 医療法人財団康生会北山武田病院
公共施設・郵便局
- 京都山端郵便局
- 京都市左京図書館
- 京都市左京区役所
- 京都一乗寺郵便局
- 下鴨警察署
公園
- 宝が池公園子どもの楽園
- 宝が池公園
- 吉田山公園
- 岩倉南公園
利用可能な駅
- 徒歩10分以内
京都地下鉄東西線
- 東山駅 バス18分 一乗寺北大丸町下車徒歩2分
叡山電鉄叡山本線
- 一乗寺駅徒歩5分
- 修学院駅徒歩7分
- すべての駅
叡山電鉄叡山本線
- 茶山・京都芸術大学駅徒歩17分
- 宝ケ池駅徒歩19分
- 元田中駅徒歩20分
- 三宅八幡駅徒歩27分
- 八瀬比叡山口駅3.6km
京都市営烏丸線
- 松ヶ崎駅徒歩20分
- 北山駅徒歩30分
- 国際会館駅徒歩33分
- 北大路駅3.2km
- 鞍馬口駅3.4km
叡山電鉄鞍馬線
- 八幡前駅徒歩31分
- 岩倉駅3.5km
- 木野駅3.8km
京阪本線
- 出町柳駅徒歩33分
- その他交通
- 阪急電鉄京都線 烏丸駅 バス32分 一乗寺北大丸町下車 徒歩2分
- 周辺情報は2023年07月21日時点のものになります。
- 周辺情報は、参考情報としてのみご利用ください(周辺情報は、株式会社LIFULLが地図情報の提供事業者から提供を受けた情報とLIFULL HOME'Sの物件情報に基づき、独自の方法で抽出し提供しているものです。周辺情報は、移転や閉鎖等により情報が最新ではない、または正しくない場合がありますが、地図情報の提供事業者から提供された情報をそのまま周辺情報として表示しているため、正確かつ最新の情報へ修正することができないことがあります。)
- 周辺情報は、株式会社LIFULLが掲載するものであり、不動産物件情報を掲載している不動産会社が掲載するものではありません
- 交通情報の一部については、株式会社LIFULLが掲載するものであり、不動産物件情報を掲載している不動産会社が掲載するものではない場合があります。交通情報に関する質問などは株式会社LIFULLにお問合せください











