LIFULL HOME'Sは物件鮮度No.1!※評価について
二条晴明ビル 2階/202
9万円/管理費等5,000円
19時間前 更新
画像一覧
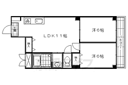
1/30間取り
間取
2/30外観
3/30外観
4/30リビング/ダイニング
5/30リビング/ダイニング
6/30リビング/ダイニング
7/30リビング/ダイニング
8/30リビング/ダイニング
9/30リビング/ダイニング
10/30リビング/ダイニング
11/30リビング/ダイニング
12/30リビング/ダイニング
13/30リビング/ダイニング
14/30リビング/ダイニング
15/30キッチン
16/30キッチン
17/30キッチン
18/30キッチン
19/30浴室
20/30浴室
21/30浴室
22/30トイレ
23/30トイレ
24/30洗面
25/30収納
26/30設備
27/30玄関
28/30バルコニー
29/30その他
30/30周辺
京都寺町二条郵便局まで189m 落ち着いた場所です。
間取り
外観
外観
リビング/ダイニング
リビング/ダイニング
リビング/ダイニング
リビング/ダイニング
リビング/ダイニング
リビング/ダイニング
リビング/ダイニング
リビング/ダイニング
リビング/ダイニング
リビング/ダイニング
リビング/ダイニング
キッチン
キッチン
キッチン
キッチン
浴室
浴室
浴室
トイレ
トイレ
洗面
収納
設備
玄関
バルコニー
その他
周辺
LINEチャットでも 相談できます
お問合せ先 :株式会社京都ライフ 四条烏丸店
御所南小学校区から登場。室内美装。 地下鉄丸太町駅まで徒歩10分の2LDKマンションです。
基本情報
不動産用語- 賃料
- 9万円
- 管理費等
- 5,000円
初期費用などお気軽にお問合せください
- 敷金/礼金
- 無/9万円
- 保証金/敷引・償却金
- -/-
- 交通
京都市営烏丸線 丸太町駅 徒歩10分
京都市営烏丸線 烏丸御池駅 徒歩10分
- 所在地
京都府京都市中京区二条通麩屋町西入る晴明町
地図を見る- 築年月
- 1990年4月(築36年)
- 主要採光面
- 南
- 専有面積
- 44.1㎡
- バルコニー面積
- -
- 所在階/階数
- 2階/6階建
入居可能日などお気軽にお問合せください
- 現況
- 賃貸中
- 入居可能時期
- 2026年01月 下旬

人気物件はすぐに埋まってしまいます。
気になったらお早めにお問合せください。
- 情報公開日
2025/11/27
1日前 公開
- 情報更新日
2025/11/27
19時間前 更新
- 次回更新
予定日 - 2025/12/09
物件のこだわり/設備・条件
新築(非該当)
2階以上の物件(該当)
南向き(該当)
駐車場(非該当)
オートロック(非該当)
エアコン(非該当)
バス・トイレ別(該当)
追焚機能(非該当)
フローリング(該当)
ペット相談可(該当)
入居条件
二人入居可、ペット相談キッチン/バス・トイレ
設備・サービス
TVモニタ付インターホン、シューズボックス、インターネット使用料無料、公営水道、都市ガス、下水、フローリング、バルコニー、南面バルコニー、エレベーター、駐輪場あり備考
京阪、地下鉄のダブルアクセス。嬉しい3点セパレートなど充実の設備。TVホンでセキュリティも安心です。コンビニ、スーパーなど近くにあって便利ですよ。 物件情報はもちろん京都のエリア情報まで幅広く対応させていただきます!
物件周辺の生活情報
学校
- 御所南小学校(264m)
- 京都御池中学校(224m)
買い物
- コンビニ(280m)
- スーパー(634m)
その他施設
- 総合病院(1,000m)
- 公園(575m)
- 銀行(381m)
- 京都寺町二条郵便局(189m)
交通
- 京都市営烏丸線 丸太町駅 徒歩10分
- 普通(停車)
- 急行(停車)
- 京都市営烏丸線 烏丸御池駅 徒歩10分
- 普通(停車)
- 急行(停車)
※急行等の停車駅情報について
急行等の停車駅に関するデータは、随時更新をしておりますが、最新の内容であることを保証するものではありません。
最新かつ正確な情報につきましては、各鉄道会社のウェブサイトにてご確認ください
物件周辺の口コミ
- 京都府京都市上京区浄福寺通丸太町上る西入に住む人の口コミ40代女性
昔からの治安のよい庶民的な住宅街で、子育て世代には人気のエリアだから。
口コミを見る
この物件周辺に住む人の口コミ
口コミは、LIFULL HOME'Sが実際にこの物件の周辺に住む18歳~69歳の男女を対象に、WEBアンケート調査を実施しています。内容には回答者の主観的な表現が含まれる場合があるほか、事実と異なる場合もございます。ご了承ください。
- 京都府京都市上京区浄福寺通丸太町上る西入に住む人の口コミ40代女性
- 昔からの治安のよい庶民的な住宅街で、子育て世代には人気のエリアだから。
- 京都府京都市中京区小川通丸太町上るに住む人の口コミ40代女性
- 適度に都会で、交通も便利で、住むのに不満がないが、車通りが多いので、少しうるさい。
- 京都府京都市上京区猪熊通元誓願寺下るに住む人の口コミ30代女性
- 子供と安心して過ごせる環境だと思う。不便に感じる点はあまり無いので。
- 京都府京都市上京区大宮通上立売上る西入に住む人の口コミ60代男性
- 身体が悪いから近くで何でも揃うのが良い。ただ一番近くのコンビニが閉店した。
- 京都府京都市中京区竹屋町通西洞院東入に住む人の口コミ30代女性
- 交通や買い物は至便で、困ることはほとんどない。一大観光地であるとともに、歴史ある町並みを保持している地域で、伝統も粛々と守られているなど、誇りに思える街だから。
- 京都府京都市中京区間之町通押小路下るに住む人の口コミ50代男性
- 街中でコンビニや行政施設が多く駅も近くてとにかく便利。地価が高いので広い家に住めない。近所の駐車料金が高い。
- 京都府京都市上京区下立売通黒門西入に住む人の口コミ40代女性
- 府庁や警察や病院が近くにある。静か。近くにコンビニやスーパーがある。バスが沢山ある。
- 京都府京都市上京区葭屋町通丸太町上るに住む人の口コミ50代女性
- 治安が良くて、食べ物がおいしい。独自の文化があり、町衆の自治がしっかりしている。
- 京都府京都市中京区衣棚通御池上るに住む人の口コミ30代女性
- 暮らしやすいが立地が良いため家賃が高い。家賃以外は満足しています。
- 京都府京都市上京区椹木町通智恵光院上る西入に住む人の口コミ40代男性
- 治安がよく、地元出身者だけの繋がりでない地域コミュニティがある。また、保育園、小中学校も徒歩で5分圏内。複数のスーパーもある。二条城があるので景観も良いから。
物件概要
- 建物構造
- 鉄骨造
- 駐車場
- 無
- 総戸数
- 10戸
- 契約形態
- -
- 契約期間
- 2年間
- 更新料
- 新賃料の1ヶ月分
- その他費用
- 鍵交換費用:16,500円、室内清掃費用:49,500円、町会費:500円
- 保証会社
加入要
保証会社利用料:初回:月額賃料等の100%、更新時:1万円/1年
- 住宅保険
- 要
- 管理
- 管理員:巡回
- LIFULL HOME'S
物件番号 - 0106225-0321599
- 自社管理番号
- 08997-202-03
- 取引態様
- 仲介
- 会社名
- 株式会社京都ライフ 四条烏丸店
営業スタッフコメント

株式会社京都ライフ 四条烏丸店店長
豊原勇介
丁寧な応対を心がけております。
業界経験10年
資格少額短期保険募集人
- スタッフ情報
- 創業40年以上にわたり京都市の中心にて賃貸仲介業をさせていただいております。 当店四条烏丸店は、京都市内のビジネス街である四条烏丸に店舗を構えており、 社会人のお客様、転勤等の法人契約などのお客様と多く関わらせていただいております。
創業40年以上にわたり京都市の中心にて賃貸仲介業をさせていただいております。 当店四条烏丸店は、京都市内のビジネス街である四条烏丸に店舗を構えており、 社会人のお客様、転勤等の法人契約などのお客様と多く関わらせていただいております。
- 電話でお問合せ(通話無料)
お問合せ先 :株式会社京都ライフ 四条烏丸店
不動産会社情報
株式会社京都ライフ 四条烏丸店京都ライフ四条烏丸店
京都府京都市下京区四条通新町東入月鉾町47-15
京都市営烏丸線 四条駅 徒歩3分
- 営業時間
- 09:30~19:00
- 定休日
- 年中無休(盆正月を除く)
電話でお問合せお客様の電話番号は不動産会社には通知されません
- 不動産会社に
つながります
お客様の電話番号は不動産会社に通知されません
- ※光IP電話、及びIP電話からはご利用になれません
- ※お電話によるお問合せは、店舗営業時間内にお願いします。つながらない場合は、お問合せフォームよりお問合せください
- ※不動産会社がお電話に出られなかった場合、お問合せいただいた後に不動産会社より折り返しのお電話がある場合がございます(お客様が非通知設定した場合は対象外です)
- ※株式会社LIFULLは電話会社が提供するサービスを介してお客様の発信者番号を受領後、折り返し専用の電話番号を発番してお問合せの不動産会社に通知します(お客様の発信者番号がお問合せの不動産会社に通知されることはございません)
- ※携帯電話からお問合せいただいた方に対し、株式会社LIFULLは電話会社が提供するメッセ―ジサービスを介してお客様の発信者番号を受領後、ショートメッセージ(SMS)またはLINE通知メッセージによるお問合せ内容に関する通知をお届けする場合があります
- ※お客様が通話中に不動産会社にお伝えになったお客様の個人情報及び、電話会社が発番する折り返し専用の電話番号は、お問合せ先不動産会社が資料送付・電子メール送信・電話連絡などの目的で保管する可能性があります。お問合せ先不動産会社が保管する個人情報の取扱いについては、各不動産会社に直接お問合せください
- ※株式会社LIFULLでは本サービスを円滑に運用するために、お客様の発信者番号をサービスご利用の控えとして一定期間保管いたします
- ※上記および株式会社LIFULLの個人情報の取扱い方針に同意のうえ、お電話ください
【LIFULL HOME'S物件番号】0106225-0321599【自社管理番号】08997-202-03
オンライン対応
オンライン相談に対応している物件です

「オンライン内見」「オンライン相談」「IT重説」とは?
物件の内見や不動産会社スタッフとの相談、契約前の重要事項説明をオンライン(ビデオ通話)で行うことができるサービスです。
オンライン内見
ビデオ通話で現地(物件)にいる不動産会社スタッフと映像・音声を使ってリアルタイムで会話しながら内見ができます。
オンライン相談
「物件について聞きたいことがある」など不動産会社スタッフへの相談もビデオ通話で行うことができます。
IT重説
契約前の重要事項説明(重説)をビデオ通話で行うことができます。
利用時の注意事項
- ビデオ通話については各不動産会社指定のものとなります。
- ビデオ通話利用時には通信が発生します。従量課金制通信サービスや通信量に上限があるネット回線・プランを利用する場合は、通信量にご注意ください。
- 通信速度やアプリの設定によってはビデオ通話の画質が低下することがあります。安定した画質で利用するためにも、Wi-Fi環境下での利用を推奨します。
- ご利用のビデオ通話アプリによっては、対象のOSやブラウザに制限がある場合があります。詳しくはお問合せ先不動産会社にご確認ください。
初期費用・月額費用をあわせて確認!この物件に住んだときの費用めやす
めやすを見るこの物件に住んだときの費用めやす
- 初期費用
- 月額費用
- 追加費用※ご確認ください
追加で費用が
かかる場合があります
必ずご確認ください
初期費用めやす約0円
追加で費用がかかります(※)敷金
0
- 礼金
90,000
賃料+共益費・管理費の1ヶ月分として換算
賃料の1ヶ月分+税として換算。不動産会社によって金額が異なるため正確な金額は不動産会社にお問合せください
※追加費用もチェック!
これらの項目以外にも費用がかかる場合があります。正確な金額は不動産会社にお問合せください。
- 初期費用
- 鍵交換費:16,500円
- 室内清掃費:49,500円
- 火災保険費:不動産会社に要確認
- その他
- 町会費:500円
- 保証会社
- 初回:月額賃料等の100%、更新時:1万円/1年
不動産会社より
御所南小学校区から登場。室内美装。 地下鉄丸太町駅まで徒歩10分の2LDKマンションです。
京阪、地下鉄のダブルアクセス。嬉しい3点セパレートなど充実の設備。TVホンでセキュリティも安心です。コンビニ、スーパーなど近くにあって便利ですよ。 物件情報はもちろん京都のエリア情報まで幅広く対応させていただきます!
- 保存する
- 共有する
- ※各種情報と現状に差異がある場合は、現状優先となります
- ※不動産会社が入力した情報を基に物件の位置を表示しています。詳しくは不動産会社までお問合せください
- ※不動産会社の方からの上記電話番号によるお問合せはお断りしております。こちら不動産会社詳細からお問合せください
- ※LIFULL HOME'Sは物件鮮度No.1を目指していきます。閲覧中の物件が「成約済である」「実際の物件情報と異なる点がある」などの場合、「掲載110番」からお問合せください
- ※QRコードは株式会社デンソーウェーブの登録商標です
したい暮らしのタグから探す
この物件を取扱う他の会社
LIFULL HOME'Sでは、主要項目が同一の物件をまとめて表示しています。所在地や営業時間、掲載画像等から不動産会社を選んでお問合せください。
同じ建物の他の部屋
最近見た賃貸物件
LIFULL HOME'S 地図・周辺情報
買い物
- ファミリーマート 寺町二条店
- フレスコ 御池店
- サンドラッグゼスト御池店
- ファミリーマート 柳馬場押小路店
- Seriaゼスト御池店
グルメ
- 松屋 ホテルユニゾ京都烏丸御池店
- 丸亀製麺京都市役所前店
- カフェコロラドゼスト御池店
- 上島珈琲店京都寺町店
- やよい軒 烏丸御池店
育児・教育
- 御所の杜ほいくえん
- 京都市立御所南小学校
- 京都市立京都御池中学校
- 京都市御池保育所
- 京都市立御所東小学校
医療
- 医療法人財団足立病院
- 京都第二赤十字病院
- 医療法人知音会京都新町病院
- 医療法人毛利病院
- 京都府立医科大学附属病院
公共施設・郵便局
- 京都御池柳馬場郵便局
- 京都市こどもみらい館子育て図書館
- 京都市役所
- 京都ゼスト御池内郵便局
- 京都府立図書館
公園
- 梅屋広場公園
- 京都御苑
- 岡崎公園
- 円山公園
- 円山公園
利用可能な駅
- 徒歩10分以内
京都市営烏丸線
- 丸太町駅徒歩10分
- 烏丸御池駅徒歩10分
- 周辺情報は2023年07月21日時点のものになります。
- 周辺情報は、参考情報としてのみご利用ください(周辺情報は、株式会社LIFULLが地図情報の提供事業者から提供を受けた情報とLIFULL HOME'Sの物件情報に基づき、独自の方法で抽出し提供しているものです。周辺情報は、移転や閉鎖等により情報が最新ではない、または正しくない場合がありますが、地図情報の提供事業者から提供された情報をそのまま周辺情報として表示しているため、正確かつ最新の情報へ修正することができないことがあります。)
- 周辺情報は、株式会社LIFULLが掲載するものであり、不動産物件情報を掲載している不動産会社が掲載するものではありません
- 交通情報の一部については、株式会社LIFULLが掲載するものであり、不動産物件情報を掲載している不動産会社が掲載するものではない場合があります。交通情報に関する質問などは株式会社LIFULLにお問合せください











































