LIFULL HOME'Sは物件鮮度No.1!※評価について
AZハウス(5階/506/3LDK/69.75m²)
AZハウス(5階/506/3LDK/69.75m²)
8.9万円/管理費等10,000円
11時間前 更新
画像一覧
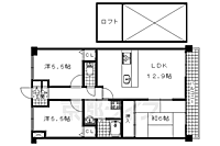
1/30間取り
間取
2/30外観
3/30外観
4/30リビング/ダイニング
5/30リビング/ダイニング
6/30リビング/ダイニング
7/30リビング/ダイニング
8/30リビング/ダイニング
9/30キッチン
10/30キッチン
11/30キッチン
12/30キッチン
13/30浴室
14/30トイレ
15/30洗面
16/30洗面
17/30収納
18/30収納
19/30収納
20/30収納
21/30設備
22/30設備
23/30設備
24/30設備
25/30設備
26/30玄関
27/30バルコニー
28/30その他
29/30その他
30/30周辺
とりまさまで292m
間取り
外観
外観
リビング/ダイニング
リビング/ダイニング
リビング/ダイニング
リビング/ダイニング
リビング/ダイニング
キッチン
キッチン
キッチン
キッチン
浴室
トイレ
洗面
洗面
収納
収納
収納
収納
設備
設備
設備
設備
設備
玄関
バルコニー
その他
その他
周辺
お問合せ先 :(株)京都ライフ 小倉店
1〜3月は引越しシーズンのピークです。お問合せはお早めに!
仲介手数料割引
成約時の仲介手数料半月分の税別でご紹介可能です。
- 利用条件
- (株)京都ライフ 小倉店で利用可
- 他特典との併用可
- 個人契約、居住用物件に限ります。 大東建託、積水ハウス物件は除く。
利用方法
来店時に本特典の画面をスマートフォンやタブレットでスタッフに提示、または画面印刷した用紙を提示ください。
有効期限 なし
お部屋は広々3LDK 近鉄向島駅まで徒歩8分の3LDKマンションです。敷金ナシ。
基本情報
不動産用語- 賃料
- 8.9万円
- 管理費等
- 10,000円
初期費用などお気軽にお問合せください
- 敷金/礼金
- 無/8.9万円
- 保証金/敷引・償却金
- -/-
- 交通
近鉄京都線 向島駅 徒歩8分
京阪宇治線 観月橋駅 徒歩19分
- 所在地
京都府京都市伏見区向島津田町
地図を見る- 築年月
- 1995年12月(築31年)
- 主要採光面
- 南
- 専有面積
- 69.75㎡
- バルコニー面積
- -
- 所在階/階数
- 5階/5階建
- 現況
- 空家
- 入居可能時期
- 即時

人気物件はすぐに埋まってしまいます。
気になったらお早めにお問合せください。
- 情報公開日
2024/03/14
710日前 公開
- 情報更新日
2026/02/22
11時間前 更新
- 次回更新
予定日 - 2026/03/06
物件のこだわり/設備・条件
新築(非該当)
2階以上の物件(該当)
南向き(該当)
駐車場あり(該当)
オートロック(該当)
エアコン(該当)
バス・トイレ別(該当)
追焚機能(非該当)
フローリング(該当)
ペット相談(非該当)
入居条件
二人入居可キッチン/バス・トイレ
セキュリティ
オートロック、TVモニタ付インターホン駐車・駐輪
駐車場あり、駐輪場ありテレビ・通信
CATV、光ファイバー電気・ガス・水道
公営水道、都市ガス、下水室内
エアコン、フローリング、室内洗濯機置場建物設備
エレベーター、宅配ボックスバルコニー・庭
バルコニー、南面バルコニー備考
嬉しい3点セパレートにシステムキッチン、温水洗浄便座など充実の設備。オートロックでセキュリティも安心です。コンビニ、スーパーなど近くにあって便利ですよ。光ファイバー対応しています。 物件情報はもちろん京都のエリア情報まで幅広く対応させていただきます!
物件周辺の生活情報
学校
- 向島秀蓮小学校(550m)
- 向島秀蓮中学校(550m)
買い物
- コンビニ(470m)
- スーパー(664m)
その他施設
- 総合病院(1,300m)
- 銀行(1,100m)
- 向島幼稚園(459m)
交通
- 近鉄京都線 向島駅 徒歩8分
- 普通(停車)
- 準急(停車)
- 急行(通過)
- 京阪宇治線 観月橋駅 徒歩19分
- 普通(停車)
※急行等の停車駅情報について
急行等の停車駅に関するデータは、随時更新をしておりますが、最新の内容であることを保証するものではありません。
最新かつ正確な情報につきましては、各鉄道会社のウェブサイトにてご確認ください
物件周辺の口コミ
- 京都府京都市伏見区向島津田町に住む人の口コミ60代男性
歩いて行ける範囲で、病院(内科)、買い物に行けます。京阪、近鉄が利用でき、京都、大阪ともに、一時間位で行けます。
口コミを見る
この物件周辺に住む人の口コミ
口コミは、LIFULL HOME'Sが実際にこの物件の周辺に住む18歳~69歳の男女を対象に、WEBアンケート調査を実施しています。内容には回答者の主観的な表現が含まれる場合があるほか、事実と異なる場合もございます。ご了承ください。
- 京都府京都市伏見区向島津田町に住む人の口コミ60代男性
- 歩いて行ける範囲で、病院(内科)、買い物に行けます。京阪、近鉄が利用でき、京都、大阪ともに、一時間位で行けます。
- 京都府京都市伏見区向島津田町に住む人の口コミ40代女性
- スーパーやコンビニ、金融機関や郵便局が充実しているので。交通機関が複数沿線あるので。図書館があるので。
- 京都府京都市伏見区向島津田町に住む人の口コミ40代男性
- 当区内で治安が良いほうとは言えないが、その中でもこの近隣はまだ静かなところで住みやすい。保育園が充実していて待機児童も少ない。しかし小中学校の統廃合が進行中で子供にとっての環境は悪化しつつある。
- 京都府京都市伏見区向島津田町に住む人の口コミ50代女性
- 危険な目にあったこともないし、買い物に不自由したこともないし、病気になって困ったこともないし、案外静かだし、でも、もっと上があるのだろうと思うので、今が一番とは言い切れないから。
- 京都府宇治市槇島町に住む人の口コミ40代女性
- 子育てしやすく、スーパーも幾つかあり便利、公園や運動場もある。景色が綺麗で四季の変化を感じたり、広い空を堪能出来る場所もあるので。少し治安には不安がありますが。
- 京都府京都市伏見区向島四ツ谷池に住む人の口コミ60代男性
- 病院スーパーマーケット銀行役所公園等何でもそろっていて暮らしやす、景色も大変良い
- 京都府京都市伏見区向島中島町に住む人の口コミ30代女性
- 他の地域に比べて、都心すぎず、適度に自然もあり、地域住民仲良く暮らしているから。
- 京都府久世郡久御山町東一口に住む人の口コミ40代男性
- 夜遅くても開いてる店が多い、交通手段が車がないと厳しいので、鉄道をなんとかして欲しい
- 京都府宇治市槇島町に住む人の口コミ60代男性
- 通勤のためには駅が近く、スーパーやコンビニが徒歩10分圏内に複数あり、飲食店の数も多い。
- 京都府宇治市槇島町に住む人の口コミ60代男性
- 歴史的な文化遺産に徒歩圏内で訪れる事が出来る。買い物、便利、病院も徒歩圏内で行ける。
物件概要
- 建物構造
- RC(鉄筋コンクリート)
- 駐車場
- 空有 11,000円(税込)
- 総戸数
- 58戸
- 契約形態
- -
- 契約期間
- 2年間
- 更新料
- 新賃料の1ヶ月分
- その他費用
- 室内清掃費用:38,500円、LIFE SUPPORT:1,100円
- 保証会社
加入要
保証会社:あんしんプラス
保証会社利用料:初回:月額賃料等の40%/2年、月額:支払い手数料880円、更新時:月額賃料等の20%/2年
- 住宅保険
- 要
- 契約条件
- 保証人不要、即入居可、住まい探し特典あり
- 管理
- 管理員:巡回
- LIFULL HOME'S
物件番号 - 0100017-0195752
- 自社管理番号
- 03711-506-11
- 取引態様
- 専属専任媒介
- 会社名
- (株)京都ライフ 小倉店
営業スタッフコメント

(株)京都ライフ 小倉店
中江
営業の立場ではなくお客様の立場でご紹介。
業界経験3年
資格少額短期保険募集人
- 会社実績や特徴・サービス情報
- 宇治市、城陽市、京田辺市、京都南エリアのお部屋探しは「京都ライフ」へお任せ下さい。仲介手数料は一律、家賃の50%(税別)。来客用ガレージも完備。学生様の新生活も全力でサポートいたします。
宇治市、城陽市、京田辺市、京都南エリアのお部屋探しは「京都ライフ」へお任せ下さい。仲介手数料は一律、家賃の50%(税別)。来客用ガレージも完備。学生様の新生活も全力でサポートいたします。
- 電話でお問合せ(通話無料)
お問合せ先 :(株)京都ライフ 小倉店
不動産会社情報
(株)京都ライフ 小倉店京都ライフ小倉店

京都府宇治市小倉町神楽田21-5 ア‐バネックス小倉ビル1F
近鉄京都線 小倉駅 徒歩2分
- 営業時間
- 09:30~19:00
- 定休日
- 年中無休(盆正月を除く)
優良店認定
京都全域くまなくネット!京都でのお部屋探しは創業40年の「かんたんお部屋探しは・・・京都ライフへ!!
- 店舗の特徴
- 賃貸管理業務
- 24時間管理物件取扱い
- リフォーム対応
- 引越し業者紹介可
- 年中無休
- 保証人不要な物件あり
- 法人契約取扱い
- 駅から歩いて3分以内
電話でお問合せお客様の電話番号は不動産会社には通知されません
- 不動産会社に
つながります
お客様の電話番号は不動産会社に通知されません
- ※光IP電話、及びIP電話からはご利用になれません
- ※お電話によるお問合せは、店舗営業時間内にお願いします。つながらない場合は、お問合せフォームよりお問合せください
- ※不動産会社がお電話に出られなかった場合、お問合せいただいた後に不動産会社より折り返しのお電話がある場合がございます(お客様が非通知設定した場合は対象外です)
- ※株式会社LIFULLは電話会社が提供するサービスを介してお客様の発信者番号を受領後、折り返し専用の電話番号を発番してお問合せの不動産会社に通知します(お客様の発信者番号がお問合せの不動産会社に通知されることはございません)
- ※携帯電話からお問合せいただいた方に対し、株式会社LIFULLは電話会社が提供するメッセ―ジサービスを介してお客様の発信者番号を受領後、ショートメッセージ(SMS)またはLINE通知メッセージによるお問合せ内容に関する通知をお届けする場合があります
- ※お客様が通話中に不動産会社にお伝えになったお客様の個人情報及び、電話会社が発番する折り返し専用の電話番号は、お問合せ先不動産会社が資料送付・電子メール送信・電話連絡などの目的で保管する可能性があります。お問合せ先不動産会社が保管する個人情報の取扱いについては、各不動産会社に直接お問合せください
- ※株式会社LIFULLでは本サービスを円滑に運用するために、お客様の発信者番号をサービスご利用の控えとして一定期間保管いたします
- ※上記および株式会社LIFULLの個人情報の取扱い方針に同意のうえ、お電話ください
【LIFULL HOME'S物件番号】0100017-0195752【自社管理番号】03711-506-11
オンライン対応
オンライン内見・オンライン相談・IT重説に対応している物件です

「オンライン内見」「オンライン相談」「IT重説」とは?
物件の内見や不動産会社スタッフとの相談、契約前の重要事項説明をオンライン(ビデオ通話)で行うことができるサービスです。
オンライン内見
ビデオ通話で現地(物件)にいる不動産会社スタッフと映像・音声を使ってリアルタイムで会話しながら内見ができます。
オンライン相談
「物件について聞きたいことがある」など不動産会社スタッフへの相談もビデオ通話で行うことができます。
IT重説
契約前の重要事項説明(重説)をビデオ通話で行うことができます。
利用時の注意事項
- ビデオ通話については各不動産会社指定のものとなります。
- ビデオ通話利用時には通信が発生します。従量課金制通信サービスや通信量に上限があるネット回線・プランを利用する場合は、通信量にご注意ください。
- 通信速度やアプリの設定によってはビデオ通話の画質が低下することがあります。安定した画質で利用するためにも、Wi-Fi環境下での利用を推奨します。
- ご利用のビデオ通話アプリによっては、対象のOSやブラウザに制限がある場合があります。詳しくはお問合せ先不動産会社にご確認ください。
初期費用・月額費用をあわせて確認!この物件に住んだときの費用めやす
めやすを見るこの物件に住んだときの費用めやす
- 初期費用
- 月額費用
- 追加費用※ご確認ください
追加で費用が
かかる場合があります
必ずご確認ください
初期費用めやす約0円
追加で費用がかかります(※)敷金
0
- 礼金
89,000
賃料+共益費・管理費の1ヶ月分として換算
賃料の1ヶ月分+税として換算。不動産会社によって金額が異なるため正確な金額は不動産会社にお問合せください
※追加費用もチェック!
これらの項目以外にも費用がかかる場合があります。正確な金額は不動産会社にお問合せください。
- 初期費用
- 鍵交換費:不動産会社に要確認
- 室内清掃費:38,500円
- 火災保険費:不動産会社に要確認
- 月額費用
- 駐車場費:11,000円(税込)※契約任意
- その他
- LIFE SUPPORT:1100円
- 保証会社
- 初回:月額賃料等の40%/2年、月額:支払い手数料880円、更新時:月額賃料等の20%/2年
不動産会社より
お部屋は広々3LDK 近鉄向島駅まで徒歩8分の3LDKマンションです。敷金ナシ。
嬉しい3点セパレートにシステムキッチン、温水洗浄便座など充実の設備。オートロックでセキュリティも安心です。コンビニ、スーパーなど近くにあって便利ですよ。光ファイバー対応しています。 物件情報はもちろん京都のエリア情報まで幅広く対応させていただきます!
- 保存する
- 共有する
- ※各種情報と現状に差異がある場合は、現状優先となります
- ※不動産会社が入力した情報を基に物件の位置を表示しています。詳しくは不動産会社までお問合せください
- ※不動産会社の方からの上記電話番号によるお問合せはお断りしております。こちら不動産会社詳細からお問合せください
- ※LIFULL HOME'Sは物件鮮度No.1を目指していきます。閲覧中の物件が「成約済である」「実際の物件情報と異なる点がある」などの場合、「掲載110番」からお問合せください
- ※QRコードは株式会社デンソーウェーブの登録商標です
したい暮らしのタグから探す
この物件を取扱う他の会社
LIFULL HOME'Sでは、主要項目が同一の物件をまとめて表示しています。所在地や営業時間、掲載画像等から不動産会社を選んでお問合せください。
株式会社京都ライフ 山科店
京都府京都市山科区竹鼻竹ノ街道町11
JR東海道・山陽本線 山科駅 徒歩3分
- 営業時間
- 09:30~19:00
- 定休日
- 夏期休暇 8月13日〜8月16日 年末年始休暇 12月27日〜1月4日
LIFULL HOME'S 地図・周辺情報
買い物
- セブンイレブン 伏見向島津田町店
- フレスコ 向島店
- ドラッグユタカ向島店
- ファミリーマート 伏見向島本丸店
- 万代 宇治槙島店
グルメ
- コメダ珈琲店伏見桃山駅前店
- ドトールコーヒーショップ伏見桃山駅前店
- ミスタードーナツ 伏見大手筋ショップ
- なか卯 伏見桃山店
- カフェ・ベローチェ伏見桃山店
育児・教育
- 向島幼稚園
- 京都市立向島小学校
- 京都市立向島秀蓮小中学校
- 向島保育園
- 京都市立伏見南浜小学校
医療
- 医療法人健幸会むかいじま病院
- 社会医療法人弘仁会大島病院
- 社会福祉法人浩照会伏見桃山総合病院
- 特定医療法人桃仁会桃仁会病院
- 医療法人社団蘇生会総合病院
公共施設・郵便局
- 京都向島郵便局
- 京都市向島図書館
- 京都市伏見区役所
- 京都向島四ツ谷池郵便局
- 京都市伏見中央図書館
公園
- 宇治川公園
- 向島東公園
- 三栖公園
- 西宇治公園
- 伏見桃山城運動公園
利用可能な駅
- 徒歩10分以内
近鉄京都線
- 向島駅徒歩8分
- すべての駅
京阪宇治線
- 観月橋駅徒歩19分
- 周辺情報は2023年07月21日時点のものになります。
- 周辺情報は、参考情報としてのみご利用ください(周辺情報は、株式会社LIFULLが地図情報の提供事業者から提供を受けた情報とLIFULL HOME'Sの物件情報に基づき、独自の方法で抽出し提供しているものです。周辺情報は、移転や閉鎖等により情報が最新ではない、または正しくない場合がありますが、地図情報の提供事業者から提供された情報をそのまま周辺情報として表示しているため、正確かつ最新の情報へ修正することができないことがあります。)
- 周辺情報は、株式会社LIFULLが掲載するものであり、不動産物件情報を掲載している不動産会社が掲載するものではありません
- 交通情報の一部については、株式会社LIFULLが掲載するものであり、不動産物件情報を掲載している不動産会社が掲載するものではない場合があります。交通情報に関する質問などは株式会社LIFULLにお問合せください
















