LIFULL HOME'Sは物件鮮度No.1!※評価について
基本情報
不動産用語- 賃料
- 18.1万円
- 管理費等
- 5,000円
初期費用などお気軽にお問合せください
- 敷金/礼金
- 無/無
- 保証金/敷引・償却金
- -/-
- 交通
東京メトロ丸ノ内線 茗荷谷駅 徒歩13分
都営三田線 春日駅 徒歩13分
- 所在地
東京都文京区小石川3丁目22-8
地図を見る- 築年月
- 2026年4月(新築)
- 主要採光面
- 北西
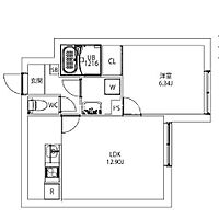
- 専有面積
- 40.06㎡
- バルコニー面積
- -
- 所在階/階数
- 地下1階/4階建(地下1階)
入居可能日などお気軽にお問合せください
- 現況
- 未完成
- 入居可能時期
- 2026年05月 下旬

人気物件はすぐに埋まってしまいます。
気になったらお早めにお問合せください。
- 情報公開日
2025/12/10
本日 公開
- 情報更新日
2025/12/10
5時間前 更新
- 次回更新
予定日 - 2025/12/17
物件のこだわり/設備・条件
新築(該当)
2階以上の物件(非該当)
南向き(非該当)
駐車場(非該当)
オートロック(該当)
エアコン(該当)
バス・トイレ別(該当)
追焚機能(非該当)
フローリング(該当)
ペット相談(非該当)
位置
角部屋入居条件
二人入居可、法人希望、家賃保証付きキッチン/バス・トイレ
IHコンロ、コンロ二口、システムキッチン、カウンターキッチン、専用バス、専用トイレ、バス・トイレ別、温水洗浄便座、浴室乾燥機、洗面所独立設備・サービス
オートロック、防犯カメラ、TVモニタ付インターホン、エアコン、クローゼット、シューズボックス、CS対応、BS対応、インターネット対応、インターネット使用料無料、公営水道、都市ガス、下水、フローリング、室内洗濯機置場、24時間換気システム、全室フローリング、エレベーター、宅配ボックスその他
初期費用カード決済可備考
当物件は「住まいのリライフ」で取り扱っております。リライフは首都圏25店舗のネットワークで豊富な物件情報をお客様へご提供します。当物件に類似した未公開物件なども合わせてご提案可能です。お気軽にお問合せください。違約金有:1年未満賃料2ヶ月、2年未満賃料1ヶ月24時間安心サポート:1.65万円/基本クリーニング費用:7.7万円/エアコンクリーニング費用:1.5万円
物件周辺の生活情報
買い物
- コンビニ(278m)
- スーパー(417m)
- ドラッグストア(598m)
その他施設
- 総合病院(1,566m)
- 公園(1,195m)
- 銀行(755m)
- 白洋舎春日店(576m)
交通
- 東京メトロ丸ノ内線 茗荷谷駅 徒歩13分
- 普通(停車)
- 都営三田線 春日駅 徒歩13分
- 普通(停車)
- 急行(停車)
※急行等の停車駅情報について
急行等の停車駅に関するデータは、随時更新をしておりますが、最新の内容であることを保証するものではありません。
最新かつ正確な情報につきましては、各鉄道会社のウェブサイトにてご確認ください
物件周辺の口コミ
- 東京都文京区小石川に住む人の口コミ50代女性
暮していて不自由なことが何もない。すべてがそろっている。(お金さえあれば)
口コミを見る
この物件周辺に住む人の口コミ
口コミは、LIFULL HOME'Sが実際にこの物件の周辺に住む18歳~69歳の男女を対象に、WEBアンケート調査を実施しています。内容には回答者の主観的な表現が含まれる場合があるほか、事実と異なる場合もございます。ご了承ください。
- 東京都文京区小石川に住む人の口コミ50代女性
- 暮していて不自由なことが何もない。すべてがそろっている。(お金さえあれば)
- 東京都文京区小石川に住む人の口コミ50代女性
- 近くにスーパーが3ヶ所あり買い物には困らない、物騒なことがない、
- 東京都文京区小石川に住む人の口コミ30代女性
- 家族構成によっては満足できる 例えば現在夫婦2人で住んでいるがお互いの職場にも近いため、通勤のストレスがない 子どもが居たら住居や周りの遊具施設が狭く買い物も不便なためあまり満足感は高くないと予想する
- 東京都文京区小石川に住む人の口コミ60代女性
- 治安が良く、落ち着いている。地下鉄4路線乗り入れで交通の便が良い。大学やその他の学校も多く、教育環境もよい。
- 東京都文京区小石川に住む人の口コミ40代女性
- 交通の便や街並みなどは気に入っていて満足しているがホームセンターや大型のスーパーがないところが不便に思うことがあるから。
- 東京都文京区小石川に住む人の口コミ30代女性
- 飲食店が少なくて不便だが、どこに行くのにも交通の便が良いから。
- 東京都文京区小石川に住む人の口コミ60代男性
- 生まれ育った町なので、他の町との比較は出来ませんが、治安が良く、買い物が便利で落ち着いた町であるところが満足できる点です。
- 東京都文京区小石川に住む人の口コミ40代男性
- 子供が育つ環境としては最高だと思う。都会で緑が多くて、学校、図書館が多い
- 東京都文京区小石川に住む人の口コミ40代女性
- ほぼ満足しているが、スーパー等での物価が高いことだけが不満なので。
- 東京都文京区小石川に住む人の口コミ30代女性
- 公園などの公共施設に限らず、住宅街の路地まで綺麗に保全されている(清掃車が定期的に走っている)。生活水準の高い世帯が多いのか街を歩く人も落ち着いていて、危険を感じない。
物件概要
- 建物構造
- RC(鉄筋コンクリート)
- 駐車場
- 無
- 総戸数
- 15戸
- 契約形態
- -
- 契約期間
- 2年間
- 更新料
- 新賃料の1ヶ月分
- その他費用
- 室内清掃費用:77,000円、24時間安心サポート(初回のみ):16,500円
- 保証会社
加入要
保証会社利用料:エポスカード初回総賃料50% 契約以降月々総賃料の1 %
- 住宅保険
- 要
- 管理
- -
- LIFULL HOME'S
物件番号 - 0125638-0061683
- 自社管理番号
- B124141R456261
- 取引態様
- 仲介
- 会社名
- 株式会社リライフ リライフ四谷店
- 電話でお問合せ(通話無料)
お問合せ先 :株式会社リライフ リライフ四谷店
不動産会社情報
株式会社リライフ リライフ四谷店
東京都新宿区四谷1丁目3-23 小倉ビル2階
JR中央本線 四ツ谷駅 徒歩1分
- 営業時間
- 10:00~18:30
- 定休日
- 水曜日(祝日を除く)夏季・年末年始
- 担当者
- 細谷
日管協加盟
電話でお問合せお客様の電話番号は不動産会社には通知されません
- 不動産会社に
つながります
お客様の電話番号は不動産会社に通知されません
- ※光IP電話、及びIP電話からはご利用になれません
- ※お電話によるお問合せは、店舗営業時間内にお願いします。つながらない場合は、お問合せフォームよりお問合せください
- ※不動産会社がお電話に出られなかった場合、お問合せいただいた後に不動産会社より折り返しのお電話がある場合がございます(お客様が非通知設定した場合は対象外です)
- ※株式会社LIFULLは電話会社が提供するサービスを介してお客様の発信者番号を受領後、折り返し専用の電話番号を発番してお問合せの不動産会社に通知します(お客様の発信者番号がお問合せの不動産会社に通知されることはございません)
- ※携帯電話からお問合せいただいた方に対し、株式会社LIFULLは電話会社が提供するメッセ―ジサービスを介してお客様の発信者番号を受領後、ショートメッセージ(SMS)またはLINE通知メッセージによるお問合せ内容に関する通知をお届けする場合があります
- ※お客様が通話中に不動産会社にお伝えになったお客様の個人情報及び、電話会社が発番する折り返し専用の電話番号は、お問合せ先不動産会社が資料送付・電子メール送信・電話連絡などの目的で保管する可能性があります。お問合せ先不動産会社が保管する個人情報の取扱いについては、各不動産会社に直接お問合せください
- ※株式会社LIFULLでは本サービスを円滑に運用するために、お客様の発信者番号をサービスご利用の控えとして一定期間保管いたします
- ※上記および株式会社LIFULLの個人情報の取扱い方針に同意のうえ、お電話ください
【LIFULL HOME'S物件番号】0125638-0061683【自社管理番号】B124141R456261
オンライン対応
オンライン相談に対応している物件です

「オンライン内見」「オンライン相談」「IT重説」とは?
物件の内見や不動産会社スタッフとの相談、契約前の重要事項説明をオンライン(ビデオ通話)で行うことができるサービスです。
オンライン内見
ビデオ通話で現地(物件)にいる不動産会社スタッフと映像・音声を使ってリアルタイムで会話しながら内見ができます。
オンライン相談
「物件について聞きたいことがある」など不動産会社スタッフへの相談もビデオ通話で行うことができます。
IT重説
契約前の重要事項説明(重説)をビデオ通話で行うことができます。
利用時の注意事項
- ビデオ通話については各不動産会社指定のものとなります。
- ビデオ通話利用時には通信が発生します。従量課金制通信サービスや通信量に上限があるネット回線・プランを利用する場合は、通信量にご注意ください。
- 通信速度やアプリの設定によってはビデオ通話の画質が低下することがあります。安定した画質で利用するためにも、Wi-Fi環境下での利用を推奨します。
- ご利用のビデオ通話アプリによっては、対象のOSやブラウザに制限がある場合があります。詳しくはお問合せ先不動産会社にご確認ください。
初期費用・月額費用をあわせて確認!この物件に住んだときの費用めやす
めやすを見るこの物件に住んだときの費用めやす
- 初期費用
- 月額費用
- 追加費用※ご確認ください
追加で費用が
かかる場合があります
必ずご確認ください
初期費用めやす約0円
追加で費用がかかります(※)敷金
0
- 礼金
0
- 保証金
0
賃料+共益費・管理費の1ヶ月分として換算
賃料の1ヶ月分+税として換算。不動産会社によって金額が異なるため正確な金額は不動産会社にお問合せください
※追加費用もチェック!
これらの項目以外にも費用がかかる場合があります。正確な金額は不動産会社にお問合せください。
- 初期費用
- 鍵交換費:不動産会社に要確認
- 室内清掃費:77,000円
- 火災保険費:不動産会社に要確認
- その他
- 24時間安心サポート(初回のみ):16500円
- 保証会社
- エポスカード初回総賃料50% 契約以降月々総賃料の1 %
不動産会社より
当物件はオンラインまたはお近くの店舗でご相談お申込を承ります
当物件は「住まいのリライフ」で取り扱っております。リライフは首都圏25店舗のネットワークで豊富な物件情報をお客様へご提供します。当物件に類似した未公開物件なども合わせてご提案可能です。お気軽にお問合せください。違約金有:1年未満賃料2ヶ月、2年未満賃料1ヶ月24時間安心サポート:1.65万円/基本クリーニング費用:7.7万円/エアコンクリーニング費用:1.5万円
- 保存する
- 共有する
- ※各種情報と現状に差異がある場合は、現状優先となります
- ※不動産会社が入力した情報を基に物件の位置を表示しています。詳しくは不動産会社までお問合せください
- ※不動産会社の方からの上記電話番号によるお問合せはお断りしております。こちら不動産会社詳細からお問合せください
- ※LIFULL HOME'Sは物件鮮度No.1を目指していきます。閲覧中の物件が「成約済である」「実際の物件情報と異なる点がある」などの場合、「掲載110番」からお問合せください
- ※QRコードは株式会社デンソーウェーブの登録商標です
この物件を取扱う他の会社
LIFULL HOME'Sでは、主要項目が同一の物件をまとめて表示しています。所在地や営業時間、掲載画像等から不動産会社を選んでお問合せください。
LIFULL HOME'S 地図・周辺情報
買い物
- セブンイレブン 文京植物園前店
- まいばすけっと小石川植物園前店
- スギ薬局小石川1丁目店
- セブンイレブン 文京小石川4丁目店
- まいばすけっと春日2丁目店
グルメ
- すし銚子丸 小石川店
- ジョナサン 小石川柳町店
- 松屋 春日店
- モスバーガー 茗荷谷店
- 松屋 茗荷谷店(マイカリー食堂併設)
育児・教育
- 明照幼稚園
- 国立東京学芸大学教育学部附属竹早小学校
- 東京学芸大学附属竹早中学校
- 東京学芸大学附属幼稚園竹早園舎
- 文京区立柳町小学校
医療
- 一般財団法人慈愛病院
- 独立行政法人地域医療機能推進機構JCHO東京新宿メディカルセンター
- 東京健生病院
- 日本医科大学附属病院
- 日本歯科大学附属病院
公共施設・郵便局
- 小石川郵便局
- 文京区立小石川図書館
- 富坂警察署
- 小石川一郵便局
- 文京区立水道端図書館
公園
- 小日向公園
- 礫川公園
- 後楽公園
- 教育の森公園
- 小石川後楽園
利用可能な駅
- すべての駅
東京メトロ丸ノ内線
- 茗荷谷駅徒歩13分
都営三田線
- 春日駅徒歩13分
- 周辺情報は2023年07月21日時点のものになります。
- 周辺情報は、参考情報としてのみご利用ください(周辺情報は、株式会社LIFULLが地図情報の提供事業者から提供を受けた情報とLIFULL HOME'Sの物件情報に基づき、独自の方法で抽出し提供しているものです。周辺情報は、移転や閉鎖等により情報が最新ではない、または正しくない場合がありますが、地図情報の提供事業者から提供された情報をそのまま周辺情報として表示しているため、正確かつ最新の情報へ修正することができないことがあります。)
- 周辺情報は、株式会社LIFULLが掲載するものであり、不動産物件情報を掲載している不動産会社が掲載するものではありません
- 交通情報の一部については、株式会社LIFULLが掲載するものであり、不動産物件情報を掲載している不動産会社が掲載するものではない場合があります。交通情報に関する質問などは株式会社LIFULLにお問合せください













