LIFULL HOME'Sは物件鮮度No.1!※評価について
京阪本線 伏見桃山駅 徒歩2分
7万円/管理費等6,000円
16時間前 更新
画像一覧
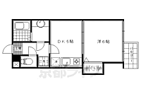
1/30間取り
間取
2/30外観
桃山の好立地物件です。
3/30外観
商店街が近く、買い物便利です。
4/30リビング/ダイニング
5/30リビング/ダイニング
6/30リビング/ダイニング
7/30リビング/ダイニング
8/30リビング/ダイニング
9/30キッチン
10/30キッチン
11/30キッチン
12/30キッチン
13/30キッチン
14/30キッチン
15/30浴室
16/30浴室
17/30トイレ
18/30洗面
19/30収納
20/30設備
21/30設備
22/30設備
23/30設備
24/30設備
25/30玄関
26/30玄関
27/30バルコニー
28/30その他
29/30その他
30/30周辺
ファミリーマートTSUTAYA桃山店まで50m 伏見桃山駅前のTSUTAYAの一階です。大手筋商店街もすぐ目の前
間取り
外観
外観
リビング/ダイニング
リビング/ダイニング
リビング/ダイニング
リビング/ダイニング
リビング/ダイニング
キッチン
キッチン
キッチン
キッチン
キッチン
キッチン
浴室
浴室
トイレ
洗面
収納
設備
設備
設備
設備
設備
玄関
玄関
バルコニー
その他
その他
周辺
LINEチャットでも 相談できます
お問合せ先 :株式会社京都ライフ 長岡店
仲介手数料割引
ご成約時仲介手数料家賃の50%(税別)に割引させていただきます。
- 利用条件
- 株式会社京都ライフ 長岡店で利用可
- 他特典との併用はできませんので、ご注意ください。
- ・法人契約、事業用物件は対象外 ・積水ハウス、大東建託の管理物件は対象外
利用方法
来店時に本特典の画面をスマートフォンやタブレットでスタッフに提示、または画面印刷した用紙を提示ください。
有効期限 なし
桃山駅近物件・ ワンサイズ上の駅・大手筋商店街近くのパリッとシングル。
物件のこだわり/設備・条件
新築(非該当)
2階以上の物件(該当)
南向き(非該当)
駐車場(非該当)
オートロック(該当)
エアコン(該当)
バス・トイレ別(該当)
追焚機能(非該当)
フローリング(該当)
ペット相談(非該当)
位置
角部屋入居条件
二人入居可キッチン/バス・トイレ
設備・サービス
オートロック、TVモニタ付インターホン、エアコン、シューズボックス、CS対応、BS対応、光ファイバー、公営水道、都市ガス、下水、フローリング、バルコニー、室内洗濯機置場、駐輪場ありその他
住まい探し特典あり備考
駅近とこの広さにご注目して下さい。室内は開放感のある広々したお部屋となっています。キッチンも2口コンロと料理が楽しくなるようなものとなっています。また、大手筋に近いのでお買い物も便利ですよ。是非一度ご覧下さい。京都の賃貸は京都ライフまでお待ちしております。ご質問、ご不明な点等がございましたらお気軽にお電話、メールにてお問い... 物件情報はもちろん京都のエリア情報まで幅広く対応させていただきます!
物件周辺の生活情報
学校
- 伏見板橋小学校(690m)
- 伏見中学校(810m)
買い物
- コンビニ(106m)
- スーパー(236m)
- ドラッグストア(100m)
その他施設
- 総合病院(690m)
- 銀行(75m)
- ホームセンターコーナン伏見大手筋店(962m)
交通
- 京阪本線 伏見桃山駅 徒歩2分
- 普通(停車)
- 区間急行(通過)
- 急行(通過)
- 特急(通過)
- 通勤準急・準急(停車)
- 快速特急 洛楽(通過)
- 通勤快急・快速急行(通過)
- 近鉄京都線 桃山御陵前駅 徒歩2分
- 普通(停車)
- 準急(停車)
- 急行(停車)
※急行等の停車駅情報について
急行等の停車駅に関するデータは、随時更新をしておりますが、最新の内容であることを保証するものではありません。
最新かつ正確な情報につきましては、各鉄道会社のウェブサイトにてご確認ください
物件周辺の口コミ
- 京都府京都市伏見区京町9丁目に住む人の口コミ30代男性
生活するには困ることが基本的に少ない。車を運転するにあたり、道幅が狭く運転しにくい点が気になる。
口コミを見る
この物件周辺に住む人の口コミ
口コミは、LIFULL HOME'Sが実際にこの物件の周辺に住む18歳~69歳の男女を対象に、WEBアンケート調査を実施しています。内容には回答者の主観的な表現が含まれる場合があるほか、事実と異なる場合もございます。ご了承ください。
- 京都府京都市伏見区京町9丁目に住む人の口コミ30代男性
- 生活するには困ることが基本的に少ない。車を運転するにあたり、道幅が狭く運転しにくい点が気になる。
- 京都府京都市伏見区京町9丁目に住む人の口コミ30代女性
- 近くに商店街があり生活に困らないし、歴史のある町並みもあり散歩するにも楽しい
- 京都府京都市伏見区京町9丁目に住む人の口コミ30代女性
- スーパーの数が多いので、色々な店に特売品などを買いに行けるから。家計が助かる。
- 京都府京都市伏見区京町9丁目に住む人の口コミ20代男性
- 緑が多いなど、自然が豊かとは言えないが、衣食住においては何不自由なく生活できる利便性の高い街である。交通アクセスに関しても、複数の鉄道やバスが通っており、通学やプライベートにおける移動もしやすい。
- 京都府京都市伏見区京町9丁目に住む人の口コミ30代男性
- 交通の便が良く、スーパーやお酒が飲める美味しいお店が多く、生活していくのに便利だから。
- 京都府京都市伏見区深草新門丈町に住む人の口コミ30代男性
- 総合的に見て交通の便がよく、治安はそこそこだが商業施設もあり不便をあまり感じないから
- 京都府京都市伏見区桃山町泰長老に住む人の口コミ30代女性
- 鉄道の駅が近くに3つあり、家から徒歩15分で商店街やスーパーに行けるので便利。家のすぐ近くにコンビニやスーパーがないのが不便。
- 京都府京都市伏見区深草佐野屋敷町に住む人の口コミ30代男性
- 歴史マニアでなくても地名が有名なので、レイシで必ず習うので出身地を聞かれると説明が楽なのがいい。
- 京都府京都市伏見区津知橋町に住む人の口コミ30代男性
- 車でも鉄道でも市内中心部や他府県に行くのに困らない、駅が近くにある。
- 京都府京都市伏見区紙子屋町に住む人の口コミ20代女性
- お店も充実しているし交通の便もいいが、大通りからはずれると街灯がなく暗い道が多い。
物件概要
- 建物構造
- RC(鉄筋コンクリート)
- 駐車場
- 無
- 総戸数
- 22戸
- 契約形態
- -
- 契約期間
- 2年間
- 更新料
- 70,000円
- その他費用
- 室内清掃費用:22,000円、スマイルパック:20,000円
- 保証会社
加入要
保証会社:グリーン保証
保証会社利用料:初回:月額賃料等の50%、更新時:月額賃料等の50%(初回保証料および更新保証料ともに最低保証料22000円)
- 住宅保険
- 要
- 管理
- 管理員:巡回
- LIFULL HOME'S
物件番号 - 0100861-0211097
- 自社管理番号
- 14150-401-08
- 取引態様
- 仲介
- 会社名
- 株式会社京都ライフ 長岡店
営業スタッフコメント

株式会社京都ライフ 長岡店マネージャー
池田泰雅
貴方の希望の物件必ず見つけます。
業界経験10年
資格宅地建物取引士、少額短期保険募集人
- 会社実績や特徴・サービス情報
- 当店は長岡京市を中心に向日市、大山崎町、久世、羽束師と周辺地域全ての物件情報を網羅していると自負しております。豊富な物件情報はもちろん、エリア情報に至るまで「お客様第一主義」の心でサポートさせて頂きますので、ご来店いただけば「満足のいく1日」を提供させて頂けると確信しております。来客用ガレージ・キッズスペースをご用意しておりますので、お気軽にご来店下さい。 創業40年、地域密着に拘らせて頂いた京都最大級の物件情報をもとに、誠心誠意、ご満足頂けるお部屋をご紹介させて頂きます。 お部屋を探しは京都ライフ 長岡店へ、お気軽にお立ち寄りください。
当店は長岡京市を中心に向日市、大山崎町、久世、羽束師と周辺地域全ての物件情報を網羅していると自負しております。豊富な物件情報はもちろん、エリア情報に至るまで「お客様第一主義」の心でサポートさせて頂きますので、ご来店いただけば「満足のいく1日」を提供させて頂けると確信しております。来客用ガレージ・キッズスペースをご用意しておりますので、お気軽にご来店下さい。 創業40年、地域密着に拘らせて頂いた京都最大級の物件情報をもとに、誠心誠意、ご満足頂けるお部屋をご紹介させて頂きます。 お部屋を探しは京都ライフ 長岡店へ、お気軽にお立ち寄りください。
- 電話でお問合せ(通話無料)
お問合せ先 :株式会社京都ライフ 長岡店
不動産会社情報
京都のお部屋探しでしたら創業40年、京都を知り尽くしている京都ライフにお任せ下さい。
- 店舗の特徴
- 賃貸管理業務
- 24時間管理物件取扱い
- リフォーム対応
- 引越し業者紹介可
- 年中無休
- 保証人不要な物件あり
- 法人契約取扱い
- 駅から歩いて3分以内
電話でお問合せお客様の電話番号は不動産会社には通知されません
- 不動産会社に
つながります
お客様の電話番号は不動産会社に通知されません
- ※光IP電話、及びIP電話からはご利用になれません
- ※お電話によるお問合せは、店舗営業時間内にお願いします。つながらない場合は、お問合せフォームよりお問合せください
- ※不動産会社がお電話に出られなかった場合、お問合せいただいた後に不動産会社より折り返しのお電話がある場合がございます(お客様が非通知設定した場合は対象外です)
- ※株式会社LIFULLは電話会社が提供するサービスを介してお客様の発信者番号を受領後、折り返し専用の電話番号を発番してお問合せの不動産会社に通知します(お客様の発信者番号がお問合せの不動産会社に通知されることはございません)
- ※携帯電話からお問合せいただいた方に対し、株式会社LIFULLは電話会社が提供するメッセ―ジサービスを介してお客様の発信者番号を受領後、ショートメッセージ(SMS)またはLINE通知メッセージによるお問合せ内容に関する通知をお届けする場合があります
- ※お客様が通話中に不動産会社にお伝えになったお客様の個人情報及び、電話会社が発番する折り返し専用の電話番号は、お問合せ先不動産会社が資料送付・電子メール送信・電話連絡などの目的で保管する可能性があります。お問合せ先不動産会社が保管する個人情報の取扱いについては、各不動産会社に直接お問合せください
- ※株式会社LIFULLでは本サービスを円滑に運用するために、お客様の発信者番号をサービスご利用の控えとして一定期間保管いたします
- ※上記および株式会社LIFULLの個人情報の取扱い方針に同意のうえ、お電話ください
【LIFULL HOME'S物件番号】0100861-0211097【自社管理番号】14150-401-08
初期費用・月額費用をあわせて確認!この物件に住んだときの費用めやす
めやすを見るこの物件に住んだときの費用めやす
- 初期費用
- 月額費用
- 追加費用※ご確認ください
追加で費用が
かかる場合があります
必ずご確認ください
初期費用めやす約0円
追加で費用がかかります(※)敷金
0
- 礼金
70,000
賃料+共益費・管理費の1ヶ月分として換算
賃料の1ヶ月分+税として換算。不動産会社によって金額が異なるため正確な金額は不動産会社にお問合せください
※追加費用もチェック!
これらの項目以外にも費用がかかる場合があります。正確な金額は不動産会社にお問合せください。
- 初期費用
- 鍵交換費:不動産会社に要確認
- 室内清掃費:22,000円
- 火災保険費:不動産会社に要確認
- その他
- スマイルパック:20000円
- 保証会社
- 初回:月額賃料等の50%、更新時:月額賃料等の50%(初回保証料および更新保証料ともに最低保証料22000円)
不動産会社より
桃山駅近物件・ ワンサイズ上の駅・大手筋商店街近くのパリッとシングル。
駅近とこの広さにご注目して下さい。室内は開放感のある広々したお部屋となっています。キッチンも2口コンロと料理が楽しくなるようなものとなっています。また、大手筋に近いのでお買い物も便利ですよ。是非一度ご覧下さい。京都の賃貸は京都ライフまでお待ちしております。ご質問、ご不明な点等がございましたらお気軽にお電話、メールにてお問い... 物件情報はもちろん京都のエリア情報まで幅広く対応させていただきます!
- 保存する
- 共有する
- ※各種情報と現状に差異がある場合は、現状優先となります
- ※不動産会社が入力した情報を基に物件の位置を表示しています。詳しくは不動産会社までお問合せください
- ※不動産会社の方からの上記電話番号によるお問合せはお断りしております。こちら不動産会社詳細からお問合せください
- ※LIFULL HOME'Sは物件鮮度No.1を目指していきます。閲覧中の物件が「成約済である」「実際の物件情報と異なる点がある」などの場合、「掲載110番」からお問合せください
- ※QRコードは株式会社デンソーウェーブの登録商標です
したい暮らしのタグから探す
この物件を取扱う他の会社
LIFULL HOME'Sでは、主要項目が同一の物件をまとめて表示しています。所在地や営業時間、掲載画像等から不動産会社を選んでお問合せください。
LIFULL HOME'S 地図・周辺情報
買い物
- ファミリーマート 伏見桃山駅前店
- フレスコ 桃山店
- マツモトキヨシ京阪伏見桃山駅店
- ローソン 伏見京町二丁目店
- ダイソー京阪伏見桃山駅前ビル店
グルメ
- コメダ珈琲店伏見桃山駅前店
- ドトールコーヒーショップ伏見桃山駅前店
- ミスタードーナツ 伏見大手筋ショップ
- マクドナルド 伏見桃山店
- なか卯 伏見桃山店
育児・教育
- 桃山幼稚園
- 京都市立伏見南浜小学校
- 京都市立桃陵中学校
- 桃陵乳児保育園
- 国立京都教育大学教育学部附属桃山小学校
医療
- 社会福祉法人浩照会伏見桃山総合病院
- 社会医療法人弘仁会大島病院
- 社会医療法人岡本病院(財団)伏見岡本病院
- 特定医療法人桃仁会桃仁会病院
- 医療法人健幸会むかいじま病院
公共施設・郵便局
- 伏見桃山郵便局
- 京都市伏見中央図書館
- 京都市伏見区役所
- 京都京町郵便局
- 京都市向島図書館
公園
- 三栖公園
- 宇治川公園
- 伏見桃山城運動公園
- 伏見北堀公園
- 下鳥羽公園
利用可能な駅
- 徒歩10分以内
京阪本線
- 伏見桃山駅徒歩2分
- 丹波橋駅徒歩9分
近鉄京都線
- 桃山御陵前駅徒歩2分
- 近鉄丹波橋駅徒歩9分
JR奈良線
- 桃山駅徒歩9分
- すべての駅
京阪宇治線
- 観月橋駅徒歩13分
- 桃山南口駅徒歩28分
- 六地蔵駅3.1km
- 木幡駅3.7km
京阪本線
- 中書島駅徒歩16分
- 墨染駅徒歩25分
- 藤森駅徒歩36分
近鉄京都線
- 伏見駅徒歩21分
- 向島駅徒歩31分
- 竹田駅3.2km
JR奈良線
- JR藤森駅徒歩32分
- 六地蔵駅3.3km
- 周辺情報は2023年07月21日時点のものになります。
- 周辺情報は、参考情報としてのみご利用ください(周辺情報は、株式会社LIFULLが地図情報の提供事業者から提供を受けた情報とLIFULL HOME'Sの物件情報に基づき、独自の方法で抽出し提供しているものです。周辺情報は、移転や閉鎖等により情報が最新ではない、または正しくない場合がありますが、地図情報の提供事業者から提供された情報をそのまま周辺情報として表示しているため、正確かつ最新の情報へ修正することができないことがあります。)
- 周辺情報は、株式会社LIFULLが掲載するものであり、不動産物件情報を掲載している不動産会社が掲載するものではありません
- 交通情報の一部については、株式会社LIFULLが掲載するものであり、不動産物件情報を掲載している不動産会社が掲載するものではない場合があります。交通情報に関する質問などは株式会社LIFULLにお問合せください
















