LIFULL HOME'Sは物件鮮度No.1!※評価について
スカイコート 11階/1101
7.8万円/管理費等7,000円
2日前 更新
画像一覧
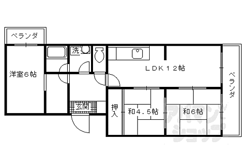
1/30間取り
2/30外観
3/30外観
4/30外観
5/30外観
6/30外観
7/30リビング/ダイニング
8/30室内
9/30キッチン
10/30浴室
11/30トイレ
12/30洗面
13/30収納
14/30設備
15/30玄関
16/30エントランス
17/30駐車場
18/30その他
19/30その他
20/30その他
21/30その他
22/30その他
23/30その他
24/30その他
25/30その他
26/30その他
27/30その他
28/30周辺
その他周辺施設
29/30周辺
その他周辺施設
30/30周辺
間取り
外観
外観
外観
外観
外観
リビング/ダイニング
室内
キッチン
浴室
トイレ
洗面
収納
設備
玄関
エントランス
駐車場
その他
その他
その他
その他
その他
その他
その他
その他
その他
その他
周辺
周辺
周辺
お問合せ先 :アパマンショップ南郷7丁目店 株式会社 estateQ
仲介手数料割引
HOMESよりお問い合わせ頂いたお客様に限り「仲介手数料最大50%割引」実施中!
- 利用条件
- アパマンショップ南郷7丁目店 株式会社 estateQで利用可
- 他特典との併用可
利用方法
来店時に本特典の画面をスマートフォンやタブレットでスタッフに提示、または画面印刷した用紙を提示ください。
有効期限 2026年04月30日まで
★当店ではオンライン通話によるご案内が可能でございます★
基本情報
不動産用語- 賃料
- 7.8万円
- 管理費等
- 7,000円
初期費用などお気軽にお問合せください
- 敷金/礼金
- 1ヶ月/無
- 保証金/敷引・償却金
- -/-
- 交通
札幌市営東西線 南郷13丁目駅 徒歩6分
札幌市営東西線 南郷7丁目駅 徒歩17分
札幌市営地下鉄東西線 南郷18丁目駅 徒歩20分
- 所在地
北海道札幌市白石区本通13丁目南
地図を見る- 築年月
- 2007年3月(築19年)
- 主要採光面
- 南東
- 専有面積
- 59.98㎡
- バルコニー面積
- -
- 所在階/階数
- 11階/13階建
- 現況
- -
- 入居可能時期
- 即時

人気物件はすぐに埋まってしまいます。
気になったらお早めにお問合せください。
- 情報公開日
2025/11/01
22日前 公開
- 情報更新日
2025/11/21
2日前 更新
- 次回更新
予定日 - 2025/11/28
物件のこだわり/設備・条件
新築(非該当)
2階以上の物件(該当)
南向き(非該当)
駐車場(非該当)
オートロック(該当)
エアコン(該当)
バス・トイレ別(該当)
追焚機能(非該当)
フローリング(該当)
ペット相談(非該当)
入居条件
ルームシェア不可、保証人不要、即入居可キッチン/バス・トイレ
設備・サービス
オートロック、TVモニタ付インターホン、石油暖房、エアコン、トランクルーム、クローゼット、BS対応、光ファイバー、都市ガス、フローリング、バルコニー、室内洗濯機置場、照明器具付き、エレベーター、宅配ボックス、駐輪場ありその他
住まい探し特典あり備考
[退去時費用 退去費用実費精算※故意・過失等別途実費] 暖房あり
物件周辺の生活情報
学校
- 東白石小学校(319m)
- 東白石中学校(587m)
買い物
- コンビニ(132m)
- スーパー(240m)
その他施設
- 総合病院(194m)
交通
- 札幌市営東西線 南郷13丁目駅 徒歩6分
- 普通(停車)
- 札幌市営東西線 南郷7丁目駅 徒歩17分
- 普通(停車)
※急行等の停車駅情報について
急行等の停車駅に関するデータは、随時更新をしておりますが、最新の内容であることを保証するものではありません。
最新かつ正確な情報につきましては、各鉄道会社のウェブサイトにてご確認ください
物件周辺の口コミ
- 北海道札幌市白石区本通に住む人の口コミ60代男性
地下鉄の駅が近く道路も主要な道路が複数通っている。また近年、コンビニやホームセンター、飲食店などが徒歩圏内に複数新設されとても便利の良い地域になっている。
口コミを見る
この物件周辺に住む人の口コミ
口コミは、LIFULL HOME'Sが実際にこの物件の周辺に住む18歳~69歳の男女を対象に、WEBアンケート調査を実施しています。内容には回答者の主観的な表現が含まれる場合があるほか、事実と異なる場合もございます。ご了承ください。
- 北海道札幌市白石区本通に住む人の口コミ60代男性
- 地下鉄の駅が近く道路も主要な道路が複数通っている。また近年、コンビニやホームセンター、飲食店などが徒歩圏内に複数新設されとても便利の良い地域になっている。
- 北海道札幌市白石区本通に住む人の口コミ40代女性
- 他の街に住んだ経験がないので比較が難しいが、それほど困ったことはないので
- 北海道札幌市白石区本通に住む人の口コミ50代女性
- スーパーはあるが市場がクローズしてしまい、買い物をする店舗が限られてしまった。区役所の移転に伴い地下鉄への接続バスの本数が激減した。歩道がガタガタで歩きづらい。
- 北海道札幌市白石区本通に住む人の口コミ30代女性
- 交通の便が良いので街中心部に行くのも楽だし、周囲に買い物ができるスーパーやコンビニが近いので便利なため。
- 北海道札幌市白石区本通に住む人の口コミ30代女性
- 治安が良く、買い物もしやすい。バスや地下鉄など複数の交通機関が選べる。
- 北海道札幌市白石区南郷通に住む人の口コミ60代男性
- 街トータルで見ると札幌なのて何でもあるが、こと…徒歩圏内で見ると、気軽にサンダル履きで行ける飲食店から遠い。ラーメン屋、焼肉屋、居酒屋、寿司屋等、500メートル圏内にはない。
- 北海道札幌市白石区南郷通に住む人の口コミ60代女性
- 緑が多く、買い物ついでにちょこっと散歩するのに良い場所があるから
- 北海道札幌市白石区本通に住む人の口コミ50代女性
- スーパー、病院、交通機関、すべて徒歩圏内にあるから、生活しやすい。
- 北海道札幌市白石区南郷通に住む人の口コミ30代女性
- 家賃相場高めで治安が良く多様な病院があるので羨ましいと言われる。またスイーツやバルなど色んなご飯屋もある。結構評判が良く個人的には経験は無いが、徒歩圏内で色んな店を楽しめるのはいいと思う。
- 北海道札幌市豊平区月寒東五条に住む人の口コミ40代女性
- 綺麗な桜並木があり遊歩道がある。近くに品揃え豊富なスーパーや24時間営業のスーパーがあり、コンビニも多数。しかし街灯が少なく夜道は暗い。
物件概要
- 建物構造
- RC(鉄筋コンクリート)
- 駐車場
- 無
- 総戸数
- 55戸
- 契約形態
- -
- 契約期間
- 2年間
- 更新料
- -
- その他費用
- 町会費:300円、室内清掃費用/ストーブ分解清掃費用/エアコン清掃費:85,800円、24時間管理費用:1,100円
- 保証会社
加入要
保証会社:オリコフォレントインシュア
保証会社利用料:初回保証料 賃料合計の50%・更新料無・月額手数料1.5%
- 住宅保険
- 要
- 管理
- -
- LIFULL HOME'S
物件番号 - 3104064-0120771
- 自社管理番号
- apss69128051
- 取引態様
- 仲介
- 会社名
- アパマンショップ南郷7丁目店 株式会社 estateQ
営業スタッフコメント

アパマンショップ南郷7丁目店 株式会社 estateQ店長
尾崎浩平
不動産に関わることは何でもご相談ください!!
業界経験12年
資格宅地建物取引士、少額短期保険募集人、賃貸不動産経営管理士
- 会社実績や特徴・サービス情報
- 札幌市白石区はもちろん、札幌市内のお部屋探しお任せ下さい。 又、お部屋探しの他にもお引越しのお悩みや生活のご不安事なども私たちがしっかりサポートさせて頂きます。
札幌市白石区はもちろん、札幌市内のお部屋探しお任せ下さい。 又、お部屋探しの他にもお引越しのお悩みや生活のご不安事なども私たちがしっかりサポートさせて頂きます。
- 電話でお問合せ(通話無料)
お問合せ先 :アパマンショップ南郷7丁目店 株式会社 estateQ
不動産会社情報
アパマンショップ南郷7丁目店 株式会社 estateQ

北海道札幌市白石区南郷通7丁目南5-10メソンカルディア1階
札幌市営東西線 南郷7丁目駅 徒歩1分
- 営業時間
- 09:00~18:00((営業時間外は予約制でご対応可能))
- 定休日
- -
優良店認定
札幌市内のお部屋は他社さんでお取り扱いのお部屋でもすべてご紹介可能です!!札幌市白石区はもちろん、札幌市内のお部屋探しは全てお任せ下さい。
- 店舗の特徴
- 賃貸管理業務
- 24時間管理物件取扱い
- リフォーム対応
- 引越し業者紹介可
- 駐車場あり
- 社宅・寮物件取扱い
- 保証人不要な物件あり
- 法人契約取扱い
- 女性スタッフ対応可
- 駅から歩いて3分以内
電話でお問合せお客様の電話番号は不動産会社には通知されません
- 不動産会社に
つながります
お客様の電話番号は不動産会社に通知されません
- ※光IP電話、及びIP電話からはご利用になれません
- ※お電話によるお問合せは、店舗営業時間内にお願いします。つながらない場合は、お問合せフォームよりお問合せください
- ※不動産会社がお電話に出られなかった場合、お問合せいただいた後に不動産会社より折り返しのお電話がある場合がございます(お客様が非通知設定した場合は対象外です)
- ※株式会社LIFULLは電話会社が提供するサービスを介してお客様の発信者番号を受領後、折り返し専用の電話番号を発番してお問合せの不動産会社に通知します(お客様の発信者番号がお問合せの不動産会社に通知されることはございません)
- ※携帯電話からお問合せいただいた方に対し、株式会社LIFULLは電話会社が提供するメッセ―ジサービスを介してお客様の発信者番号を受領後、ショートメッセージ(SMS)またはLINE通知メッセージによるお問合せ内容に関する通知をお届けする場合があります
- ※お客様が通話中に不動産会社にお伝えになったお客様の個人情報及び、電話会社が発番する折り返し専用の電話番号は、お問合せ先不動産会社が資料送付・電子メール送信・電話連絡などの目的で保管する可能性があります。お問合せ先不動産会社が保管する個人情報の取扱いについては、各不動産会社に直接お問合せください
- ※株式会社LIFULLでは本サービスを円滑に運用するために、お客様の発信者番号をサービスご利用の控えとして一定期間保管いたします
- ※上記および株式会社LIFULLの個人情報の取扱い方針に同意のうえ、お電話ください
【LIFULL HOME'S物件番号】3104064-0120771【自社管理番号】apss69128051
オンライン対応
オンライン内見・オンライン相談・IT重説に対応している物件です

「オンライン内見」「オンライン相談」「IT重説」とは?
物件の内見や不動産会社スタッフとの相談、契約前の重要事項説明をオンライン(ビデオ通話)で行うことができるサービスです。
オンライン内見
ビデオ通話で現地(物件)にいる不動産会社スタッフと映像・音声を使ってリアルタイムで会話しながら内見ができます。
オンライン相談
「物件について聞きたいことがある」など不動産会社スタッフへの相談もビデオ通話で行うことができます。
IT重説
契約前の重要事項説明(重説)をビデオ通話で行うことができます。
利用時の注意事項
- ビデオ通話については各不動産会社指定のものとなります。
- ビデオ通話利用時には通信が発生します。従量課金制通信サービスや通信量に上限があるネット回線・プランを利用する場合は、通信量にご注意ください。
- 通信速度やアプリの設定によってはビデオ通話の画質が低下することがあります。安定した画質で利用するためにも、Wi-Fi環境下での利用を推奨します。
- ご利用のビデオ通話アプリによっては、対象のOSやブラウザに制限がある場合があります。詳しくはお問合せ先不動産会社にご確認ください。
初期費用・月額費用をあわせて確認!この物件に住んだときの費用めやす
めやすを見るこの物件に住んだときの費用めやす
- 初期費用
- 月額費用
- 追加費用※ご確認ください
追加で費用が
かかる場合があります
必ずご確認ください
初期費用めやす約0円
追加で費用がかかります(※)敷金
78,000
- 礼金
0
賃料+共益費・管理費の1ヶ月分として換算
賃料の1ヶ月分+税として換算。不動産会社によって金額が異なるため正確な金額は不動産会社にお問合せください
※追加費用もチェック!
これらの項目以外にも費用がかかる場合があります。正確な金額は不動産会社にお問合せください。
- 初期費用
- 鍵交換費:不動産会社に要確認
- 室内清掃費:不動産会社に要確認
- 火災保険費:不動産会社に要確認
- その他
- 町会費:300円
- 室内清掃費用/ストーブ分解清掃費用/エアコン清掃費:85800円
- 24時間管理費用:1100円
- 保証会社
- 初回保証料 賃料合計の50%・更新料無・月額手数料1.5%
不動産会社より
★当店ではオンライン通話によるご案内が可能でございます★
[退去時費用 退去費用実費精算※故意・過失等別途実費] 暖房あり
- 保存する
- 共有する
- ※各種情報と現状に差異がある場合は、現状優先となります
- ※不動産会社が入力した情報を基に物件の位置を表示しています。詳しくは不動産会社までお問合せください
- ※不動産会社の方からの上記電話番号によるお問合せはお断りしております。こちら不動産会社詳細からお問合せください
- ※LIFULL HOME'Sは物件鮮度No.1を目指していきます。閲覧中の物件が「成約済である」「実際の物件情報と異なる点がある」などの場合、「掲載110番」からお問合せください
- ※QRコードは株式会社デンソーウェーブの登録商標です
したい暮らしのタグから探す
この物件を取扱う他の会社
LIFULL HOME'Sでは、主要項目が同一の物件をまとめて表示しています。所在地や営業時間、掲載画像等から不動産会社を選んでお問合せください。
アパマンショップ札幌美園店 株式会社 Attention House
優良店認定
北海道札幌市豊平区美園八条7丁目1-1美園駅前ビル 1F
札幌市営東豊線 美園駅 徒歩1分
- 営業時間
- 09:00~19:00((※時間外対応可能))
- 定休日
- 不定休
アパマンショップ南郷18丁目店 株式会社 ネクストエール
優良店認定
北海道札幌市白石区南郷通18丁目南4-10カンダビル1F
札幌市営東西線 南郷18丁目駅 徒歩1分
- 営業時間
- 09:30~18:00((営業時間外は予約制でご対応可能))
- 定休日
- 無し
アパマンショップ新さっぽろ店 株式会社 三光不動産
優良店認定
北海道札幌市厚別区厚別中央二条5丁目3-36
札幌市営東西線 新さっぽろ駅 徒歩1分
- 営業時間
- 09:30~18:00((事前ご予約で18時以降対応可能))
- 定休日
- 11月6.13.20日
株式会社常口アトム 白石駅前店
優良店認定
北海道札幌市白石区南郷通1丁目北1番19号 This-1ビル1F
札幌市営東西線 白石駅 徒歩1分
- 営業時間
- 10:00~18:30
- 定休日
- 年末年始・毎週水曜日(1〜3月を除く)
株式会社常口アトム 南郷18丁目駅前店
優良店認定
北海道札幌市白石区南郷通18丁目北7−17 谷口ビル1F
札幌市営東西線 南郷18丁目駅 徒歩1分
- 営業時間
- 10:00~18:30
- 定休日
- 定休日あり:毎週水曜日(1月〜3月除く)
最近見た賃貸物件
LIFULL HOME'S 地図・周辺情報
買い物
- セイコーマート本通14丁目店
- ダイイチ 白石神社前店
- サツドラ白石本通店
- セブンイレブン 札幌本郷店
- まいばすけっと南郷13丁目駅前店
グルメ
- から好し札幌白石本通店
- バーミヤン 札幌白石本通店
- スシロー 札幌白石店
- はなまるうどん 札幌南郷店
- なか卯 札幌白石本通店
育児・教育
- 東白石雪ん子保育園
- 札幌市立東白石小学校
- 札幌市立東白石中学校
- ポピンズナーサリースクール札幌白石
- 札幌市立平和通小学校
医療
- 社会医療法人恵佑会第2病院
- 社会医療法人恵佑会札幌病院
- 社会医療法人医翔会札幌白石記念病院
- 医療法人社団豊武会幌東病院
- 日本医療大学病院
公共施設・郵便局
- 白石本通郵便局
- 札幌市白石区民センター図書室
- 札幌市白石区役所
- 白石南郷郵便局
- 白石本郷郵便局
公園
- 白石東公園
- 平和通公園
- 万生公園
- 東月寒公園
- 白石東冒険公園
利用可能な駅
- 徒歩10分以内
札幌市営東西線
- 南郷13丁目駅徒歩6分
- すべての駅
札幌市営東西線
- 南郷7丁目駅徒歩17分
- その他交通
- 札幌市営地下鉄東西線 南郷18丁目駅 徒歩20分
- 周辺情報は2023年07月21日時点のものになります。
- 周辺情報は、参考情報としてのみご利用ください(周辺情報は、株式会社LIFULLが地図情報の提供事業者から提供を受けた情報とLIFULL HOME'Sの物件情報に基づき、独自の方法で抽出し提供しているものです。周辺情報は、移転や閉鎖等により情報が最新ではない、または正しくない場合がありますが、地図情報の提供事業者から提供された情報をそのまま周辺情報として表示しているため、正確かつ最新の情報へ修正することができないことがあります。)
- 周辺情報は、株式会社LIFULLが掲載するものであり、不動産物件情報を掲載している不動産会社が掲載するものではありません
- 交通情報の一部については、株式会社LIFULLが掲載するものであり、不動産物件情報を掲載している不動産会社が掲載するものではない場合があります。交通情報に関する質問などは株式会社LIFULLにお問合せください





























