LIFULL HOME'Sは物件鮮度No.1!※評価について
京阪京津線 四宮駅 徒歩8分
5万円/管理費等5,500円
20時間前 更新
画像一覧
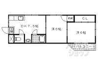
1/30間取り
間取
2/30外観
3/30外観
4/30リビング/ダイニング
5/30リビング/ダイニング
6/30リビング/ダイニング
7/30リビング/ダイニング
8/30リビング/ダイニング
9/30リビング/ダイニング
10/30リビング/ダイニング
11/30室内
12/30室内
13/30キッチン
14/30キッチン
15/30キッチン
16/30キッチン
17/30キッチン
18/30キッチン
19/30浴室
20/30浴室
21/30トイレ
22/30洗面
23/30洗面
24/30収納
25/30設備
26/30玄関
27/30バルコニー
28/30その他
29/30その他
30/30周辺
フレスコ 四ノ宮店まで181m
間取り
外観
外観
リビング/ダイニング
リビング/ダイニング
リビング/ダイニング
リビング/ダイニング
リビング/ダイニング
リビング/ダイニング
リビング/ダイニング
室内
室内
キッチン
キッチン
キッチン
キッチン
キッチン
キッチン
浴室
浴室
トイレ
洗面
洗面
収納
設備
玄関
バルコニー
その他
その他
周辺
お問合せ先 :アパマンショップ伏見店 ウインズリンク株式会社
引越し料金割引
提携引越し業者あり、無料で見積もり・割引などもございます。
- 利用条件
- アパマンショップ伏見店 ウインズリンク株式会社で利用可
- 他特典との併用可
利用方法
来店時に本特典の画面をスマートフォンやタブレットでスタッフに提示、または画面印刷した用紙を提示ください。
有効期限 なし
山科四宮エリアより・ 最寄りは京阪四宮駅 JR山科駅へも徒歩圏内・
物件のこだわり/設備・条件
新築(非該当)
2階以上の物件(非該当)
南向き(該当)
駐車場(非該当)
オートロック(非該当)
エアコン(非該当)
バス・トイレ別(該当)
追焚機能(非該当)
フローリング(該当)
ペット相談(非該当)
入居条件
二人入居可、即入居可キッチン/バス・トイレ
設備・サービス
光ファイバー、公営水道、都市ガス、下水、フローリング、バルコニー、南面バルコニー、バイク置き場あり、駐輪場ありその他
住まい探し特典あり備考
最寄りは京阪四宮駅 JR山科駅へも徒歩圏内・JR沿線がいいけどちょっと高いなあ・・・というそこのあなた ちょっとだけ離れてこちらの物件いかがでしょうか お部屋は使いやすい2DKタイプ・このお家賃帯でなんとインターネットも無料です・周辺は閑静な住宅街で静かで過ごしやすい環境が整っています・最寄りスーパーのフレスコは歩いて3分・少しでも気になる方はお気軽にアパマンショップ山科までお問合せ下さいませ・
物件周辺の生活情報
学校
- 音羽小学校(1,000m)
- 音羽中学校(1,400m)
買い物
- コンビニ(656m)
- スーパー(181m)
その他施設
- 総合病院(559m)
- 銀行(495m)
- ケーヨーD2(デイツー)西野山店(1,500m)
交通
- 京阪京津線 四宮駅 徒歩8分
- 普通(停車)
- JR東海道・山陽本線 山科駅 徒歩15分
- 普通(停車)
- 新快速(停車)
- 快速(停車)
- 緩行電車(停車)
- 特別快速(通過)
- 区間快速(通過)
※急行等の停車駅情報について
急行等の停車駅に関するデータは、随時更新をしておりますが、最新の内容であることを保証するものではありません。
最新かつ正確な情報につきましては、各鉄道会社のウェブサイトにてご確認ください
物件周辺の口コミ
- 京都府京都市山科区小山鎮守町に住む人の口コミ60代女性
田舎の様なのんびりとした所と都会の便利なところの両方があり住むには満足しています。
口コミを見る
この物件周辺に住む人の口コミ
口コミは、LIFULL HOME'Sが実際にこの物件の周辺に住む18歳~69歳の男女を対象に、WEBアンケート調査を実施しています。内容には回答者の主観的な表現が含まれる場合があるほか、事実と異なる場合もございます。ご了承ください。
- 京都府京都市山科区小山鎮守町に住む人の口コミ60代女性
- 田舎の様なのんびりとした所と都会の便利なところの両方があり住むには満足しています。
- 京都府京都市山科区音羽前田町に住む人の口コミ60代男性
- 一昔前は治安が悪い地域と言われていたが、近年は随分と改善された。昔からの農家が多いので、静かに暮らせる。
- 京都府京都市山科区安朱馬場ノ東町に住む人の口コミ30代女性
- 交通の便がよく、スーパーもあるがスーパーの閉店時間が8時と早い。
- 京都府京都市山科区四ノ宮鎌手町に住む人の口コミ40代男性
- 交通の便が良い。鉄道も複数の路線が選べ、車等の移動も極めて便利だから。
- 京都府京都市山科区竹鼻立原町に住む人の口コミ50代女性
- 必要最低限のものが揃っている。最寄り駅がハブ駅なので、どこに行くにも便利。総合病院が二つも近くにある
- 京都府京都市山科区安朱馬場ノ東町に住む人の口コミ60代男性
- 複数の鉄道駅が近い。インターも近く、移動しやすい。ショップも近く、便利。その上、閑静な住宅街。
- 京都府京都市山科区安朱馬場ノ西町に住む人の口コミ50代男性
- 自然環境が肌で感じられるが近くに川もあるせいか虫が多い、週末暴走車の爆音に悩まされるのがあまり無い、町に出かけるのに公共交通機関がやや不便。
- 京都府京都市山科区安朱南屋敷町に住む人の口コミ40代女性
- 交通の便がよい。普段の買い物には困らない程度の、スーパー・ホームセンター・インテリアショップ・病院・コンビニ・飲食店がある。
- 滋賀県大津市稲葉台に住む人の口コミ40代女性
- 車で外出する際、道もあまり混まない。高速のインターチェンジがそばにある。
- 京都府京都市山科区竹鼻西ノ口町に住む人の口コミ30代女性
- 近くにJR、地下鉄、バスなど公共交通機関が整っており、スーパー、病院、コンビニなどが、家から歩いていける場所にある。治安が悪いと感じたことはないし、騒音もならない。
物件概要
- 建物構造
- RC(鉄筋コンクリート)
- 駐車場
- 無
- 総戸数
- 21戸
- 契約形態
- -
- 契約期間
- 2年間
- 更新料
- 新賃料の1ヶ月分
- その他費用
- 室内清掃費用:55,000円、LIFE SUPPORT:1,100円
- 保証会社
加入要
保証会社:あんしんプラス
保証会社利用料:初回:月額賃料等の40%、月額:支払い手数料880円、更新時:月額賃料等の20%/2年
- 住宅保険
- 要
- 管理
- -
- LIFULL HOME'S
物件番号 - 0116811-0163889
- 自社管理番号
- 0A684-105-67
- 取引態様
- 専属専任媒介
- 会社名
- アパマンショップ伏見店 ウインズリンク株式会社
営業スタッフコメント

アパマンショップ伏見店 ウインズリンク株式会社
森井大樹
伏見区はもちろん京都市からその近郊まで全てお任せ下さい!
業界経験1年
- 会社実績や特徴・サービス情報
- アパマンショップ伏見店は京阪本線伏見桃山駅と近鉄京都線桃山御陵駅の間に位置し、営業時間は9:30〜19:00となっております。 営業マンは親切・丁寧をモットーとし、お客様が喜んでいただけるのが営業マンの励みです。 伏見区や宇治市の住環境、車や電車等の交通便や利便性など、エリアの特性はお任せください。みなさん気になる「実際のところ」をお伝えいたします。 そして納得いくまでお部屋探し、お付き合いいたします。 ぜひ、気軽に立ち寄ってみてください。
アパマンショップ伏見店は京阪本線伏見桃山駅と近鉄京都線桃山御陵駅の間に位置し、営業時間は9:30〜19:00となっております。 営業マンは親切・丁寧をモットーとし、お客様が喜んでいただけるのが営業マンの励みです。 伏見区や宇治市の住環境、車や電車等の交通便や利便性など、エリアの特性はお任せください。みなさん気になる「実際のところ」をお伝えいたします。 そして納得いくまでお部屋探し、お付き合いいたします。 ぜひ、気軽に立ち寄ってみてください。
- 電話でお問合せ(通話無料)
お問合せ先 :アパマンショップ伏見店 ウインズリンク株式会社
不動産会社情報
アパマンショップ伏見店 ウインズリンク株式会社アパマンショップ伏見店
京都府京都市伏見区京町3丁目170-1 岸和田ビル 1階
京阪本線 伏見桃山駅 徒歩1分
- 営業時間
- 09:30~19:00
- 定休日
- なし(盆休み8/13〜8/16・年末年始12/27〜1/4)
京阪本線「伏見桃山」駅から東へ徒歩1分。近鉄京都線「桃山御陵前」駅から西へ徒歩1分。伏見区でお部屋をお探しならアパマンショップ伏見店へ一度ご来店下さい。
- 店舗の特徴
- 賃貸管理業務
- 引越し業者紹介可
- 年中無休
- 駐車場あり
- 社宅・寮物件取扱い
- オンライン相談可
- 保証人不要な物件あり
- 法人契約取扱い
- 19時以降も営業
- 駅から歩いて3分以内
電話でお問合せお客様の電話番号は不動産会社には通知されません
- 不動産会社に
つながります
お客様の電話番号は不動産会社に通知されません
- ※光IP電話、及びIP電話からはご利用になれません
- ※お電話によるお問合せは、店舗営業時間内にお願いします。つながらない場合は、お問合せフォームよりお問合せください
- ※不動産会社がお電話に出られなかった場合、お問合せいただいた後に不動産会社より折り返しのお電話がある場合がございます(お客様が非通知設定した場合は対象外です)
- ※株式会社LIFULLは電話会社が提供するサービスを介してお客様の発信者番号を受領後、折り返し専用の電話番号を発番してお問合せの不動産会社に通知します(お客様の発信者番号がお問合せの不動産会社に通知されることはございません)
- ※携帯電話からお問合せいただいた方に対し、株式会社LIFULLは電話会社が提供するメッセ―ジサービスを介してお客様の発信者番号を受領後、ショートメッセージ(SMS)またはLINE通知メッセージによるお問合せ内容に関する通知をお届けする場合があります
- ※お客様が通話中に不動産会社にお伝えになったお客様の個人情報及び、電話会社が発番する折り返し専用の電話番号は、お問合せ先不動産会社が資料送付・電子メール送信・電話連絡などの目的で保管する可能性があります。お問合せ先不動産会社が保管する個人情報の取扱いについては、各不動産会社に直接お問合せください
- ※株式会社LIFULLでは本サービスを円滑に運用するために、お客様の発信者番号をサービスご利用の控えとして一定期間保管いたします
- ※上記および株式会社LIFULLの個人情報の取扱い方針に同意のうえ、お電話ください
【LIFULL HOME'S物件番号】0116811-0163889【自社管理番号】0A684-105-67
オンライン対応
オンライン内見・オンライン相談・IT重説に対応している物件です

「オンライン内見」「オンライン相談」「IT重説」とは?
物件の内見や不動産会社スタッフとの相談、契約前の重要事項説明をオンライン(ビデオ通話)で行うことができるサービスです。
オンライン内見
ビデオ通話で現地(物件)にいる不動産会社スタッフと映像・音声を使ってリアルタイムで会話しながら内見ができます。
オンライン相談
「物件について聞きたいことがある」など不動産会社スタッフへの相談もビデオ通話で行うことができます。
IT重説
契約前の重要事項説明(重説)をビデオ通話で行うことができます。
利用時の注意事項
- ビデオ通話については各不動産会社指定のものとなります。
- ビデオ通話利用時には通信が発生します。従量課金制通信サービスや通信量に上限があるネット回線・プランを利用する場合は、通信量にご注意ください。
- 通信速度やアプリの設定によってはビデオ通話の画質が低下することがあります。安定した画質で利用するためにも、Wi-Fi環境下での利用を推奨します。
- ご利用のビデオ通話アプリによっては、対象のOSやブラウザに制限がある場合があります。詳しくはお問合せ先不動産会社にご確認ください。
初期費用・月額費用をあわせて確認!この物件に住んだときの費用めやす
めやすを見るこの物件に住んだときの費用めやす
- 初期費用
- 月額費用
- 追加費用※ご確認ください
追加で費用が
かかる場合があります
必ずご確認ください
初期費用めやす約0円
追加で費用がかかります(※)敷金
0
- 礼金
0
賃料+共益費・管理費の1ヶ月分として換算
賃料の1ヶ月分+税として換算。不動産会社によって金額が異なるため正確な金額は不動産会社にお問合せください
※追加費用もチェック!
これらの項目以外にも費用がかかる場合があります。正確な金額は不動産会社にお問合せください。
- 初期費用
- 鍵交換費:不動産会社に要確認
- 室内清掃費:55,000円
- 火災保険費:不動産会社に要確認
- その他
- LIFE SUPPORT:1100円
- 保証会社
- 初回:月額賃料等の40%、月額:支払い手数料880円、更新時:月額賃料等の20%/2年
不動産会社より
山科四宮エリアより・ 最寄りは京阪四宮駅 JR山科駅へも徒歩圏内・
最寄りは京阪四宮駅 JR山科駅へも徒歩圏内・JR沿線がいいけどちょっと高いなあ・・・というそこのあなた ちょっとだけ離れてこちらの物件いかがでしょうか お部屋は使いやすい2DKタイプ・このお家賃帯でなんとインターネットも無料です・周辺は閑静な住宅街で静かで過ごしやすい環境が整っています・最寄りスーパーのフレスコは歩いて3分・少しでも気になる方はお気軽にアパマンショップ山科までお問合せ下さいませ・
- 保存する
- 共有する
- ※各種情報と現状に差異がある場合は、現状優先となります
- ※不動産会社が入力した情報を基に物件の位置を表示しています。詳しくは不動産会社までお問合せください
- ※不動産会社の方からの上記電話番号によるお問合せはお断りしております。こちら不動産会社詳細からお問合せください
- ※LIFULL HOME'Sは物件鮮度No.1を目指していきます。閲覧中の物件が「成約済である」「実際の物件情報と異なる点がある」などの場合、「掲載110番」からお問合せください
- ※QRコードは株式会社デンソーウェーブの登録商標です
したい暮らしのタグから探す
この物件を取扱う他の会社
LIFULL HOME'Sでは、主要項目が同一の物件をまとめて表示しています。所在地や営業時間、掲載画像等から不動産会社を選んでお問合せください。
株式会社京都ライフ 河原町四条店
京都府京都市中京区奈良屋町291-2 wise core BLD.1階
阪急京都本線 京都河原町駅 徒歩4分
- 営業時間
- 09:30~19:00
- 定休日
- 年中無休(盆正月を除く)
同じ建物の他の部屋
最近見た賃貸物件
LIFULL HOME'S 地図・周辺情報
買い物
- セブンイレブン 京阪四宮駅東店
- フレスコ 四ノ宮店
- ココカラファインJR山科駅前店
- ローソン 山科四ノ宮垣ノ内町店
- ダイソー山科小山店
グルメ
- ガスト 京都山科店(から好し取扱店)
- ドトールコーヒーショップEneJet京都東インター店
- スターバックスコーヒー山科駅前店
- 丸亀製麺京都東インター店
- 松屋 山科店
育児・教育
- 永興藤尾こども園
- 私立一燈園小学校
- 私立一燈園中学校
- いずみ幼稚園
- 大津市立藤尾小学校
医療
- 医療法人社団洛和会洛和会音羽病院
- 医療法人洛和会洛和会音羽記念病院
- 医療法人社団洛和会洛和会音羽リハビリテーション病院
- 一般社団法人愛生会山科病院
- 加藤山科病院
公共施設・郵便局
- 山科四宮郵便局
- 京都市山科図書館
- 京都市山科区役所
- 大津藤尾簡易郵便局
- 大津小金塚簡易郵便局
公園
- 長等公園
利用可能な駅
- 徒歩10分以内
京阪京津線
- 四宮駅徒歩8分
- すべての駅
JR東海道・山陽本線
- 山科駅徒歩15分
京阪京津線
- 追分駅徒歩15分
- 京阪山科駅徒歩17分
- 大谷駅徒歩36分
- 御陵駅徒歩36分
京都地下鉄東西線
- 東野駅徒歩26分
- 椥辻駅3.2km
- 周辺情報は2023年07月21日時点のものになります。
- 周辺情報は、参考情報としてのみご利用ください(周辺情報は、株式会社LIFULLが地図情報の提供事業者から提供を受けた情報とLIFULL HOME'Sの物件情報に基づき、独自の方法で抽出し提供しているものです。周辺情報は、移転や閉鎖等により情報が最新ではない、または正しくない場合がありますが、地図情報の提供事業者から提供された情報をそのまま周辺情報として表示しているため、正確かつ最新の情報へ修正することができないことがあります。)
- 周辺情報は、株式会社LIFULLが掲載するものであり、不動産物件情報を掲載している不動産会社が掲載するものではありません
- 交通情報の一部については、株式会社LIFULLが掲載するものであり、不動産物件情報を掲載している不動産会社が掲載するものではない場合があります。交通情報に関する質問などは株式会社LIFULLにお問合せください








































