LIFULL HOME'Sは物件鮮度No.1!※評価について
京都市営烏丸線 北大路駅 徒歩25分(2階/ワンルーム/19.45m²)
京都市営烏丸線 北大路駅 徒歩25分(2階/ワンルーム/19.45m²)
4.2万円/管理費等3,000円
16時間前 更新
画像一覧
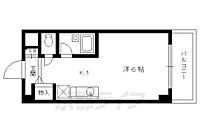
1/30間取り
間取
2/30外観
3/30外観
4/30外観
5/30リビング/ダイニング
洋室
6/30リビング/ダイニング
洋室
7/30室内
洋室
8/30室内
冷蔵庫置き場
9/30キッチン
キッチン
10/30キッチン
1口ガスコンロキッチンです。
11/30浴室
バス
12/30トイレ
トイレ
13/30収納
収納スペース
14/30収納
玄関収納スペース
15/30設備
エアコン
16/30設備
室内インターフォンです
17/30玄関
玄関
18/30バルコニー
ベランダ
19/30エントランス
20/30エントランス
21/30その他
213号室からの眺望です
22/30その他
23/30その他
24/30その他
25/30周辺
26/30周辺
27/30周辺
フレスコ 御薗橋店まで858m
28/30周辺
上賀茂診療所まで832m
29/30周辺
ドラッグひかり 御薗橋店まで626m
30/30周辺
上賀茂神社まで632m 京都産業大学の無料シャトルバス乗り場があります。
間取り
外観
外観
外観
リビング/ダイニング
リビング/ダイニング
室内
室内
キッチン
キッチン
浴室
トイレ
収納
収納
設備
設備
玄関
バルコニー
エントランス
エントランス
その他
その他
その他
その他
周辺
周辺
周辺
周辺
周辺
周辺
LINEチャットでも 相談できます
お問合せ先 :ウインズリンク株式会社 アパマンショップ河原町三条店
1〜3月は引越しシーズンのピークです。お問合せはお早めに!
仲介手数料割引
仲介手数料:家賃50%(税別)でご紹介可能です。
- 利用条件
- ウインズリンク株式会社 アパマンショップ河原町三条店で利用可
- 他特典との併用可
- 法人契約・事業用物件は対象外になります。
利用方法
来店時に本特典の画面をスマートフォンやタブレットでスタッフに提示、または画面印刷した用紙を提示ください。
有効期限 なし
京産生必見 京都産業大学行きのスクールバス乗り場まで徒歩すぐ
物件のこだわり/設備・条件
新築(非該当)
2階以上の物件(該当)
南向き(非該当)
駐車場あり(該当)
オートロック(該当)
エアコン(該当)
バス・トイレ別(該当)
追焚機能(非該当)
フローリング(該当)
ペット相談(非該当)
入居条件
単身者限定、学生歓迎キッチン/バス・トイレ
セキュリティ
オートロック、防犯カメラ駐車・駐輪
駐車場あり、バイク置き場あり、駐輪場ありテレビ・通信
CATV、BS対応、光ファイバー、インターネット使用料無料電気・ガス・水道
公営水道、都市ガス、下水室内
エアコン、フローリング建物設備
宅配ボックスバルコニー・庭
バルコニー備考
管理人さん在住で安心、安全なマンションです。インターネット無料利用可能で特に京都産業大学行きのスクールバス乗り場まで徒歩すぐと通学至便の立地です。バイク駐輪無料ですので、バイクをお持ちの学生様は是非。安全をお求めの親御さん、ご内覧下さい。 京都の賃貸はアパマンショップ北大路店へお任せください
物件周辺の生活情報
買い物
- コンビニ(900m)
- スーパー(858m)
- ドラッグストア(626m)
その他施設
- 総合病院(832m)
- 上賀茂神社(632m)
交通
- 京都市営烏丸線 北大路駅 徒歩25分
- 普通(停車)
- 急行(停車)
- 京都市営烏丸線 北山駅 徒歩24分
- 普通(停車)
- 急行(停車)
※急行等の停車駅情報について
急行等の停車駅に関するデータは、随時更新をしておりますが、最新の内容であることを保証するものではありません。
最新かつ正確な情報につきましては、各鉄道会社のウェブサイトにてご確認ください
物件概要
- 建物構造
- RC(鉄筋コンクリート)
- 駐車場
- 空有 16,500円(税込)
- 総戸数
- 57戸
- 契約形態
- -
- 契約期間
- 2年間
- 更新料
- -
- その他費用
- 水道代:2,000円
- 保証会社
- -
- 住宅保険
- 要
- 契約条件
- 住まい探し特典あり
- 管理
- 管理員:巡回
- LIFULL HOME'S
物件番号 - 0130914-0262890
- 自社管理番号
- 01-0F218-217-69
- 取引態様
- 仲介
- 会社名
- ウインズリンク株式会社 アパマンショップ河原町三条店
営業スタッフコメント

ウインズリンク株式会社 アパマンショップ河原町三条店マネージャー (店舗責任者)
村田竜太郎
お客様に喜けるお部屋探しを心掛けております。
業界経験10年
資格少額短期保険募集人
- 会社実績や特徴・サービス情報
- アパマンショップ河原町三条店は仲介手数料50%(税別・個人契約居住用) 京都の全エリアをカバーしており、地下鉄、阪急、京阪電車沿線を得意としております。 京都に転勤で来られる方、京都の大学・専門学校に通われる方 まずはお気軽にご相談下さい。 法人契約歓迎でお待ちしております。 保証人無しご契約可能物件も多数取り扱いしております。 事務所・店舗・高額賃貸マンションまで賃貸というカテゴリーでしたら ご対応可能です。 京都の賃貸でしたらアパマンショップ河原町三条店にお任せください。
アパマンショップ河原町三条店は仲介手数料50%(税別・個人契約居住用) 京都の全エリアをカバーしており、地下鉄、阪急、京阪電車沿線を得意としております。 京都に転勤で来られる方、京都の大学・専門学校に通われる方 まずはお気軽にご相談下さい。 法人契約歓迎でお待ちしております。 保証人無しご契約可能物件も多数取り扱いしております。 事務所・店舗・高額賃貸マンションまで賃貸というカテゴリーでしたら ご対応可能です。 京都の賃貸でしたらアパマンショップ河原町三条店にお任せください。
- 電話でお問合せ(通話無料)
お問合せ先 :ウインズリンク株式会社 アパマンショップ河原町三条店
不動産会社情報
ウインズリンク株式会社 アパマンショップ河原町三条店
京都府京都市中京区河原町通三条上る恵比須町435番地5
京都地下鉄東西線 京都市役所前駅 徒歩3分
- 営業時間
- 09:30~19:00
- 定休日
- 年中無休(盆・正月を除く)
担当エリアは京都市全域、京都市内各地を熟知したスタッフが揃っています。住まいの事から生活情報に至るまで、京都のこと・賃貸情報のことならなんでもご相談ください!
- 店舗の特徴
- 賃貸管理業務
- 引越し業者紹介可
- 年中無休
- オンライン相談可
- 保証人不要な物件あり
- 法人契約取扱い
- 女性スタッフ対応可
- 駅から歩いて3分以内
電話でお問合せお客様の電話番号は不動産会社には通知されません
- 不動産会社に
つながります
お客様の電話番号は不動産会社に通知されません
- ※光IP電話、及びIP電話からはご利用になれません
- ※お電話によるお問合せは、店舗営業時間内にお願いします。つながらない場合は、お問合せフォームよりお問合せください
- ※不動産会社がお電話に出られなかった場合、お問合せいただいた後に不動産会社より折り返しのお電話がある場合がございます(お客様が非通知設定した場合は対象外です)
- ※株式会社LIFULLは電話会社が提供するサービスを介してお客様の発信者番号を受領後、折り返し専用の電話番号を発番してお問合せの不動産会社に通知します(お客様の発信者番号がお問合せの不動産会社に通知されることはございません)
- ※携帯電話からお問合せいただいた方に対し、株式会社LIFULLは電話会社が提供するメッセ―ジサービスを介してお客様の発信者番号を受領後、ショートメッセージ(SMS)またはLINE通知メッセージによるお問合せ内容に関する通知をお届けする場合があります
- ※お客様が通話中に不動産会社にお伝えになったお客様の個人情報及び、電話会社が発番する折り返し専用の電話番号は、お問合せ先不動産会社が資料送付・電子メール送信・電話連絡などの目的で保管する可能性があります。お問合せ先不動産会社が保管する個人情報の取扱いについては、各不動産会社に直接お問合せください
- ※株式会社LIFULLでは本サービスを円滑に運用するために、お客様の発信者番号をサービスご利用の控えとして一定期間保管いたします
- ※上記および株式会社LIFULLの個人情報の取扱い方針に同意のうえ、お電話ください
【LIFULL HOME'S物件番号】0130914-0262890【自社管理番号】01-0F218-217-69
初期費用・月額費用をあわせて確認!この物件に住んだときの費用めやす
めやすを見るこの物件に住んだときの費用めやす
- 初期費用
- 月額費用
- 追加費用※ご確認ください
追加で費用が
かかる場合があります
必ずご確認ください
初期費用めやす約0円
追加で費用がかかります(※)敷金
0
- 礼金
0
賃料+共益費・管理費の1ヶ月分として換算
賃料の1ヶ月分+税として換算。不動産会社によって金額が異なるため正確な金額は不動産会社にお問合せください
※追加費用もチェック!
これらの項目以外にも費用がかかる場合があります。正確な金額は不動産会社にお問合せください。
- 初期費用
- 鍵交換費:不動産会社に要確認
- 室内清掃費:不動産会社に要確認
- 火災保険費:不動産会社に要確認
- 月額費用
- 駐車場費:16,500円(税込)※契約任意
- その他
- 水道代:2000円
- 保証会社
- 不動産会社に要確認
不動産会社より
京産生必見 京都産業大学行きのスクールバス乗り場まで徒歩すぐ
管理人さん在住で安心、安全なマンションです。インターネット無料利用可能で特に京都産業大学行きのスクールバス乗り場まで徒歩すぐと通学至便の立地です。バイク駐輪無料ですので、バイクをお持ちの学生様は是非。安全をお求めの親御さん、ご内覧下さい。 京都の賃貸はアパマンショップ北大路店へお任せください
- 保存する
- 共有する
- ※各種情報と現状に差異がある場合は、現状優先となります
- ※不動産会社が入力した情報を基に物件の位置を表示しています。詳しくは不動産会社までお問合せください
- ※不動産会社の方からの上記電話番号によるお問合せはお断りしております。こちら不動産会社詳細からお問合せください
- ※LIFULL HOME'Sは物件鮮度No.1を目指していきます。閲覧中の物件が「成約済である」「実際の物件情報と異なる点がある」などの場合、「掲載110番」からお問合せください
- ※QRコードは株式会社デンソーウェーブの登録商標です
この物件を取扱う他の会社
LIFULL HOME'Sでは、主要項目が同一の物件をまとめて表示しています。所在地や営業時間、掲載画像等から不動産会社を選んでお問合せください。
アパマンショップ今出川店 ウインズリンク株式会社
京都府京都市上京区烏丸通今出川上る岡松町272 クローバービル1階
京都市営烏丸線 今出川駅 徒歩1分
- 営業時間
- 09:30~19:00
- 定休日
- なし(盆休み8/13〜8/16・年末年始12/27〜1/4)
アパマンショップ出町柳店 ウインズリンク株式会社
京都府京都市左京区田中関田町28−9
京阪本線 出町柳駅 徒歩3分
- 営業時間
- 09:30~19:00(営業時間外のお部屋探しもちろん可能です。ご予約やお問合せ時にご確認下さい。)
- 定休日
- なし(盆休み8/13〜8/16・年末年始12/27〜1/4)
LIFULL HOME'S 地図・周辺情報
買い物
- セブンイレブン 京都上賀茂朝露ケ原町店
- FOOD SHOPエムジー 西賀茂店
- ドラッグひかり西賀茂店
- ローソン 上賀茂店
- フレスコ 御薗橋店
グルメ
- なか卯 上賀茂店
- 餃子の王将 御薗橋店
- すき家 京都産業大学店
- Sugakiya京都産業大学店
- フォルクス 北山通店
育児・教育
- 大宮保育園
- 京都市立大宮小学校
- 京都市立加茂川中学校
- 柊野保育園
- 京都市立柊野小学校
医療
- 医療法人葵会介護医療院おおみや葵の郷
- (財)薬師山病院
- 医療法人明生会賀茂病院
- 医療法人財団康生会北山武田病院
- 社会福祉法人京都博愛会京都博愛会病院
公共施設・郵便局
- 京都柊野郵便局
- 京都市北図書館
- 京都府北警察署
- 京都大宮小野堀郵便局
- 京都市北区役所
公園
- 大宮交通公園
- 上庄田第二公園
- 船岡山公園
- 岩倉南公園
利用可能な駅
- すべての駅
京都市営烏丸線
- 北山駅徒歩24分
- 北大路駅徒歩25分
- 松ヶ崎駅3.3km
- 鞍馬口駅3.4km
叡山電鉄鞍馬線
- 二軒茶屋駅徒歩32分
- 京都精華大前駅徒歩34分
- 木野駅3.6km
- 周辺情報は2023年07月21日時点のものになります。
- 周辺情報は、参考情報としてのみご利用ください(周辺情報は、株式会社LIFULLが地図情報の提供事業者から提供を受けた情報とLIFULL HOME'Sの物件情報に基づき、独自の方法で抽出し提供しているものです。周辺情報は、移転や閉鎖等により情報が最新ではない、または正しくない場合がありますが、地図情報の提供事業者から提供された情報をそのまま周辺情報として表示しているため、正確かつ最新の情報へ修正することができないことがあります。)
- 周辺情報は、株式会社LIFULLが掲載するものであり、不動産物件情報を掲載している不動産会社が掲載するものではありません
- 交通情報の一部については、株式会社LIFULLが掲載するものであり、不動産物件情報を掲載している不動産会社が掲載するものではない場合があります。交通情報に関する質問などは株式会社LIFULLにお問合せください



















