LIFULL HOME'Sは物件鮮度No.1!※評価について
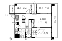
リーガル京都御所西II(2階/205/1LDK/44.53m²)
リーガル京都御所西II(2階/205/1LDK/44.53m²)
11.3万円/管理費等11,680円
2日前 更新
画像一覧
1/30間取り
間取
2/30外観
建物外観です。
3/30リビング/ダイニング
4/30リビング/ダイニング
5/30室内
6/30キッチン
7/30キッチン
8/30キッチン
9/30キッチン
10/30浴室
11/30トイレ
12/30洗面
13/30洗面
14/30洗面
15/30洗面
16/30洗面
17/30洗面
18/30洗面
19/30収納
20/30収納
21/30収納
22/30収納
23/30設備
24/30設備
25/30設備
26/30設備
27/30玄関
28/30バルコニー
29/30その他
30/30周辺
セブンイレブン京都新町一条店まで208m 上京中学校の目の前。住宅街に立地してます。
間取り
外観
リビング/ダイニング
リビング/ダイニング
室内
キッチン
キッチン
キッチン
キッチン
浴室
トイレ
洗面
洗面
洗面
洗面
洗面
洗面
洗面
収納
収納
収納
収納
設備
設備
設備
設備
玄関
バルコニー
その他
周辺
1〜4月は引越しシーズンのピークです。お問合せはお早めに!
仲介手数料割引
ご成約時、仲介手数料は賃料の半月分(税別)です。
- 利用条件
- (株)京都ライフ 今出川店で利用可
- 他特典との併用可
- ※法人契約・事業用物件は除きます。 ※大東建託・積水ハウス物件は除きます。
利用方法
来店時に本特典の画面をスマートフォンやタブレットでスタッフに提示、または画面印刷した用紙を提示ください。
有効期限 なし
駅近。上質マンション 駅近。人気エリアの分譲マンション。
基本情報
不動産用語- 賃料
- 11.3万円
- 管理費等
- 11,680円
初期費用などお気軽にお問合せください
- 敷金/礼金
- 無/22.6万円
- 保証金/敷引・償却金
- -/-
- 交通
京都市営烏丸線 今出川駅 徒歩5分
京都市営烏丸線 丸太町駅 徒歩17分
- 所在地
京都府京都市上京区武者小路通小川東入西無車小路町
地図を見る- 築年月
- 2016年7月(築10年)
- 主要採光面
- 東
- 専有面積
- 44.53㎡
- バルコニー面積
- -
- 所在階/階数
- 2階/5階建
- 現況
- 空家
- 入居可能時期
- 即時

人気物件はすぐに埋まってしまいます。
気になったらお早めにお問合せください。
- 情報公開日
2026/03/19
8日前 公開
- 情報更新日
2026/03/25
2日前 更新
- 次回更新
予定日 - 2026/04/02
物件のこだわり/設備・条件
新築(非該当)
2階以上の物件(該当)
南向き(非該当)
駐車場(非該当)
オートロック(該当)
エアコン(該当)
バス・トイレ別(該当)
追焚機能(該当)
フローリング(該当)
ペット相談(非該当)
位置
角部屋入居条件
即入居可キッチン/バス・トイレ
設備・サービス
オートロック、防犯カメラ、TVモニタ付インターホン、エアコン、シューズボックス、光ファイバー、公営水道、都市ガス、下水、フローリング、バルコニー、室内洗濯機置場、エレベーター、宅配ボックス、駐輪場ありその他
分譲賃貸、住まい探し特典あり備考
人気の御所西エリアのマンションです。地下鉄今出川駅も徒歩5分で交通アクセスも便利です。充実した室内設備は、システムキッチンは2口〜3口のガスコンロ。バスルームは浴室乾燥機にテレビも付いてます。サニタリーは独立洗面で使いやすくなってます。セキュリティもしっかりしていて、24時間の警備保障に監視カメラ、TVホンにディンブルキー... 物件情報はもちろん京都のエリア情報まで幅広く対応させていただきます!
物件周辺の生活情報
買い物
- コンビニ(208m)
- スーパー(173m)
- ドラッグストア(226m)
その他施設
- 総合病院(496m)
- 銀行(504m)
- イオンモール北大路(1,900m)
交通
- 京都市営烏丸線 今出川駅 徒歩5分
- 普通(停車)
- 急行(停車)
- 京都市営烏丸線 丸太町駅 徒歩17分
- 普通(停車)
- 急行(停車)
※急行等の停車駅情報について
急行等の停車駅に関するデータは、随時更新をしておりますが、最新の内容であることを保証するものではありません。
最新かつ正確な情報につきましては、各鉄道会社のウェブサイトにてご確認ください
物件周辺の口コミ
- 京都府京都市上京区武者小路通西洞院西入に住む人の口コミ20代女性
お店も多く、自然もあるので過ごしやすいが、大学が近いため学生がうるさい
口コミを見る
この物件周辺に住む人の口コミ
口コミは、LIFULL HOME'Sが実際にこの物件の周辺に住む18歳~69歳の男女を対象に、WEBアンケート調査を実施しています。内容には回答者の主観的な表現が含まれる場合があるほか、事実と異なる場合もございます。ご了承ください。
- 京都府京都市上京区武者小路通西洞院西入に住む人の口コミ20代女性
- お店も多く、自然もあるので過ごしやすいが、大学が近いため学生がうるさい
- 京都府京都市北区紫野石龍町に住む人の口コミ50代女性
- 大きな災害が少なくて助かります。基本的な生活条件は整っており、安心の確保は有ります。日本自体がどうなっていくのかわかりませんが、現状の京都市北区は人心も平穏と言えます。
- 京都府京都市北区紫野今宮町に住む人の口コミ40代女性
- 神社仏閣が多く、静かで治安がよい。幼稚園や学校が近く子育てもしやすい。町の中心部にもバスや地下鉄ででやすく、スーパーや病院も多く生活しやすい。
- 京都府京都市上京区中筋通千本東入に住む人の口コミ40代女性
- 普段の買い物をする店が「少し」離れたところにある・最寄り駅が少々遠い・スーパー銭湯が無い・寒い。大きく不満ではないけれど、満足と言い切ることのできない要素がある
- 京都府京都市北区紫野上柳町に住む人の口コミ20代女性
- 不自由なく生活出来ている。が、求めようと思えばもっと求めるものがありそう。
- 京都府京都市上京区室町通鞍馬口下る東入に住む人の口コミ50代女性
- 都会でありながら地下鉄も便利に使える。また加茂川の河川敷など整備されてて解放感があります。
- 京都府京都市上京区千本通笹屋町下るに住む人の口コミ20代女性
- 利便性が高い。銀行、コンビニ、スーパー、眼科、内科、皮膚科、接骨院などの病院、学校など、全て自転車で行けるところ。また、バス停が近い。
- 京都府京都市上京区堀川通今出川上るに住む人の口コミ20代女性
- 日常生活が困ることはないけど、図書館や映画館などがあると嬉しい
- 京都府京都市上京区室町通寺之内下るに住む人の口コミ60代女性
- 医院、病院、スーパー、コンビニ、レストランなど、生活に必要な物が充実し、地下鉄やバスなどの交通機関も網羅され、散歩に適した自然もある。老後の生活において、車を使わずに過ごせる生活スタイルが整っている。
- 京都府京都市上京区塔之段通今出川上る2丁目に住む人の口コミ30代男性
- 昔ながらの商店街もあり交通の便も良く、近くに四季が感じられる自然もあり、夜は静かだから
物件概要
- 建物構造
- RC(鉄筋コンクリート)
- 駐車場
- 空無
- 総戸数
- 30戸
- 契約形態
- -
- 契約期間
- 2年間
- 更新料
- 新賃料の1ヶ月分
- その他費用
- 室内清掃費用:66,000円、入居者サポート:19,800円
- 保証会社
- -
- 住宅保険
- 要
- 管理
- -
- LIFULL HOME'S
物件番号 - 0001367-0294899
- 自社管理番号
- 49977-205
- 取引態様
- 仲介
- 会社名
- (株)京都ライフ 今出川店
営業スタッフコメント

(株)京都ライフ 今出川店
國枝昴平
迅速果断
業界経験5年
- 会社実績や特徴・サービス情報
- 京都ライフは40年以上京都に根付いている老舗仲介店舗です。 長年培った物件情報は3万戸以上。 フレッシュでフットワークのよいスタッフが気持ちよいお部屋探しをお手伝いします。
京都ライフは40年以上京都に根付いている老舗仲介店舗です。 長年培った物件情報は3万戸以上。 フレッシュでフットワークのよいスタッフが気持ちよいお部屋探しをお手伝いします。
- 電話でお問合せ(通話無料)
お問合せ先 :(株)京都ライフ 今出川店
不動産会社情報
(株)京都ライフ 今出川店京都ライフ今出川店
京都府京都市上京区烏丸通今出川上る御所八幡町115 コーポ千尋 1階
京都市営烏丸線 今出川駅 徒歩1分
- 営業時間
- 09:30~19:00
- 定休日
- 年中無休(盆正月を除く)
京都ライフでは仲介手数料が家賃の半月分(一部除外有り)!京都のお部屋探しは、創業45年、地元密着企業の京都ライフにお任せください。京都ライフ今出川店は同志社エンタープライズ提携業者です。
- 店舗の特徴
- 24時間管理物件取扱い
- 引越し業者紹介可
- 年中無休
- 送迎あり
- 系列店舗での対応可
- オンライン相談可
- 保証人不要な物件あり
- 法人契約取扱い
- 駅から歩いて3分以内
電話でお問合せお客様の電話番号は不動産会社には通知されません
- 不動産会社に
つながります
お客様の電話番号は不動産会社に通知されません
- ※光IP電話、及びIP電話からはご利用になれません
- ※お電話によるお問合せは、店舗営業時間内にお願いします。つながらない場合は、お問合せフォームよりお問合せください
- ※不動産会社がお電話に出られなかった場合、お問合せいただいた後に不動産会社より折り返しのお電話がある場合がございます(お客様が非通知設定した場合は対象外です)
- ※株式会社LIFULLは電話会社が提供するサービスを介してお客様の発信者番号を受領後、折り返し専用の電話番号を発番してお問合せの不動産会社に通知します(お客様の発信者番号がお問合せの不動産会社に通知されることはございません)
- ※携帯電話からお問合せいただいた方に対し、株式会社LIFULLは電話会社が提供するメッセ―ジサービスを介してお客様の発信者番号を受領後、ショートメッセージ(SMS)またはLINE通知メッセージによるお問合せ内容に関する通知をお届けする場合があります
- ※お客様が通話中に不動産会社にお伝えになったお客様の個人情報及び、電話会社が発番する折り返し専用の電話番号は、お問合せ先不動産会社が資料送付・電子メール送信・電話連絡などの目的で保管する可能性があります。お問合せ先不動産会社が保管する個人情報の取扱いについては、各不動産会社に直接お問合せください
- ※株式会社LIFULLでは本サービスを円滑に運用するために、お客様の発信者番号をサービスご利用の控えとして一定期間保管いたします
- ※上記および株式会社LIFULLの個人情報の取扱い方針に同意のうえ、お電話ください
【LIFULL HOME'S物件番号】0001367-0294899【自社管理番号】49977-205
オンライン対応
オンライン内見・オンライン相談・IT重説に対応している物件です

「オンライン内見」「オンライン相談」「IT重説」とは?
物件の内見や不動産会社スタッフとの相談、契約前の重要事項説明をオンライン(ビデオ通話)で行うことができるサービスです。
オンライン内見
ビデオ通話で現地(物件)にいる不動産会社スタッフと映像・音声を使ってリアルタイムで会話しながら内見ができます。
オンライン相談
「物件について聞きたいことがある」など不動産会社スタッフへの相談もビデオ通話で行うことができます。
IT重説
契約前の重要事項説明(重説)をビデオ通話で行うことができます。
利用時の注意事項
- ビデオ通話については各不動産会社指定のものとなります。
- ビデオ通話利用時には通信が発生します。従量課金制通信サービスや通信量に上限があるネット回線・プランを利用する場合は、通信量にご注意ください。
- 通信速度やアプリの設定によってはビデオ通話の画質が低下することがあります。安定した画質で利用するためにも、Wi-Fi環境下での利用を推奨します。
- ご利用のビデオ通話アプリによっては、対象のOSやブラウザに制限がある場合があります。詳しくはお問合せ先不動産会社にご確認ください。
初期費用・月額費用をあわせて確認!この物件に住んだときの費用めやす
めやすを見るこの物件に住んだときの費用めやす
- 初期費用
- 月額費用
- 追加費用※ご確認ください
追加で費用が
かかる場合があります
必ずご確認ください
初期費用めやす約0円
追加で費用がかかります(※)敷金
0
- 礼金
226,000
賃料+共益費・管理費の1ヶ月分として換算
賃料の1ヶ月分+税として換算。不動産会社によって金額が異なるため正確な金額は不動産会社にお問合せください
※追加費用もチェック!
これらの項目以外にも費用がかかる場合があります。正確な金額は不動産会社にお問合せください。
- 初期費用
- 鍵交換費:不動産会社に要確認
- 室内清掃費:66,000円
- 火災保険費:不動産会社に要確認
- その他
- 入居者サポート:19800円
- 保証会社
- 不動産会社に要確認
不動産会社より
駅近。上質マンション 駅近。人気エリアの分譲マンション。
人気の御所西エリアのマンションです。地下鉄今出川駅も徒歩5分で交通アクセスも便利です。充実した室内設備は、システムキッチンは2口〜3口のガスコンロ。バスルームは浴室乾燥機にテレビも付いてます。サニタリーは独立洗面で使いやすくなってます。セキュリティもしっかりしていて、24時間の警備保障に監視カメラ、TVホンにディンブルキー... 物件情報はもちろん京都のエリア情報まで幅広く対応させていただきます!
- 保存する
- 共有する
- ※各種情報と現状に差異がある場合は、現状優先となります
- ※不動産会社が入力した情報を基に物件の位置を表示しています。詳しくは不動産会社までお問合せください
- ※不動産会社の方からの上記電話番号によるお問合せはお断りしております。こちら不動産会社詳細からお問合せください
- ※LIFULL HOME'Sは物件鮮度No.1を目指していきます。閲覧中の物件が「成約済である」「実際の物件情報と異なる点がある」などの場合、「掲載110番」からお問合せください
- ※QRコードは株式会社デンソーウェーブの登録商標です
この物件を取扱う他の会社
LIFULL HOME'Sでは、主要項目が同一の物件をまとめて表示しています。所在地や営業時間、掲載画像等から不動産会社を選んでお問合せください。
LIFULL HOME'S 地図・周辺情報
買い物
- セブンイレブン 京都新町一条店
- フレスコ プチ烏丸今出川店
- ドラッグひかり新町店
- ファミリーマート 京都今出川針屋町店
- ダイソー堀川今出川店
グルメ
- 天下一品今出川店
- サイゼリヤ 今出川駅前店
- やよい軒 烏丸今出川店
- モスバーガー 烏丸今出川店
- CoCo壱番屋 烏丸今出川店
育児・教育
- 京都市立みつば幼稚園
- 京都市立新町小学校
- 京都市立上京中学校
- こぐま白雲北保育園
- 京都市立室町小学校
医療
- 医療法人愛寿会同仁病院
- 社会医療法人西陣健康会堀川病院
- 室町病院
- 京都第二赤十字病院
- 独立行政法人地域医療機能推進機構京都鞍馬口医療センター
公共施設・郵便局
- 京都中立売室町郵便局
- 京都市こどもみらい館子育て図書館
- 京都市上京区役所
- 京都室町上立売郵便局
- 京都市北図書館
公園
- 京都御苑
- 梅屋広場公園
- 船岡山公園
- 吉田山公園
- 岡崎公園
利用可能な駅
- 徒歩10分以内
京都市営烏丸線
- 今出川駅徒歩5分
- すべての駅
京都市営烏丸線
- 丸太町駅徒歩17分
- 周辺情報は2023年07月21日時点のものになります。
- 周辺情報は、参考情報としてのみご利用ください(周辺情報は、株式会社LIFULLが地図情報の提供事業者から提供を受けた情報とLIFULL HOME'Sの物件情報に基づき、独自の方法で抽出し提供しているものです。周辺情報は、移転や閉鎖等により情報が最新ではない、または正しくない場合がありますが、地図情報の提供事業者から提供された情報をそのまま周辺情報として表示しているため、正確かつ最新の情報へ修正することができないことがあります。)
- 周辺情報は、株式会社LIFULLが掲載するものであり、不動産物件情報を掲載している不動産会社が掲載するものではありません
- 交通情報の一部については、株式会社LIFULLが掲載するものであり、不動産物件情報を掲載している不動産会社が掲載するものではない場合があります。交通情報に関する質問などは株式会社LIFULLにお問合せください










