LIFULL HOME'Sは物件鮮度No.1!※評価について

過去掲載時の参考情報

以下の物件情報は広告情報ではありません。LIFULL HOME'Sが過去に掲載された物件情報を元に作成した参考情報です。

賃貸アパート
近鉄けいはんな線 長田駅 徒歩8分2階/1K/26.02m²
画像一覧

外観

外観

外観

外観

外観

エントランス

その他

その他

その他

その他

その他

トヨタレンタカー(その他周辺施設)まで256m

ケンタッキー・フライド・チキン(飲食店)まで346m

物件概要

お問合せ状況
現在この物件はお問合せできません
交通

近鉄けいはんな線 長田駅 徒歩8分

Osaka Metro中央線 高井田駅 徒歩17分

JRおおさか東線 高井田中央駅 徒歩19分

所在地

大阪府東大阪市長田西2丁目

地図を見る
築年月
2024年10月(築2年)
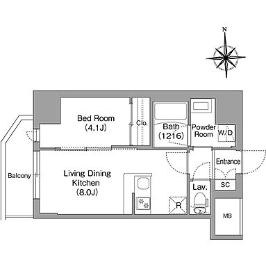
間取り
1K
主要採光面
西
専有面積
26.02㎡
所在階/階数
2階/3階建
建物構造
木造
総戸数
12戸

物件のこだわり/設備・条件

  • 新築(非該当)

  • 2階以上の物件(該当)

  • 南向き(非該当)

  • 駐車場(非該当)

  • オートロック(該当)

  • エアコン(該当)

  • バス・トイレ別(該当)

  • 追焚機能(非該当)

  • フローリング(該当)

  • ペット相談(非該当)

  • 位置

    角部屋
  • 入居条件

    ペット不可、ルームシェア不可
  • キッチン/バス・トイレ

    IHコンロ、コンロ二口、システムキッチン、給湯、専用バス、バス・トイレ別、シャワー、シャワー付洗面化粧台、温水洗浄便座、浴室乾燥機、洗面所独立
  • 設備・サービス

    オートロック、防犯カメラ、TVモニタ付インターホン、エアコン、クローゼット、CATV、インターネット対応、都市ガス、フローリング、バルコニー、室内洗濯機置場、照明器具付き、宅配ボックス、駐輪場あり
  • その他

    デザイナーズ、住まい探し特典あり

物件周辺の生活情報

学校

  • 東大阪市立小学校藤戸小学校(430m)
  • 東大阪市立中学校楠根中学校(1,260m)

買い物

  • コンビニ(237m)
  • スーパー(763m)

その他施設

  • 総合病院(499m)

交通

近鉄けいはんな線 長田駅 徒歩8分
  • 普通(停車)
Osaka Metro中央線 高井田駅 徒歩17分
  • 普通(停車)

※急行等の停車駅情報について

急行等の停車駅に関するデータは、随時更新をしておりますが、最新の内容であることを保証するものではありません。
最新かつ正確な情報につきましては、各鉄道会社のウェブサイトにてご確認ください