LIFULL HOME'Sは物件鮮度No.1!※評価について
阪急京都本線 長岡天神駅 徒歩3分
23万円/管理費等-
2時間前 更新
LINEチャットでも 相談できます
お問合せ先 :株式会社BRAVE 賃貸住宅サービスFC西院駅前店
仲介手数料割引
仲介手数料55%〜最大無料まで割引サービス有。
- 利用条件
- 株式会社BRAVE 賃貸住宅サービスFC西院駅前店で利用可
- 他特典との併用可
- どなたでも大丈夫です。
利用方法
来店時に本特典の画面をスマートフォンやタブレットでスタッフに提示、または画面印刷した用紙を提示ください。
有効期限 2025年12月31日まで
洋服や小物をスッキリと。お片付けが楽しくなりそう。使い勝手のいいカウンターキッチンです。
基本情報
不動産用語- 賃料
- 23万円
- 管理費等
- -
初期費用などお気軽にお問合せください
- 敷金/礼金
- 無/1ヶ月
- 保証金/敷引・償却金
- -/-
- 交通
阪急京都本線 長岡天神駅 徒歩3分
JR東海道・山陽本線 長岡京駅 徒歩14分
- 所在地
京都府長岡京市天神1丁目
地図を見る- 築年月
- 2026年2月(新築)
- 主要採光面
- -
- 専有面積
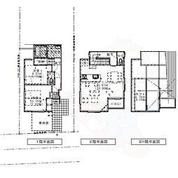
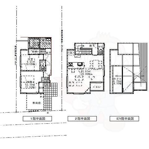
- 80.11㎡
- バルコニー面積
- -
- 所在階/階数
- 1階/2階建
入居可能日などお気軽にお問合せください
- 現況
- 未完成
- 入居可能時期
- 2026年02月 上旬

人気物件はすぐに埋まってしまいます。
気になったらお早めにお問合せください。
- 情報公開日
2025/10/17
43日前 公開
- 情報更新日
2025/11/28
2時間前 更新
- 次回更新
予定日 - 2025/12/07
物件のこだわり/設備・条件
新築(該当)
2階以上の物件(非該当)
南向き(非該当)
駐車場あり(該当)
オートロック(非該当)
エアコン(該当)
バス・トイレ別(該当)
追焚機能(該当)
フローリング(該当)
ペット相談(非該当)
位置
角部屋入居条件
二人入居可キッチン/バス・トイレ
設備・サービス
エアコン、クローゼット、シューズボックス、インターネット対応、都市ガス、フローリング、バルコニー、室内洗濯機置場、照明器具付き、宅配ボックス、駐車場ありその他
初期費用カード決済可、住まい探し特典あり備考
法人相談 単身者可
物件周辺の生活情報
学校
- 長岡第六小学校(511m)
- 長岡中学校(730m)
買い物
- コンビニ(229m)
- スーパー(376m)
その他施設
- 総合病院(482m)
- 公園(695m)
- 長岡京市役所(495m)
交通
- 阪急京都本線 長岡天神駅 徒歩3分
- 普通(停車)
- 準急(停車)
- 堺筋準急(停車)
- 通勤特急(停車)
- 特急(停車)
- 急行(停車)
- 準特急(停車)
- JR東海道・山陽本線 長岡京駅 徒歩14分
- 普通(停車)
- 新快速(通過)
- 快速(停車)
- 緩行電車(停車)
- 特別快速(通過)
- 区間快速(通過)
※急行等の停車駅情報について
急行等の停車駅に関するデータは、随時更新をしておりますが、最新の内容であることを保証するものではありません。
最新かつ正確な情報につきましては、各鉄道会社のウェブサイトにてご確認ください
物件周辺の口コミ
- 京都府長岡京市天神に住む人の口コミ50代男性
京都市内・大阪市内どちらにも行きやすく、日々の生活においては十分満たされる。大型ショッピングモールなども車ですぐ行け、また高速ICも市内にあり不便はない。非常に住みやすい良い街。
口コミを見る
この物件周辺に住む人の口コミ
口コミは、LIFULL HOME'Sが実際にこの物件の周辺に住む18歳~69歳の男女を対象に、WEBアンケート調査を実施しています。内容には回答者の主観的な表現が含まれる場合があるほか、事実と異なる場合もございます。ご了承ください。
- 京都府長岡京市天神に住む人の口コミ50代男性
- 京都市内・大阪市内どちらにも行きやすく、日々の生活においては十分満たされる。大型ショッピングモールなども車ですぐ行け、また高速ICも市内にあり不便はない。非常に住みやすい良い街。
- 京都府長岡京市天神に住む人の口コミ50代女性
- 治安もよく、一通りのものが買えて、繁華街にも電車で行きやすい
- 京都府長岡京市天神に住む人の口コミ40代女性
- 一歩外に出れば、緑に囲まれたお寺や神社が徒歩圏内に幾つもあるし、空気がきれい
- 京都府長岡京市天神に住む人の口コミ50代男性
- 周囲に気を使わなくて良く、程よく店やスーパーがあり深夜営業の所も有るが夜は静かで交通の便も程よくいい。全体にちょうどいい
- 京都府長岡京市天神に住む人の口コミ40代女性
- 駅周辺は交通も便利で比較的栄えているが、居酒屋等が多く、ファミリー向けや気軽に食事が出来る飲食店が少ない
- 京都府長岡京市天神に住む人の口コミ50代男性
- 交通の便が良い。20分内に、4つショッピングモール、コストコがあり買い物が便利。病院などの医療施設、公園、保育園、幼稚園が充実。自然が豊か、観光できる寺社仏閣が多い。市からの子供への補助がある
- 京都府長岡京市天神に住む人の口コミ40代男性
- 京阪エリア両方に行ける利便性と都市中心部までに至らない閑静な環境が共存している。一方阪急駅西口エリアのコンビニの少なさと、同駅高架化の遅れにより同駅周辺の踏切待ちによる交通渋滞が満足度を下げている。
- 京都府長岡京市天神に住む人の口コミ30代男性
- 交通の便利さや商業施設が充実しているけど、魅力的な外食店が少ないから。
- 京都府長岡京市天神に住む人の口コミ50代男性
- 駅が利用しやすく、主要なチェーン店も一通り揃っていて便利。近所づきあいが殆ど無いのも良い
- 京都府長岡京市天神に住む人の口コミ50代男性
- 特別に優れた点はないが、人も多すぎず、総合的に見て暮らしやすい街だと思う。
物件概要
- 建物構造
- 木造
- 駐車場
- 空有 11,000円 物件からの距離0m
- 総戸数
- -
- 契約形態
- -
- 契約期間
- 2年間
- 更新料
- -
- その他費用
- 24時間サポート(2年):16,500円
- 保証会社
加入要
保証会社:全保連
保証会社利用料:初回:月額賃料等の50%、更新時:1.3万円/1年
- 住宅保険
- 要
- 管理
- -
- LIFULL HOME'S
物件番号 - 0103509-0276974
- 自社管理番号
- 15878637
- 取引態様
- 仲介
- 会社名
- 株式会社BRAVE 賃貸住宅サービスFC西院駅前店
営業スタッフコメント

株式会社BRAVE 賃貸住宅サービスFC西院駅前店ルームアドバイザー
粟野千織
皆様のサポートをできるよう一生懸命努めていきます!
業界経験1年
- スタッフ情報
- やっと見つけたあなたのお部屋
やっと見つけたあなたのお部屋
- 電話でお問合せ(通話無料)
お問合せ先 :株式会社BRAVE 賃貸住宅サービスFC西院駅前店
不動産会社情報
株式会社BRAVE 賃貸住宅サービスFC西院駅前店賃貸住宅サービス

京都府京都市中京区壬生西土居ノ内町21
阪急京都本線 西院駅 徒歩1分
- 営業時間
- 10:00~19:00
- 定休日
- 年中無休
優良店認定
地域密着no.1を目指し、日々営業をさせていただいております。西院駅、西京極駅など最寄駅への送迎もさせていただいております。
- 店舗の特徴
- 賃貸管理業務
- リフォーム対応
- 引越し業者紹介可
- 送迎あり
- オンライン相談可
- 保証人不要な物件あり
- 法人契約取扱い
- 女性スタッフ対応可
- 19時以降も営業
- 駅から歩いて3分以内
電話でお問合せお客様の電話番号は不動産会社には通知されません
- 不動産会社に
つながります
お客様の電話番号は不動産会社に通知されません
- ※光IP電話、及びIP電話からはご利用になれません
- ※お電話によるお問合せは、店舗営業時間内にお願いします。つながらない場合は、お問合せフォームよりお問合せください
- ※不動産会社がお電話に出られなかった場合、お問合せいただいた後に不動産会社より折り返しのお電話がある場合がございます(お客様が非通知設定した場合は対象外です)
- ※株式会社LIFULLは電話会社が提供するサービスを介してお客様の発信者番号を受領後、折り返し専用の電話番号を発番してお問合せの不動産会社に通知します(お客様の発信者番号がお問合せの不動産会社に通知されることはございません)
- ※携帯電話からお問合せいただいた方に対し、株式会社LIFULLは電話会社が提供するメッセ―ジサービスを介してお客様の発信者番号を受領後、ショートメッセージ(SMS)またはLINE通知メッセージによるお問合せ内容に関する通知をお届けする場合があります
- ※お客様が通話中に不動産会社にお伝えになったお客様の個人情報及び、電話会社が発番する折り返し専用の電話番号は、お問合せ先不動産会社が資料送付・電子メール送信・電話連絡などの目的で保管する可能性があります。お問合せ先不動産会社が保管する個人情報の取扱いについては、各不動産会社に直接お問合せください
- ※株式会社LIFULLでは本サービスを円滑に運用するために、お客様の発信者番号をサービスご利用の控えとして一定期間保管いたします
- ※上記および株式会社LIFULLの個人情報の取扱い方針に同意のうえ、お電話ください
【LIFULL HOME'S物件番号】0103509-0276974【自社管理番号】15878637
オンライン対応
オンライン相談に対応している物件です

「オンライン内見」「オンライン相談」「IT重説」とは?
物件の内見や不動産会社スタッフとの相談、契約前の重要事項説明をオンライン(ビデオ通話)で行うことができるサービスです。
オンライン内見
ビデオ通話で現地(物件)にいる不動産会社スタッフと映像・音声を使ってリアルタイムで会話しながら内見ができます。
オンライン相談
「物件について聞きたいことがある」など不動産会社スタッフへの相談もビデオ通話で行うことができます。
IT重説
契約前の重要事項説明(重説)をビデオ通話で行うことができます。
利用時の注意事項
- ビデオ通話については各不動産会社指定のものとなります。
- ビデオ通話利用時には通信が発生します。従量課金制通信サービスや通信量に上限があるネット回線・プランを利用する場合は、通信量にご注意ください。
- 通信速度やアプリの設定によってはビデオ通話の画質が低下することがあります。安定した画質で利用するためにも、Wi-Fi環境下での利用を推奨します。
- ご利用のビデオ通話アプリによっては、対象のOSやブラウザに制限がある場合があります。詳しくはお問合せ先不動産会社にご確認ください。
初期費用・月額費用をあわせて確認!この物件に住んだときの費用めやす
めやすを見るこの物件に住んだときの費用めやす
- 初期費用
- 月額費用
- 追加費用※ご確認ください
追加で費用が
かかる場合があります
必ずご確認ください
初期費用めやす約0円
追加で費用がかかります(※)敷金
0
- 礼金
230,000
- 保証金
0
賃料+共益費・管理費の1ヶ月分として換算
賃料の1ヶ月分+税として換算。不動産会社によって金額が異なるため正確な金額は不動産会社にお問合せください
※追加費用もチェック!
これらの項目以外にも費用がかかる場合があります。正確な金額は不動産会社にお問合せください。
- 初期費用
- 鍵交換費:不動産会社に要確認
- 室内清掃費:不動産会社に要確認
- 火災保険費:不動産会社に要確認
- 月額費用
- 駐車場費:11,000円※契約任意
- その他
- 24時間サポート(2年):16500円
- 保証会社
- 初回:月額賃料等の50%、更新時:1.3万円/1年
不動産会社より
洋服や小物をスッキリと。お片付けが楽しくなりそう。使い勝手のいいカウンターキッチンです。
法人相談 単身者可
- 保存する
- 共有する
- ※各種情報と現状に差異がある場合は、現状優先となります
- ※不動産会社が入力した情報を基に物件の位置を表示しています。詳しくは不動産会社までお問合せください
- ※不動産会社の方からの上記電話番号によるお問合せはお断りしております。こちら不動産会社詳細からお問合せください
- ※LIFULL HOME'Sは物件鮮度No.1を目指していきます。閲覧中の物件が「成約済である」「実際の物件情報と異なる点がある」などの場合、「掲載110番」からお問合せください
- ※QRコードは株式会社デンソーウェーブの登録商標です
したい暮らしのタグから探す
この物件を取扱う他の会社
LIFULL HOME'Sでは、主要項目が同一の物件をまとめて表示しています。所在地や営業時間、掲載画像等から不動産会社を選んでお問合せください。
株式会社BRAVE 賃貸住宅サービス FC桂駅前店
優良店認定
京都府京都市西京区桂野里町50-68
阪急京都本線 桂駅 徒歩1分
- 営業時間
- 10:00~19:00
- 定休日
- 年中無休(年末年始の除く)
株式会社エリッツ 伏見桃山店
優良店認定
京都府京都市伏見区観音寺町212-1 伏見ビル1階
近鉄京都線 桃山御陵前駅 徒歩1分
- 営業時間
- 10:00~19:00
- 定休日
- 年中無休(年末年始を除く)
株式会社エリッツ 新田辺店
京都府京田辺市田辺中央1丁目3番地1 新田辺ステーションパーク南館
近鉄京都線 新田辺駅 徒歩2分
- 営業時間
- 10:00~19:00
- 定休日
- 火・水曜日(祝日を除く)、年末年始 ※部屋探しのお問い合わせは無休
株式会社エリッツ 長岡天神店
京都府長岡京市開田3丁目1−22
阪急京都本線 長岡天神駅 徒歩1分
- 営業時間
- 10:00~19:00
- 定休日
- 水曜日(祝日を除く)お部屋探しのお問合せは無休です
LIFULL HOME'S 地図・周辺情報
買い物
- ローソン HB阪急長岡天神店
- ダイソー長岡天神店
- スギ薬局長岡天神店
- ローソン 長岡駅前店
- リバティ長岡店
グルメ
- マクドナルド 長岡天神店
- ドトールコーヒーショップ長岡天神店
- すき家 長岡天神駅前店
- 松のや長岡天神店
- イタリア料理サンマルコ長岡京店
育児・教育
- 長岡京市立新田保育所
- 長岡京市立長岡第六小学校
- 長岡京市立長岡中学校
- ゆりかご保育園
- 長岡京市立神足小学校
医療
- 医療法人総心会長岡京病院
- 医療法人社団千春会千春会病院
- 社会福祉法人恩賜財団京都済生会病院
- (財)療道協会西山病院
- (財)長岡記念財団長岡ヘルスケアセンター(長岡病院)
公共施設・郵便局
- 長岡開田郵便局
- 長岡京市立図書館
- 長岡京市役所
- 長岡京天神郵便局
- 向日市立図書館
公園
- 長岡公園
- 勝竜寺城公園
- 勝竜寺城公園
- 西山公園
- 西代里山公園
利用可能な駅
- 徒歩10分以内
阪急京都本線
- 長岡天神駅徒歩3分
- すべての駅
JR東海道・山陽本線
- 長岡京駅徒歩14分
- 周辺情報は2023年07月21日時点のものになります。
- 周辺情報は、参考情報としてのみご利用ください(周辺情報は、株式会社LIFULLが地図情報の提供事業者から提供を受けた情報とLIFULL HOME'Sの物件情報に基づき、独自の方法で抽出し提供しているものです。周辺情報は、移転や閉鎖等により情報が最新ではない、または正しくない場合がありますが、地図情報の提供事業者から提供された情報をそのまま周辺情報として表示しているため、正確かつ最新の情報へ修正することができないことがあります。)
- 周辺情報は、株式会社LIFULLが掲載するものであり、不動産物件情報を掲載している不動産会社が掲載するものではありません
- 交通情報の一部については、株式会社LIFULLが掲載するものであり、不動産物件情報を掲載している不動産会社が掲載するものではない場合があります。交通情報に関する質問などは株式会社LIFULLにお問合せください





















