LIFULL HOME'Sは物件鮮度No.1!※評価について
カストルム洛北 6階/710
11.3万円/管理費等12,000円
7時間前 更新
画像一覧
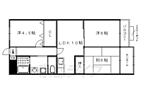
1/26間取り
2/26リビング/ダイニング
居室
3/26リビング/ダイニング
居室
4/26室内
洋室
5/26寝室
洋室
6/26寝室
洋室
7/26寝室
和室
8/26子供部屋
洋室
9/26キッチン
キッチン
10/26キッチン
キッチン
11/26浴室
風呂
12/26浴室
風呂
13/26トイレ
トイレ
14/26洗面
洗面所
15/26収納
収納
16/26設備
下駄箱
17/26設備
冷蔵庫置場
18/26設備
洗濯機置場
19/26玄関
玄関
20/26バルコニー
ベランダ
21/26その他
廊下
22/26その他
眺望
23/26その他
エアコン
24/26その他
給湯器リモコン
25/26その他
TVモニターフォン
26/26その他
サンルーム
間取り
リビング/ダイニング
リビング/ダイニング
室内
寝室
寝室
寝室
子供部屋
キッチン
キッチン
浴室
浴室
トイレ
洗面
収納
設備
設備
設備
玄関
バルコニー
その他
その他
その他
その他
その他
その他
お問合せ先 :株式会社エリッツ 出町柳店
住まい探し特典内容
電気・ガス・インターネットの手続き代行のご案内します。
- 利用条件
- 株式会社エリッツ 出町柳店で利用可
- 他特典との併用可
利用方法
来店時に本特典の画面をスマートフォンやタブレットでスタッフに提示、または画面印刷した用紙を提示ください。
有効期限 なし
南向き。大通り沿いのファミリー物件です。--パノラマ掲載--
物件のこだわり/設備・条件
新築(非該当)
2階以上の物件(該当)
南向き(非該当)
駐車場あり(該当)
オートロック(該当)
エアコン(該当)
バス・トイレ別(該当)
追焚機能(該当)
フローリング(該当)
ペット相談(非該当)
入居条件
二人入居可キッチン/バス・トイレ
設備・サービス
オートロック、エアコン、クローゼット、シューズボックス、CATV、BS対応、光ファイバー、公営水道、都市ガス、下水、フローリング、バルコニー、室内洗濯機置場、エレベーター、駐車場あり、駐輪場ありその他
初期費用カード決済可、住まい探し特典あり備考
【養徳小学校・高野中学校区】。「左京区・高野」といったらこの建物を連想する方も多いはず。このエリアで、もっとも大きな規模の建物のひとつです。1階は飲食店、理髪店、書店、と、便利な施設がたくさんです。・光ファイバーインターネット接続可
物件周辺の生活情報
学校
- 養徳小学校(500m)
- 高野中学校(90m)
買い物
- コンビニ(210m)
- スーパー(50m)
- ドラッグストア(400m)
その他施設
- 総合病院(330m)
交通
- 叡山電鉄叡山本線 茶山・京都芸術大学駅 徒歩7分
- 普通(停車)
- 京都市営烏丸線 松ヶ崎駅 バス9分 高野下車 徒歩3分
- 普通(停車)
- 急行(停車)
※急行等の停車駅情報について
急行等の停車駅に関するデータは、随時更新をしておりますが、最新の内容であることを保証するものではありません。
最新かつ正確な情報につきましては、各鉄道会社のウェブサイトにてご確認ください
物件周辺の口コミ
- 京都府京都市左京区高野東開町に住む人の口コミ30代女性
自分や家族に必要な物は徒歩数分の場所で購入することができるし、バス停も近い。書館、小学校も近くにあり育児も比較的しやすい環境。昔馴染みの知り合いが多く、人との関わりを持てるので孤独さもない。
口コミを見る
この物件周辺に住む人の口コミ
口コミは、LIFULL HOME'Sが実際にこの物件の周辺に住む18歳~69歳の男女を対象に、WEBアンケート調査を実施しています。内容には回答者の主観的な表現が含まれる場合があるほか、事実と異なる場合もございます。ご了承ください。
- 京都府京都市左京区高野東開町に住む人の口コミ30代女性
- 自分や家族に必要な物は徒歩数分の場所で購入することができるし、バス停も近い。書館、小学校も近くにあり育児も比較的しやすい環境。昔馴染みの知り合いが多く、人との関わりを持てるので孤独さもない。
- 京都府京都市左京区高野東開町に住む人の口コミ40代女性
- スーパーや商業施設があり、学校も病院もあるので過ごしやすい。川があり、河川敷には桜並木があるので散歩にも適した町だから。
- 京都府京都市左京区高野東開町に住む人の口コミ50代女性
- 交通の便もよく、鴨川も近くて、山に囲まれとても、素敵な街です。
- 京都府京都市左京区高野東開町に住む人の口コミ50代男性
- スーパー、コンビニ、銀行、郵便局、大型家電、駅、バス停等が徒歩すぐにある。但し、駅はJRには接続が難しい。
- 京都府京都市左京区高野東開町に住む人の口コミ40代女性
- 徒歩5分で大型スーパーやホームセンター、郵便局、図書館、バス停がある。大人は便利だか公園や広場はボール遊びは禁止、近隣から苦情があったりするので、実際は子供に厳しい。
- 京都府京都市左京区高野東開町に住む人の口コミ30代女性
- 比較的、自転車でまわれる範囲内でショッピングセンターも病院も銀行も、何もかも揃っている
- 京都府京都市北区上賀茂本山に住む人の口コミ50代男性
- 冬の寒さが厳しいことと、昔からこの土地に住まう人が多く馴染みにくいところがあること。
- 京都府京都市左京区高野竹屋町に住む人の口コミ30代女性
- スーパーや銀行など生活に必要な施設が自転車圏内にある程度揃っているので便利。ファミリーが多く住んでいる割には習い事の種類が少ないのが残念に感じる
- 京都府京都市左京区田中上大久保町に住む人の口コミ50代女性
- 都会でもなく田舎でもなく、ちょうどいい。買い物や交通の便が良い。バスの系統が多く、電車の駅も近い。
- 京都府京都市北区上賀茂畔勝町に住む人の口コミ50代女性
- 静かな住宅街である。近くに植物園やコンサートホール、鴨川、神社などがある。おいしいパン屋やスィーツの店、レストランがありスーパーやコンビニもあり地下鉄の駅が近く便利である。
物件概要
- 建物構造
- RC(鉄筋コンクリート)
- 駐車場
- 空有 22,000円(税込)
- 総戸数
- 110戸
- 契約形態
- -
- 契約期間
- 2年間
- 更新料
- 新賃料の2ヶ月分
- その他費用
- 鍵交換費用:16,500円、その他(初回):15,000円、駐車場手数料(初回):22,000円
- 保証会社
- -
- 住宅保険
- 要
- 管理
- -
- LIFULL HOME'S
物件番号 - 0110596-0289735
- 自社管理番号
- 11012-0710
- 取引態様
- 仲介
- 会社名
- 株式会社エリッツ 出町柳店
営業スタッフコメント

株式会社エリッツ 出町柳店
神田
明るく元気にお部屋探しお手伝いさせて頂きます!
業界経験1年
資格宅地建物取引士
- 会社実績や特徴・サービス情報
- 賃貸のエリッツ出町柳店は、京阪出町柳駅近くに店舗を構え、京都大学(京大)を始めとする学生専用の賃貸マンションから社会人の為の単身賃貸マンション、新婚様やご家族の為のファミリー賃貸物件や友人同士のルームシェア対応賃貸、ペット可能賃貸、テナント賃貸物件など、数多くのニーズに応じた賃貸物件を提供致します。
賃貸のエリッツ出町柳店は、京阪出町柳駅近くに店舗を構え、京都大学(京大)を始めとする学生専用の賃貸マンションから社会人の為の単身賃貸マンション、新婚様やご家族の為のファミリー賃貸物件や友人同士のルームシェア対応賃貸、ペット可能賃貸、テナント賃貸物件など、数多くのニーズに応じた賃貸物件を提供致します。
- 電話でお問合せ(通話無料)
お問合せ先 :株式会社エリッツ 出町柳店
不動産会社情報
株式会社エリッツ 出町柳店賃貸のエリッツ出町柳店

京都府京都市左京区田中関田町16−1 グランコスモ出町柳II 1F
京阪本線 出町柳駅 徒歩4分
- 営業時間
- 10:00~19:00
- 定休日
- 年中無休(年末年始を除く)
優良店認定
京都市左京区のお部屋探しは「エリッツ出町柳店」にお任せ下さい。京都市内一の店舗数による豊富な情報でご満足頂けるお部屋をお探し致します。京都大学・京都芸術大学の関係者様、是非お越しください。
- 店舗の特徴
- 引越し業者紹介可
- 年中無休
- オンライン相談可
- 保証人不要な物件あり
- 法人契約取扱い
- 女性スタッフ対応可
- 駅から歩いて3分以内
- 外国語を話せるスタッフ在籍
電話でお問合せお客様の電話番号は不動産会社には通知されません
- 不動産会社に
つながります
お客様の電話番号は不動産会社に通知されません
- ※光IP電話、及びIP電話からはご利用になれません
- ※お電話によるお問合せは、店舗営業時間内にお願いします。つながらない場合は、お問合せフォームよりお問合せください
- ※不動産会社がお電話に出られなかった場合、お問合せいただいた後に不動産会社より折り返しのお電話がある場合がございます(お客様が非通知設定した場合は対象外です)
- ※株式会社LIFULLは電話会社が提供するサービスを介してお客様の発信者番号を受領後、折り返し専用の電話番号を発番してお問合せの不動産会社に通知します(お客様の発信者番号がお問合せの不動産会社に通知されることはございません)
- ※携帯電話からお問合せいただいた方に対し、株式会社LIFULLは電話会社が提供するメッセ―ジサービスを介してお客様の発信者番号を受領後、ショートメッセージ(SMS)またはLINE通知メッセージによるお問合せ内容に関する通知をお届けする場合があります
- ※お客様が通話中に不動産会社にお伝えになったお客様の個人情報及び、電話会社が発番する折り返し専用の電話番号は、お問合せ先不動産会社が資料送付・電子メール送信・電話連絡などの目的で保管する可能性があります。お問合せ先不動産会社が保管する個人情報の取扱いについては、各不動産会社に直接お問合せください
- ※株式会社LIFULLでは本サービスを円滑に運用するために、お客様の発信者番号をサービスご利用の控えとして一定期間保管いたします
- ※上記および株式会社LIFULLの個人情報の取扱い方針に同意のうえ、お電話ください
【LIFULL HOME'S物件番号】0110596-0289735【自社管理番号】11012-0710
オンライン対応
オンライン相談・IT重説に対応している物件です

「オンライン内見」「オンライン相談」「IT重説」とは?
物件の内見や不動産会社スタッフとの相談、契約前の重要事項説明をオンライン(ビデオ通話)で行うことができるサービスです。
オンライン内見
ビデオ通話で現地(物件)にいる不動産会社スタッフと映像・音声を使ってリアルタイムで会話しながら内見ができます。
オンライン相談
「物件について聞きたいことがある」など不動産会社スタッフへの相談もビデオ通話で行うことができます。
IT重説
契約前の重要事項説明(重説)をビデオ通話で行うことができます。
利用時の注意事項
- ビデオ通話については各不動産会社指定のものとなります。
- ビデオ通話利用時には通信が発生します。従量課金制通信サービスや通信量に上限があるネット回線・プランを利用する場合は、通信量にご注意ください。
- 通信速度やアプリの設定によってはビデオ通話の画質が低下することがあります。安定した画質で利用するためにも、Wi-Fi環境下での利用を推奨します。
- ご利用のビデオ通話アプリによっては、対象のOSやブラウザに制限がある場合があります。詳しくはお問合せ先不動産会社にご確認ください。
初期費用・月額費用をあわせて確認!この物件に住んだときの費用めやす
めやすを見るこの物件に住んだときの費用めやす
- 初期費用
- 月額費用
- 追加費用※ご確認ください
追加で費用が
かかる場合があります
必ずご確認ください
初期費用めやす約0円
追加で費用がかかります(※)敷金
100,000
- 礼金
100,000
賃料+共益費・管理費の1ヶ月分として換算
賃料の1ヶ月分+税として換算。不動産会社によって金額が異なるため正確な金額は不動産会社にお問合せください
※追加費用もチェック!
これらの項目以外にも費用がかかる場合があります。正確な金額は不動産会社にお問合せください。
- 初期費用
- 鍵交換費:16,500円
- 室内清掃費:不動産会社に要確認
- 火災保険費:不動産会社に要確認
- 月額費用
- 駐車場費:22,000円(税込)※契約任意
- その他
- その他(初回):15000円
- 駐車場手数料(初回):22000円
- 保証会社
- 不動産会社に要確認
不動産会社より
南向き。大通り沿いのファミリー物件です。--パノラマ掲載--
【養徳小学校・高野中学校区】。「左京区・高野」といったらこの建物を連想する方も多いはず。このエリアで、もっとも大きな規模の建物のひとつです。1階は飲食店、理髪店、書店、と、便利な施設がたくさんです。・光ファイバーインターネット接続可
- 保存する
- 共有する
- ※各種情報と現状に差異がある場合は、現状優先となります
- ※不動産会社が入力した情報を基に物件の位置を表示しています。詳しくは不動産会社までお問合せください
- ※不動産会社の方からの上記電話番号によるお問合せはお断りしております。こちら不動産会社詳細からお問合せください
- ※LIFULL HOME'Sは物件鮮度No.1を目指していきます。閲覧中の物件が「成約済である」「実際の物件情報と異なる点がある」などの場合、「掲載110番」からお問合せください
- ※QRコードは株式会社デンソーウェーブの登録商標です
LIFULL HOME'S 地図・周辺情報
買い物
- ローソン 北大路高野店
- イズミヤ ショッピングセンター高野店
- ココカラファインプラスイズミヤ高野店
- セブンイレブン 京都田中上古川町店
- Can★Doイズミヤ高野店
グルメ
- なか卯 北大路高野店
- 丸亀製麺洛北阪急スクエア店
- 廻転寿司京都CHOJIRO洛北阪急スクエア店
- スターバックスコーヒー洛北阪急スクエア店
- 星乃珈琲店洛北阪急スクエア店
育児・教育
- 高野保育園
- 京都市立養徳小学校
- 京都市立高野中学校
- 子どものその保育園
- 京都市立修学院第二小学校
医療
- 医療法人社団順和会京都下鴨病院
- 医療法人一仁会脳神経リハビリ北大路病院
- 公益社団法人信和会京都民医連あすかい病院
- (財)日本バプテスト連盟医療団総合病院日本バプテスト病院
- 医療法人財団康生会北山武田病院
公共施設・郵便局
- 左京郵便局
- 京都市左京図書館
- 京都市左京区役所
- 京都高野竹屋郵便局
- 京都市北図書館
公園
- 吉田山公園
- 宝が池公園子どもの楽園
- 宝が池公園
- 京都御苑
- 岩倉南公園
利用可能な駅
- 徒歩10分以内
京都市営烏丸線
- 松ヶ崎駅 バス9分 高野下車徒歩3分
叡山電鉄叡山本線
- 茶山・京都芸術大学駅徒歩7分
- 一乗寺駅徒歩10分
- すべての駅
叡山電鉄叡山本線
- 元田中駅徒歩11分
- 修学院駅徒歩17分
- 宝ケ池駅徒歩30分
- 三宅八幡駅3.1km
京阪本線
- 出町柳駅徒歩24分
- 神宮丸太町駅3.1km
京都市営烏丸線
- 北山駅徒歩29分
- 北大路駅徒歩30分
- 鞍馬口駅徒歩32分
- 今出川駅3.2km
- 国際会館駅3.5km
叡山電鉄鞍馬線
- 八幡前駅3.3km
- 周辺情報は2023年07月21日時点のものになります。
- 周辺情報は、参考情報としてのみご利用ください(周辺情報は、株式会社LIFULLが地図情報の提供事業者から提供を受けた情報とLIFULL HOME'Sの物件情報に基づき、独自の方法で抽出し提供しているものです。周辺情報は、移転や閉鎖等により情報が最新ではない、または正しくない場合がありますが、地図情報の提供事業者から提供された情報をそのまま周辺情報として表示しているため、正確かつ最新の情報へ修正することができないことがあります。)
- 周辺情報は、株式会社LIFULLが掲載するものであり、不動産物件情報を掲載している不動産会社が掲載するものではありません
- 交通情報の一部については、株式会社LIFULLが掲載するものであり、不動産物件情報を掲載している不動産会社が掲載するものではない場合があります。交通情報に関する質問などは株式会社LIFULLにお問合せください
















