LIFULL HOME'Sは物件鮮度No.1!※評価について
リーガル京都堀川五条通り 5階
8.8万円/管理費等9,990円
4時間前 更新
画像一覧
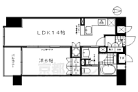
1/30間取り
2/30外観
3/30外観
4/30リビング/ダイニング
洋室
5/30室内
洋室
6/30寝室
洋室
7/30寝室
洋室
8/30子供部屋
洋室
9/30キッチン
キッチン
10/30キッチン
3口コンロ
11/30キッチン
収納
12/30浴室
風呂
13/30浴室
浴槽
14/30浴室
風呂
15/30トイレ
トイレ
16/30洗面
洗面所
17/30収納
収納
18/30収納
収納
19/30設備
下駄箱
20/30設備
冷蔵庫置場
21/30設備
洗濯機置場
22/30設備
下駄箱
23/30玄関
玄関
24/30玄関
鏡
25/30バルコニー
ベランダ
26/30エントランス
エントランス
27/30その他
眺望
28/30その他
脱衣所
29/30周辺
フレスコ 五条西洞院店まで450メートル
30/30周辺
ファミリーマート 五条大宮店まで180メートル
間取り
外観
外観
リビング/ダイニング
室内
寝室
寝室
子供部屋
キッチン
キッチン
キッチン
浴室
浴室
浴室
トイレ
洗面
収納
収納
設備
設備
設備
設備
玄関
玄関
バルコニー
エントランス
その他
その他
周辺
周辺
お問合せ先 :株式会社エリッツ 七条京阪店
住まい探し特典内容
電気・ガス・インターネットの手続き代行のご案内します。
- 利用条件
- 株式会社エリッツ 七条京阪店で利用可
- 他特典との併用可
利用方法
来店時に本特典の画面をスマートフォンやタブレットでスタッフに提示、または画面印刷した用紙を提示ください。
有効期限 なし
【分譲賃貸マンション】L字キッチン。--パノラマ掲載--
基本情報
不動産用語- 賃料
- 8.8万円
- 管理費等
- 9,990円
初期費用などお気軽にお問合せください
- 敷金/礼金
- 無/8.8万円
- 保証金/敷引・償却金
- -/-
- 交通
京都市営烏丸線 五条駅 徒歩10分
京都市営烏丸線 京都駅 徒歩23分
JR嵯峨野線 丹波口駅 徒歩11分
- 所在地
京都府京都市下京区五条通猪熊東入柿本町
地図を見る- 築年月
- 2014年12月(築11年)
- 主要採光面
- 西
- 専有面積
- 37.96㎡
- バルコニー面積
- -
- 所在階/階数
- 5階/8階建
- 現況
- 空家
- 入居可能時期
- 即時

人気物件はすぐに埋まってしまいます。
気になったらお早めにお問合せください。
- 情報公開日
2025/09/14
69日前 公開
- 情報更新日
2025/11/22
4時間前 更新
- 次回更新
予定日 - 2025/11/24
物件のこだわり/設備・条件
新築(非該当)
2階以上の物件(該当)
南向き(非該当)
駐車場(非該当)
オートロック(該当)
エアコン(非該当)
バス・トイレ別(該当)
追焚機能(該当)
フローリング(該当)
ペット相談(非該当)
位置
角部屋入居条件
二人入居可、即入居可キッチン/バス・トイレ
設備・サービス
オートロック、防犯カメラ、TVモニタ付インターホン、クローゼット、シューズボックス、光ファイバー、公営水道、都市ガス、下水、フローリング、バルコニー、室内洗濯機置場、エレベーター、宅配ボックス、駐輪場ありその他
家賃・初期費用カード決済可、分譲賃貸、住まい探し特典あり備考
2014年築の単身向け分譲賃貸です。システムキッチンなどの設備充実しております。スーパーまで徒歩4分、コンビニは徒歩3分と便利です。大通りに面しており、夜道も安心して帰宅して頂けます。・光ファイバーインターネット接続可
物件周辺の生活情報
買い物
- コンビニ(180m)
- スーパー(450m)
その他施設
- 総合病院(1,500m)
交通
- 京都市営烏丸線 五条駅 徒歩10分
- 普通(停車)
- 急行(停車)
- 京都市営烏丸線 京都駅 徒歩23分
- 普通(停車)
- 急行(停車)
※急行等の停車駅情報について
急行等の停車駅に関するデータは、随時更新をしておりますが、最新の内容であることを保証するものではありません。
最新かつ正確な情報につきましては、各鉄道会社のウェブサイトにてご確認ください
物件周辺の口コミ
- 京都府京都市下京区東堀川通高辻上るに住む人の口コミ30代女性
治安が良く、夜遅くに仕事から帰ってきても安心して歩ける。大通りがある割には騒がしくない。高齢者や若い人、ファミリーなど様々な層の方がいるが、品が良く、安心できる。
口コミを見る
この物件周辺に住む人の口コミ
口コミは、LIFULL HOME'Sが実際にこの物件の周辺に住む18歳~69歳の男女を対象に、WEBアンケート調査を実施しています。内容には回答者の主観的な表現が含まれる場合があるほか、事実と異なる場合もございます。ご了承ください。
- 京都府京都市下京区東堀川通高辻上るに住む人の口コミ30代女性
- 治安が良く、夜遅くに仕事から帰ってきても安心して歩ける。大通りがある割には騒がしくない。高齢者や若い人、ファミリーなど様々な層の方がいるが、品が良く、安心できる。
- 京都府京都市下京区東中筋通松原上る東入に住む人の口コミ30代女性
- 周りは同じ年代のファミリー層が住んでいるので、お互い助け合いながら住んでいる
- 京都府京都市下京区松原通油小路東入に住む人の口コミ30代女性
- 治安がよく、遅くまで仕事をしても、複数の交通機関が使用できる。
- 京都府京都市下京区室町通万寿寺上るに住む人の口コミ30代女性
- 交通の便がよい。コンビニやスーパー、飲食店がたくさんある。近所に警察署もあり安心。住民が上品でガラの悪さを感じない。図書館も近い。ただ、街中なので緑が少ない点だけ残念。
- 京都府京都市下京区松原通油小路東入に住む人の口コミ30代女性
- 交通の便がよく、都会でありながら騒がしくなり、伝統行事などにも接しやすい。
- 京都府京都市下京区西木屋町通六軒下るに住む人の口コミ20代女性
- 交通の便利さ。近くにスーパーやデパート、コンビニがあり大体のものが徒歩圏内で揃う。
- 京都府京都市下京区中堂寺坊城町に住む人の口コミ30代男性
- 駅が近い。スーパーの数はそんなに無いが近くにある。公園が近くにある。ドラックストアが近くにある。家族で行ける飲食店が近くにある。
- 京都府京都市下京区柳馬場通万寿寺上るに住む人の口コミ20代女性
- 観光地なので外国人が多く、静かではない。あと建物が密集していて窮屈な感じもある。それを除けば買い物もしやすいし、交通の便も良いので住みやすいと言える。
- 京都府京都市下京区富小路通松原上るに住む人の口コミ30代男性
- 交通の利便性が高く、商業施設等も充実しているので、買い物も困らない。
- 京都府京都市下京区西洞院通高辻下る東入に住む人の口コミ30代男性
- 静かで住みやすいですが、織物屋の臭いがきついから窓をあけられないのと、町内の集まりが多くて、付き合いがめんどくさい。
物件概要
- 建物構造
- RC(鉄筋コンクリート)
- 駐車場
- 近隣 20,900円(税込) 物件からの距離89m
- 総戸数
- 42戸
- 契約形態
- -
- 契約期間
- 2年間
- 更新料
- -
- その他費用
- -
- 保証会社
- -
- 住宅保険
- 要
- 管理
- -
- LIFULL HOME'S
物件番号 - 0117114-0311407
- 自社管理番号
- 81828-0501
- 取引態様
- 仲介
- 会社名
- 株式会社エリッツ 七条京阪店
営業スタッフコメント

株式会社エリッツ 七条京阪店
小野
お客様にベストな物件をご紹介します
業界経験2年
- 会社実績や特徴・サービス情報
- 東山にあるエリッツ七条京阪店は、京阪沿線の特急電車が停車する京阪七条駅から東に徒歩二分、京都女子大学から徒歩約9分。当店のある東山区には京都女子大学や観光名所があり緑が多く住んでみたい地域NO1です。京都女子大学生さん向け物件、単身者向けの1K、新婚さん向け1LDKやファミリータイプのマンションや借家、京都女子大学生ルームシェア等様々な物件を揃えてお待ちしています。京都女子大学があるので女性専用が多いのも特徴です。京都女子大学生さん向けの物件を多数取り揃えております。京都女子大学生さんも、初めての一人暮らしの京都女子大学新入生さんも、お気軽にご来店下さい。京都女子大学の学生さんじゃなくてもお客様にぴったりのお部屋をご紹介させて頂きます。
東山にあるエリッツ七条京阪店は、京阪沿線の特急電車が停車する京阪七条駅から東に徒歩二分、京都女子大学から徒歩約9分。当店のある東山区には京都女子大学や観光名所があり緑が多く住んでみたい地域NO1です。京都女子大学生さん向け物件、単身者向けの1K、新婚さん向け1LDKやファミリータイプのマンションや借家、京都女子大学生ルームシェア等様々な物件を揃えてお待ちしています。京都女子大学があるので女性専用が多いのも特徴です。京都女子大学生さん向けの物件を多数取り揃えております。京都女子大学生さんも、初めての一人暮らしの京都女子大学新入生さんも、お気軽にご来店下さい。京都女子大学の学生さんじゃなくてもお客様にぴったりのお部屋をご紹介させて頂きます。
- 電話でお問合せ(通話無料)
お問合せ先 :株式会社エリッツ 七条京阪店
不動産会社情報
株式会社エリッツ 七条京阪店賃貸のエリッツ七条京阪店

京都府京都市東山区本町6丁目1−5 藤本ビル1F
京阪本線 七条駅 徒歩2分
- 営業時間
- 10:00~19:00
- 定休日
- 水曜日(祝日を除く)、年末年始 ※部屋探しのお問い合わせは無休
優良店認定
単身者からファミリー向けのマンション・貸家など、多くの物件を揃えております。京都女子大学の最寄り店舗ですので、大学近くでお探しの学生さんも、京都市内で広くお探しの社会人さんもお気軽にご来店下さい。
- 店舗の特徴
- 引越し業者紹介可
- 系列店舗での対応可
- 社宅・寮物件取扱い
- オンライン相談可
- 保証人不要な物件あり
- 法人契約取扱い
- 駅から歩いて3分以内
電話でお問合せお客様の電話番号は不動産会社には通知されません
- 不動産会社に
つながります
お客様の電話番号は不動産会社に通知されません
- ※光IP電話、及びIP電話からはご利用になれません
- ※お電話によるお問合せは、店舗営業時間内にお願いします。つながらない場合は、お問合せフォームよりお問合せください
- ※不動産会社がお電話に出られなかった場合、お問合せいただいた後に不動産会社より折り返しのお電話がある場合がございます(お客様が非通知設定した場合は対象外です)
- ※株式会社LIFULLは電話会社が提供するサービスを介してお客様の発信者番号を受領後、折り返し専用の電話番号を発番してお問合せの不動産会社に通知します(お客様の発信者番号がお問合せの不動産会社に通知されることはございません)
- ※携帯電話からお問合せいただいた方に対し、株式会社LIFULLは電話会社が提供するメッセ―ジサービスを介してお客様の発信者番号を受領後、ショートメッセージ(SMS)またはLINE通知メッセージによるお問合せ内容に関する通知をお届けする場合があります
- ※お客様が通話中に不動産会社にお伝えになったお客様の個人情報及び、電話会社が発番する折り返し専用の電話番号は、お問合せ先不動産会社が資料送付・電子メール送信・電話連絡などの目的で保管する可能性があります。お問合せ先不動産会社が保管する個人情報の取扱いについては、各不動産会社に直接お問合せください
- ※株式会社LIFULLでは本サービスを円滑に運用するために、お客様の発信者番号をサービスご利用の控えとして一定期間保管いたします
- ※上記および株式会社LIFULLの個人情報の取扱い方針に同意のうえ、お電話ください
【LIFULL HOME'S物件番号】0117114-0311407【自社管理番号】81828-0501
オンライン対応
オンライン内見・オンライン相談・IT重説に対応している物件です

「オンライン内見」「オンライン相談」「IT重説」とは?
物件の内見や不動産会社スタッフとの相談、契約前の重要事項説明をオンライン(ビデオ通話)で行うことができるサービスです。
オンライン内見
ビデオ通話で現地(物件)にいる不動産会社スタッフと映像・音声を使ってリアルタイムで会話しながら内見ができます。
オンライン相談
「物件について聞きたいことがある」など不動産会社スタッフへの相談もビデオ通話で行うことができます。
IT重説
契約前の重要事項説明(重説)をビデオ通話で行うことができます。
利用時の注意事項
- ビデオ通話については各不動産会社指定のものとなります。
- ビデオ通話利用時には通信が発生します。従量課金制通信サービスや通信量に上限があるネット回線・プランを利用する場合は、通信量にご注意ください。
- 通信速度やアプリの設定によってはビデオ通話の画質が低下することがあります。安定した画質で利用するためにも、Wi-Fi環境下での利用を推奨します。
- ご利用のビデオ通話アプリによっては、対象のOSやブラウザに制限がある場合があります。詳しくはお問合せ先不動産会社にご確認ください。
初期費用・月額費用をあわせて確認!この物件に住んだときの費用めやす
めやすを見るこの物件に住んだときの費用めやす
- 初期費用
- 月額費用
- 追加費用※ご確認ください
追加で費用が
かかる場合があります
必ずご確認ください
初期費用めやす約0円
追加で費用がかかります(※)敷金
0
- 礼金
88,000
賃料+共益費・管理費の1ヶ月分として換算
賃料の1ヶ月分+税として換算。不動産会社によって金額が異なるため正確な金額は不動産会社にお問合せください
※追加費用もチェック!
これらの項目以外にも費用がかかる場合があります。正確な金額は不動産会社にお問合せください。
- 初期費用
- 鍵交換費:不動産会社に要確認
- 室内清掃費:不動産会社に要確認
- 火災保険費:不動産会社に要確認
- 月額費用
- 駐車場費:20,900円(税込)※近隣
- 保証会社
- 不動産会社に要確認
不動産会社より
【分譲賃貸マンション】L字キッチン。--パノラマ掲載--
2014年築の単身向け分譲賃貸です。システムキッチンなどの設備充実しております。スーパーまで徒歩4分、コンビニは徒歩3分と便利です。大通りに面しており、夜道も安心して帰宅して頂けます。・光ファイバーインターネット接続可
- 保存する
- 共有する
- ※各種情報と現状に差異がある場合は、現状優先となります
- ※不動産会社が入力した情報を基に物件の位置を表示しています。詳しくは不動産会社までお問合せください
- ※不動産会社の方からの上記電話番号によるお問合せはお断りしております。こちら不動産会社詳細からお問合せください
- ※LIFULL HOME'Sは物件鮮度No.1を目指していきます。閲覧中の物件が「成約済である」「実際の物件情報と異なる点がある」などの場合、「掲載110番」からお問合せください
- ※QRコードは株式会社デンソーウェーブの登録商標です
この物件を取扱う他の会社
LIFULL HOME'Sでは、主要項目が同一の物件をまとめて表示しています。所在地や営業時間、掲載画像等から不動産会社を選んでお問合せください。
株式会社エリッツ 四条河原町店
優良店認定
京都府京都市下京区河原町通四条下る2丁目稲荷町317−2 RISSI−DO 1F
阪急京都本線 京都河原町駅 徒歩2分
- 営業時間
- 10:00~19:00
- 定休日
- 水曜日(祝日を除く)、年末年始 ※部屋探しのお問い合わせは無休
株式会社エリッツ 河原町三条店
優良店認定
京都府京都市中京区三条通河原町東入中島町83 はせ川ビル1F
京都地下鉄東西線 京都市役所前駅 徒歩4分
- 営業時間
- 10:00~19:00
- 定休日
- 火・水曜日 (祝日を除く)、 ※部屋探しのお問い合わせは無休
株式会社エリッツ 四条大宮店
優良店認定
京都府京都市中京区壬生坊城町1−10 宮崎ビル1F
阪急京都本線 大宮駅 徒歩2分
- 営業時間
- 10:00~19:00
- 定休日
- 水曜日(祝日を除く)、年末年始 ※部屋探しのお問い合わせは無休
株式会社BRAVE 賃貸住宅サービス FC桂駅前店
京都府京都市西京区桂野里町50-68
阪急京都本線 桂駅 徒歩1分
- 営業時間
- 10:00~19:00
- 定休日
- 年中無休(年末年始の除く)
最近見た賃貸物件
LIFULL HOME'S 地図・周辺情報
買い物
- ファミリーマート 五条大宮店
- フレスコ 五条西洞院店
- ココカラファイン新町店
- セブンイレブン 京都堀川松原店
- フレスコ 五条壬生川店
グルメ
- ロイヤルホスト 堀川五条店
- CoCo壱番屋 京都四条大宮店
- 吉野家 烏丸五条店
- マクドナルド 烏丸五条店
- CoCo壱番屋 烏丸五条店
育児・教育
- 京都市立楊梅幼稚園
- 京都市立下京雅小学校
- 京都市立松原中学校
- たちばな保育園
- 京都市立光徳小学校
医療
- 医療法人令寿会しまばら病院
- 木津屋橋武田病院
- 山元病院
- 医療法人財団康生会武田病院
- 医療法人回生会京都回生病院
公共施設・郵便局
- 京都六条郵便局
- 京都市下京図書館
- 京都府下京警察署
- 京都大宮松原郵便局
- 京都市南図書館
公園
- 光徳公園
- 梅小路公園
- 梅小路公園
- 唐橋西寺公園
- 梅屋広場公園
利用可能な駅
- 徒歩10分以内
京都市営烏丸線
- 五条駅徒歩10分
- すべての駅
京都市営烏丸線
- 京都駅徒歩23分
- その他交通
- JR嵯峨野線 丹波口駅 徒歩11分
- 周辺情報は2023年07月21日時点のものになります。
- 周辺情報は、参考情報としてのみご利用ください(周辺情報は、株式会社LIFULLが地図情報の提供事業者から提供を受けた情報とLIFULL HOME'Sの物件情報に基づき、独自の方法で抽出し提供しているものです。周辺情報は、移転や閉鎖等により情報が最新ではない、または正しくない場合がありますが、地図情報の提供事業者から提供された情報をそのまま周辺情報として表示しているため、正確かつ最新の情報へ修正することができないことがあります。)
- 周辺情報は、株式会社LIFULLが掲載するものであり、不動産物件情報を掲載している不動産会社が掲載するものではありません
- 交通情報の一部については、株式会社LIFULLが掲載するものであり、不動産物件情報を掲載している不動産会社が掲載するものではない場合があります。交通情報に関する質問などは株式会社LIFULLにお問合せください



















































