LIFULL HOME'Sは物件鮮度No.1!※評価について
カシオペア 1階
7万円/管理費等5,000円
22時間前 更新
画像一覧
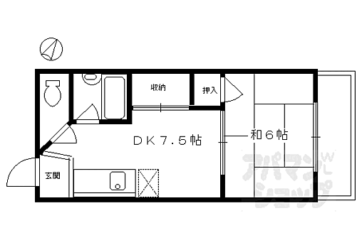
1/25間取り
2/25外観
3/25外観
4/25リビング/ダイニング
5/25リビング/ダイニング
6/25室内
7/25室内
8/25キッチン
9/25キッチン
10/25浴室
11/25浴室
12/25トイレ
13/25洗面
14/25収納
15/25設備
16/25玄関
17/25バルコニー
18/25エントランス
19/25駐車場
20/25その他
21/25その他
22/25その他
23/25その他
24/25周辺
中学校「鈴鹿市立創徳中学校まで1917m」
25/25周辺
スーパー「業務スーパー道伯店まで2227m」
間取り
外観
外観
リビング/ダイニング
リビング/ダイニング
室内
室内
キッチン
キッチン
浴室
浴室
トイレ
洗面
収納
設備
玄関
バルコニー
エントランス
駐車場
その他
その他
その他
その他
周辺
周辺
お問合せ先 :株式会社ミニミニ三重 鈴鹿白子店
引越し料金割引
。
- 利用条件
- 株式会社ミニミニ三重 鈴鹿白子店で利用可
- 他特典との併用可
- 駐車場・店舗・事務所・業者仲介及び紹介契約は対象外。
利用方法
来店時に本特典の画面をスマートフォンやタブレットでスタッフに提示、または画面印刷した用紙を提示ください。
有効期限 なし
人気のRC造!カウンターキッチン!収納広め!キャンペーン家賃につき更新時に2000円増額となります。
物件のこだわり/設備・条件
新築(非該当)
2階以上の物件(非該当)
南向き(非該当)
駐車場あり(該当)
オートロック(該当)
エアコン(非該当)
バス・トイレ別(該当)
追焚機能(該当)
フローリング(該当)
ペット相談(非該当)
入居条件
二人入居可、ペット不可、家賃保証付き、保証人不要、即入居可キッチン/バス・トイレ
設備・サービス
オートロック、冷房、ウォークインクローゼット、クローゼット、シューズボックス、CATV、プロパンガス、フローリング、バルコニー、室内洗濯機置場、駐車場あり、駐輪場ありその他
住まい探し特典あり備考
浄化槽分担金:1265円、クリーニング費用:77000円、町内会入会金:2000円、防災セット:14400円、ファイテック消火剤:4800円、駐車場紹介料:4400円、鍵交換代・室内消毒料:24200円
物件周辺の生活情報
学校
- 鈴鹿市立飯野小学校(1,656m)
- 鈴鹿市立創徳中学校(1,917m)
買い物
- コンビニ(718m)
- スーパー(2,227m)
- ドラッグストア(1,180m)
その他施設
- 銀行(1,860m)
交通
- 伊勢鉄道 玉垣駅 徒歩20分
- 普通(停車)
- 快速みえ(通過)
- 伊勢鉄道 鈴鹿サーキット稲生駅 徒歩35分
- 普通(停車)
- 快速みえ(通過)
※急行等の停車駅情報について
急行等の停車駅に関するデータは、随時更新をしておりますが、最新の内容であることを保証するものではありません。
最新かつ正確な情報につきましては、各鉄道会社のウェブサイトにてご確認ください
物件概要
- 建物構造
- RC(鉄筋コンクリート)
- 駐車場
- 空有 4,400円(税込) 物件からの距離0m
- 総戸数
- 9戸
- 契約形態
- -
- 契約期間
- 2年間
- 更新料
- 20,000円
- その他費用
- ケーブルテレビ代:550円、町内会費/月:250円、クラケアLight:1,650円
- 保証会社
不要
- 住宅保険
- 要
- 管理
- -
- LIFULL HOME'S
物件番号 - 0113560-0024915
- 自社管理番号
- 15917718-1735
- 取引態様
- 仲介
- 会社名
- 株式会社ミニミニ三重 鈴鹿白子店
営業スタッフコメント

株式会社ミニミニ三重 鈴鹿白子店次長
堀切公平
正直不動産
業界経験11年
資格宅地建物取引士、少額短期保険募集人、損害保険募集人
- 会社実績や特徴・サービス情報
- この度は、物件検索有難うございます。 ミニミニ鈴鹿白子店です。 気になる物件がございましたらお気軽にお問合せくださいませ。 快適な新生活を送っていただけるよう白子店一同精一杯がんばりますので 是非ご来店くださいませ。 鈴鹿市白子駅西口から徒歩5分ほど。 弊社店舗の北側に駐車場もございます。
この度は、物件検索有難うございます。 ミニミニ鈴鹿白子店です。 気になる物件がございましたらお気軽にお問合せくださいませ。 快適な新生活を送っていただけるよう白子店一同精一杯がんばりますので 是非ご来店くださいませ。 鈴鹿市白子駅西口から徒歩5分ほど。 弊社店舗の北側に駐車場もございます。
- 電話でお問合せ(通話無料)
お問合せ先 :株式会社ミニミニ三重 鈴鹿白子店
不動産会社情報
株式会社ミニミニ三重 鈴鹿白子店

三重県鈴鹿市白子駅前6番35号 紀の国屋ビル1階
近鉄名古屋線 白子駅 徒歩8分
- 営業時間
- 10:00~18:00(年末年始休業 12月26日〜1月3日)
- 定休日
- 水曜日 1月〜3月は休まず営業
優良店認定
敷金・礼金0のスーパー君に当社グループのオリジナル家具と家電製品付き物件の商品が出ました。専門のコーディネーターのデザインによる癒されるお部屋を、ぜひ一度ご覧下さい
- 店舗の特徴
- 賃貸管理業務
- 引越し業者紹介可
- 年中無休
- 法人契約取扱い
電話でお問合せお客様の電話番号は不動産会社には通知されません
- 不動産会社に
つながります
お客様の電話番号は不動産会社に通知されません
- ※光IP電話、及びIP電話からはご利用になれません
- ※お電話によるお問合せは、店舗営業時間内にお願いします。つながらない場合は、お問合せフォームよりお問合せください
- ※不動産会社がお電話に出られなかった場合、お問合せいただいた後に不動産会社より折り返しのお電話がある場合がございます(お客様が非通知設定した場合は対象外です)
- ※株式会社LIFULLは電話会社が提供するサービスを介してお客様の発信者番号を受領後、折り返し専用の電話番号を発番してお問合せの不動産会社に通知します(お客様の発信者番号がお問合せの不動産会社に通知されることはございません)
- ※携帯電話からお問合せいただいた方に対し、株式会社LIFULLは電話会社が提供するメッセ―ジサービスを介してお客様の発信者番号を受領後、ショートメッセージ(SMS)またはLINE通知メッセージによるお問合せ内容に関する通知をお届けする場合があります
- ※お客様が通話中に不動産会社にお伝えになったお客様の個人情報及び、電話会社が発番する折り返し専用の電話番号は、お問合せ先不動産会社が資料送付・電子メール送信・電話連絡などの目的で保管する可能性があります。お問合せ先不動産会社が保管する個人情報の取扱いについては、各不動産会社に直接お問合せください
- ※株式会社LIFULLでは本サービスを円滑に運用するために、お客様の発信者番号をサービスご利用の控えとして一定期間保管いたします
- ※上記および株式会社LIFULLの個人情報の取扱い方針に同意のうえ、お電話ください
【LIFULL HOME'S物件番号】0113560-0024915【自社管理番号】15917718-1735
オンライン対応
オンライン内見・オンライン相談・IT重説に対応している物件です

「オンライン内見」「オンライン相談」「IT重説」とは?
物件の内見や不動産会社スタッフとの相談、契約前の重要事項説明をオンライン(ビデオ通話)で行うことができるサービスです。
オンライン内見
ビデオ通話で現地(物件)にいる不動産会社スタッフと映像・音声を使ってリアルタイムで会話しながら内見ができます。
オンライン相談
「物件について聞きたいことがある」など不動産会社スタッフへの相談もビデオ通話で行うことができます。
IT重説
契約前の重要事項説明(重説)をビデオ通話で行うことができます。
利用時の注意事項
- ビデオ通話については各不動産会社指定のものとなります。
- ビデオ通話利用時には通信が発生します。従量課金制通信サービスや通信量に上限があるネット回線・プランを利用する場合は、通信量にご注意ください。
- 通信速度やアプリの設定によってはビデオ通話の画質が低下することがあります。安定した画質で利用するためにも、Wi-Fi環境下での利用を推奨します。
- ご利用のビデオ通話アプリによっては、対象のOSやブラウザに制限がある場合があります。詳しくはお問合せ先不動産会社にご確認ください。
初期費用・月額費用をあわせて確認!この物件に住んだときの費用めやす
めやすを見るこの物件に住んだときの費用めやす
- 初期費用
- 月額費用
- 追加費用※ご確認ください
追加で費用が
かかる場合があります
必ずご確認ください
初期費用めやす約0円
追加で費用がかかります(※)敷金
0
- 礼金
0
- 保証金
0
賃料+共益費・管理費の1ヶ月分として換算
賃料の1ヶ月分+税として換算。不動産会社によって金額が異なるため正確な金額は不動産会社にお問合せください
※追加費用もチェック!
これらの項目以外にも費用がかかる場合があります。正確な金額は不動産会社にお問合せください。
- 初期費用
- 鍵交換費:不動産会社に要確認
- 室内清掃費:不動産会社に要確認
- 火災保険費:不動産会社に要確認
- 月額費用
- 駐車場費:4,400円(税込)※契約任意
- その他
- ケーブルテレビ代:550円
- 町内会費/月:250円
- クラケアLight:1650円
- 保証会社
- 不要
不動産会社より
人気のRC造!カウンターキッチン!収納広め!キャンペーン家賃につき更新時に2000円増額となります。
浄化槽分担金:1265円、クリーニング費用:77000円、町内会入会金:2000円、防災セット:14400円、ファイテック消火剤:4800円、駐車場紹介料:4400円、鍵交換代・室内消毒料:24200円
- 保存する
- 共有する
- ※各種情報と現状に差異がある場合は、現状優先となります
- ※不動産会社が入力した情報を基に物件の位置を表示しています。詳しくは不動産会社までお問合せください
- ※不動産会社の方からの上記電話番号によるお問合せはお断りしております。こちら不動産会社詳細からお問合せください
- ※LIFULL HOME'Sは物件鮮度No.1を目指していきます。閲覧中の物件が「成約済である」「実際の物件情報と異なる点がある」などの場合、「掲載110番」からお問合せください
- ※QRコードは株式会社デンソーウェーブの登録商標です
したい暮らしのタグから探す
この物件を取扱う他の会社
LIFULL HOME'Sでは、主要項目が同一の物件をまとめて表示しています。所在地や営業時間、掲載画像等から不動産会社を選んでお問合せください。
最近見た賃貸物件
LIFULL HOME'S 地図・周辺情報
買い物
- ファミリーマート 鈴鹿末広南店
- プロマーケット鈴鹿店
- ディスカウントドラッグコスモス三日市店
- ファミリーマート 末広町店
- 業務スーパー 道伯店
グルメ
- なか卯 鈴鹿道伯店
- 吉野家 鈴鹿西条店
- から好し鈴鹿三日市町店
- 焼肉きんぐ鈴鹿店
- マクドナルド 鈴鹿中央通り店
育児・教育
- あかつき保育園
- 鈴鹿市立飯野小学校
- 鈴鹿市立創徳中学校
- 第二さくら幼稚園
- 鈴鹿市立桜島小学校
医療
- 三重県厚生農業協同組合連合会鈴鹿中央総合病院
- 鈴鹿医療科学大学附属桜の森病院
- 医療法人誠仁会塩川病院
- 医療法人博仁会村瀬病院
公共施設・郵便局
- 鈴鹿道伯郵便局
- 鈴鹿市立図書館
- 鈴鹿警察署
- 鈴鹿暁郵便局
- 鈴鹿旭が丘郵便局
公園
- 石垣池公園
- 桜島公園
- 弁天山公園
- 平田池公園
- 神戸公園
利用可能な駅
- すべての駅
伊勢鉄道
- 玉垣駅徒歩20分
- 鈴鹿サーキット稲生駅徒歩35分
- 周辺情報は2023年07月21日時点のものになります。
- 周辺情報は、参考情報としてのみご利用ください(周辺情報は、株式会社LIFULLが地図情報の提供事業者から提供を受けた情報とLIFULL HOME'Sの物件情報に基づき、独自の方法で抽出し提供しているものです。周辺情報は、移転や閉鎖等により情報が最新ではない、または正しくない場合がありますが、地図情報の提供事業者から提供された情報をそのまま周辺情報として表示しているため、正確かつ最新の情報へ修正することができないことがあります。)
- 周辺情報は、株式会社LIFULLが掲載するものであり、不動産物件情報を掲載している不動産会社が掲載するものではありません
- 交通情報の一部については、株式会社LIFULLが掲載するものであり、不動産物件情報を掲載している不動産会社が掲載するものではない場合があります。交通情報に関する質問などは株式会社LIFULLにお問合せください












































