LIFULL HOME'Sは物件鮮度No.1!※評価について
ハウスセゾン四条通11階/1K/26.02㎡
ハウスセゾン四条通11階/1K/26.02㎡
6.5万円/管理費等9,700円
6時間前 更新
画像一覧
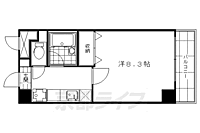
1/30間取り
間取
2/30外観
3/30外観
4/30リビング/ダイニング
5/30リビング/ダイニング
6/30リビング/ダイニング
7/30リビング/ダイニング
8/30キッチン
9/30キッチン
10/30キッチン
11/30キッチン
12/30キッチン
13/30浴室
14/30浴室
15/30トイレ
16/30洗面
17/30収納
18/30収納
19/30収納
20/30設備
21/30設備
22/30設備
23/30玄関
24/30バルコニー
25/30その他
26/30その他
27/30その他
28/30その他
29/30その他
30/30周辺
フレスコ四条店まで90m 四条通に面した24時間のスーパー
間取り
外観
外観
リビング/ダイニング
リビング/ダイニング
リビング/ダイニング
リビング/ダイニング
キッチン
キッチン
キッチン
キッチン
キッチン
浴室
浴室
トイレ
洗面
収納
収納
収納
設備
設備
設備
玄関
バルコニー
その他
その他
その他
その他
その他
周辺
LINEチャットでも 相談できます
お問合せ先 :株式会社京都ライフ 烏丸五条店
仲介手数料割引
仲介手数料50%(税別)でご成約頂けます。
- 利用条件
- 株式会社京都ライフ 烏丸五条店で利用可
- 他特典との併用可
- ※法人契約、積水ハウス、大東建託の管理物件は家賃1か月分の仲介手数料要。
利用方法
来店時に本特典の画面をスマートフォンやタブレットでスタッフに提示、または画面印刷した用紙を提示ください。
有効期限 なし
インターネット使い放題 収納ゆったり、お部屋も広い。更にネット無料でこの価格。
基本情報
不動産用語- 賃料
- 6.5万円
- 管理費等
- 9,700円
初期費用などお気軽にお問合せください
- 敷金/礼金
- 無/6.5万円
- 保証金/敷引・償却金
- -/-
- 交通
京都市営烏丸線 四条駅 徒歩5分
阪急京都本線 大宮駅 徒歩5分
- 所在地
京都府京都市下京区四条通油小路東入傘鉾町
地図を見る- 築年月
- 2006年3月(築20年)
- 主要採光面
- 北
- 専有面積
- 26.02㎡
- バルコニー面積
- -
- 所在階/階数
- 11階/16階建
入居可能日などお気軽にお問合せください
- 現況
- 賃貸中
- 入居可能時期
- 2026年03月 中旬

人気物件はすぐに埋まってしまいます。
気になったらお早めにお問合せください。
- 情報公開日
2025/12/07
1日前 公開
- 情報更新日
2025/12/08
6時間前 更新
- 次回更新
予定日 - 2025/12/21
物件のこだわり/設備・条件
新築(非該当)
2階以上の物件(該当)
南向き(非該当)
駐車場(非該当)
オートロック(該当)
エアコン(該当)
バス・トイレ別(該当)
追焚機能(非該当)
フローリング(該当)
ペット相談(非該当)
キッチン/バス・トイレ
設備・サービス
オートロック、防犯カメラ、エアコン、シューズボックス、BS対応、光ファイバー、インターネット使用料無料、公営水道、都市ガス、下水、フローリング、バルコニー、室内洗濯機置場、エレベーター、ゴミ出し24時間OK、バイク置き場あり、駐輪場ありその他
住まい探し特典あり備考
地下鉄四条駅まで徒歩5分の1Kマンションです。京福、阪急、地下鉄のトリプルアクセス。嬉しい3点セパレートなど充実の設備。オートロックでセキュリティも安心です。コンビニ、スーパー、ドラッグストアなど近くにあって便利ですよ。インターネットは光対応、無料でご利用いただけます。 物件情報はもちろん京都のエリア情報まで幅広く対応させていただきます!
物件周辺の生活情報
学校
- 洛央小学校(721m)
- 下京中学校(963m)
買い物
- コンビニ(181m)
- スーパー(90m)
- ドラッグストア(54m)
その他施設
- 総合病院(383m)
- 銀行(179m)
- 京都西洞院綾小路郵便局(162m)
交通
- 京都市営烏丸線 四条駅 徒歩5分
- 普通(停車)
- 急行(停車)
- 阪急京都本線 大宮駅 徒歩5分
- 普通(停車)
- 準急(停車)
- 堺筋準急(停車)
- 通勤特急(停車)
- 特急(通過)
- 急行(停車)
- 準特急(停車)
※急行等の停車駅情報について
急行等の停車駅に関するデータは、随時更新をしておりますが、最新の内容であることを保証するものではありません。
最新かつ正確な情報につきましては、各鉄道会社のウェブサイトにてご確認ください
物件周辺の口コミ
- 京都府京都市中京区御池通黒門東入に住む人の口コミ20代男性
スーパーやコンビニ等の生活利便施設も多く、グルメも充実している。一方で、閑静で良好な住環境でもある。
口コミを見る
この物件周辺に住む人の口コミ
口コミは、LIFULL HOME'Sが実際にこの物件の周辺に住む18歳~69歳の男女を対象に、WEBアンケート調査を実施しています。内容には回答者の主観的な表現が含まれる場合があるほか、事実と異なる場合もございます。ご了承ください。
- 京都府京都市中京区御池通黒門東入に住む人の口コミ20代男性
- スーパーやコンビニ等の生活利便施設も多く、グルメも充実している。一方で、閑静で良好な住環境でもある。
- 京都府京都市中京区壬生相合町に住む人の口コミ20代男性
- 店の多さ、交通の便といった部分が満足している理由になる。ただ、家賃の高さがデメリットだと感じる
- 京都府京都市中京区西ノ京栂尾町に住む人の口コミ30代女性
- 徒歩圏内にスーパーが何件もある。大手コンビニも揃っている。駅の路線も複数ある。子育て支援が充実している。
- 京都府京都市中京区聚楽廻東町に住む人の口コミ30代男性
- 基本的には満足しているが、民泊やホステルが増えてきているため、外国人をよく見かけるようになったことが不満。外国人は増えてほしくないので、外国人向けの宿泊施設を作らないでほしい。
- 京都府京都市中京区壬生高樋町に住む人の口コミ30代男性
- 日常生活で必要な店や施設は一通り揃っており、子供の学習環境や交通の便でも大きな不満を感じないから。
- 京都府京都市下京区仏光寺通室町西入に住む人の口コミ30代女性
- 仕事をするには便利。物価の高さや、自転車が多いのに自転車のためのインフラが整備されていないこと、観光客のマナーの悪化など不満を上げればキリがないが、総合的には住みやすい場所だと思う。
- 京都府京都市中京区壬生梛ノ宮町に住む人の口コミ30代女性
- 新選組の史跡や寺社仏閣が近く、歴史好きな自分としては幸せ。交通の利便性が良く生活していく上で困らない点や街中でありながら割と静かな環境であることも気に入っているから。
- 京都府京都市中京区西ノ京職司町に住む人の口コミ20代女性
- 駅近、大型スーパー、ドラッグストア、映画館、本屋、商店街など徒歩5分圏内に揃ってて便利で家賃が安い
- 京都府京都市下京区高辻通黒門東入に住む人の口コミ30代女性
- 24時間スーパーが近くにあり、大通りは夜中でも街灯も明るく女性も安心。近くに飲食街やカラオケなどの娯楽施設がある。わざわざ繁華街へ行かなくても楽しめる。また、その繁華街も徒歩でも行ける距離で便利。
- 京都府京都市下京区高辻通猪熊西入に住む人の口コミ30代女性
- コンビニの数は多く、交通の便が良いことも満足しているが、スーパーは少ないし、児童館も遠いのが不満。
物件概要
- 建物構造
- SRC(鉄骨鉄筋コンクリート)
- 駐車場
- 無
- 総戸数
- 190戸
- 契約形態
- -
- 契約期間
- 2年間
- 更新料
- 新賃料の1ヶ月分
- その他費用
- 室内清掃費用:30,800円、町会費:6,000円、HSC:990円、HSC:990円
- 保証会社
- -
- 住宅保険
- 要
- 管理
- 管理員:巡回
- LIFULL HOME'S
物件番号 - 0126938-0266872
- 自社管理番号
- 09168-1102-23
- 取引態様
- 仲介
- 会社名
- 株式会社京都ライフ 烏丸五条店
営業スタッフコメント

株式会社京都ライフ 烏丸五条店賃貸仲介営業
中山登夢
お部屋探しは、私にお任せを!
業界経験2年
資格宅地建物取引士
- 会社実績や特徴・サービス情報
- この度は物件情報のご閲覧ありがとうございます。 ご案内ご希望の際は店頭・現地・最寄り駅等、 お客様のご都合に合わせお待ち合わせも可能です。 お気軽におっしゃってくださいませ。 お問い合わせを心よりお待ちしております。
この度は物件情報のご閲覧ありがとうございます。 ご案内ご希望の際は店頭・現地・最寄り駅等、 お客様のご都合に合わせお待ち合わせも可能です。 お気軽におっしゃってくださいませ。 お問い合わせを心よりお待ちしております。
- 電話でお問合せ(通話無料)
お問合せ先 :株式会社京都ライフ 烏丸五条店
不動産会社情報
京都の情報を熟知した店舗スタッフが、豊富な物件量で皆様のお部屋探しを全力でサポートさせていただきます!お客様からのお問い合わせ・ご来店、烏丸五条店スタッフ一同心よりお待ちしております。
- 店舗の特徴
- 引越し業者紹介可
- 系列店舗での対応可
- 社宅・寮物件取扱い
- オンライン相談可
- 保証人不要な物件あり
- 法人契約取扱い
- 女性スタッフ対応可
- 駅から歩いて3分以内
電話でお問合せお客様の電話番号は不動産会社には通知されません
- 不動産会社に
つながります
お客様の電話番号は不動産会社に通知されません
- ※光IP電話、及びIP電話からはご利用になれません
- ※お電話によるお問合せは、店舗営業時間内にお願いします。つながらない場合は、お問合せフォームよりお問合せください
- ※不動産会社がお電話に出られなかった場合、お問合せいただいた後に不動産会社より折り返しのお電話がある場合がございます(お客様が非通知設定した場合は対象外です)
- ※株式会社LIFULLは電話会社が提供するサービスを介してお客様の発信者番号を受領後、折り返し専用の電話番号を発番してお問合せの不動産会社に通知します(お客様の発信者番号がお問合せの不動産会社に通知されることはございません)
- ※携帯電話からお問合せいただいた方に対し、株式会社LIFULLは電話会社が提供するメッセ―ジサービスを介してお客様の発信者番号を受領後、ショートメッセージ(SMS)またはLINE通知メッセージによるお問合せ内容に関する通知をお届けする場合があります
- ※お客様が通話中に不動産会社にお伝えになったお客様の個人情報及び、電話会社が発番する折り返し専用の電話番号は、お問合せ先不動産会社が資料送付・電子メール送信・電話連絡などの目的で保管する可能性があります。お問合せ先不動産会社が保管する個人情報の取扱いについては、各不動産会社に直接お問合せください
- ※株式会社LIFULLでは本サービスを円滑に運用するために、お客様の発信者番号をサービスご利用の控えとして一定期間保管いたします
- ※上記および株式会社LIFULLの個人情報の取扱い方針に同意のうえ、お電話ください
【LIFULL HOME'S物件番号】0126938-0266872【自社管理番号】09168-1102-23
オンライン対応
オンライン相談に対応している物件です

「オンライン内見」「オンライン相談」「IT重説」とは?
物件の内見や不動産会社スタッフとの相談、契約前の重要事項説明をオンライン(ビデオ通話)で行うことができるサービスです。
オンライン内見
ビデオ通話で現地(物件)にいる不動産会社スタッフと映像・音声を使ってリアルタイムで会話しながら内見ができます。
オンライン相談
「物件について聞きたいことがある」など不動産会社スタッフへの相談もビデオ通話で行うことができます。
IT重説
契約前の重要事項説明(重説)をビデオ通話で行うことができます。
利用時の注意事項
- ビデオ通話については各不動産会社指定のものとなります。
- ビデオ通話利用時には通信が発生します。従量課金制通信サービスや通信量に上限があるネット回線・プランを利用する場合は、通信量にご注意ください。
- 通信速度やアプリの設定によってはビデオ通話の画質が低下することがあります。安定した画質で利用するためにも、Wi-Fi環境下での利用を推奨します。
- ご利用のビデオ通話アプリによっては、対象のOSやブラウザに制限がある場合があります。詳しくはお問合せ先不動産会社にご確認ください。
初期費用・月額費用をあわせて確認!この物件に住んだときの費用めやす
めやすを見るこの物件に住んだときの費用めやす
- 初期費用
- 月額費用
- 追加費用※ご確認ください
追加で費用が
かかる場合があります
必ずご確認ください
初期費用めやす約0円
追加で費用がかかります(※)敷金
0
- 礼金
65,000
賃料+共益費・管理費の1ヶ月分として換算
賃料の1ヶ月分+税として換算。不動産会社によって金額が異なるため正確な金額は不動産会社にお問合せください
※追加費用もチェック!
これらの項目以外にも費用がかかる場合があります。正確な金額は不動産会社にお問合せください。
- 初期費用
- 鍵交換費:不動産会社に要確認
- 室内清掃費:30,800円
- 火災保険費:不動産会社に要確認
- その他
- 町会費:6000円
- HSC:990円
- HSC:990円
- 保証会社
- 不動産会社に要確認
不動産会社より
インターネット使い放題 収納ゆったり、お部屋も広い。更にネット無料でこの価格。
地下鉄四条駅まで徒歩5分の1Kマンションです。京福、阪急、地下鉄のトリプルアクセス。嬉しい3点セパレートなど充実の設備。オートロックでセキュリティも安心です。コンビニ、スーパー、ドラッグストアなど近くにあって便利ですよ。インターネットは光対応、無料でご利用いただけます。 物件情報はもちろん京都のエリア情報まで幅広く対応させていただきます!
- 保存する
- 共有する
- ※各種情報と現状に差異がある場合は、現状優先となります
- ※不動産会社が入力した情報を基に物件の位置を表示しています。詳しくは不動産会社までお問合せください
- ※不動産会社の方からの上記電話番号によるお問合せはお断りしております。こちら不動産会社詳細からお問合せください
- ※LIFULL HOME'Sは物件鮮度No.1を目指していきます。閲覧中の物件が「成約済である」「実際の物件情報と異なる点がある」などの場合、「掲載110番」からお問合せください
- ※QRコードは株式会社デンソーウェーブの登録商標です
この物件を取扱う他の会社
LIFULL HOME'Sでは、主要項目が同一の物件をまとめて表示しています。所在地や営業時間、掲載画像等から不動産会社を選んでお問合せください。
株式会社エリッツ 円町店
京都府京都市中京区西ノ京北円町60 ポラリス1F
JR山陰本線 円町駅 徒歩2分
- 営業時間
- 10:00~19:00
- 定休日
- 水曜日(祝日を除く)、年末年始 ※部屋探しのお問い合わせは無休
株式会社エリッツ 西大路駅前店
優良店認定
京都府京都市南区唐橋西平垣町19−2
JR東海道・山陽本線 西大路駅 徒歩1分
- 営業時間
- 10:00~19:00
- 定休日
- 年中無休(年末年始を除く)
株式会社エリッツ 七条京阪店
優良店認定
京都府京都市東山区本町6丁目1−5 藤本ビル1F
京阪本線 七条駅 徒歩2分
- 営業時間
- 10:00~19:00
- 定休日
- 水曜日(祝日を除く)、年末年始 ※部屋探しのお問い合わせは無休
株式会社エリッツ 深草店
優良店認定
京都府京都市伏見区深草西浦町4丁目31番地
京阪本線 龍谷大前深草駅 徒歩5分
- 営業時間
- 10:00~19:00
- 定休日
- 水曜日(祝日を除く)、年末年始 ※部屋探しのお問い合わせは無休
株式会社エリッツ 西京極店
優良店認定
京都府京都市右京区西京極西池田町9−4 コスミック西京極1F
阪急京都本線 西京極駅 徒歩2分
- 営業時間
- 10:00~19:00
- 定休日
- 水曜日(祝日を除く)、年末年始 ※部屋探しのお問い合わせは無休
LIFULL HOME'S 地図・周辺情報
買い物
- ファミリーマート 四条西洞院店
- ライフ 四条烏丸店
- ドラッグひかり四条堀川店
- セブンイレブン 京都四条西洞院通り店
- フレスコ 四条店
グルメ
- タリーズコーヒー京都四条烏丸店
- まいどおおきに食堂 四条西洞院食堂
- やよい軒 四条烏丸店
- すき家 四条堀川店
- タリーズコーヒー四条大宮店
育児・教育
- 池坊保育園
- 京都市立下京雅小学校
- 京都市立下京中学校成徳学舎
- 光林保育園
- 京都市立洛中小学校
医療
- 山元病院
- 医療法人知音会京都新町病院
- 医療法人毛利病院
- 医療法人財団足立病院
- 医療法人令寿会しまばら病院
公共施設・郵便局
- 京都西洞院綾小路郵便局
- 京都市下京図書館
- 京都府下京警察署
- 京都堀川仏光寺郵便局
- 京都市こどもみらい館子育て図書館
公園
- 光徳公園
- 梅屋広場公園
- 梅小路公園
- 梅小路公園
- 京都御苑
利用可能な駅
- 徒歩10分以内
京都市営烏丸線
- 四条駅徒歩5分
阪急京都本線
- 大宮駅徒歩5分
- 周辺情報は2023年07月21日時点のものになります。
- 周辺情報は、参考情報としてのみご利用ください(周辺情報は、株式会社LIFULLが地図情報の提供事業者から提供を受けた情報とLIFULL HOME'Sの物件情報に基づき、独自の方法で抽出し提供しているものです。周辺情報は、移転や閉鎖等により情報が最新ではない、または正しくない場合がありますが、地図情報の提供事業者から提供された情報をそのまま周辺情報として表示しているため、正確かつ最新の情報へ修正することができないことがあります。)
- 周辺情報は、株式会社LIFULLが掲載するものであり、不動産物件情報を掲載している不動産会社が掲載するものではありません
- 交通情報の一部については、株式会社LIFULLが掲載するものであり、不動産物件情報を掲載している不動産会社が掲載するものではない場合があります。交通情報に関する質問などは株式会社LIFULLにお問合せください

















