LIFULL HOME'Sは物件鮮度No.1!※評価について
近鉄京都線 伊勢田駅 徒歩3分(3LDK/64.98㎡)
近鉄京都線 伊勢田駅 徒歩3分(3LDK/64.98㎡)
8.5万円/管理費等8,000円
2時間前 更新
画像一覧
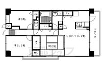
1/26間取り
2/26リビング/ダイニング
リビング
3/26リビング/ダイニング
リビング
4/26リビング/ダイニング
居室
5/26リビング/ダイニング
居室
6/26子供部屋
和室
7/26キッチン
キッチン
8/26キッチン
キッチン
9/26キッチン
キッチン
10/26浴室
風呂
11/26浴室
風呂
12/26トイレ
トイレ
13/26トイレ
トイレ
14/26洗面
洗面所
15/26収納
収納
16/26収納
収納
17/26設備
下駄箱
18/26設備
洗濯機置場
19/26玄関
玄関
20/26玄関
玄関
21/26バルコニー
ベランダ
22/26その他
廊下
23/26その他
その他
24/26周辺
新鮮激安市場!宇治店まで530メートル
25/26周辺
セブンイレブン 宇治伊勢田中山店まで150メートル
26/26周辺
ウエルシア宇治伊勢田店まで350メートル
間取り
リビング/ダイニング
リビング/ダイニング
リビング/ダイニング
リビング/ダイニング
子供部屋
キッチン
キッチン
キッチン
浴室
浴室
トイレ
トイレ
洗面
収納
収納
設備
設備
玄関
玄関
バルコニー
その他
その他
周辺
周辺
周辺
お問合せ先 :株式会社エリッツ 伏見桃山店
オートロック、2口コンロ設置可の築浅3LDK賃貸マンション
物件のこだわり/設備・条件
新築(非該当)
2階以上の物件(非該当)
南向き(該当)
駐車場あり(該当)
オートロック(該当)
エアコン(該当)
バス・トイレ別(該当)
追焚機能(該当)
フローリング(該当)
ペット相談(非該当)
入居条件
二人入居可、即入居可キッチン/バス・トイレ
設備・サービス
オートロック、エアコン、クローゼット、シューズボックス、BS対応、インターネット対応、インターネット使用料無料、公営水道、都市ガス、下水、フローリング、専用庭付き、室内洗濯機置場、エレベーター、宅配ボックス、駐車場あり、駐輪場ありその他
初期費用カード決済可備考
近鉄京都線伊勢田駅徒歩3分、JR奈良線JR小倉駅徒歩17分、2WAYアクセスも可能で利便の良い立地の礼金0でオートロック、独立洗面台付きの築浅3LDK賃貸マンション・インターネット無料 ハウスクリーニング55000円(退去時)
物件周辺の生活情報
学校
- 伊勢田小学校(450m)
- 西宇治中学校(750m)
買い物
- コンビニ(150m)
- スーパー(530m)
- ドラッグストア(350m)
その他施設
- 総合病院(1,500m)
交通
- 近鉄京都線 伊勢田駅 徒歩3分
- 普通(停車)
- 準急(停車)
- 急行(通過)
- JR奈良線 JR小倉駅 徒歩17分
- 普通(停車)
- 区間快速(停車)
- 快速(停車)
- みやこ路快速(通過)
※急行等の停車駅情報について
急行等の停車駅に関するデータは、随時更新をしておりますが、最新の内容であることを保証するものではありません。
最新かつ正確な情報につきましては、各鉄道会社のウェブサイトにてご確認ください
物件周辺の口コミ
- 京都府宇治市伊勢田町に住む人の口コミ30代男性
スーパーもドラッグストアも近い。遊びに行くところはないけど、それなりにいい。
口コミを見る
この物件周辺に住む人の口コミ
口コミは、LIFULL HOME'Sが実際にこの物件の周辺に住む18歳~69歳の男女を対象に、WEBアンケート調査を実施しています。内容には回答者の主観的な表現が含まれる場合があるほか、事実と異なる場合もございます。ご了承ください。
- 京都府宇治市伊勢田町に住む人の口コミ30代男性
- スーパーもドラッグストアも近い。遊びに行くところはないけど、それなりにいい。
- 京都府宇治市伊勢田町に住む人の口コミ30代女性
- 京都市内にも30分以内に行ける。スーパー激戦区があり価格競争で安く買えている。平等院もあり世界遺産がある。宇治抹茶で有名な土地に生活ができて、有名な抹茶スイーツがたくさん食べられる。
- 京都府宇治市伊勢田町に住む人の口コミ50代女性
- 食料品や日用品の買い物は便利だが、衣料品やオシャレなカフェは自動車や電車で出掛けないと無い
- 京都府宇治市伊勢田町に住む人の口コミ40代男性
- 基本的に、生活に不便さを感じていないのだから、ある程度は満足しているんだろうと思います。
- 京都府宇治市伊勢田町に住む人の口コミ50代女性
- 総合病院は 車で20分ほどかかるが、小児科、眼科、皮膚科、耳鼻科、歯科が 歩いて行ける距離に そろっているのでまんぞくしています。しかし、 狭い道が多いので 車の運転には気を使います。
- 京都府宇治市伊勢田町に住む人の口コミ50代女性
- 長期にわたって住んでいるので慣れている。徒歩10分で電車の駅もあり、徒歩8分以内にスーパーマーケットが3件ある。
- 京都府宇治市伊勢田町に住む人の口コミ60代女性
- 近くに沢山スーパーがあり、売り出しを次々として、安くて生活しやすい。
- 京都府宇治市伊勢田町に住む人の口コミ60代男性
- 治安が良い、買い物に24時間困らない。病院も近くに複数ある。駅から近い。
- 京都府宇治市伊勢田町に住む人の口コミ60代男性
- 治安が良い、病院が複数ある、買い物が便利なので高齢者でも暮らしやすい
- 京都府宇治市伊勢田町に住む人の口コミ30代女性
- 買い物などのスーパーや薬局、コンビニなども多いので便利。病院も多いので不便は少ない。電車も通っており、市内に出るにもべんりだから。
物件概要
- 建物構造
- RC(鉄筋コンクリート)
- 駐車場
- 空有 10,000円(税無)
- 総戸数
- 70戸
- 契約形態
- -
- 契約期間
- 2年間
- 更新料
- -
- その他費用
- 家賃保証料(月額):800円、駐車場手数料(初回):10,000円
- 保証会社
加入要
保証会社利用料:51、500円
- 住宅保険
- 要
- 管理
- -
- LIFULL HOME'S
物件番号 - 0110593-0275478
- 自社管理番号
- 36392-0106
- 取引態様
- 仲介
- 会社名
- 株式会社エリッツ 伏見桃山店
- 電話でお問合せ(通話無料)
お問合せ先 :株式会社エリッツ 伏見桃山店
不動産会社情報
株式会社エリッツ 伏見桃山店

京都府京都市伏見区観音寺町212-1 伏見ビル1階
近鉄京都線 桃山御陵前駅 徒歩1分
- 営業時間
- 10:00~19:00
- 定休日
- 年中無休(年末年始を除く)
優良店認定
電話でお問合せお客様の電話番号は不動産会社には通知されません
- 不動産会社に
つながります
お客様の電話番号は不動産会社に通知されません
- ※光IP電話、及びIP電話からはご利用になれません
- ※お電話によるお問合せは、店舗営業時間内にお願いします。つながらない場合は、お問合せフォームよりお問合せください
- ※不動産会社がお電話に出られなかった場合、お問合せいただいた後に不動産会社より折り返しのお電話がある場合がございます(お客様が非通知設定した場合は対象外です)
- ※株式会社LIFULLは電話会社が提供するサービスを介してお客様の発信者番号を受領後、折り返し専用の電話番号を発番してお問合せの不動産会社に通知します(お客様の発信者番号がお問合せの不動産会社に通知されることはございません)
- ※携帯電話からお問合せいただいた方に対し、株式会社LIFULLは電話会社が提供するメッセ―ジサービスを介してお客様の発信者番号を受領後、ショートメッセージ(SMS)またはLINE通知メッセージによるお問合せ内容に関する通知をお届けする場合があります
- ※お客様が通話中に不動産会社にお伝えになったお客様の個人情報及び、電話会社が発番する折り返し専用の電話番号は、お問合せ先不動産会社が資料送付・電子メール送信・電話連絡などの目的で保管する可能性があります。お問合せ先不動産会社が保管する個人情報の取扱いについては、各不動産会社に直接お問合せください
- ※株式会社LIFULLでは本サービスを円滑に運用するために、お客様の発信者番号をサービスご利用の控えとして一定期間保管いたします
- ※上記および株式会社LIFULLの個人情報の取扱い方針に同意のうえ、お電話ください
【LIFULL HOME'S物件番号】0110593-0275478【自社管理番号】36392-0106
オンライン対応
オンライン内見・オンライン相談・IT重説に対応している物件です

「オンライン内見」「オンライン相談」「IT重説」とは?
物件の内見や不動産会社スタッフとの相談、契約前の重要事項説明をオンライン(ビデオ通話)で行うことができるサービスです。
オンライン内見
ビデオ通話で現地(物件)にいる不動産会社スタッフと映像・音声を使ってリアルタイムで会話しながら内見ができます。
オンライン相談
「物件について聞きたいことがある」など不動産会社スタッフへの相談もビデオ通話で行うことができます。
IT重説
契約前の重要事項説明(重説)をビデオ通話で行うことができます。
利用時の注意事項
- ビデオ通話については各不動産会社指定のものとなります。
- ビデオ通話利用時には通信が発生します。従量課金制通信サービスや通信量に上限があるネット回線・プランを利用する場合は、通信量にご注意ください。
- 通信速度やアプリの設定によってはビデオ通話の画質が低下することがあります。安定した画質で利用するためにも、Wi-Fi環境下での利用を推奨します。
- ご利用のビデオ通話アプリによっては、対象のOSやブラウザに制限がある場合があります。詳しくはお問合せ先不動産会社にご確認ください。
初期費用・月額費用をあわせて確認!この物件に住んだときの費用めやす
めやすを見るこの物件に住んだときの費用めやす
- 初期費用
- 月額費用
- 追加費用※ご確認ください
追加で費用が
かかる場合があります
必ずご確認ください
初期費用めやす約0円
追加で費用がかかります(※)敷金
100,000
- 礼金
100,000
賃料+共益費・管理費の1ヶ月分として換算
賃料の1ヶ月分+税として換算。不動産会社によって金額が異なるため正確な金額は不動産会社にお問合せください
※追加費用もチェック!
これらの項目以外にも費用がかかる場合があります。正確な金額は不動産会社にお問合せください。
- 初期費用
- 鍵交換費:不動産会社に要確認
- 室内清掃費:不動産会社に要確認
- 火災保険費:不動産会社に要確認
- 月額費用
- 駐車場費:10,000円※契約任意
- その他
- 家賃保証料(月額):800円
- 駐車場手数料(初回):10000円
- 保証会社
- 51、500円
不動産会社より
オートロック、2口コンロ設置可の築浅3LDK賃貸マンション
近鉄京都線伊勢田駅徒歩3分、JR奈良線JR小倉駅徒歩17分、2WAYアクセスも可能で利便の良い立地の礼金0でオートロック、独立洗面台付きの築浅3LDK賃貸マンション・インターネット無料 ハウスクリーニング55000円(退去時)
- 保存する
- 共有する
- ※各種情報と現状に差異がある場合は、現状優先となります
- ※不動産会社が入力した情報を基に物件の位置を表示しています。詳しくは不動産会社までお問合せください
- ※不動産会社の方からの上記電話番号によるお問合せはお断りしております。こちら不動産会社詳細からお問合せください
- ※LIFULL HOME'Sは物件鮮度No.1を目指していきます。閲覧中の物件が「成約済である」「実際の物件情報と異なる点がある」などの場合、「掲載110番」からお問合せください
- ※QRコードは株式会社デンソーウェーブの登録商標です
LIFULL HOME'S 地図・周辺情報
買い物
- セブンイレブン 宇治伊勢田中山店
- 新鮮激安市場!宇治店
- ウエルシア宇治伊勢田店
- ファミリーマート 宇治伊勢田北山店
- コープ 宇治神明
グルメ
- まいどおおきに食堂 京宇治食堂
- ブロンコビリー宇治店
- CoCo壱番屋 宇治伊勢田店
- 天下一品宇治小倉店
- CoCo壱番屋 宇治小倉店
育児・教育
- 伊勢田こども園
- 宇治市立伊勢田小学校
- 宇治市立西宇治中学校
- 南浦幼保連携型認定こども園
- 宇治市立小倉小学校
医療
- 医療法人仁心会宇治川病院
- 医療法人長安会中村病院
- 医療法人徳洲会宇治徳洲会病院
- 宇治武田病院
- 医療法人啓信会京都きづ川病院
公共施設・郵便局
- 宇治伊勢田郵便局
- 宇治市西宇治図書館
- 宇治市役所
- 宇治南陵郵便局
- 久御山町立図書館
公園
- 城南荘児童公園
- 西宇治公園
- 宇治市植物公園
- 東山緑地
- お茶と宇治のまち歴史公園
利用可能な駅
- 徒歩10分以内
近鉄京都線
- 伊勢田駅徒歩3分
- すべての駅
近鉄京都線
- 小倉駅徒歩16分
- 大久保駅徒歩18分
- 久津川駅徒歩33分
JR奈良線
- JR小倉駅徒歩17分
- 新田駅徒歩18分
- 宇治駅徒歩34分
京阪宇治線
- 宇治駅3.6km
- 周辺情報は2023年07月21日時点のものになります。
- 周辺情報は、参考情報としてのみご利用ください(周辺情報は、株式会社LIFULLが地図情報の提供事業者から提供を受けた情報とLIFULL HOME'Sの物件情報に基づき、独自の方法で抽出し提供しているものです。周辺情報は、移転や閉鎖等により情報が最新ではない、または正しくない場合がありますが、地図情報の提供事業者から提供された情報をそのまま周辺情報として表示しているため、正確かつ最新の情報へ修正することができないことがあります。)
- 周辺情報は、株式会社LIFULLが掲載するものであり、不動産物件情報を掲載している不動産会社が掲載するものではありません
- 交通情報の一部については、株式会社LIFULLが掲載するものであり、不動産物件情報を掲載している不動産会社が掲載するものではない場合があります。交通情報に関する質問などは株式会社LIFULLにお問合せください








