LIFULL HOME'Sは物件鮮度No.1!※評価について
阪急京都本線 大宮駅 徒歩3分
6万円/管理費等6,000円
2時間前 更新
画像一覧
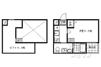
1/23間取り
2/23リビング/ダイニング
洋室
3/23室内
洋室
4/23寝室
洋室
5/23子供部屋
洋室
6/23キッチン
キッチン
7/23キッチン
キッチン
8/23キッチン
キッチン
9/23浴室
風呂
10/23トイレ
トイレ
11/23洗面
洗面所
12/23洗面
洗面所
13/23収納
吊り棚
14/23収納
収納
15/23設備
冷蔵庫置場
16/23設備
洗濯機置場
17/23玄関
玄関
18/23バルコニー
ベランダ
19/23その他
ロフト用梯子
20/23その他
ロフト
21/23その他
宅配ボックス
22/23周辺
フレスコ 大宮店まで210メートル
23/23周辺
セブンイレブン 京都大宮後院通店まで320メートル
間取り
リビング/ダイニング
室内
寝室
子供部屋
キッチン
キッチン
キッチン
浴室
トイレ
洗面
洗面
収納
収納
設備
設備
玄関
バルコニー
その他
その他
その他
周辺
周辺
お問合せ先 :株式会社エリッツ 竹田店
住まい探し特典内容
電気・ガス・インターネットの手続き代行のご案内します。
- 利用条件
- 株式会社エリッツ 竹田店で利用可
- 他特典との併用可
利用方法
来店時に本特典の画面をスマートフォンやタブレットでスタッフに提示、または画面印刷した用紙を提示ください。
有効期限 なし
ロフト付のお部屋です。--パノラマ掲載--
物件のこだわり/設備・条件
新築(非該当)
2階以上の物件(該当)
南向き(該当)
駐車場(非該当)
オートロック(該当)
エアコン(該当)
バス・トイレ別(該当)
追焚機能(非該当)
フローリング(該当)
ペット相談(非該当)
入居条件
二人入居不可、単身者限定キッチン/バス・トイレ
設備・サービス
オートロック、TVモニタ付インターホン、エアコン、クローゼット、CATV、インターネット対応、インターネット使用料無料、公営水道、都市ガス、下水、フローリング、バルコニー、ロフト付き、室内洗濯機置場、照明器具付き、南面バルコニー、宅配ボックス、バイク置き場あり、駐輪場ありその他
住まい探し特典あり備考
阪急電鉄京都線の大宮駅まで徒歩3分の物件です。インターネットを無料で利用する事ができ、浴室には浴室乾燥機が設置されております。周辺にはセブンイレブン 京都大宮後院通店があり便利です。・インターネット無料 ハウスクリーニング33000円(退去時)・駐輪ステッカー(初回):250円
物件周辺の生活情報
買い物
- コンビニ(320m)
- スーパー(210m)
交通
- 阪急京都本線 大宮駅 徒歩3分
- 普通(停車)
- 準急(停車)
- 堺筋準急(停車)
- 通勤特急(停車)
- 特急(通過)
- 急行(停車)
- 準特急(停車)
- JR山陰本線 二条駅 徒歩17分
- 普通(停車)
- 快速とっとりライナー(通過)
- 快速通勤ライナー(通過)
- 快速(停車)
※急行等の停車駅情報について
急行等の停車駅に関するデータは、随時更新をしておりますが、最新の内容であることを保証するものではありません。
最新かつ正確な情報につきましては、各鉄道会社のウェブサイトにてご確認ください
物件周辺の口コミ
- 京都府京都市下京区黒門通綾小路下るに住む人の口コミ30代女性
生活に不便な点が少ない。スーパー銭湯が近くにあれば良い。子育てには、やや難あり。
口コミを見る
この物件周辺に住む人の口コミ
口コミは、LIFULL HOME'Sが実際にこの物件の周辺に住む18歳~69歳の男女を対象に、WEBアンケート調査を実施しています。内容には回答者の主観的な表現が含まれる場合があるほか、事実と異なる場合もございます。ご了承ください。
- 京都府京都市下京区黒門通綾小路下るに住む人の口コミ30代女性
- 生活に不便な点が少ない。スーパー銭湯が近くにあれば良い。子育てには、やや難あり。
- 京都府京都市中京区壬生朱雀町に住む人の口コミ30代女性
- バス、電車の駅が複数あり繁華街や病院などへもアクセスしやすいが、本数はそこまで多くない。コンビニ、スーパーはあるがおしゃれなお店はないため、結局繁華街へでなくてはならないことも多いのが少し不満。
- 京都府京都市下京区四条通岩上東入に住む人の口コミ30代男性
- 交通の便がよく、夜に買い物にも行けるが、救急車の出動や、車の通りが多いため、寝る時間に騒がしい。
- 京都府京都市中京区壬生天池町に住む人の口コミ30代男性
- 習い事が徒歩圏内に多い。子育てがしやすい。店が揃っていて、遠出しなくても良い。
- 京都府京都市中京区壬生森前町に住む人の口コミ20代女性
- 交通網がしっかりしていて地域のつながりが強く、子供を一人で出かけさせることができる。コンビニやスーパーなど急な買い物にも対応できるほどの商業施設。学生にも優しい価格の居酒屋やレストランが充実している。
- 京都府京都市中京区壬生下溝町に住む人の口コミ30代女性
- 駅から大阪方面や京都中心部に行きやすくほどほどに便利。図書館や役所などは遠く不便なのが不満。
- 京都府京都市中京区壬生天池町に住む人の口コミ30代女性
- 子育てをする上で重要な施設が利用しやすい距離にあり、買い物にも便利である
- 京都府京都市中京区御池通黒門東入に住む人の口コミ20代男性
- スーパーやコンビニ等の生活利便施設も多く、グルメも充実している。一方で、閑静で良好な住環境でもある。
- 京都府京都市中京区壬生梛ノ宮町に住む人の口コミ30代女性
- 新選組の史跡や寺社仏閣が近く、歴史好きな自分としては幸せ。交通の利便性が良く生活していく上で困らない点や街中でありながら割と静かな環境であることも気に入っているから。
- 京都府京都市中京区壬生天池町に住む人の口コミ30代女性
- 他に住んだ事がないのでわからないが便利な所なので、どちらかと言えばと言う回答になりました
物件概要
- 建物構造
- 鉄骨造
- 駐車場
- 近隣 17,000円(税無) 物件からの距離307m
- 総戸数
- 20戸
- 契約形態
- -
- 契約期間
- 2年間
- 更新料
- 新賃料の1ヶ月分
- その他費用
- 安心入居サポート(初回):16,500円、水道代(月額):2,000円、駐輪代(自二輪(月額):3,300円
- 保証会社
加入要
保証会社利用料:34、000円
- 住宅保険
- 要
- 管理
- -
- LIFULL HOME'S
物件番号 - 0117106-0250795
- 自社管理番号
- 51513-0208
- 取引態様
- 仲介
- 会社名
- 株式会社エリッツ 竹田店
営業スタッフコメント

株式会社エリッツ 竹田店
木村
親切ご丁寧に対応いたします!
業界経験1年
資格少額短期保険募集人
- 会社実績や特徴・サービス情報
- エリッツ竹田店は、近鉄京都線と京都市営地下鉄烏丸線のターミナル駅として、竹田駅に限らず、京都市内全域を幅広く、お部屋探しのお手伝いをさせて頂いております。ご来店頂くお客様も沿線沿いの方が多数なので、四条烏丸や京都駅、宇治市や城陽市、京田辺市方面など、お気軽にご相談下さい。
エリッツ竹田店は、近鉄京都線と京都市営地下鉄烏丸線のターミナル駅として、竹田駅に限らず、京都市内全域を幅広く、お部屋探しのお手伝いをさせて頂いております。ご来店頂くお客様も沿線沿いの方が多数なので、四条烏丸や京都駅、宇治市や城陽市、京田辺市方面など、お気軽にご相談下さい。
- 電話でお問合せ(通話無料)
お問合せ先 :株式会社エリッツ 竹田店
不動産会社情報
株式会社エリッツ 竹田店賃貸のエリッツ竹田店

京都府京都市伏見区竹田段川原町258 アルデールB 1F
京都市営烏丸線 竹田駅 徒歩1分
- 営業時間
- 10:00~19:00
- 定休日
- 火・水曜日(祝日を除く)、年末年始 ※部屋探しのお問い合わせは無休
優良店認定
地下鉄烏丸線・近鉄京都線の「竹田駅」周辺は勿論、龍谷大学近くの「くいな橋駅」も当店のエリアとなっております。学生様だけでなく社会人様・ファミリー様向けの賃貸物件も取り扱っております。
- 店舗の特徴
- 引越し業者紹介可
- オンライン相談可
- 保証人不要な物件あり
- 法人契約取扱い
- 駅から歩いて3分以内
電話でお問合せお客様の電話番号は不動産会社には通知されません
- 不動産会社に
つながります
お客様の電話番号は不動産会社に通知されません
- ※光IP電話、及びIP電話からはご利用になれません
- ※お電話によるお問合せは、店舗営業時間内にお願いします。つながらない場合は、お問合せフォームよりお問合せください
- ※不動産会社がお電話に出られなかった場合、お問合せいただいた後に不動産会社より折り返しのお電話がある場合がございます(お客様が非通知設定した場合は対象外です)
- ※株式会社LIFULLは電話会社が提供するサービスを介してお客様の発信者番号を受領後、折り返し専用の電話番号を発番してお問合せの不動産会社に通知します(お客様の発信者番号がお問合せの不動産会社に通知されることはございません)
- ※携帯電話からお問合せいただいた方に対し、株式会社LIFULLは電話会社が提供するメッセ―ジサービスを介してお客様の発信者番号を受領後、ショートメッセージ(SMS)またはLINE通知メッセージによるお問合せ内容に関する通知をお届けする場合があります
- ※お客様が通話中に不動産会社にお伝えになったお客様の個人情報及び、電話会社が発番する折り返し専用の電話番号は、お問合せ先不動産会社が資料送付・電子メール送信・電話連絡などの目的で保管する可能性があります。お問合せ先不動産会社が保管する個人情報の取扱いについては、各不動産会社に直接お問合せください
- ※株式会社LIFULLでは本サービスを円滑に運用するために、お客様の発信者番号をサービスご利用の控えとして一定期間保管いたします
- ※上記および株式会社LIFULLの個人情報の取扱い方針に同意のうえ、お電話ください
【LIFULL HOME'S物件番号】0117106-0250795【自社管理番号】51513-0208
オンライン対応
オンライン相談・IT重説に対応している物件です

「オンライン内見」「オンライン相談」「IT重説」とは?
物件の内見や不動産会社スタッフとの相談、契約前の重要事項説明をオンライン(ビデオ通話)で行うことができるサービスです。
オンライン内見
ビデオ通話で現地(物件)にいる不動産会社スタッフと映像・音声を使ってリアルタイムで会話しながら内見ができます。
オンライン相談
「物件について聞きたいことがある」など不動産会社スタッフへの相談もビデオ通話で行うことができます。
IT重説
契約前の重要事項説明(重説)をビデオ通話で行うことができます。
利用時の注意事項
- ビデオ通話については各不動産会社指定のものとなります。
- ビデオ通話利用時には通信が発生します。従量課金制通信サービスや通信量に上限があるネット回線・プランを利用する場合は、通信量にご注意ください。
- 通信速度やアプリの設定によってはビデオ通話の画質が低下することがあります。安定した画質で利用するためにも、Wi-Fi環境下での利用を推奨します。
- ご利用のビデオ通話アプリによっては、対象のOSやブラウザに制限がある場合があります。詳しくはお問合せ先不動産会社にご確認ください。
初期費用・月額費用をあわせて確認!この物件に住んだときの費用めやす
めやすを見るこの物件に住んだときの費用めやす
- 初期費用
- 月額費用
- 追加費用※ご確認ください
追加で費用が
かかる場合があります
必ずご確認ください
初期費用めやす約0円
追加で費用がかかります(※)敷金
0
- 礼金
120,000
賃料+共益費・管理費の1ヶ月分として換算
賃料の1ヶ月分+税として換算。不動産会社によって金額が異なるため正確な金額は不動産会社にお問合せください
※追加費用もチェック!
これらの項目以外にも費用がかかる場合があります。正確な金額は不動産会社にお問合せください。
- 初期費用
- 鍵交換費:不動産会社に要確認
- 室内清掃費:不動産会社に要確認
- 火災保険費:不動産会社に要確認
- 月額費用
- 駐車場費:17,000円※近隣
- その他
- 安心入居サポート(初回):16500円
- 水道代(月額):2000円
- 駐輪代(自二輪(月額):3300円
- 保証会社
- 34、000円
不動産会社より
ロフト付のお部屋です。--パノラマ掲載--
阪急電鉄京都線の大宮駅まで徒歩3分の物件です。インターネットを無料で利用する事ができ、浴室には浴室乾燥機が設置されております。周辺にはセブンイレブン 京都大宮後院通店があり便利です。・インターネット無料 ハウスクリーニング33000円(退去時)・駐輪ステッカー(初回):250円
- 保存する
- 共有する
- ※各種情報と現状に差異がある場合は、現状優先となります
- ※不動産会社が入力した情報を基に物件の位置を表示しています。詳しくは不動産会社までお問合せください
- ※不動産会社の方からの上記電話番号によるお問合せはお断りしております。こちら不動産会社詳細からお問合せください
- ※LIFULL HOME'Sは物件鮮度No.1を目指していきます。閲覧中の物件が「成約済である」「実際の物件情報と異なる点がある」などの場合、「掲載110番」からお問合せください
- ※QRコードは株式会社デンソーウェーブの登録商標です
したい暮らしのタグから探す
この物件を取扱う他の会社
LIFULL HOME'Sでは、主要項目が同一の物件をまとめて表示しています。所在地や営業時間、掲載画像等から不動産会社を選んでお問合せください。
最近見た賃貸物件
LIFULL HOME'S 地図・周辺情報
買い物
- ファミリーマート 四条猪熊店
- フレスコ 大宮店
- ケアーズ薬局四条大宮店
- ファミリーマート 四条大宮東店
- ダイソー四条大宮店
グルメ
- CoCo壱番屋 京都四条大宮店
- マクドナルド 四条大宮店
- ロッテリア 京都四条大宮店
- 松屋 四条大宮駅前店
- ガスト 京都四条大宮店(から好し取扱店)
育児・教育
- 光林保育園
- 京都市立洛中小学校
- 京都市立洛友中学校
- たちばな保育園
- 京都市立下京雅小学校
医療
- 山元病院
- 医療法人知音会京都新町病院
- 医療法人令寿会しまばら病院
- 医療法人毛利病院
- 医療法人回生会京都回生病院
公共施設・郵便局
- 京都四条大宮郵便局
- 京都市下京図書館
- 京都府中京警察署
- 京都堀川仏光寺郵便局
- 京都市こどもみらい館子育て図書館
公園
- 光徳公園
- 梅小路公園
- 梅小路公園
- 梅屋広場公園
- 西院公園
利用可能な駅
- 徒歩10分以内
阪急京都本線
- 大宮駅徒歩3分
京福電気鉄道嵐山本線
- 四条大宮駅徒歩5分
- すべての駅
京都市営烏丸線
- 四条駅徒歩15分
- 五条駅徒歩20分
- 烏丸御池駅徒歩25分
- 丸太町駅徒歩31分
- 九条駅3.4km
阪急京都本線
- 烏丸駅徒歩15分
- 西院駅徒歩23分
- 京都河原町駅徒歩25分
JR山陰本線
- 二条駅徒歩17分
- 丹波口駅徒歩19分
- 梅小路京都西駅徒歩28分
- 円町駅3.2km
京都地下鉄東西線
- 二条城前駅徒歩17分
- 烏丸御池駅徒歩25分
- 西大路御池駅徒歩30分
- 京都市役所前駅徒歩36分
- 三条京阪駅3.2km
京福電気鉄道嵐山本線
- 西院駅徒歩21分
- 西大路三条駅徒歩26分
- 山ノ内駅徒歩37分
京阪本線
- 祇園四条駅徒歩29分
- 清水五条駅徒歩32分
- 七条駅3.1km
- 三条駅3.2km
- 神宮丸太町駅4km
JR東海道・山陽本線
- 京都駅徒歩33分
- 西大路駅3.6km
近鉄京都線
- 東寺駅徒歩36分
- 周辺情報は2023年07月21日時点のものになります。
- 周辺情報は、参考情報としてのみご利用ください(周辺情報は、株式会社LIFULLが地図情報の提供事業者から提供を受けた情報とLIFULL HOME'Sの物件情報に基づき、独自の方法で抽出し提供しているものです。周辺情報は、移転や閉鎖等により情報が最新ではない、または正しくない場合がありますが、地図情報の提供事業者から提供された情報をそのまま周辺情報として表示しているため、正確かつ最新の情報へ修正することができないことがあります。)
- 周辺情報は、株式会社LIFULLが掲載するものであり、不動産物件情報を掲載している不動産会社が掲載するものではありません
- 交通情報の一部については、株式会社LIFULLが掲載するものであり、不動産物件情報を掲載している不動産会社が掲載するものではない場合があります。交通情報に関する質問などは株式会社LIFULLにお問合せください














































