LIFULL HOME'Sは物件鮮度No.1!※評価について
クラシアム神奈川台場 6階/0608
25.1万円/管理費等18,000円
5時間前 更新
お問合せ先 :スターツピタットハウス株式会社 リーシング営業課
【新築】フリーレント1ヶ月、横浜ベイサイドエリアを生活圏に!内覧可能は2025年12月頃を予定。
基本情報
不動産用語- 賃料
- 25.1万円
- 管理費等
- 18,000円
初期費用などお気軽にお問合せください
- 敷金/礼金
- 25.1万円/25.1万円
- 保証金/敷引・償却金
- -/-
- 交通
京急本線 京急東神奈川駅 徒歩9分
JR京浜東北・根岸線 東神奈川駅 徒歩10分
- 所在地
神奈川県横浜市神奈川区神奈川1丁目17-6
地図を見る- 築年月
- 2026年3月(新築)
- 主要採光面
- 南西
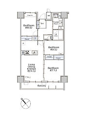
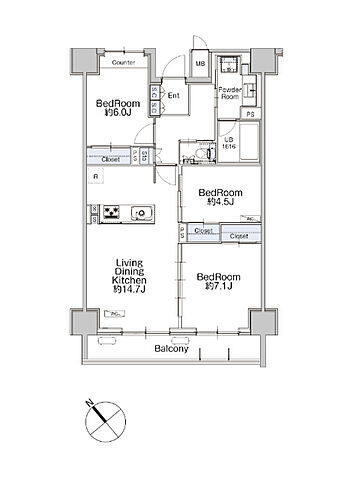
- 専有面積
- 73.17㎡
- バルコニー面積
- -
- 所在階/階数
- 6階/7階建
入居可能日などお気軽にお問合せください
- 現況
- 未完成
- 入居可能時期
- 2026年03月 中旬

人気物件はすぐに埋まってしまいます。
気になったらお早めにお問合せください。
- 情報公開日
2025/11/13
15日前 公開
- 情報更新日
2025/11/28
5時間前 更新
- 次回更新
予定日 - 2025/12/05
物件のこだわり/設備・条件
新築(該当)
2階以上の物件(該当)
南向き(非該当)
駐車場あり(該当)
オートロック(該当)
エアコン(該当)
バス・トイレ別(該当)
追焚機能(該当)
フローリング(非該当)
ペット相談(非該当)
入居条件
楽器不可、事務所不可、ペット不可、フリーレント1ヶ月(短期解約違約金あり)、保証人不要キッチン/バス・トイレ
ガスコンロ設置済、コンロ三口、システムキッチン、給湯、専用バス、専用トイレ、バス・トイレ別、追焚機能、シャワー、シャワー付洗面化粧台、温水洗浄便座、浴室乾燥機、洗面所独立設備・サービス
オートロック、防犯カメラ、TVモニタ付インターホン、エアコン、全居室収納、クローゼット、シューズボックス、CATV、CS対応、BS対応、インターネット使用料無料、都市ガス、バルコニー、室内洗濯機置場、24時間換気システム、室内洗濯物干し、エレベーター、宅配ボックス、駐車場あり、バイク置き場あり、駐輪場あり評価・証明書
BELS/省エネ基準適合認定建築物備考
3駅4路線利用可能!新幹線や羽田空港へのアクセスも便利な立地。みなとみらいエリアへは自転車で約15分!インターネット無料(Wi-Fi対応)NTTフレッツ光。駐車場:25、300円〜(消費税込)、その他初期費用有/バイク置き場:5、500円(消費税込)、その他初期費用有/駐輪場:550円・先着順(台数制限有)その他初期費用有※駐車場・バイク置場・駐輪場のサイズ等はピタットハウスへご連絡下さい。
物件周辺の生活情報
学校
- 横浜市立栗田谷中学校(1,503m)
買い物
- コンビニ(317m)
- スーパー(121m)
- ドラッグストア(1,020m)
その他施設
- 総合病院(1,253m)
- 公園(496m)
- 銀行(866m)
交通
- JR京浜東北・根岸線 東神奈川駅 徒歩10分
- 普通(停車)
- 快速(停車)
- 京急本線 京急東神奈川駅 徒歩9分
- 普通(停車)
- 特急(通過)
- 快特(通過)
- エアポート快特(通過)
- 急行(停車)
※急行等の停車駅情報について
急行等の停車駅に関するデータは、随時更新をしておりますが、最新の内容であることを保証するものではありません。
最新かつ正確な情報につきましては、各鉄道会社のウェブサイトにてご確認ください
物件周辺の口コミ
- 神奈川県横浜市神奈川区神奈川に住む人の口コミ40代男性
スーパーが近くにあり、駅前は総合スーパーや食高級スーパー、病院等生活に必要なものは一通り揃っている。
口コミを見る
この物件周辺に住む人の口コミ
口コミは、LIFULL HOME'Sが実際にこの物件の周辺に住む18歳~69歳の男女を対象に、WEBアンケート調査を実施しています。内容には回答者の主観的な表現が含まれる場合があるほか、事実と異なる場合もございます。ご了承ください。
- 神奈川県横浜市神奈川区神奈川に住む人の口コミ40代男性
- スーパーが近くにあり、駅前は総合スーパーや食高級スーパー、病院等生活に必要なものは一通り揃っている。
- 神奈川県横浜市神奈川区神奈川に住む人の口コミ40代男性
- 治安も良く、近くに大型イオンスーパーがあり、公園も何か所かある。
- 神奈川県横浜市神奈川区神奈川に住む人の口コミ60代女性
- 大きな駅横浜にも近いし、交通手段が充実している。大方のもにはそろっている
- 神奈川県横浜市神奈川区星野町に住む人の口コミ40代女性
- 治安が良い。自転車で10分くらいで横浜駅やみなとみらいに行けるのでとても便利。
- 神奈川県横浜市神奈川区斎藤分町に住む人の口コミ60代男性
- 交通の利便性は良く、便利なエリアではあるものの、おしゃれな街ではない、電線地中化は実現しておらず、景観はイマイチ。迷惑カラスが多い。
- 神奈川県横浜市神奈川区六角橋に住む人の口コミ50代男性
- 大学があり若者が行き来しており、また住宅街で仲見世のような商店街があり活気がある
- 神奈川県横浜市神奈川区富家町に住む人の口コミ60代男性
- 交通の便がいいし、病院も近くにある、買い物も便利、ただ、車&電車騒がしい
- 神奈川県横浜市神奈川区六角橋に住む人の口コミ60代女性
- 電車、バスともに交通の便が良く、日常の買い物にも不自由しない。緑豊かで大きな公園があって、子ども連れの家族がピクニックを楽しんでおり、花見も楽しめる。治安上の問題もほとんどなく、夜道も安心して歩ける。
- 神奈川県横浜市神奈川区新町に住む人の口コミ30代男性
- 複数の駅や路線を利用できるため、どこに行くのも不便しないことが満足の要因であると考えています。また、街の中で必要最低限のものは全て揃うので、その点も評価しています。
- 神奈川県横浜市神奈川区広台太田町に住む人の口コミ40代女性
- 幼稚園から中学まで徒歩通学で15分圏内、スーパー(深夜営業)・コンビニ等があり買い物に便利、東横線・JR・京浜急行の最寄り駅まで徒歩10分圏内、歯科・皮膚科・内科・小児科が徒歩10分圏内
物件概要
- 建物構造
- RC(鉄筋コンクリート)
- 駐車場
- 空有 契約必須 25,300円(税込) 物件からの距離0m 敷金1ヶ月あり
- 総戸数
- 121戸
- 契約形態
- -
- 契約期間
- 2年間
- 更新料
- 251,000円
- その他費用
- バイク置場代:5,500円、駐輪場代:550円、鍵交換費用:17,600円
- 保証会社
加入要
保証会社:VIEW家賃保証プラス
保証会社利用料:【カード払い】初回保証料:月額総支払額の10%、月額保証料:月額総支払額の1.25%、年間保証料:10、000円【口座振替】初回保証料:月額総支払額の50%、年間保証料:10、000円
- 住宅保険
- 要
- 管理
- -
- LIFULL HOME'S
物件番号 - 3705289-0001579
- 自社管理番号
- 11639188
- 取引態様
- 専任媒介
- 会社名
- スターツピタットハウス株式会社 リーシング営業課
- 電話でお問合せ(通話無料)
お問合せ先 :スターツピタットハウス株式会社 リーシング営業課
不動産会社情報
スターツピタットハウス株式会社 リーシング営業課
東京都中央区日本橋3丁目1-8 スターツ日本橋ビル4階
東京メトロ東西線 日本橋駅 徒歩1分
- 営業時間
- 10:00~18:00(GW休業:5/3(土)〜5/7(水)、夏季休業:8/11(月)〜8/15(金)、冬季休業:12/28(日)〜1/3(土))
- 定休日
- 毎週水曜日・GW休業・夏季休業・年末年始休業
電話でお問合せお客様の電話番号は不動産会社には通知されません
- 不動産会社に
つながります
お客様の電話番号は不動産会社に通知されません
- ※光IP電話、及びIP電話からはご利用になれません
- ※お電話によるお問合せは、店舗営業時間内にお願いします。つながらない場合は、お問合せフォームよりお問合せください
- ※不動産会社がお電話に出られなかった場合、お問合せいただいた後に不動産会社より折り返しのお電話がある場合がございます(お客様が非通知設定した場合は対象外です)
- ※株式会社LIFULLは電話会社が提供するサービスを介してお客様の発信者番号を受領後、折り返し専用の電話番号を発番してお問合せの不動産会社に通知します(お客様の発信者番号がお問合せの不動産会社に通知されることはございません)
- ※携帯電話からお問合せいただいた方に対し、株式会社LIFULLは電話会社が提供するメッセ―ジサービスを介してお客様の発信者番号を受領後、ショートメッセージ(SMS)またはLINE通知メッセージによるお問合せ内容に関する通知をお届けする場合があります
- ※お客様が通話中に不動産会社にお伝えになったお客様の個人情報及び、電話会社が発番する折り返し専用の電話番号は、お問合せ先不動産会社が資料送付・電子メール送信・電話連絡などの目的で保管する可能性があります。お問合せ先不動産会社が保管する個人情報の取扱いについては、各不動産会社に直接お問合せください
- ※株式会社LIFULLでは本サービスを円滑に運用するために、お客様の発信者番号をサービスご利用の控えとして一定期間保管いたします
- ※上記および株式会社LIFULLの個人情報の取扱い方針に同意のうえ、お電話ください
【LIFULL HOME'S物件番号】3705289-0001579【自社管理番号】11639188
オンライン対応
オンライン内見・オンライン相談・IT重説に対応している物件です

「オンライン内見」「オンライン相談」「IT重説」とは?
物件の内見や不動産会社スタッフとの相談、契約前の重要事項説明をオンライン(ビデオ通話)で行うことができるサービスです。
オンライン内見
ビデオ通話で現地(物件)にいる不動産会社スタッフと映像・音声を使ってリアルタイムで会話しながら内見ができます。
オンライン相談
「物件について聞きたいことがある」など不動産会社スタッフへの相談もビデオ通話で行うことができます。
IT重説
契約前の重要事項説明(重説)をビデオ通話で行うことができます。
利用時の注意事項
- ビデオ通話については各不動産会社指定のものとなります。
- ビデオ通話利用時には通信が発生します。従量課金制通信サービスや通信量に上限があるネット回線・プランを利用する場合は、通信量にご注意ください。
- 通信速度やアプリの設定によってはビデオ通話の画質が低下することがあります。安定した画質で利用するためにも、Wi-Fi環境下での利用を推奨します。
- ご利用のビデオ通話アプリによっては、対象のOSやブラウザに制限がある場合があります。詳しくはお問合せ先不動産会社にご確認ください。
- 保存する
- 共有する
- ※各種情報と現状に差異がある場合は、現状優先となります
- ※不動産会社が入力した情報を基に物件の位置を表示しています。詳しくは不動産会社までお問合せください
- ※不動産会社の方からの上記電話番号によるお問合せはお断りしております。こちら不動産会社詳細からお問合せください
- ※LIFULL HOME'Sは物件鮮度No.1を目指していきます。閲覧中の物件が「成約済である」「実際の物件情報と異なる点がある」などの場合、「掲載110番」からお問合せください
- ※QRコードは株式会社デンソーウェーブの登録商標です
LIFULL HOME'S 地図・周辺情報
買い物
- ファミリーマート 横浜青木町店
- まいばすけっと神奈川2丁目店
- クリエイトエス・ディー横浜反町店
- ローソン ・スリーエフ横浜中央市場店
- まいばすけっと東神奈川駅南店
グルメ
- スシロー 東神奈川店
- すき家 東神奈川駅東口店
- マクドナルド 東神奈川駅店
- 天丼てんや シァルプラット東神奈川店
- ドトールコーヒーショップ東神奈川駅西口店
育児・教育
- 小鳩保育園
- 横浜市立幸ケ谷小学校
- 横浜市立栗田谷中学校
- 小鳩保育園分園
- 横浜市立神奈川小学校
医療
- 社会福祉法人恩賜財団済生会神奈川県病院
- 済生会東神奈川リハビリテーション病院
- 財団法人神奈川県警友会けいゆう病院
- 医療法人社団善仁会横浜第一病院
- 医療法人明和会亀田病院
公共施設・郵便局
- 東神奈川駅前郵便局
- 横浜市神奈川図書館
- 神奈川警察署
- 神奈川宮前郵便局
- 神奈川県立図書館
公園
- 神奈川公園
- 幸ケ谷公園
- ポートサイド公園
- 高島水際線公園
- 台町公園
利用可能な駅
- 徒歩10分以内
京急本線
- 京急東神奈川駅徒歩9分
JR京浜東北・根岸線
- 東神奈川駅徒歩10分
- 周辺情報は2023年07月21日時点のものになります。
- 周辺情報は、参考情報としてのみご利用ください(周辺情報は、株式会社LIFULLが地図情報の提供事業者から提供を受けた情報とLIFULL HOME'Sの物件情報に基づき、独自の方法で抽出し提供しているものです。周辺情報は、移転や閉鎖等により情報が最新ではない、または正しくない場合がありますが、地図情報の提供事業者から提供された情報をそのまま周辺情報として表示しているため、正確かつ最新の情報へ修正することができないことがあります。)
- 周辺情報は、株式会社LIFULLが掲載するものであり、不動産物件情報を掲載している不動産会社が掲載するものではありません
- 交通情報の一部については、株式会社LIFULLが掲載するものであり、不動産物件情報を掲載している不動産会社が掲載するものではない場合があります。交通情報に関する質問などは株式会社LIFULLにお問合せください





















