LIFULL HOME'Sは物件鮮度No.1!※評価について
京都市営烏丸線 十条駅 徒歩1分
6.5万円/管理費等7,000円
16時間前 更新
画像一覧
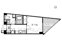
1/30間取り
間取
2/30外観
3/30外観
4/30リビング/ダイニング
5/30リビング/ダイニング
6/30室内
7/30キッチン
8/30キッチン
9/30浴室
10/30トイレ
11/30洗面
12/30洗面
13/30収納
14/30設備
15/30設備
16/30玄関
17/30玄関
18/30バルコニー
19/30バルコニー
20/30エントランス
21/30その他
22/30その他
23/30その他
24/30その他
25/30その他
26/30その他
宅配ボックス
27/30その他
28/30その他
エレベーター
29/30その他
30/30周辺
セブンイレブン京都烏丸十条店まで132m
間取り
外観
外観
リビング/ダイニング
リビング/ダイニング
室内
キッチン
キッチン
浴室
トイレ
洗面
洗面
収納
設備
設備
玄関
玄関
バルコニー
バルコニー
エントランス
その他
その他
その他
その他
その他
その他
その他
その他
その他
周辺
仲介手数料割引
京都ライフなら、ご成約時に仲介手数料が家賃の50%(外税)です。
- 利用条件
- 株式会社京都ライフ 河原町四条店で利用可
- 他特典との併用可
- .法人契約、事業用物件は除く .積水ハウス、大東建託の管理物件は除く
利用方法
来店時に本特典の画面をスマートフォンやタブレットでスタッフに提示、または画面印刷した用紙を提示ください。
有効期限 なし
地下鉄十条駅、駅前 充実のセキュリティーで女性も安心。
物件のこだわり/設備・条件
新築(非該当)
2階以上の物件(該当)
南向き(非該当)
駐車場(非該当)
オートロック(該当)
エアコン(該当)
バス・トイレ別(該当)
追焚機能(非該当)
フローリング(該当)
ペット相談(非該当)
位置
角部屋入居条件
二人入居可、即入居可キッチン/バス・トイレ
設備・サービス
オートロック、防犯カメラ、TVモニタ付インターホン、エアコン、シューズボックス、CS対応、BS対応、光ファイバー、インターネット使用料無料、公営水道、下水、オール電化、フローリング、バルコニー、室内洗濯機置場、照明器具付き、バリアフリー、エレベーター、ゴミ出し24時間OK、宅配ボックス、バイク置き場あり、駐輪場ありその他
デザイナーズ、住まい探し特典あり備考
地下鉄十条駅まですぐのデザイナーズマンションです(徒歩1分)。JR、京阪、近鉄、地下鉄にアクセス便利な立地です。嬉しい3点セパレートにシステムキッチン、温水洗浄便座など充実の設備。オートロック、TVホンでセキュリティも安心です。コンビニ、スーパーなど近くにあって便利ですよ。光ファイバー対応しています。 物件情報はもちろん京都のエリア情報まで幅広く対応させていただきます!
物件周辺の生活情報
買い物
- コンビニ(132m)
- スーパー(582m)
その他施設
- 総合病院(1,300m)
- 銀行(200m)
- 京都札ノ辻郵便局(138m)
交通
- 京都市営烏丸線 十条駅 徒歩1分
- 普通(停車)
- 急行(停車)
- JR東海道・山陽本線 京都駅 徒歩15分
- 普通(停車)
- 新快速(停車)
- 快速(停車)
- 緩行電車(停車)
- 特別快速(通過)
- 区間快速(通過)
※急行等の停車駅情報について
急行等の停車駅に関するデータは、随時更新をしておりますが、最新の内容であることを保証するものではありません。
最新かつ正確な情報につきましては、各鉄道会社のウェブサイトにてご確認ください
物件周辺の口コミ
- 京都府京都市南区東九条松田町に住む人の口コミ20代女性
交通の便がいい。桜や紅葉が綺麗。美味しいお店が多い。建物が低い。碁盤の目のため道がわかりやすい
口コミを見る
この物件周辺に住む人の口コミ
口コミは、LIFULL HOME'Sが実際にこの物件の周辺に住む18歳~69歳の男女を対象に、WEBアンケート調査を実施しています。内容には回答者の主観的な表現が含まれる場合があるほか、事実と異なる場合もございます。ご了承ください。
- 京都府京都市南区東九条松田町に住む人の口コミ20代女性
- 交通の便がいい。桜や紅葉が綺麗。美味しいお店が多い。建物が低い。碁盤の目のため道がわかりやすい
- 京都府京都市南区吉祥院九条町に住む人の口コミ30代女性
- 駅近、電車の便も多く、バス1本でどこでも行ける、歩いて郵便局、小学校、小児科、病院、AEON、コンビニ、必要な施設が徒歩圏内で行けるところ
- 京都府京都市南区吉祥院九条町に住む人の口コミ30代女性
- 近くに大型スーパーや業務用スーパー、24時間営業のスーパーがあり、駅からも近い。自転車で行ける距離に映画館や大きな郵便局もあるので。
- 京都府京都市下京区烏丸通七条下る2筋目西入に住む人の口コミ20代女性
- 自然がたくさんないのは残念だが、都会にしては多いと思うし、お店がたくさんあり何でも揃う。
- 京都府京都市南区東九条明田町に住む人の口コミ20代女性
- 夜はあまり治安が良いとは言えないがある程度のものは近くにあって便利なのは便利
- 京都府京都市南区吉祥院三ノ宮西町に住む人の口コミ20代女性
- 京都駅まで1駅で交通の便がいい。生活に必要なものは地元で揃うし、もう少し良いものは京都駅まで出ればある。学生も少なくがやがやしていない。
- 京都府京都市下京区新町通七条下るに住む人の口コミ20代女性
- 交通・買い物等利便性が高いから。観光客含め人が多すぎることが難点。
- 京都府京都市南区唐橋南琵琶町に住む人の口コミ20代女性
- 産まれたころから住んでいるのですみやすい。コンビニ、イオン、映画館等、近所にあるため、充実した休日を地元周辺ですごすことができる。
- 京都府京都市南区西九条東比永城町に住む人の口コミ20代女性
- 交通の便が良く、スーパーやドラッグストアがあり日常生活に困ることはない。
- 京都府京都市南区吉祥院三ノ宮町に住む人の口コミ30代女性
- 交通の便もよく、自然も近くにある。ファミリー層も多いため住みやすい。
物件概要
- 建物構造
- RC(鉄筋コンクリート)
- 駐車場
- 無
- 総戸数
- 28戸
- 契約形態
- -
- 契約期間
- 2年間
- 更新料
- 新賃料の1ヶ月分
- その他費用
- 鍵交換費用:15,000円、室内清掃費用:33,000円、LIFE SUPPORT:1,100円、エアコンクリーニング代:13,200円
- 保証会社
加入要
保証会社:あんしんプラス
保証会社利用料:初回:月額賃料等の40%、月額:支払い手数料880円、更新時:月額賃料等の20%/2年
- 住宅保険
- 要
- 管理
- -
- LIFULL HOME'S
物件番号 - 0140999-0222785
- 自社管理番号
- 24578-404-26
- 取引態様
- 専属専任媒介
- 会社名
- 株式会社京都ライフ 河原町四条店
営業スタッフコメント

株式会社京都ライフ 河原町四条店
島名萌々花
お客様満足度100%を目標にしております!
業界経験3年
資格少額短期保険募集人
- 会社実績や特徴・サービス情報
- 京都市のお部屋探しは「創業40年以上。老舗の京都ライフ」へおまかせ下さい。 その他非掲載物件も多数ございます。ぜひ自社HPもご覧ください。 「京都ライフ」で検索でOK。京都ライフでは仲介手数料は家賃の半月分です。
京都市のお部屋探しは「創業40年以上。老舗の京都ライフ」へおまかせ下さい。 その他非掲載物件も多数ございます。ぜひ自社HPもご覧ください。 「京都ライフ」で検索でOK。京都ライフでは仲介手数料は家賃の半月分です。
- 電話でお問合せ(通話無料)
お問合せ先 :株式会社京都ライフ 河原町四条店
不動産会社情報
株式会社京都ライフ 河原町四条店
京都府京都市中京区奈良屋町291-2 wise core BLD.1階
阪急京都本線 京都河原町駅 徒歩4分
- 営業時間
- 09:30~19:00
- 定休日
- 年中無休(盆正月を除く)
京都市の中心街である河原町エリアは、様々なお店で賑わう京都屈指の繁華街です。このエリアでのお部屋探しは京都ライフ河原町四条店へお任せください!
- 店舗の特徴
- 賃貸管理業務
- 24時間管理物件取扱い
- 引越し業者紹介可
- 年中無休
- 社宅・寮物件取扱い
- オンライン相談可
- 保証人不要な物件あり
- 法人契約取扱い
- 女性スタッフ対応可
- 19時以降も営業
電話でお問合せお客様の電話番号は不動産会社には通知されません
- 不動産会社に
つながります
お客様の電話番号は不動産会社に通知されません
- ※光IP電話、及びIP電話からはご利用になれません
- ※お電話によるお問合せは、店舗営業時間内にお願いします。つながらない場合は、お問合せフォームよりお問合せください
- ※不動産会社がお電話に出られなかった場合、お問合せいただいた後に不動産会社より折り返しのお電話がある場合がございます(お客様が非通知設定した場合は対象外です)
- ※株式会社LIFULLは電話会社が提供するサービスを介してお客様の発信者番号を受領後、折り返し専用の電話番号を発番してお問合せの不動産会社に通知します(お客様の発信者番号がお問合せの不動産会社に通知されることはございません)
- ※携帯電話からお問合せいただいた方に対し、株式会社LIFULLは電話会社が提供するメッセ―ジサービスを介してお客様の発信者番号を受領後、ショートメッセージ(SMS)またはLINE通知メッセージによるお問合せ内容に関する通知をお届けする場合があります
- ※お客様が通話中に不動産会社にお伝えになったお客様の個人情報及び、電話会社が発番する折り返し専用の電話番号は、お問合せ先不動産会社が資料送付・電子メール送信・電話連絡などの目的で保管する可能性があります。お問合せ先不動産会社が保管する個人情報の取扱いについては、各不動産会社に直接お問合せください
- ※株式会社LIFULLでは本サービスを円滑に運用するために、お客様の発信者番号をサービスご利用の控えとして一定期間保管いたします
- ※上記および株式会社LIFULLの個人情報の取扱い方針に同意のうえ、お電話ください
【LIFULL HOME'S物件番号】0140999-0222785【自社管理番号】24578-404-26
オンライン対応
オンライン内見・オンライン相談・IT重説に対応している物件です

「オンライン内見」「オンライン相談」「IT重説」とは?
物件の内見や不動産会社スタッフとの相談、契約前の重要事項説明をオンライン(ビデオ通話)で行うことができるサービスです。
オンライン内見
ビデオ通話で現地(物件)にいる不動産会社スタッフと映像・音声を使ってリアルタイムで会話しながら内見ができます。
オンライン相談
「物件について聞きたいことがある」など不動産会社スタッフへの相談もビデオ通話で行うことができます。
IT重説
契約前の重要事項説明(重説)をビデオ通話で行うことができます。
利用時の注意事項
- ビデオ通話については各不動産会社指定のものとなります。
- ビデオ通話利用時には通信が発生します。従量課金制通信サービスや通信量に上限があるネット回線・プランを利用する場合は、通信量にご注意ください。
- 通信速度やアプリの設定によってはビデオ通話の画質が低下することがあります。安定した画質で利用するためにも、Wi-Fi環境下での利用を推奨します。
- ご利用のビデオ通話アプリによっては、対象のOSやブラウザに制限がある場合があります。詳しくはお問合せ先不動産会社にご確認ください。
初期費用・月額費用をあわせて確認!この物件に住んだときの費用めやす
めやすを見るこの物件に住んだときの費用めやす
- 初期費用
- 月額費用
- 追加費用※ご確認ください
追加で費用が
かかる場合があります
必ずご確認ください
初期費用めやす約0円
追加で費用がかかります(※)敷金
65,000
- 礼金
65,000
賃料+共益費・管理費の1ヶ月分として換算
賃料の1ヶ月分+税として換算。不動産会社によって金額が異なるため正確な金額は不動産会社にお問合せください
※追加費用もチェック!
これらの項目以外にも費用がかかる場合があります。正確な金額は不動産会社にお問合せください。
- 初期費用
- 鍵交換費:15,000円
- 室内清掃費:33,000円
- 火災保険費:不動産会社に要確認
- その他
- LIFE SUPPORT:1100円
- エアコンクリーニング代:13200円
- 保証会社
- 初回:月額賃料等の40%、月額:支払い手数料880円、更新時:月額賃料等の20%/2年
不動産会社より
地下鉄十条駅、駅前 充実のセキュリティーで女性も安心。
地下鉄十条駅まですぐのデザイナーズマンションです(徒歩1分)。JR、京阪、近鉄、地下鉄にアクセス便利な立地です。嬉しい3点セパレートにシステムキッチン、温水洗浄便座など充実の設備。オートロック、TVホンでセキュリティも安心です。コンビニ、スーパーなど近くにあって便利ですよ。光ファイバー対応しています。 物件情報はもちろん京都のエリア情報まで幅広く対応させていただきます!
- 保存する
- 共有する
- ※各種情報と現状に差異がある場合は、現状優先となります
- ※不動産会社が入力した情報を基に物件の位置を表示しています。詳しくは不動産会社までお問合せください
- ※不動産会社の方からの上記電話番号によるお問合せはお断りしております。こちら不動産会社詳細からお問合せください
- ※LIFULL HOME'Sは物件鮮度No.1を目指していきます。閲覧中の物件が「成約済である」「実際の物件情報と異なる点がある」などの場合、「掲載110番」からお問合せください
- ※QRコードは株式会社デンソーウェーブの登録商標です
この物件を取扱う他の会社
LIFULL HOME'Sでは、主要項目が同一の物件をまとめて表示しています。所在地や営業時間、掲載画像等から不動産会社を選んでお問合せください。
LIFULL HOME'S 地図・周辺情報
買い物
- ファミリーマート 烏丸十条店
- ライフ 伏見深草店
- ドラッグユタカ伏見フケノ内店
- セブンイレブン 京都烏丸十条店
- ジャパン 京都十条店
グルメ
- ステーキガスト 京都十条通店
- ガスト 京都十条通店(から好し取扱店)
- 和食さと 大石橋店
- 吉野家 京都九条店
- マクドナルド 竹田街道店
育児・教育
- 東和保育園
- 京都市立九条弘道小学校
- 京都市立凌風小中学校
- 松ノ木保育園
- 京都市立九条塔南小学校
医療
- 医療法人社団育成会京都久野病院介護医療院
- 医療法人五木田病院介護医療院
- 医療法人社団育生会京都久野病院
- 医療法人財団医道会稲荷山武田病院
- 洛和会ヘルスケアシステム洛和会東寺南病院
公共施設・郵便局
- 京都札ノ辻郵便局
- 京都市南図書館
- 京都府南警察署
- 京都東九条郵便局
- 京都市吉祥院図書館
公園
- 深草墓園
- 深草西浦南公園
- 梅小路公園
- 梅小路公園
- 唐橋西寺公園
利用可能な駅
- 徒歩10分以内
京都市営烏丸線
- 十条駅徒歩1分
- 九条駅徒歩9分
近鉄京都線
- 十条駅徒歩10分
- すべての駅
JR東海道・山陽本線
- 京都駅徒歩15分
- 西大路駅3.2km
京阪本線
- 鳥羽街道駅徒歩15分
- 伏見稲荷駅徒歩18分
- 龍谷大前深草駅徒歩25分
- 七条駅徒歩33分
- 藤森駅徒歩34分
- 清水五条駅3.4km
- 墨染駅3.9km
近鉄京都線
- 上鳥羽口駅徒歩17分
- 東寺駅徒歩19分
- 竹田駅徒歩34分
京都市営烏丸線
- くいな橋駅徒歩21分
- 五条駅徒歩32分
JR奈良線
- 稲荷駅徒歩21分
- 東福寺駅徒歩24分
JR山陰本線
- 梅小路京都西駅3.2km
- 丹波口駅4km
- 周辺情報は2023年07月21日時点のものになります。
- 周辺情報は、参考情報としてのみご利用ください(周辺情報は、株式会社LIFULLが地図情報の提供事業者から提供を受けた情報とLIFULL HOME'Sの物件情報に基づき、独自の方法で抽出し提供しているものです。周辺情報は、移転や閉鎖等により情報が最新ではない、または正しくない場合がありますが、地図情報の提供事業者から提供された情報をそのまま周辺情報として表示しているため、正確かつ最新の情報へ修正することができないことがあります。)
- 周辺情報は、株式会社LIFULLが掲載するものであり、不動産物件情報を掲載している不動産会社が掲載するものではありません
- 交通情報の一部については、株式会社LIFULLが掲載するものであり、不動産物件情報を掲載している不動産会社が掲載するものではない場合があります。交通情報に関する質問などは株式会社LIFULLにお問合せください















