LIFULL HOME'Sは物件鮮度No.1!※評価について
クラスカ西陣 5階/209
9.4万円/管理費等5,000円
6時間前 更新
画像一覧
1/29外観
2/29外観
3/29リビング/ダイニング
リビング
4/29リビング/ダイニング
リビング
5/29室内
洋室
6/29寝室
洋室
7/29寝室
洋室
8/29寝室
6畳
9/29子供部屋
洋室
10/29キッチン
キッチン
11/29キッチン
キッチン
12/29浴室
風呂
13/29浴室
風呂
14/29トイレ
トイレ
15/29洗面
洗面所
16/29収納
収納
17/29設備
冷蔵庫置場
18/29設備
洗濯機置場
19/29玄関
玄関
20/29玄関
玄関
21/29バルコニー
ベランダ
22/29エントランス
エントランス
23/29駐車場
駐車場
24/29その他
廊下
25/29その他
眺望
26/29その他
エアコン
27/29周辺
エムジー 鞍馬口店まで10メートル
28/29周辺
ファミリーマート 千本鞍馬口店まで300メートル
29/29周辺
ひかり 千本今出川店まで500メートル
外観
外観
リビング/ダイニング
リビング/ダイニング
室内
寝室
寝室
寝室
子供部屋
キッチン
キッチン
浴室
浴室
トイレ
洗面
収納
設備
設備
玄関
玄関
バルコニー
エントランス
駐車場
その他
その他
その他
周辺
周辺
周辺
お問合せ先 :株式会社エリッツ 出町柳店
住まい探し特典内容
電気・ガス・インターネットの手続き代行のご案内します。
- 利用条件
- 株式会社エリッツ 出町柳店で利用可
- 他特典との併用可
利用方法
来店時に本特典の画面をスマートフォンやタブレットでスタッフに提示、または画面印刷した用紙を提示ください。
有効期限 なし
定期借家
この物件の契約期間は、5年間です
※定期借家物件は、賃貸借契約期間満了後、原則として契約の更新ができない物件です。貸主との合意があれば再契約が可能な場合があります
スーパーの隣に位置します。--パノラマ掲載--
基本情報
不動産用語- 賃料
- 9.4万円
- 管理費等
- 5,000円
初期費用などお気軽にお問合せください
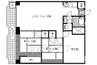
物件のこだわり/設備・条件
新築(非該当)
2階以上の物件(該当)
南向き(非該当)
駐車場あり(該当)
オートロック(該当)
エアコン(該当)
バス・トイレ別(該当)
追焚機能(非該当)
フローリング(該当)
ペット相談(非該当)
入居条件
二人入居可、即入居可キッチン/バス・トイレ
設備・サービス
オートロック、エアコン、ウォークインクローゼット、クローゼット、CATV、BS対応、光ファイバー、公営水道、都市ガス、下水、フローリング、バルコニー、室内洗濯機置場、エレベーター、ゴミ出し24時間OK、宅配ボックス、駐車場あり、バイク置き場あり、駐輪場ありその他
初期費用カード決済可、住まい探し特典あり備考
【紫野小学校区・嘉楽中学校区】スーパー、コンビニ徒歩で行けます。エレベーター、宅配ボックス、オートロック付きのファミリー向けのお部屋です。バストイレ別、独立洗面台付き。キッチンも広々しています。・光ファイバーインターネット接続可 ハウスクリーニング67100円(退去時)
物件周辺の生活情報
買い物
- コンビニ(300m)
- スーパー(10m)
- ドラッグストア(500m)
その他施設
- 総合病院(690m)
交通
- 京都市営烏丸線 鞍馬口駅 徒歩23分
- 普通(停車)
- 急行(停車)
- 京都市営烏丸線 北大路駅 徒歩26分
- 普通(停車)
- 急行(停車)
※急行等の停車駅情報について
急行等の停車駅に関するデータは、随時更新をしておりますが、最新の内容であることを保証するものではありません。
最新かつ正確な情報につきましては、各鉄道会社のウェブサイトにてご確認ください
物件概要
- 建物構造
- RC(鉄筋コンクリート)
- 駐車場
- 空有 19,800円(税込)
- 総戸数
- 109戸
- 契約形態
定期借家
- 契約期間
- 5年間
- 更新料
- -
- その他費用
- 駐輪代(原付(月額):1,650円、駐輪代(自二輪(月額):2,200円
- 保証会社
- -
- 住宅保険
- 要
- 管理
- -
- LIFULL HOME'S
物件番号 - 0110596-0282687
- 自社管理番号
- 11311-0209
- 取引態様
- 仲介
- 会社名
- 株式会社エリッツ 出町柳店
営業スタッフコメント

株式会社エリッツ 出町柳店
神田
明るく元気にお部屋探しお手伝いさせて頂きます!
業界経験1年
資格宅地建物取引士
- 会社実績や特徴・サービス情報
- 賃貸のエリッツ出町柳店は、京阪出町柳駅近くに店舗を構え、京都大学(京大)を始めとする学生専用の賃貸マンションから社会人の為の単身賃貸マンション、新婚様やご家族の為のファミリー賃貸物件や友人同士のルームシェア対応賃貸、ペット可能賃貸、テナント賃貸物件など、数多くのニーズに応じた賃貸物件を提供致します。
賃貸のエリッツ出町柳店は、京阪出町柳駅近くに店舗を構え、京都大学(京大)を始めとする学生専用の賃貸マンションから社会人の為の単身賃貸マンション、新婚様やご家族の為のファミリー賃貸物件や友人同士のルームシェア対応賃貸、ペット可能賃貸、テナント賃貸物件など、数多くのニーズに応じた賃貸物件を提供致します。
- 電話でお問合せ(通話無料)
お問合せ先 :株式会社エリッツ 出町柳店
不動産会社情報
株式会社エリッツ 出町柳店賃貸のエリッツ出町柳店

京都府京都市左京区田中関田町16−1 グランコスモ出町柳II 1F
京阪本線 出町柳駅 徒歩4分
- 営業時間
- 10:00~19:00
- 定休日
- 年中無休(年末年始を除く)
優良店認定
京都市左京区のお部屋探しは「エリッツ出町柳店」にお任せ下さい。京都市内一の店舗数による豊富な情報でご満足頂けるお部屋をお探し致します。京都大学・京都芸術大学の関係者様、是非お越しください。
- 店舗の特徴
- 引越し業者紹介可
- 年中無休
- オンライン相談可
- 保証人不要な物件あり
- 法人契約取扱い
- 女性スタッフ対応可
- 駅から歩いて3分以内
- 外国語を話せるスタッフ在籍
電話でお問合せお客様の電話番号は不動産会社には通知されません
- 不動産会社に
つながります
お客様の電話番号は不動産会社に通知されません
- ※光IP電話、及びIP電話からはご利用になれません
- ※お電話によるお問合せは、店舗営業時間内にお願いします。つながらない場合は、お問合せフォームよりお問合せください
- ※不動産会社がお電話に出られなかった場合、お問合せいただいた後に不動産会社より折り返しのお電話がある場合がございます(お客様が非通知設定した場合は対象外です)
- ※株式会社LIFULLは電話会社が提供するサービスを介してお客様の発信者番号を受領後、折り返し専用の電話番号を発番してお問合せの不動産会社に通知します(お客様の発信者番号がお問合せの不動産会社に通知されることはございません)
- ※携帯電話からお問合せいただいた方に対し、株式会社LIFULLは電話会社が提供するメッセ―ジサービスを介してお客様の発信者番号を受領後、ショートメッセージ(SMS)またはLINE通知メッセージによるお問合せ内容に関する通知をお届けする場合があります
- ※お客様が通話中に不動産会社にお伝えになったお客様の個人情報及び、電話会社が発番する折り返し専用の電話番号は、お問合せ先不動産会社が資料送付・電子メール送信・電話連絡などの目的で保管する可能性があります。お問合せ先不動産会社が保管する個人情報の取扱いについては、各不動産会社に直接お問合せください
- ※株式会社LIFULLでは本サービスを円滑に運用するために、お客様の発信者番号をサービスご利用の控えとして一定期間保管いたします
- ※上記および株式会社LIFULLの個人情報の取扱い方針に同意のうえ、お電話ください
【LIFULL HOME'S物件番号】0110596-0282687【自社管理番号】11311-0209
オンライン対応
オンライン内見・オンライン相談・IT重説に対応している物件です

「オンライン内見」「オンライン相談」「IT重説」とは?
物件の内見や不動産会社スタッフとの相談、契約前の重要事項説明をオンライン(ビデオ通話)で行うことができるサービスです。
オンライン内見
ビデオ通話で現地(物件)にいる不動産会社スタッフと映像・音声を使ってリアルタイムで会話しながら内見ができます。
オンライン相談
「物件について聞きたいことがある」など不動産会社スタッフへの相談もビデオ通話で行うことができます。
IT重説
契約前の重要事項説明(重説)をビデオ通話で行うことができます。
利用時の注意事項
- ビデオ通話については各不動産会社指定のものとなります。
- ビデオ通話利用時には通信が発生します。従量課金制通信サービスや通信量に上限があるネット回線・プランを利用する場合は、通信量にご注意ください。
- 通信速度やアプリの設定によってはビデオ通話の画質が低下することがあります。安定した画質で利用するためにも、Wi-Fi環境下での利用を推奨します。
- ご利用のビデオ通話アプリによっては、対象のOSやブラウザに制限がある場合があります。詳しくはお問合せ先不動産会社にご確認ください。
初期費用・月額費用をあわせて確認!この物件に住んだときの費用めやす
めやすを見るこの物件に住んだときの費用めやす
- 初期費用
- 月額費用
- 追加費用※ご確認ください
追加で費用が
かかる場合があります
必ずご確認ください
初期費用めやす約0円
追加で費用がかかります(※)敷金
150,000
- 礼金
0
賃料+共益費・管理費の1ヶ月分として換算
賃料の1ヶ月分+税として換算。不動産会社によって金額が異なるため正確な金額は不動産会社にお問合せください
※追加費用もチェック!
これらの項目以外にも費用がかかる場合があります。正確な金額は不動産会社にお問合せください。
- 初期費用
- 鍵交換費:不動産会社に要確認
- 室内清掃費:不動産会社に要確認
- 火災保険費:不動産会社に要確認
- 月額費用
- 駐車場費:19,800円(税込)※契約任意
- その他
- 駐輪代(原付(月額):1650円
- 駐輪代(自二輪(月額):2200円
- 保証会社
- 不動産会社に要確認
不動産会社より
スーパーの隣に位置します。--パノラマ掲載--
【紫野小学校区・嘉楽中学校区】スーパー、コンビニ徒歩で行けます。エレベーター、宅配ボックス、オートロック付きのファミリー向けのお部屋です。バストイレ別、独立洗面台付き。キッチンも広々しています。・光ファイバーインターネット接続可 ハウスクリーニング67100円(退去時)
- 保存する
- 共有する
- ※各種情報と現状に差異がある場合は、現状優先となります
- ※不動産会社が入力した情報を基に物件の位置を表示しています。詳しくは不動産会社までお問合せください
- ※不動産会社の方からの上記電話番号によるお問合せはお断りしております。こちら不動産会社詳細からお問合せください
- ※LIFULL HOME'Sは物件鮮度No.1を目指していきます。閲覧中の物件が「成約済である」「実際の物件情報と異なる点がある」などの場合、「掲載110番」からお問合せください
- ※QRコードは株式会社デンソーウェーブの登録商標です
したい暮らしのタグから探す
この物件を取扱う他の会社
LIFULL HOME'Sでは、主要項目が同一の物件をまとめて表示しています。所在地や営業時間、掲載画像等から不動産会社を選んでお問合せください。
最近見た賃貸物件
LIFULL HOME'S 地図・周辺情報
買い物
- ローソンストア100 千本寺之内店
- FOOD SHOPエムジー 鞍馬口店
- ドラッグひかり千本今出川店
- ファミリーマート 千本鞍馬口店
- シルク千本寺之内店
グルメ
- 無添くら寿司 西陣店
- 天下一品佛大前店
- 焼肉酒家牛角衣笠店
- マクドナルド 金閣寺店
- はま寿司金閣寺店
育児・教育
- 京都市立乾隆幼稚園
- 京都市立乾隆小学校
- 京都市立嘉楽中学校
- 京都市楽只保育所
- 京都市立紫野小学校
医療
- 社会福祉法人京都社会事業財団西陣病院
- 社会医療法人西陣健康会堀川病院
- 医療法人相馬病院
- 社会福祉法人聖ヨゼフ会聖ヨゼフ医療福祉センター
- 医療法人明生会賀茂病院
公共施設・郵便局
- 京都千本寺之内郵便局
- 京都市北図書館
- 京都市北区役所
- 京都北大路千本郵便局
- 京都市中央図書館
公園
- 船岡山公園
- 大宮交通公園
- 京都御苑
- 梅屋広場公園
- 土堂公園
利用可能な駅
- すべての駅
京都市営烏丸線
- 鞍馬口駅徒歩23分
- 北大路駅徒歩26分
- 今出川駅徒歩28分
- 北山駅3.6km
- 丸太町駅3.8km
京福電気鉄道北野線
- 北野白梅町駅徒歩25分
- 等持院・立命館大学衣笠キャンパス前駅徒歩34分
- 龍安寺駅3.1km
- 妙心寺駅3.2km
- 御室仁和寺駅3.6km
JR山陰本線
- 二条駅徒歩37分
- 円町駅3.1km
京阪本線
- 出町柳駅3.6km
京都地下鉄東西線
- 二条城前駅3.6km
- 周辺情報は2023年07月21日時点のものになります。
- 周辺情報は、参考情報としてのみご利用ください(周辺情報は、株式会社LIFULLが地図情報の提供事業者から提供を受けた情報とLIFULL HOME'Sの物件情報に基づき、独自の方法で抽出し提供しているものです。周辺情報は、移転や閉鎖等により情報が最新ではない、または正しくない場合がありますが、地図情報の提供事業者から提供された情報をそのまま周辺情報として表示しているため、正確かつ最新の情報へ修正することができないことがあります。)
- 周辺情報は、株式会社LIFULLが掲載するものであり、不動産物件情報を掲載している不動産会社が掲載するものではありません
- 交通情報の一部については、株式会社LIFULLが掲載するものであり、不動産物件情報を掲載している不動産会社が掲載するものではない場合があります。交通情報に関する質問などは株式会社LIFULLにお問合せください















