LIFULL HOME'Sは物件鮮度No.1!※評価について
グレイスヴィラ阿部 9階
9.5万円/管理費等11,000円
13時間前 更新
画像一覧
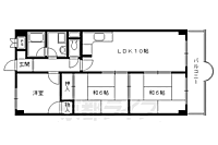
1/30間取り
間取
2/30外観
3/30外観
4/30リビング/ダイニング
5/30リビング/ダイニング
6/30リビング/ダイニング
7/30リビング/ダイニング
8/30リビング/ダイニング
9/30リビング/ダイニング
10/30リビング/ダイニング
11/30リビング/ダイニング
12/30リビング/ダイニング
13/30リビング/ダイニング
14/30キッチン
15/30キッチン
16/30キッチン
17/30キッチン
18/30浴室
19/30トイレ
20/30洗面
21/30収納
22/30設備
23/30設備
24/30設備
25/30玄関
26/30バルコニー
27/30バルコニー
28/30バルコニー
29/30その他
30/30周辺
セブンイレブン天神川三条店まで84m 三条通り沿いにございます。駐車場も広々で、右京区役所の南側です。
間取り
外観
外観
リビング/ダイニング
リビング/ダイニング
リビング/ダイニング
リビング/ダイニング
リビング/ダイニング
リビング/ダイニング
リビング/ダイニング
リビング/ダイニング
リビング/ダイニング
リビング/ダイニング
キッチン
キッチン
キッチン
キッチン
浴室
トイレ
洗面
収納
設備
設備
設備
玄関
バルコニー
バルコニー
バルコニー
その他
周辺
仲介手数料割引
ご成約時、仲介手数料は賃料50%(外税)です。
- 利用条件
- 株式会社京都ライフ 二条駅前店で利用可
- 他特典との併用可
- ・法人契約、事業用物件は除きます。 ・積水ハウス、大東建託の管理物件は除きます。
利用方法
来店時に本特典の画面をスマートフォンやタブレットでスタッフに提示、または画面印刷した用紙を提示ください。
有効期限 なし
目の前が駅の物件です。 目の前が駅(地下鉄太秦天神駅)の物件です。
物件のこだわり/設備・条件
新築(非該当)
2階以上の物件(該当)
南向き(該当)
駐車場あり(該当)
オートロック(該当)
エアコン(該当)
バス・トイレ別(該当)
追焚機能(非該当)
フローリング(該当)
ペット相談(非該当)
入居条件
二人入居可、即入居可キッチン/バス・トイレ
設備・サービス
オートロック、防犯カメラ、TVモニタ付インターホン、エアコン、光ファイバー、公営水道、都市ガス、下水、フローリング、バルコニー、室内洗濯機置場、南面バルコニー、エレベーター、駐車場あり、バイク置き場あり、駐輪場ありその他
住まい探し特典あり備考
目の前が駅(地下鉄太秦天神駅)の物件です。右京区役所も前にありますので、何かと便利です。JRや京福電車も使えますので、交通に不便はないですよ。近隣施設も充実しておりますので、快適に生活が望めます。是非、お問い合わせ下さい。 物件情報はもちろん京都のエリア情報まで幅広く対応させていただきます!
物件周辺の生活情報
学校
- 太秦小学校(899m)
- 太秦中学校(1,171m)
買い物
- コンビニ(160m)
- スーパー(187m)
- ドラッグストア(586m)
その他施設
- 総合病院(495m)
- 銀行(713m)
- 京都山ノ内郵便局(610m)
交通
- 京都地下鉄東西線 太秦天神川駅 徒歩1分
- 普通(停車)
- JR山陰本線 花園駅 徒歩13分
- 普通(停車)
- 快速とっとりライナー(通過)
- 快速通勤ライナー(通過)
- 快速(通過)
※急行等の停車駅情報について
急行等の停車駅に関するデータは、随時更新をしておりますが、最新の内容であることを保証するものではありません。
最新かつ正確な情報につきましては、各鉄道会社のウェブサイトにてご確認ください
物件周辺の口コミ
- 京都府京都市右京区太秦下刑部町に住む人の口コミ30代女性
暮らしに必要なものは近所で買える。そのほかのものも交通の弁が良いのですぐに出掛けられる。
口コミを見る
この物件周辺に住む人の口コミ
口コミは、LIFULL HOME'Sが実際にこの物件の周辺に住む18歳~69歳の男女を対象に、WEBアンケート調査を実施しています。内容には回答者の主観的な表現が含まれる場合があるほか、事実と異なる場合もございます。ご了承ください。
- 京都府京都市右京区太秦下刑部町に住む人の口コミ30代女性
- 暮らしに必要なものは近所で買える。そのほかのものも交通の弁が良いのですぐに出掛けられる。
- 京都府京都市右京区太秦下刑部町に住む人の口コミ40代男性
- 交通の便が充実しているのと買い物も近くにスーパーがあって良いのですが、車道が狭いので車にぶつかりそうな事があるので、どちらかといえば満足しているにしました。
- 京都府京都市右京区太秦下刑部町に住む人の口コミ40代男性
- 交通の便が良くて地下鉄、バス、路面電車と近くにある為、とても便利です。
- 京都府京都市右京区花園宮ノ上町に住む人の口コミ60代男性
- 特に生活面で不便極まりないと感じることが少ないのは、ある程度満足しているということではないだろうか。
- 京都府京都市右京区太秦百合ケ本町に住む人の口コミ60代男性
- 50年近く住んでいるので住み慣れているから。車がなくても生活できるので。
- 京都府京都市右京区西院西貝川町に住む人の口コミ30代女性
- 買い物、各種病院、バス路線等は充実している。電車の最寄駅までが遠いので、電車利用には不便。
- 京都府京都市右京区太秦百合ケ本町に住む人の口コミ40代男性
- ほどほどに田舎だが、都心部にすぐに出ることができるので、そこそこ便利
- 京都府京都市右京区西院西貝川町に住む人の口コミ30代女性
- 子育て環境を考えると、公園や遊具、スーパーや病院など充実していて交通の便も比較的良く満足している。が、盆地のため夏は暑く冬は寒いのがマイナスポイント。
- 京都府京都市右京区山ノ内養老町に住む人の口コミ50代女性
- 充分ではないかもしれないが、全てにおいてほどほどの環境にある
- 京都府京都市右京区梅津神田町に住む人の口コミ50代男性
- コンビニが充実してるし、電車に乗るには遠いがいろんな駅に行くバスがある。
物件概要
- 建物構造
- SRC(鉄骨鉄筋コンクリート)
- 駐車場
- 空有 19,800円(税込) 駐車料金:19800円〜22000円
- 総戸数
- 52戸
- 契約形態
- -
- 契約期間
- 2年間
- 更新料
- 新賃料の1ヶ月分
- その他費用
- 室内清掃費用:33,000円、書類代:13,000円、ガス警報機:1,100円、口座振替手数料:220円
- 保証会社
加入要
保証会社:グリーン保証
保証会社利用料:初回:月額賃料等の50%、更新時:2.2万円/2年
- 住宅保険
- 要
- 管理
- 管理員:巡回
- LIFULL HOME'S
物件番号 - 0142941-0178384
- 自社管理番号
- 00601-09-C-27
- 取引態様
- 仲介
- 会社名
- 株式会社京都ライフ 二条駅前店
営業スタッフコメント

株式会社京都ライフ 二条駅前店
酒井栞
素晴らしいお部屋に出会えるまで全力でサポート致します!
業界経験2年
資格少額短期保険募集人
- 会社実績や特徴・サービス情報
- 京都市内部屋付け数3年連続1位。(株式会社全国賃貸住宅新聞調べ) 当店はJR山陰線、地下鉄東西線の二条駅から3分に立地し、通勤・通学のアクセスの良さ、近隣施設の充実から近年住みたい街と言われる二条駅すぐの所に店舗を構えております。 各エリア専門のスタッフが揃っておりますので、二条駅周辺だけでなく、京都市全域、向日市・長岡京市・宇治市など幅広くご紹介させて頂きます。 社会人のご単身・ファミリー様をはじめ、先端科学大学・同志社大学・立命館大学・京都大学など大学生のお部屋探しも全力でサポートさせて頂きます。 創業40年、地域密着に拘らせて頂いた京都最大級の物件情報をもとに、 誠心誠意、ご満足頂けるお部屋をご紹介させて頂きます。 お部屋を探しは京都ライフ 二条駅前店へ、お気軽にお立ち寄りください
京都市内部屋付け数3年連続1位。(株式会社全国賃貸住宅新聞調べ) 当店はJR山陰線、地下鉄東西線の二条駅から3分に立地し、通勤・通学のアクセスの良さ、近隣施設の充実から近年住みたい街と言われる二条駅すぐの所に店舗を構えております。 各エリア専門のスタッフが揃っておりますので、二条駅周辺だけでなく、京都市全域、向日市・長岡京市・宇治市など幅広くご紹介させて頂きます。 社会人のご単身・ファミリー様をはじめ、先端科学大学・同志社大学・立命館大学・京都大学など大学生のお部屋探しも全力でサポートさせて頂きます。 創業40年、地域密着に拘らせて頂いた京都最大級の物件情報をもとに、 誠心誠意、ご満足頂けるお部屋をご紹介させて頂きます。 お部屋を探しは京都ライフ 二条駅前店へ、お気軽にお立ち寄りください
- 電話でお問合せ(通話無料)
お問合せ先 :株式会社京都ライフ 二条駅前店
不動産会社情報
株式会社京都ライフ 二条駅前店
京都府京都市中京区西ノ京職司町72 ウエストフィールド1階
京都地下鉄東西線 二条駅 徒歩3分
- 営業時間
- 09:30~19:00
- 定休日
- 年中無休(盆正月を除く)
JR、地下鉄とアクセスの良さで人気の二条エリアはもちろん、京都中心地エリア、大宮エリア、西院エリア、円町エリア、北野白梅町エリアなど幅広いエリアでのお部屋探しをサポートいたします。
- 店舗の特徴
- 賃貸管理業務
- 24時間管理物件取扱い
- リフォーム対応
- 引越し業者紹介可
- バリアフリー
- 系列店舗での対応可
- 保証人不要な物件あり
- 法人契約取扱い
- 駅から歩いて3分以内
電話でお問合せお客様の電話番号は不動産会社には通知されません
- 不動産会社に
つながります
お客様の電話番号は不動産会社に通知されません
- ※光IP電話、及びIP電話からはご利用になれません
- ※お電話によるお問合せは、店舗営業時間内にお願いします。つながらない場合は、お問合せフォームよりお問合せください
- ※不動産会社がお電話に出られなかった場合、お問合せいただいた後に不動産会社より折り返しのお電話がある場合がございます(お客様が非通知設定した場合は対象外です)
- ※株式会社LIFULLは電話会社が提供するサービスを介してお客様の発信者番号を受領後、折り返し専用の電話番号を発番してお問合せの不動産会社に通知します(お客様の発信者番号がお問合せの不動産会社に通知されることはございません)
- ※携帯電話からお問合せいただいた方に対し、株式会社LIFULLは電話会社が提供するメッセ―ジサービスを介してお客様の発信者番号を受領後、ショートメッセージ(SMS)またはLINE通知メッセージによるお問合せ内容に関する通知をお届けする場合があります
- ※お客様が通話中に不動産会社にお伝えになったお客様の個人情報及び、電話会社が発番する折り返し専用の電話番号は、お問合せ先不動産会社が資料送付・電子メール送信・電話連絡などの目的で保管する可能性があります。お問合せ先不動産会社が保管する個人情報の取扱いについては、各不動産会社に直接お問合せください
- ※株式会社LIFULLでは本サービスを円滑に運用するために、お客様の発信者番号をサービスご利用の控えとして一定期間保管いたします
- ※上記および株式会社LIFULLの個人情報の取扱い方針に同意のうえ、お電話ください
【LIFULL HOME'S物件番号】0142941-0178384【自社管理番号】00601-09-C-27
初期費用・月額費用をあわせて確認!この物件に住んだときの費用めやす
めやすを見るこの物件に住んだときの費用めやす
- 初期費用
- 月額費用
- 追加費用※ご確認ください
追加で費用が
かかる場合があります
必ずご確認ください
初期費用めやす約0円
追加で費用がかかります(※)敷金
0
- 礼金
190,000
賃料+共益費・管理費の1ヶ月分として換算
賃料の1ヶ月分+税として換算。不動産会社によって金額が異なるため正確な金額は不動産会社にお問合せください
※追加費用もチェック!
これらの項目以外にも費用がかかる場合があります。正確な金額は不動産会社にお問合せください。
- 初期費用
- 鍵交換費:不動産会社に要確認
- 室内清掃費:33,000円
- 火災保険費:不動産会社に要確認
- 月額費用
- 駐車場費:19,800円(税込)※契約任意
- その他
- 書類代:13000円
- ガス警報機:1100円
- 口座振替手数料:220円
- 保証会社
- 初回:月額賃料等の50%、更新時:2.2万円/2年
不動産会社より
目の前が駅の物件です。 目の前が駅(地下鉄太秦天神駅)の物件です。
目の前が駅(地下鉄太秦天神駅)の物件です。右京区役所も前にありますので、何かと便利です。JRや京福電車も使えますので、交通に不便はないですよ。近隣施設も充実しておりますので、快適に生活が望めます。是非、お問い合わせ下さい。 物件情報はもちろん京都のエリア情報まで幅広く対応させていただきます!
- 保存する
- 共有する
- ※各種情報と現状に差異がある場合は、現状優先となります
- ※不動産会社が入力した情報を基に物件の位置を表示しています。詳しくは不動産会社までお問合せください
- ※不動産会社の方からの上記電話番号によるお問合せはお断りしております。こちら不動産会社詳細からお問合せください
- ※LIFULL HOME'Sは物件鮮度No.1を目指していきます。閲覧中の物件が「成約済である」「実際の物件情報と異なる点がある」などの場合、「掲載110番」からお問合せください
- ※QRコードは株式会社デンソーウェーブの登録商標です
LIFULL HOME'S 地図・周辺情報
買い物
- セブンイレブン 天神川三条店
- フレスコ 天神川店
- ドラッグユタカ葛野大路店
- セブンイレブン 京都太秦下刑部町店
- サンディ太秦天神川店
グルメ
- マクドナルド 葛野大路四条店
- 無添くら寿司 京都外大前店
- マクドナルド 太秦ライフ店
- スターバックスコーヒー京都四条葛野大路店
- リンガーハット 京都ファミリー店
育児・教育
- うたの里保育園
- 京都市立山ノ内小学校
- 京都市立四条中学校
- 西本願寺保育園
- 京都市立安井小学校
医療
- 社会医療法人太秦病院
- 公益社団法人京都保健会京都民医連中央病院
- (財)泉谷病院
- 医療法人新生十全会京都ならびがおか病院
- 医療法人西大路病院
公共施設・郵便局
- 京都山ノ内郵便局
- 京都市右京中央図書館
- 京都市右京区役所
- 京都太秦朱雀郵便局
- 京都市中央図書館
公園
- 西院公園
- 土堂公園
- 東大丸公園
- 光徳公園
- 広沢池公園
利用可能な駅
- 徒歩10分以内
京都地下鉄東西線
- 太秦天神川駅徒歩1分
京福電気鉄道嵐山本線
- 嵐電天神川駅徒歩4分
- 蚕ノ社駅徒歩7分
- 山ノ内駅徒歩9分
- すべての駅
JR山陰本線
- 花園駅徒歩13分
- 太秦駅徒歩24分
- 円町駅徒歩28分
- 二条駅徒歩32分
- 丹波口駅4km
京福電気鉄道嵐山本線
- 太秦広隆寺駅徒歩14分
- 西大路三条駅徒歩20分
- 帷子ノ辻駅徒歩23分
- 西院駅徒歩28分
- 有栖川駅徒歩30分
- 車折神社駅徒歩37分
- 鹿王院駅3.2km
京都地下鉄東西線
- 西大路御池駅徒歩19分
京福電気鉄道北野線
- 撮影所前駅徒歩21分
- 常盤駅徒歩25分
- 御室仁和寺駅徒歩27分
- 宇多野駅徒歩28分
- 鳴滝駅徒歩28分
- 妙心寺駅徒歩29分
- 龍安寺駅徒歩33分
- 等持院・立命館大学衣笠キャンパス前駅徒歩34分
- 北野白梅町駅3.3km
阪急京都本線
- 西院駅徒歩26分
- 西京極駅徒歩26分
阪急嵐山線
- 松尾大社駅3.6km
- 上桂駅3.8km
- 周辺情報は2023年07月21日時点のものになります。
- 周辺情報は、参考情報としてのみご利用ください(周辺情報は、株式会社LIFULLが地図情報の提供事業者から提供を受けた情報とLIFULL HOME'Sの物件情報に基づき、独自の方法で抽出し提供しているものです。周辺情報は、移転や閉鎖等により情報が最新ではない、または正しくない場合がありますが、地図情報の提供事業者から提供された情報をそのまま周辺情報として表示しているため、正確かつ最新の情報へ修正することができないことがあります。)
- 周辺情報は、株式会社LIFULLが掲載するものであり、不動産物件情報を掲載している不動産会社が掲載するものではありません
- 交通情報の一部については、株式会社LIFULLが掲載するものであり、不動産物件情報を掲載している不動産会社が掲載するものではない場合があります。交通情報に関する質問などは株式会社LIFULLにお問合せください
















