LIFULL HOME'Sは物件鮮度No.1!※評価について
グランレジェイド京都河原町 7階
24万円/管理費等-
2時間前 更新
画像一覧
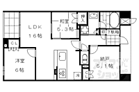
1/27間取り
2/27外観
3/27リビング/ダイニング
リビング
4/27リビング/ダイニング
リビング
5/27室内
洋室
6/27寝室
洋室
7/27寝室
洋室
8/27子供部屋
洋室
9/27キッチン
キッチン
10/27キッチン
キッチン
11/27浴室
風呂
12/27トイレ
トイレ
13/27洗面
洗面所
14/27収納
収納
15/27設備
下駄箱
16/27設備
冷蔵庫置場
17/27設備
洗濯機置場
18/27設備
下駄箱
19/27玄関
玄関
20/27バルコニー
ベランダ
21/27その他
眺望
22/27その他
エアコン
23/27その他
浴室乾燥機
24/27その他
給湯器リモコン
25/27その他
TVモニターフォン
26/27周辺
フレスコ 寺町店まで750メートル
27/27周辺
ファミリーマート 河原町蛸薬師店まで160メートル
間取り
外観
リビング/ダイニング
リビング/ダイニング
室内
寝室
寝室
子供部屋
キッチン
キッチン
浴室
トイレ
洗面
収納
設備
設備
設備
設備
玄関
バルコニー
その他
その他
その他
その他
その他
周辺
周辺
お問合せ先 :株式会社エリッツ 今出川店
住まい探し特典内容
電気・ガス・インターネットの手続き代行のご案内します。
- 利用条件
- 株式会社エリッツ 今出川店で利用可
- 他特典との併用可
利用方法
来店時に本特典の画面をスマートフォンやタブレットでスタッフに提示、または画面印刷した用紙を提示ください。
有効期限 なし
【高倉小学・京都御池中学校区】ハイグレード分譲賃貸物件です。--パノラマ掲載--
基本情報
不動産用語- 賃料
- 24万円
- 管理費等
- -
初期費用などお気軽にお問合せください
- 敷金/礼金
- 1ヶ月/36万円
- 保証金/敷引・償却金
- -/-
- 交通
阪急京都本線 京都河原町駅 徒歩5分
京阪本線 祇園四条駅 徒歩8分
京都地下鉄東西線 京都市役所前駅 徒歩7分
- 所在地
京都府京都市中京区裏寺町通六角下る
地図を見る- 築年月
- 2015年12月(築10年)
- 主要採光面
- 東
- 専有面積
- 66.62㎡
- バルコニー面積
- -
- 所在階/階数
- 7階/11階建
- 現況
- 空家
- 入居可能時期
- 即時

人気物件はすぐに埋まってしまいます。
気になったらお早めにお問合せください。
- 情報公開日
2025/09/03
81日前 公開
- 情報更新日
2025/11/23
2時間前 更新
- 次回更新
予定日 - 2025/11/29
物件のこだわり/設備・条件
新築(非該当)
2階以上の物件(該当)
南向き(非該当)
駐車場(非該当)
オートロック(該当)
エアコン(該当)
バス・トイレ別(該当)
追焚機能(該当)
フローリング(該当)
ペット相談(非該当)
入居条件
二人入居可、即入居可キッチン/バス・トイレ
設備・サービス
オートロック、防犯カメラ、TVモニタ付インターホン、エアコン、床暖房、クローゼット、シューズボックス、CATV、インターネット対応、公営水道、都市ガス、下水、フローリング、バルコニー、室内洗濯機置場、エレベーター、ゴミ出し24時間OK、宅配ボックス、駐輪場ありその他
初期費用カード決済可、分譲賃貸、住まい探し特典あり備考
【阪急京都線 京都河原町駅徒歩5分】【お風呂・トイレ別、ガスコンロ3口付き、カウンターキッチン、独立洗面台、ウォシュレット、浴室乾燥機、宅配ロッカー】設備充実の分譲賃貸物件になります。・インターネット接続可
物件周辺の生活情報
買い物
- コンビニ(160m)
- スーパー(750m)
その他施設
- 総合病院(2,700m)
交通
- 阪急京都本線 京都河原町駅 徒歩5分
- 普通(停車)
- 準急(停車)
- 堺筋準急(停車)
- 通勤特急(停車)
- 特急(停車)
- 急行(停車)
- 準特急(停車)
- 京阪本線 祇園四条駅 徒歩8分
- 普通(停車)
- 区間急行(通過)
- 急行(停車)
- 特急(停車)
- 通勤準急・準急(停車)
- 快速特急 洛楽(停車)
- 通勤快急・快速急行(停車)
※急行等の停車駅情報について
急行等の停車駅に関するデータは、随時更新をしておりますが、最新の内容であることを保証するものではありません。
最新かつ正確な情報につきましては、各鉄道会社のウェブサイトにてご確認ください
物件周辺の口コミ
- 京都府京都市中京区寺町通錦小路上るに住む人の口コミ50代女性
買い物しやすい。なんでもある。コンビニもいたるところにある。便利。
口コミを見る
この物件周辺に住む人の口コミ
口コミは、LIFULL HOME'Sが実際にこの物件の周辺に住む18歳~69歳の男女を対象に、WEBアンケート調査を実施しています。内容には回答者の主観的な表現が含まれる場合があるほか、事実と異なる場合もございます。ご了承ください。
- 京都府京都市中京区寺町通錦小路上るに住む人の口コミ50代女性
- 買い物しやすい。なんでもある。コンビニもいたるところにある。便利。
- 京都府京都市中京区蛸薬師通柳馬場東入に住む人の口コミ30代女性
- 利便性の面ではとても評価できる。ただ、財政破綻が噂されているだけあって、今後が不安
- 京都府京都市下京区河原町通四条下る2丁目に住む人の口コミ50代女性
- 駅にも近く、徒歩圏内に百貨店も三軒あり、映画館も徒歩圏内にあり、大変満足しています。
- 京都府京都市中京区麩屋町通六角上るに住む人の口コミ50代男性
- 交通の便利が良い場所なのに、夜は静かです。商店街や飲屋街・デパートも近くに多くあります。有名な観光地や寺社仏閣も徒歩圏内ですし、文句のつけようが無いです。
- 京都府京都市東山区祇園町南側に住む人の口コミ50代男性
- 京都市の考える街づくりが、観光ビジネス中心に考えているため、幹線道路である四条通などを歩道を大きくするため車道を減らし渋滞がおきている。車での移動が困難になってきている。
- 京都府京都市東山区花見小路通三条下るに住む人の口コミ30代女性
- なんとなくそう思う。商業施設は少し歩けばあるが、スーパーがなくてイラつく。
- 京都府京都市中京区御池通富小路西入に住む人の口コミ50代男性
- 町にブランド力があり、世界的に有名な観光都市となっている。その中心街に居を構えているが住環境は自然があふれ需要のあるものはコンパクトにまとまっており利便性も高い
- 京都府京都市東山区松原通大和大路西入に住む人の口コミ40代男性
- デパート、コンビニ、飲食店、様々な商店が近くにあり普段の生活にいる物が揃いやすい。交通の便も良く少し離れた買い出しもしやすい。
- 京都府京都市中京区堺町通三条上るに住む人の口コミ50代男性
- 商業施設、公共施設、医療施設、交通機関が整備されていて、何でも徒歩圏内で用事を済ませることができる
- 京都府京都市中京区富小路通六角上るに住む人の口コミ50代女性
- 大きな災害がないこと。車に頼らずとも移動が可能なこと。街のあちこちに歴史を感じられる史跡があること。
物件概要
- 建物構造
- RC(鉄筋コンクリート)
- 駐車場
- 近隣 41,800円(税込) 物件からの距離292m
- 総戸数
- 135戸
- 契約形態
- -
- 契約期間
- 2年間
- 更新料
- 新賃料の1ヶ月分
- その他費用
- 抗菌施工代(初回):30,800円、入居サポート(月額):1,210円、家賃保証料(月額):3,600円
- 保証会社
加入要
保証会社利用料:144、000円
- 住宅保険
- 要
- 管理
- -
- LIFULL HOME'S
物件番号 - 0110594-0326855
- 自社管理番号
- 173101-0714
- 取引態様
- 仲介
- 会社名
- 株式会社エリッツ 今出川店
営業スタッフコメント

株式会社エリッツ 今出川店
蔵本拓海
全力でお客様のお部屋探しをサポートします
業界経験1年
- 会社実績や特徴・サービス情報
- 同志社大学、同志社女子大学生様は賃貸のエリッツ今出川店賃貸のエリッツ今出川店は京都市営地下鉄烏丸線今出川駅4番出口より徒歩1分、烏丸今出川の北西角です。同志社大学今出川キャンパス正門の前にあり、広い店内には自転車置き場も完備しており、自転車でのご来店も駅前駐輪場の使用なしでご来店いただけますので、通勤・通学途中でお立ち寄りいただくことも可能です。 ご転勤のシーズンに向け、法人様向け賃貸も多数準備致しております。
同志社大学、同志社女子大学生様は賃貸のエリッツ今出川店賃貸のエリッツ今出川店は京都市営地下鉄烏丸線今出川駅4番出口より徒歩1分、烏丸今出川の北西角です。同志社大学今出川キャンパス正門の前にあり、広い店内には自転車置き場も完備しており、自転車でのご来店も駅前駐輪場の使用なしでご来店いただけますので、通勤・通学途中でお立ち寄りいただくことも可能です。 ご転勤のシーズンに向け、法人様向け賃貸も多数準備致しております。
- 電話でお問合せ(通話無料)
お問合せ先 :株式会社エリッツ 今出川店
不動産会社情報
株式会社エリッツ 今出川店賃貸のエリッツ今出川店

京都府京都市上京区北小路室町388 ファーストコート御所室町 1階
京都市営烏丸線 今出川駅 徒歩2分
- 営業時間
- 10:00~19:00
- 定休日
- 年中無休(年末年始を除く)
優良店認定
京都市上京区、同志社大学、地下鉄今出川駅周辺のお部屋探しはお任せ下さい。大学周辺では立命館大学や京都産業大学等どのエリアの物件も大丈夫です。単身者物件〜ファミリー物件まで情報力には自信あります。
- 店舗の特徴
- 賃貸管理業務
- 引越し業者紹介可
- 年中無休
- オンライン相談可
- 保証人不要な物件あり
- 法人契約取扱い
- 駅から歩いて3分以内
- 外国語を話せるスタッフ在籍
電話でお問合せお客様の電話番号は不動産会社には通知されません
- 不動産会社に
つながります
お客様の電話番号は不動産会社に通知されません
- ※光IP電話、及びIP電話からはご利用になれません
- ※お電話によるお問合せは、店舗営業時間内にお願いします。つながらない場合は、お問合せフォームよりお問合せください
- ※不動産会社がお電話に出られなかった場合、お問合せいただいた後に不動産会社より折り返しのお電話がある場合がございます(お客様が非通知設定した場合は対象外です)
- ※株式会社LIFULLは電話会社が提供するサービスを介してお客様の発信者番号を受領後、折り返し専用の電話番号を発番してお問合せの不動産会社に通知します(お客様の発信者番号がお問合せの不動産会社に通知されることはございません)
- ※携帯電話からお問合せいただいた方に対し、株式会社LIFULLは電話会社が提供するメッセ―ジサービスを介してお客様の発信者番号を受領後、ショートメッセージ(SMS)またはLINE通知メッセージによるお問合せ内容に関する通知をお届けする場合があります
- ※お客様が通話中に不動産会社にお伝えになったお客様の個人情報及び、電話会社が発番する折り返し専用の電話番号は、お問合せ先不動産会社が資料送付・電子メール送信・電話連絡などの目的で保管する可能性があります。お問合せ先不動産会社が保管する個人情報の取扱いについては、各不動産会社に直接お問合せください
- ※株式会社LIFULLでは本サービスを円滑に運用するために、お客様の発信者番号をサービスご利用の控えとして一定期間保管いたします
- ※上記および株式会社LIFULLの個人情報の取扱い方針に同意のうえ、お電話ください
【LIFULL HOME'S物件番号】0110594-0326855【自社管理番号】173101-0714
オンライン対応
オンライン内見・オンライン相談・IT重説に対応している物件です

「オンライン内見」「オンライン相談」「IT重説」とは?
物件の内見や不動産会社スタッフとの相談、契約前の重要事項説明をオンライン(ビデオ通話)で行うことができるサービスです。
オンライン内見
ビデオ通話で現地(物件)にいる不動産会社スタッフと映像・音声を使ってリアルタイムで会話しながら内見ができます。
オンライン相談
「物件について聞きたいことがある」など不動産会社スタッフへの相談もビデオ通話で行うことができます。
IT重説
契約前の重要事項説明(重説)をビデオ通話で行うことができます。
利用時の注意事項
- ビデオ通話については各不動産会社指定のものとなります。
- ビデオ通話利用時には通信が発生します。従量課金制通信サービスや通信量に上限があるネット回線・プランを利用する場合は、通信量にご注意ください。
- 通信速度やアプリの設定によってはビデオ通話の画質が低下することがあります。安定した画質で利用するためにも、Wi-Fi環境下での利用を推奨します。
- ご利用のビデオ通話アプリによっては、対象のOSやブラウザに制限がある場合があります。詳しくはお問合せ先不動産会社にご確認ください。
初期費用・月額費用をあわせて確認!この物件に住んだときの費用めやす
めやすを見るこの物件に住んだときの費用めやす
- 初期費用
- 月額費用
- 追加費用※ご確認ください
追加で費用が
かかる場合があります
必ずご確認ください
初期費用めやす約0円
追加で費用がかかります(※)敷金
240,000
- 礼金
360,000
賃料+共益費・管理費の1ヶ月分として換算
賃料の1ヶ月分+税として換算。不動産会社によって金額が異なるため正確な金額は不動産会社にお問合せください
※追加費用もチェック!
これらの項目以外にも費用がかかる場合があります。正確な金額は不動産会社にお問合せください。
- 初期費用
- 鍵交換費:不動産会社に要確認
- 室内清掃費:不動産会社に要確認
- 火災保険費:不動産会社に要確認
- 月額費用
- 駐車場費:41,800円(税込)※近隣
- その他
- 抗菌施工代(初回):30800円
- 入居サポート(月額):1210円
- 家賃保証料(月額):3600円
- 保証会社
- 144、000円
不動産会社より
【高倉小学・京都御池中学校区】ハイグレード分譲賃貸物件です。--パノラマ掲載--
【阪急京都線 京都河原町駅徒歩5分】【お風呂・トイレ別、ガスコンロ3口付き、カウンターキッチン、独立洗面台、ウォシュレット、浴室乾燥機、宅配ロッカー】設備充実の分譲賃貸物件になります。・インターネット接続可
- 保存する
- 共有する
- ※各種情報と現状に差異がある場合は、現状優先となります
- ※不動産会社が入力した情報を基に物件の位置を表示しています。詳しくは不動産会社までお問合せください
- ※不動産会社の方からの上記電話番号によるお問合せはお断りしております。こちら不動産会社詳細からお問合せください
- ※LIFULL HOME'Sは物件鮮度No.1を目指していきます。閲覧中の物件が「成約済である」「実際の物件情報と異なる点がある」などの場合、「掲載110番」からお問合せください
- ※QRコードは株式会社デンソーウェーブの登録商標です
この物件を取扱う他の会社
LIFULL HOME'Sでは、主要項目が同一の物件をまとめて表示しています。所在地や営業時間、掲載画像等から不動産会社を選んでお問合せください。
最近見た賃貸物件
LIFULL HOME'S 地図・周辺情報
買い物
- セブンイレブン 京都河原町蛸薬師店
- ドン・キホーテ 四条河原町店
- キリン堂京都河原町店
- ファミリーマート 河原町蛸薬師店
- ダイソー新京極ダイアモンドビル店
グルメ
- スシロー 河原町蛸薬師通り店
- サイゼリヤ 京都河原町通店
- 松屋 河原町店
- 京のとんぼ
- 星乃珈琲店河原町店
育児・教育
- YMCA三条保育園
- 京都市立高倉小学校
- 京都市立京都御池中学校
- 京都カトリック信愛幼稚園
- 京都市立洛央小学校
医療
- 医療法人財団足立病院
- 医療法人知音会京都新町病院
- 山元病院
- 医療法人毛利病院
- 貴順会吉川病院
公共施設・郵便局
- 京都三条御幸町郵便局
- 京都市こどもみらい館子育て図書館
- 京都市役所
- 京都高島屋内郵便局
- 京都市東山図書館
公園
- 円山公園
- 円山公園
- 岡崎公園
- 梅屋広場公園
- 京都御苑
利用可能な駅
- 徒歩10分以内
阪急京都本線
- 京都河原町駅徒歩5分
京阪本線
- 祇園四条駅徒歩8分
- その他交通
- 京都地下鉄東西線 京都市役所前駅 徒歩7分
- 周辺情報は2023年07月21日時点のものになります。
- 周辺情報は、参考情報としてのみご利用ください(周辺情報は、株式会社LIFULLが地図情報の提供事業者から提供を受けた情報とLIFULL HOME'Sの物件情報に基づき、独自の方法で抽出し提供しているものです。周辺情報は、移転や閉鎖等により情報が最新ではない、または正しくない場合がありますが、地図情報の提供事業者から提供された情報をそのまま周辺情報として表示しているため、正確かつ最新の情報へ修正することができないことがあります。)
- 周辺情報は、株式会社LIFULLが掲載するものであり、不動産物件情報を掲載している不動産会社が掲載するものではありません
- 交通情報の一部については、株式会社LIFULLが掲載するものであり、不動産物件情報を掲載している不動産会社が掲載するものではない場合があります。交通情報に関する質問などは株式会社LIFULLにお問合せください





















































