LIFULL HOME'Sは物件鮮度No.1!※評価について
壬生川団地(6階/612/4LDK/63.8m²)
壬生川団地(6階/612/4LDK/63.8m²)
9.9万円/管理費等5,500円
9時間前 更新
画像一覧
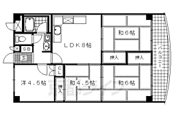
1/30間取り
間取
2/30リビング/ダイニング
3/30リビング/ダイニング
4/30リビング/ダイニング
5/30リビング/ダイニング
6/30リビング/ダイニング
7/30リビング/ダイニング
8/30リビング/ダイニング
9/30室内
10/30寝室
11/30キッチン
12/30キッチン
13/30キッチン
14/30キッチン
15/30キッチン
16/30浴室
17/30浴室
18/30トイレ
19/30トイレ
20/30洗面
21/30洗面
22/30収納
23/30収納
24/30設備
25/30玄関
26/30バルコニー
27/30その他
28/30周辺
光徳小学校まで117m 光徳公園すぐそばにあります
29/30周辺
京都中堂寺坊城郵便局まで153m
30/30周辺
マツモト五条店まで193m JR丹波口駅の東向かいにあるスーパー。営業時間午前9:00~午後11:00。
間取り
リビング/ダイニング
リビング/ダイニング
リビング/ダイニング
リビング/ダイニング
リビング/ダイニング
リビング/ダイニング
リビング/ダイニング
室内
寝室
キッチン
キッチン
キッチン
キッチン
キッチン
浴室
浴室
トイレ
トイレ
洗面
洗面
収納
収納
設備
玄関
バルコニー
その他
周辺
周辺
周辺
LINEチャットでも
相談できます
お問合せ先 :株式会社京都ライフ 京都駅前店
1〜4月は引越しシーズンのピークです。お問合せはお早めに!
仲介手数料割引
仲介手数料が家賃の半月分(消費税)です。
- 利用条件
- 株式会社京都ライフ 京都駅前店で利用可
- 他特典との併用はできませんので、ご注意ください。
- ・法人契約・事業用物件は除く。 ・積水ハウス、大東建託の管理物件は除く。
利用方法
来店時に本特典の画面をスマートフォンやタブレットでスタッフに提示、または画面印刷した用紙を提示ください。
有効期限 なし
JR丹波口駅徒歩5分 JR丹波口駅まで歩いて5分 スーパ−も近くにあり、コンビ二も
物件のこだわり/設備・条件
新築(非該当)
2階以上の物件(該当)
南向き(該当)
駐車場(非該当)
オートロック(非該当)
エアコン(該当)
バス・トイレ別(該当)
追焚機能(非該当)
フローリング(非該当)
ペット相談(非該当)
入居条件
二人入居可- 上記以外や相談可の
詳細はお問合せください - 上記以外や相談可の詳細は
お電話ください(通話無料)電話でお問合せ キッチン/バス・トイレ
設備・サービス
防犯カメラ、TVモニタ付インターホン、エアコン、光ファイバー、公営水道、都市ガス、下水、バルコニー、室内洗濯機置場、南面バルコニー、エレベーター、バイク置き場あり、駐輪場ありその他
分譲賃貸、住まい探し特典あり備考
JR丹波口駅まで歩いて5分 スーパ−も近くにあり、コンビ二も近くにあります。周辺施設が充実しております。 物件情報はもちろん京都のエリア情報まで幅広く対応させていただきます!
物件周辺の生活情報
学校
- 光徳小学校(117m)
- 松原中学校(391m)
買い物
- コンビニ(221m)
- スーパー(193m)
- ドラッグストア(229m)
その他施設
- 総合病院(913m)
- 銀行(827m)
- TSUTAYAリサーチパーク店(717m)
交通
- JR山陰本線 丹波口駅 徒歩5分
- 普通(停車)
- 快速とっとりライナー(通過)
- 快速通勤ライナー(通過)
- 快速(通過)
- 阪急京都本線 大宮駅 徒歩13分
- 普通(停車)
- 準急(停車)
- 堺筋準急(停車)
- 通勤特急(停車)
- 特急(通過)
- 急行(停車)
- 準特急(停車)
※急行等の停車駅情報について
急行等の停車駅に関するデータは、随時更新をしておりますが、最新の内容であることを保証するものではありません。
最新かつ正確な情報につきましては、各鉄道会社のウェブサイトにてご確認ください
物件周辺の口コミ
- 京都府京都市下京区西七条北東野町に住む人の口コミ40代男性
公園も近くにあり、子供と過ごすには良い環境。買い物については車を使って少し離れた所に行くことが多い。スーパーがもう少し近くに欲しい。
口コミを見る
この物件周辺に住む人の口コミ
口コミは、LIFULL HOME'Sが実際にこの物件の周辺に住む18歳~69歳の男女を対象に、WEBアンケート調査を実施しています。内容には回答者の主観的な表現が含まれる場合があるほか、事実と異なる場合もございます。ご了承ください。
- 京都府京都市下京区西七条北東野町に住む人の口コミ40代男性
- 公園も近くにあり、子供と過ごすには良い環境。買い物については車を使って少し離れた所に行くことが多い。スーパーがもう少し近くに欲しい。
- 京都府京都市下京区西七条東石ケ坪町に住む人の口コミ40代男性
- 少しゴミゴミしているが、寺社などがあるとともに、生活するのに便利な場所だから
- 京都府京都市下京区黒門通五条下る西入に住む人の口コミ50代女性
- 昔から済んでる人も新しく来る人も良い人たちばかりで住みやすい。
- 京都府京都市下京区西七条東久保町に住む人の口コミ50代女性
- 近くに公園や水族館があり 楽しめるが 公園内でスケボーや球技、禁止されているのに ルールを守ってない人が多い
- 京都府京都市右京区松原通春日西入に住む人の口コミ50代女性
- 買い物が、便利。イオンイオンモールが近い。大きな病院が近いし、複数の病院が有る。
- 京都府京都市下京区七条御所ノ内西町に住む人の口コミ50代女性
- 買い物が便利で、電車やバスなど、交通機関もそこそこ充実している
- 京都府京都市中京区壬生下溝町に住む人の口コミ50代男性
- 中規模ターミナル駅があるのでバス、電車等が遅くまで利用出来る。飲食に関しても色々選べるので通常生活には便利な場。ただ近年、民泊や留学生が増えたせいであまり治安は良くないと感じる時がある
- 京都府京都市右京区西京極前田町に住む人の口コミ40代女性
- 通常の日常生活を送るということでは、不自由なく割と便利な生活ができると思ったので。
- 京都府京都市右京区西京極東町に住む人の口コミ40代女性
- 賑やかすぎず かと言って買い物など そんなに不便でもなく、小中学も近いから。
- 京都府京都市下京区西七条掛越町に住む人の口コミ50代女性
- 生活しやすい。スーパー 病院 学校が近くにある。交通機関も充実している。
物件概要
- 建物構造
- SRC(鉄骨鉄筋コンクリート)
- 駐車場
- 無
- 総戸数
- 301戸
- 契約形態
- -
- 契約期間
- 2年間
- 更新料
- 新賃料の1ヶ月分
- その他費用
- 室内清掃費用:66,000円、LIFE SUPPORT:1,100円
- 保証会社
加入要
保証会社:あんしんプラス
保証会社利用料:初回:月額賃料等の40%/2年、月額:支払い手数料880円、更新時:月額賃料等の20%/2年
- 住宅保険
- 要
- 管理
- -
- LIFULL HOME'S
物件番号 - 0105901-0298557
- 自社管理番号
- 36014-612-10
- 取引態様
- 専属専任媒介
- 会社名
- 株式会社京都ライフ 京都駅前店
営業スタッフコメント

株式会社京都ライフ 京都駅前店営業
新井温美
やればできる!
業界経験1年
- 会社実績や特徴・サービス情報
- 京都で昭和53年の創業より培ってきた安心と信頼の賃貸不動産会社「京都ライフ」です。 物件掲載数も京都で一番豊富です。 お探しの同じエリア内や近隣の駅からじっくりお部屋探しをして、理想の賃貸物件を見つけられるようお手伝いさせて頂きます。 京都でお部屋探しをご希望の方や掲載物件以外の賃貸情報のご依頼、お部屋に関するご質問などもお気軽にお問合せください。
京都で昭和53年の創業より培ってきた安心と信頼の賃貸不動産会社「京都ライフ」です。 物件掲載数も京都で一番豊富です。 お探しの同じエリア内や近隣の駅からじっくりお部屋探しをして、理想の賃貸物件を見つけられるようお手伝いさせて頂きます。 京都でお部屋探しをご希望の方や掲載物件以外の賃貸情報のご依頼、お部屋に関するご質問などもお気軽にお問合せください。
- 電話でお問合せ(通話無料)
お問合せ先 :株式会社京都ライフ 京都駅前店
不動産会社情報
株式会社京都ライフ 京都駅前店京都ライフ京都駅前店
京都府京都市下京区塩小路通東洞院西入東塩小路町717-1 京都駅前ビル2階
JR東海道・山陽本線 京都駅 徒歩2分
- 営業時間
- 09:30~19:00
- 定休日
- 年中無休(盆正月を除く)
京都不動産会社部屋付け数No1京都ライフ京都駅前店です。京都最大級の情報量のもと、お客様にピッタリのお部屋をご紹介させて頂きます。スタッフ全員が「ありがとう」の心で楽しいお部屋探しのお手伝いいたします
- 店舗の特徴
- 賃貸管理業務
- 24時間管理物件取扱い
- リフォーム対応
- 引越し業者紹介可
- 年中無休
- 保証人不要な物件あり
- 法人契約取扱い
- 女性スタッフ対応可
- 駅から歩いて3分以内
電話でお問合せお客様の電話番号は不動産会社には通知されません
- 不動産会社に
つながります
お客様の電話番号は不動産会社に通知されません
- ※光IP電話、及びIP電話からはご利用になれません
- ※お電話によるお問合せは、店舗営業時間内にお願いします。つながらない場合は、お問合せフォームよりお問合せください
- ※不動産会社がお電話に出られなかった場合、お問合せいただいた後に不動産会社より折り返しのお電話がある場合がございます(お客様が非通知設定した場合は対象外です)
- ※株式会社LIFULLは電話会社が提供するサービスを介してお客様の発信者番号を受領後、折り返し専用の電話番号を発番してお問合せの不動産会社に通知します(お客様の発信者番号がお問合せの不動産会社に通知されることはございません)
- ※携帯電話からお問合せいただいた方に対し、株式会社LIFULLは電話会社が提供するメッセ―ジサービスを介してお客様の発信者番号を受領後、ショートメッセージ(SMS)またはLINE通知メッセージによるお問合せ内容に関する通知をお届けする場合があります
- ※お客様が通話中に不動産会社にお伝えになったお客様の個人情報及び、電話会社が発番する折り返し専用の電話番号は、お問合せ先不動産会社が資料送付・電子メール送信・電話連絡などの目的で保管する可能性があります。お問合せ先不動産会社が保管する個人情報の取扱いについては、各不動産会社に直接お問合せください
- ※株式会社LIFULLでは本サービスを円滑に運用するために、お客様の発信者番号をサービスご利用の控えとして一定期間保管いたします
- ※上記および株式会社LIFULLの個人情報の取扱い方針に同意のうえ、お電話ください
【LIFULL HOME'S物件番号】0105901-0298557【自社管理番号】36014-612-10
オンライン対応
オンライン相談に対応している物件です

「オンライン内見」「オンライン相談」「IT重説」とは?
物件の内見や不動産会社スタッフとの相談、契約前の重要事項説明をオンライン(ビデオ通話)で行うことができるサービスです。
オンライン内見
ビデオ通話で現地(物件)にいる不動産会社スタッフと映像・音声を使ってリアルタイムで会話しながら内見ができます。
オンライン相談
「物件について聞きたいことがある」など不動産会社スタッフへの相談もビデオ通話で行うことができます。
IT重説
契約前の重要事項説明(重説)をビデオ通話で行うことができます。
利用時の注意事項
- ビデオ通話については各不動産会社指定のものとなります。
- ビデオ通話利用時には通信が発生します。従量課金制通信サービスや通信量に上限があるネット回線・プランを利用する場合は、通信量にご注意ください。
- 通信速度やアプリの設定によってはビデオ通話の画質が低下することがあります。安定した画質で利用するためにも、Wi-Fi環境下での利用を推奨します。
- ご利用のビデオ通話アプリによっては、対象のOSやブラウザに制限がある場合があります。詳しくはお問合せ先不動産会社にご確認ください。
初期費用・月額費用をあわせて確認!この物件に住んだときの費用めやす
めやすを見るこの物件に住んだときの費用めやす
- 初期費用
- 月額費用
- 追加費用※ご確認ください
追加で費用が
かかる場合があります
必ずご確認ください
初期費用めやす約0円
追加で費用がかかります(※)敷金
100,000
- 礼金
100,000
賃料+共益費・管理費の1ヶ月分として換算
賃料の1ヶ月分+税として換算。不動産会社によって金額が異なるため正確な金額は不動産会社にお問合せください
※追加費用もチェック!
これらの項目以外にも費用がかかる場合があります。正確な金額は不動産会社にお問合せください。
- 初期費用
- 鍵交換費:不動産会社に要確認
- 室内清掃費:66,000円
- 火災保険費:不動産会社に要確認
- その他
- LIFE SUPPORT:1100円
- 保証会社
- 初回:月額賃料等の40%/2年、月額:支払い手数料880円、更新時:月額賃料等の20%/2年
不動産会社より
JR丹波口駅徒歩5分 JR丹波口駅まで歩いて5分 スーパ−も近くにあり、コンビ二も
JR丹波口駅まで歩いて5分 スーパ−も近くにあり、コンビ二も近くにあります。周辺施設が充実しております。 物件情報はもちろん京都のエリア情報まで幅広く対応させていただきます!
- 保存する
- 共有する
- ※各種情報と現状に差異がある場合は、現状優先となります
- ※不動産会社が入力した情報を基に物件の位置を表示しています。詳しくは不動産会社までお問合せください
- ※不動産会社の方からの上記電話番号によるお問合せはお断りしております。こちら不動産会社詳細からお問合せください
- ※LIFULL HOME'Sは物件鮮度No.1を目指していきます。閲覧中の物件が「成約済である」「実際の物件情報と異なる点がある」などの場合、「掲載110番」からお問合せください
- ※QRコードは株式会社デンソーウェーブの登録商標です
したい暮らしのタグから探す
この物件を取扱う他の会社
LIFULL HOME'Sでは、主要項目が同一の物件をまとめて表示しています。所在地や営業時間、掲載画像等から不動産会社を選んでお問合せください。
株式会社京都ライフ 三条烏丸店
優良店認定
京都府京都市中京区三条通烏丸東入梅忠町24 三条COHJUBLDG 1階
京都市営烏丸線 烏丸御池駅 徒歩3分
- 営業時間
- 09:30~19:00
- 定休日
- 年中無休(夏期・年末年始を除く)
(株)京都ライフ 今出川店
京都府京都市上京区烏丸通今出川上る御所八幡町115 コーポ千尋 1階
京都市営烏丸線 今出川駅 徒歩1分
- 営業時間
- 09:30~19:00
- 定休日
- 年中無休(盆正月を除く)
株式会社京都ライフ 立命館大学前店
優良店認定
京都府京都市北区小松原北町26-5
京福電気鉄道北野線 等持院・立命館大学衣笠キャンパス前駅 徒歩8分
- 営業時間
- 09:30~19:00
- 定休日
- 水曜定休(4/21〜9/20の期間)、盆・正月
LIFULL HOME'S 地図・周辺情報
買い物
- ローソン 大宮五条店
- フレスコ 五条壬生川店
- ダックス下京五条店
- セブンイレブン 五条千本店
- スーパーマツモト 五条店
グルメ
- スシロー 五条七本松店
- モスバーガー 五条七本松店
- CoCo壱番屋 京都四条大宮店
- なか卯 四条壬生店
- ロイヤルホスト 堀川五条店
育児・教育
- 五条愛児園
- 京都市立光徳小学校
- 私立京都産業大学附属中学校
- たちばな保育園
- 京都市立朱雀第三小学校
医療
- 医療法人令寿会しまばら病院
- 医療法人回生会京都回生病院
- 地方独立行政法人京都市立病院機構京都市立病院
- 一般財団法人京都地域医療学際研究所がくさい病院
- 山元病院
公共施設・郵便局
- 京都中堂寺坊城郵便局
- 京都市下京図書館
- 京都府中京警察署
- 京都大宮松原郵便局
- 京都市南図書館
公園
- 光徳公園
- 梅小路公園
- 梅小路公園
- 唐橋西寺公園
- 東大丸公園
利用可能な駅
- 徒歩10分以内
JR山陰本線
- 丹波口駅徒歩5分
- すべての駅
阪急京都本線
- 大宮駅徒歩13分
- 西院駅徒歩24分
- 烏丸駅徒歩26分
- 京都河原町駅徒歩36分
- 西京極駅3.1km
京福電気鉄道嵐山本線
- 四条大宮駅徒歩13分
- 西院駅徒歩22分
- 西大路三条駅徒歩30分
- 山ノ内駅3.2km
JR山陰本線
- 梅小路京都西駅徒歩18分
- 二条駅徒歩23分
- 円町駅3.6km
京都市営烏丸線
- 五条駅徒歩19分
- 四条駅徒歩26分
- 烏丸御池駅徒歩37分
- 丸太町駅3.4km
- 九条駅3.4km
京都地下鉄東西線
- 二条城前駅徒歩26分
- 烏丸御池駅徒歩35分
- 西大路御池駅徒歩35分
- 京都市役所前駅3.9km
京阪本線
- 清水五条駅徒歩30分
- 七条駅徒歩37分
- 祇園四条駅徒歩37分
JR東海道・山陽本線
- 京都駅徒歩32分
- 西大路駅徒歩34分
近鉄京都線
- 東寺駅徒歩33分
- 十条駅3.3km
- 周辺情報は2023年07月21日時点のものになります。
- 周辺情報は、参考情報としてのみご利用ください(周辺情報は、株式会社LIFULLが地図情報の提供事業者から提供を受けた情報とLIFULL HOME'Sの物件情報に基づき、独自の方法で抽出し提供しているものです。周辺情報は、移転や閉鎖等により情報が最新ではない、または正しくない場合がありますが、地図情報の提供事業者から提供された情報をそのまま周辺情報として表示しているため、正確かつ最新の情報へ修正することができないことがあります。)
- 周辺情報は、株式会社LIFULLが掲載するものであり、不動産物件情報を掲載している不動産会社が掲載するものではありません
- 交通情報の一部については、株式会社LIFULLが掲載するものであり、不動産物件情報を掲載している不動産会社が掲載するものではない場合があります。交通情報に関する質問などは株式会社LIFULLにお問合せください
















