LIFULL HOME'Sは物件鮮度No.1!※評価について
パインフィールド西京極(3階/304/2LDK/59.22m²)
パインフィールド西京極(3階/304/2LDK/59.22m²)
10.6万円/管理費等10,000円
3時間前 更新
画像一覧
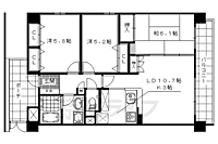
1/30間取り
間取
2/30外観
3/30外観
4/30リビング/ダイニング
5/30リビング/ダイニング
広く、クローゼットあります。
6/30寝室
落ち着く和室です。
7/30寝室
落ち着く和室です。
8/30キッチン
収納スペースたくさんあります。
9/30キッチン
備え付けコンロです。
10/30キッチン
冷蔵庫置き場です。
11/30浴室
広く、浴槽深いです。
12/30トイレ
個室で落ち着きます。
13/30洗面
独立洗面台。
14/30洗面
収納付き独立洗面台。
15/30収納
たくさん収納可能。
16/30収納
お洋服沢山掛けれます。
17/30設備
大きな換気扇です。
18/30設備
収納付きカウンターあります。
19/30設備
室内洗濯機置き場です。
20/30設備
TVホンなので安心です。
21/30設備
カウンターあります。
22/30設備
備え付けエアコンです。
23/30設備
24/30玄関
広く段差ないです。
25/30バルコニー
洗濯物干せます。
26/30エントランス
27/30その他
広く、長いです。
28/30その他
29/30その他
30/30周辺
ファミリーマートヤスイカドノ五条店まで253m 阪急西京極駅を少し北上して葛野大路通り沿いにあります
間取り
外観
外観
リビング/ダイニング
リビング/ダイニング
寝室
寝室
キッチン
キッチン
キッチン
浴室
トイレ
洗面
洗面
収納
収納
設備
設備
設備
設備
設備
設備
設備
玄関
バルコニー
エントランス
その他
その他
その他
周辺
お問合せ先 :株式会社京都ライフ 三条烏丸店
1〜4月は引越しシーズンのピークです。お問合せはお早めに!
仲介手数料割引
仲介手数料 家賃の50%(税別)
- 利用条件
- 株式会社京都ライフ 三条烏丸店で利用可
- 他特典との併用可
- 法人契約、事業用物件は除く。積水ハウス管理、大東建託管理を除く。
利用方法
来店時に本特典の画面をスマートフォンやタブレットでスタッフに提示、または画面印刷した用紙を提示ください。
有効期限 なし
周辺環境良好に良し 周辺環境良好のハイグレード賃貸マンションです
基本情報
不動産用語- 賃料
- 10.6万円
- 管理費等
- 10,000円
初期費用などお気軽にお問合せください
- 敷金/礼金
- 10.6万円/21.2万円
- 保証金/敷引・償却金
- -/-
- 交通
阪急京都本線 西京極駅 徒歩9分
阪急京都本線 西院駅 徒歩17分
- 所在地
京都府京都市右京区西院月双町
地図を見る- 築年月
- 2006年6月(築20年)
- 主要採光面
- 南
- 専有面積
- 59.22㎡
- バルコニー面積
- -
- 所在階/階数
- 3階/10階建(地下1階)
入居可能日などお気軽にお問合せください
- 現況
- 賃貸中
- 入居可能時期
- 2026年05月 中旬

人気物件はすぐに埋まってしまいます。
気になったらお早めにお問合せください。
- 情報公開日
2026/03/02
3日前 公開
- 情報更新日
2026/03/05
3時間前 更新
- 次回更新
予定日 - 2026/03/17
物件のこだわり/設備・条件
新築(非該当)
2階以上の物件(該当)
南向き(該当)
駐車場あり(該当)
オートロック(該当)
エアコン(該当)
バス・トイレ別(該当)
追焚機能(該当)
フローリング(該当)
ペット相談(非該当)
入居条件
二人入居可キッチン/バス・トイレ
設備・サービス
オートロック、TVモニタ付インターホン、エアコン、CATV、BS対応、光ファイバー、公営水道、都市ガス、下水、フローリング、バルコニー、室内洗濯機置場、照明器具付き、南面バルコニー、タイル貼り、エレベーター、駐車場あり、バイク置き場あり、駐輪場ありその他
住まい探し特典あり備考
分譲にもひけをとらないハイグレード賃貸マンションです。 イオンモール徒歩圏内、コンビニ、スーパー、郵便局も近く、周辺環境良好 設備、セキュリティーなども充実しております。 物件情報はもちろん京都のエリア情報まで幅広く対応させていただきます!
物件周辺の生活情報
買い物
- コンビニ(253m)
- スーパー(281m)
- ドラッグストア(102m)
その他施設
- 総合病院(1,100m)
- 右京郵便局(366m)
交通
- 阪急京都本線 西京極駅 徒歩9分
- 普通(停車)
- 準急(停車)
- 堺筋準急(停車)
- 通勤特急(通過)
- 特急(通過)
- 急行(停車)
- 準特急(通過)
- 阪急京都本線 西院駅 徒歩17分
- 普通(停車)
- 準急(停車)
- 堺筋準急(停車)
- 通勤特急(停車)
- 特急(通過)
- 急行(停車)
- 準特急(停車)
※急行等の停車駅情報について
急行等の停車駅に関するデータは、随時更新をしておりますが、最新の内容であることを保証するものではありません。
最新かつ正確な情報につきましては、各鉄道会社のウェブサイトにてご確認ください
物件周辺の口コミ
- 京都府京都市右京区西院月双町に住む人の口コミ50代男性
ショッピングセンター、ドラッグストア、コンビニエンスストア棟が、沢山誓うにあり、便利が良い。交通機関も充実した地域で、公園も沢山あり、子供たちが安全に遊べる。住みよい地域だ。
口コミを見る
この物件周辺に住む人の口コミ
口コミは、LIFULL HOME'Sが実際にこの物件の周辺に住む18歳~69歳の男女を対象に、WEBアンケート調査を実施しています。内容には回答者の主観的な表現が含まれる場合があるほか、事実と異なる場合もございます。ご了承ください。
- 京都府京都市右京区西院月双町に住む人の口コミ50代男性
- ショッピングセンター、ドラッグストア、コンビニエンスストア棟が、沢山誓うにあり、便利が良い。交通機関も充実した地域で、公園も沢山あり、子供たちが安全に遊べる。住みよい地域だ。
- 京都府京都市右京区西院月双町に住む人の口コミ40代女性
- 買い物や交通の便も良いので、生活しやすいです。小さな子供やペットを連れての買い物や散歩もしやすい環境です。
- 京都府京都市右京区西院月双町に住む人の口コミ30代女性
- 大型商業施設があるため、買い物に一応は困らない。その他にお洒落なお店や本屋、文房具屋、花屋などの店舗は少ない気がする。
- 京都府京都市右京区西院月双町に住む人の口コミ30代女性
- 非常に便利で住みやすいが、もう少し自然が多くて空気がきれいな方がいい
- 京都府京都市右京区西院月双町に住む人の口コミ40代女性
- 今の家に満足しているわけではないが、他に引越しをしたいと思う場所がないほど、住みやすい街である
- 京都府京都市右京区西院月双町に住む人の口コミ40代女性
- 子供が大きくなるにつれて、感じなくなりましたが、家の前の道の歩道が充実していないので
- 京都府京都市右京区西院月双町に住む人の口コミ40代女性
- スーパーなどがたくさんあり買い物もしやすく、公園も多いので子育てもしやすい。
- 京都府京都市右京区西院月双町に住む人の口コミ30代女性
- シングルマザーが多いと言われる地域なので、学習環境や子ども関連でのお付き合いは、あれ?とかんじることがありますが、住みやすいため
- 京都府京都市右京区西院月双町に住む人の口コミ30代女性
- 公園やスーパーがたくさんあって、利便性が良く子育てしやすい。
- 京都府京都市右京区西院月双町に住む人の口コミ40代女性
- 買い物がしやすい、子供の同い年のお友達が多い。生活はしやすい。
物件概要
- 建物構造
- RC(鉄筋コンクリート)
- 駐車場
- 空有 15,400円(税込) 駐車料金:15400円〜19800円
- 総戸数
- 66戸
- 契約形態
- -
- 契約期間
- 2年間
- 更新料
- -
- その他費用
- 室内清掃費用:49,500円、LIFE SUPPORT:1,100円
- 保証会社
加入要
保証会社:あんしんプラス
保証会社利用料:初回:月額賃料等の40%、月額:支払い手数料880円、更新時:月額賃料等の20%/2年
- 住宅保険
- 要
- 管理
- -
- LIFULL HOME'S
物件番号 - 0122850-0295073
- 自社管理番号
- 08027-304-21
- 取引態様
- 専属専任媒介
- 会社名
- 株式会社京都ライフ 三条烏丸店
営業スタッフコメント

株式会社京都ライフ 三条烏丸店
二宮一真
誠心誠意、お客様のお部屋探しをお手伝いします!!
業界経験5年
資格少額短期保険募集人
- 会社実績や特徴・サービス情報
- 京都市内部屋付け数3年連続1位。(株式会社全国賃貸住宅新聞調べ) 当店は京都の中心地、烏丸御池駅から徒歩3分と、地元の方以外も他府県にお住まいの方にも多数ご来店頂いております。 各エリア専門のスタッフが揃っておりますので、京都市全域、向日市・長岡京市・宇治市など幅広くご紹介させて頂きます。 社会人のご単身・ファミリー様をはじめ、先端科学大学・同志社大学・立命館大学・京都大学など大学生のお部屋探しも全力でサポートさせて頂きます。 創業40年、地域密着に拘らせて頂いた京都最大級の物件情報をもとに、 誠心誠意、ご満足頂けるお部屋をご紹介させて頂きます。 お部屋を探しは京都ライフ 三条烏丸店へ、お気軽にお立ち寄りください
京都市内部屋付け数3年連続1位。(株式会社全国賃貸住宅新聞調べ) 当店は京都の中心地、烏丸御池駅から徒歩3分と、地元の方以外も他府県にお住まいの方にも多数ご来店頂いております。 各エリア専門のスタッフが揃っておりますので、京都市全域、向日市・長岡京市・宇治市など幅広くご紹介させて頂きます。 社会人のご単身・ファミリー様をはじめ、先端科学大学・同志社大学・立命館大学・京都大学など大学生のお部屋探しも全力でサポートさせて頂きます。 創業40年、地域密着に拘らせて頂いた京都最大級の物件情報をもとに、 誠心誠意、ご満足頂けるお部屋をご紹介させて頂きます。 お部屋を探しは京都ライフ 三条烏丸店へ、お気軽にお立ち寄りください
- 電話でお問合せ(通話無料)
お問合せ先 :株式会社京都ライフ 三条烏丸店
不動産会社情報
株式会社京都ライフ 三条烏丸店

京都府京都市中京区三条通烏丸東入梅忠町24 三条COHJUBLDG 1階
京都市営烏丸線 烏丸御池駅 徒歩3分
- 営業時間
- 09:30~19:00
- 定休日
- 年中無休(夏期・年末年始を除く)
優良店認定
京都市内部屋付け数3年連続1位。当店は京都の中心地、地元の方以外も他府県にお住まいの方にも多数ご来店頂いております。各エリア専門のスタッフが揃っておりますので、皆様のお部屋探しを広くサポート致します。
- 店舗の特徴
- 賃貸管理業務
- 24時間管理物件取扱い
- 引越し業者紹介可
- 年中無休
- 社宅・寮物件取扱い
- 保証人不要な物件あり
- 法人契約取扱い
- 女性スタッフ対応可
- 駅から歩いて3分以内
- 外国語を話せるスタッフ在籍
電話でお問合せお客様の電話番号は不動産会社には通知されません
- 不動産会社に
つながります
お客様の電話番号は不動産会社に通知されません
- ※光IP電話、及びIP電話からはご利用になれません
- ※お電話によるお問合せは、店舗営業時間内にお願いします。つながらない場合は、お問合せフォームよりお問合せください
- ※不動産会社がお電話に出られなかった場合、お問合せいただいた後に不動産会社より折り返しのお電話がある場合がございます(お客様が非通知設定した場合は対象外です)
- ※株式会社LIFULLは電話会社が提供するサービスを介してお客様の発信者番号を受領後、折り返し専用の電話番号を発番してお問合せの不動産会社に通知します(お客様の発信者番号がお問合せの不動産会社に通知されることはございません)
- ※携帯電話からお問合せいただいた方に対し、株式会社LIFULLは電話会社が提供するメッセ―ジサービスを介してお客様の発信者番号を受領後、ショートメッセージ(SMS)またはLINE通知メッセージによるお問合せ内容に関する通知をお届けする場合があります
- ※お客様が通話中に不動産会社にお伝えになったお客様の個人情報及び、電話会社が発番する折り返し専用の電話番号は、お問合せ先不動産会社が資料送付・電子メール送信・電話連絡などの目的で保管する可能性があります。お問合せ先不動産会社が保管する個人情報の取扱いについては、各不動産会社に直接お問合せください
- ※株式会社LIFULLでは本サービスを円滑に運用するために、お客様の発信者番号をサービスご利用の控えとして一定期間保管いたします
- ※上記および株式会社LIFULLの個人情報の取扱い方針に同意のうえ、お電話ください
【LIFULL HOME'S物件番号】0122850-0295073【自社管理番号】08027-304-21
オンライン対応
オンライン相談に対応している物件です

「オンライン内見」「オンライン相談」「IT重説」とは?
物件の内見や不動産会社スタッフとの相談、契約前の重要事項説明をオンライン(ビデオ通話)で行うことができるサービスです。
オンライン内見
ビデオ通話で現地(物件)にいる不動産会社スタッフと映像・音声を使ってリアルタイムで会話しながら内見ができます。
オンライン相談
「物件について聞きたいことがある」など不動産会社スタッフへの相談もビデオ通話で行うことができます。
IT重説
契約前の重要事項説明(重説)をビデオ通話で行うことができます。
利用時の注意事項
- ビデオ通話については各不動産会社指定のものとなります。
- ビデオ通話利用時には通信が発生します。従量課金制通信サービスや通信量に上限があるネット回線・プランを利用する場合は、通信量にご注意ください。
- 通信速度やアプリの設定によってはビデオ通話の画質が低下することがあります。安定した画質で利用するためにも、Wi-Fi環境下での利用を推奨します。
- ご利用のビデオ通話アプリによっては、対象のOSやブラウザに制限がある場合があります。詳しくはお問合せ先不動産会社にご確認ください。
初期費用・月額費用をあわせて確認!この物件に住んだときの費用めやす
めやすを見るこの物件に住んだときの費用めやす
- 初期費用
- 月額費用
- 追加費用※ご確認ください
追加で費用が
かかる場合があります
必ずご確認ください
初期費用めやす約0円
追加で費用がかかります(※)敷金
106,000
- 礼金
212,000
賃料+共益費・管理費の1ヶ月分として換算
賃料の1ヶ月分+税として換算。不動産会社によって金額が異なるため正確な金額は不動産会社にお問合せください
※追加費用もチェック!
これらの項目以外にも費用がかかる場合があります。正確な金額は不動産会社にお問合せください。
- 初期費用
- 鍵交換費:不動産会社に要確認
- 室内清掃費:49,500円
- 火災保険費:不動産会社に要確認
- 月額費用
- 駐車場費:15,400円(税込)※契約任意
- その他
- LIFE SUPPORT:1100円
- 保証会社
- 初回:月額賃料等の40%、月額:支払い手数料880円、更新時:月額賃料等の20%/2年
不動産会社より
周辺環境良好に良し 周辺環境良好のハイグレード賃貸マンションです
分譲にもひけをとらないハイグレード賃貸マンションです。 イオンモール徒歩圏内、コンビニ、スーパー、郵便局も近く、周辺環境良好 設備、セキュリティーなども充実しております。 物件情報はもちろん京都のエリア情報まで幅広く対応させていただきます!
- 保存する
- 共有する
- ※各種情報と現状に差異がある場合は、現状優先となります
- ※不動産会社が入力した情報を基に物件の位置を表示しています。詳しくは不動産会社までお問合せください
- ※不動産会社の方からの上記電話番号によるお問合せはお断りしております。こちら不動産会社詳細からお問合せください
- ※LIFULL HOME'Sは物件鮮度No.1を目指していきます。閲覧中の物件が「成約済である」「実際の物件情報と異なる点がある」などの場合、「掲載110番」からお問合せください
- ※QRコードは株式会社デンソーウェーブの登録商標です
この物件を取扱う他の会社
LIFULL HOME'Sでは、主要項目が同一の物件をまとめて表示しています。所在地や営業時間、掲載画像等から不動産会社を選んでお問合せください。
株式会社京都ライフ 立命館大学前店
優良店認定
京都府京都市北区小松原北町26-5
京福電気鉄道北野線 等持院・立命館大学衣笠キャンパス前駅 徒歩8分
- 営業時間
- 09:30~19:00
- 定休日
- 水曜定休(4/21〜9/20の期間)、盆・正月
LIFULL HOME'S 地図・周辺情報
買い物
- セブンイレブン 西院月双町店
- 業務スーパー 西院店
- ウエルシア右京西院月双店
- ファミリーマート 葛野大路高辻店
- FLET’S西院店
グルメ
- ザめしや 西京極店
- かっぱ寿司 西京極店
- 揚げ天まるイオン五条
- バーミヤン イオンモール京都五条店
- スターバックスコーヒーイオンモール京都五条店
育児・教育
- 清明保育園
- 京都市立葛野小学校
- 私立京都光華中学校
- つわぶき園
- 私立光華小学校
医療
- 医療法人社団京健会介護医療院さいきょう
- 医療法人社団京健会さいきょうクリニック
- 一般財団法人京都地域医療学際研究所がくさい病院
- 地方独立行政法人京都市立病院機構京都市立病院
- 医療法人社団恵心会京都武田病院
公共施設・郵便局
- 右京郵便局
- 京都市右京中央図書館
- 京都市右京区役所
- 京都葛野郵便局
- 京都市中央図書館
公園
- 西院公園
- 東大丸公園
- 光徳公園
- 梅小路公園
- 唐橋西寺公園
利用可能な駅
- 徒歩10分以内
阪急京都本線
- 西京極駅徒歩9分
- すべての駅
阪急京都本線
- 西院駅徒歩17分
- 周辺情報は2023年07月21日時点のものになります。
- 周辺情報は、参考情報としてのみご利用ください(周辺情報は、株式会社LIFULLが地図情報の提供事業者から提供を受けた情報とLIFULL HOME'Sの物件情報に基づき、独自の方法で抽出し提供しているものです。周辺情報は、移転や閉鎖等により情報が最新ではない、または正しくない場合がありますが、地図情報の提供事業者から提供された情報をそのまま周辺情報として表示しているため、正確かつ最新の情報へ修正することができないことがあります。)
- 周辺情報は、株式会社LIFULLが掲載するものであり、不動産物件情報を掲載している不動産会社が掲載するものではありません
- 交通情報の一部については、株式会社LIFULLが掲載するものであり、不動産物件情報を掲載している不動産会社が掲載するものではない場合があります。交通情報に関する質問などは株式会社LIFULLにお問合せください













