LIFULL HOME'Sは物件鮮度No.1!※評価について
CITY RESIDENCE栄通 4階
8.8万円/管理費等6,000円
10時間前 更新
画像一覧
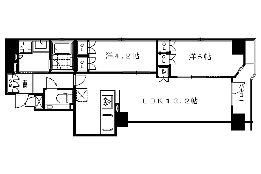
1/30間取り
2LDK、都市ガス、エアコン、システムキッチン
2/30外観
札幌市白石区栄通7丁目「CITY RESIDENCE栄通」
3/30外観
外観2
4/30外観
外観3
5/30リビング/ダイニング
広くてきれいなリビングです!快適に過ごせそうですね。
6/30リビング/ダイニング
リビングを別角度から撮ってみました。家具の配置もしやすそう。
7/30室内
色々な角度から撮ってみましたが想像つきますか?
8/30室内
グリルもついているのでお魚も焼けますよ~
9/30室内
追い炊き機能付きでいつでも温かいお風呂に入れますね。
10/30室内
給湯器は簡単操作で温度調整ができますよ。
11/30室内
洗濯機はこちらの脱衣所に置くことができます!
12/30室内
冷蔵庫置き場はこちらです!動線もバッチリですね。
13/30室内
シューズボックスにきれいに靴を収納できますよー!
14/30寝室
寝室です。部屋をどう使うかはあなた次第です!
15/30キッチン
3口システムキッチンなので、すぐお料理に使えます!
16/30キッチン
調理スペースも広々しておりお料理しやすそうです!
17/30浴室
お風呂になります。一日の疲れを癒してくださいね。
18/30トイレ
トイレです。ウォシュレット付を探している方、おすすめです!
19/30洗面
シャンプードレッサーで身支度もラクラクです!
20/30収納
収納もバッチリあるのでお部屋が片付きますよ!
21/30設備
エアコンがありますので夏でも快適に過ごせます!
22/30玄関
お部屋の第一印象を決める玄関はこちらです!
23/30その他
暖房です。冬場の寒い日でも安心ですね~
24/30その他
TVモニター付インターホンです。来客者の顔が見えるので安心!
25/30その他
その他
26/30その他
その他
27/30その他
その他
28/30周辺
前面道路、建物周り等
29/30周辺
セブンイレブン札幌栄通7丁目店 108m
30/30周辺
東光ストア南郷7丁目店 467m
間取り
外観
外観
外観
リビング/ダイニング
リビング/ダイニング
室内
室内
室内
室内
室内
室内
室内
寝室
キッチン
キッチン
浴室
トイレ
洗面
収納
設備
玄関
その他
その他
その他
その他
その他
周辺
周辺
周辺
お問合せ先 :株式会社アシスト 賃貸・売買のアシスト麻生店
引越し料金割引
大手引っ越し専門業者との提携により、引っ越し代金30%割引になります。
- 利用条件
- 株式会社アシスト 賃貸・売買のアシスト麻生店で利用可
- 他特典との併用可
- 賃貸・売買アシスト札幌麻生店のみで利用可 他特典との併用可 契約手続き完了後
利用方法
来店時に本特典の画面をスマートフォンやタブレットでスタッフに提示、または画面印刷した用紙を提示ください。
有効期限 2025年12月31日まで
2023年9月築 都市ガス、エアコン付き、ネット無料、ワンちゃん、猫ちゃんも飼育可能でオススメです。
基本情報
不動産用語- 賃料
- 8.8万円
- 管理費等
- 6,000円
初期費用などお気軽にお問合せください
- 敷金/礼金
- 1ヶ月/無
- 保証金/敷引・償却金
- -/-
- 交通
札幌市営東西線 南郷7丁目駅 徒歩4分
札幌市営東西線 南郷13丁目駅 徒歩17分
札幌市営地下鉄東豊線月寒中央駅 徒歩20分
- 所在地
北海道札幌市白石区栄通7丁目
地図を見る- 築年月
- 2023年9月(築3年)
- 主要採光面
- 南
- 専有面積
- 46.61㎡
- バルコニー面積
- -
- 所在階/階数
- 4階/4階建
入居可能日などお気軽にお問合せください
- 現況
- 居住中
- 入居可能時期
- 2025年11月 下旬

人気物件はすぐに埋まってしまいます。
気になったらお早めにお問合せください。
- 情報公開日
2025/11/14
9日前 公開
- 情報更新日
2025/11/22
10時間前 更新
- 次回更新
予定日 - 2025/11/29
物件のこだわり/設備・条件
新築(非該当)
2階以上の物件(該当)
南向き(該当)
駐車場(非該当)
オートロック(該当)
エアコン(該当)
バス・トイレ別(該当)
追焚機能(非該当)
フローリング(該当)
ペット相談可(該当)
位置
角部屋入居条件
二人入居可、ペット可、保証人不要、小型犬可、猫可キッチン/バス・トイレ
設備・サービス
オートロック、防犯カメラ、TVモニタ付インターホン、ガス暖房、エアコン、ウォークインクローゼット、クローゼット、シューズボックス、CS対応、BS対応、光ファイバー、インターネット使用料無料、公営水道、都市ガス、下水、フローリング、バルコニー、室内洗濯機置場、南面バルコニー、エレベーター、宅配ボックス、駐輪場ありその他
初期費用カード決済可、住まい探し特典あり備考
弊社は札幌市内であればお取り扱いの出来ない物件はございません。わざわざ何社も足を運ばなくても窓口一つでご案内フットワークが軽いスタッフが皆様のご来店、笑顔でお待ちしております。
物件周辺の生活情報
買い物
- コンビニ(108m)
- スーパー(467m)
その他施設
- 総合病院(633m)
- 銀行(205m)
交通
- 札幌市営東西線 南郷7丁目駅 徒歩4分
- 普通(停車)
- 札幌市営東西線 南郷13丁目駅 徒歩17分
- 普通(停車)
※急行等の停車駅情報について
急行等の停車駅に関するデータは、随時更新をしておりますが、最新の内容であることを保証するものではありません。
最新かつ正確な情報につきましては、各鉄道会社のウェブサイトにてご確認ください
物件周辺の口コミ
- 北海道札幌市白石区栄通に住む人の口コミ40代男性
交通の便もしっかりしているので、公共機関を使っての通勤もしやすいし、また車の移動でも通勤しやすいところ
口コミを見る
この物件周辺に住む人の口コミ
口コミは、LIFULL HOME'Sが実際にこの物件の周辺に住む18歳~69歳の男女を対象に、WEBアンケート調査を実施しています。内容には回答者の主観的な表現が含まれる場合があるほか、事実と異なる場合もございます。ご了承ください。
- 北海道札幌市白石区栄通に住む人の口コミ40代男性
- 交通の便もしっかりしているので、公共機関を使っての通勤もしやすいし、また車の移動でも通勤しやすいところ
- 北海道札幌市白石区栄通に住む人の口コミ30代男性
- 10年以上住んでいて車が無くても周りにスーパー等あるし、地下鉄も近いので問題無く生活出来る。
- 北海道札幌市白石区栄通に住む人の口コミ50代女性
- 四季を感じられる公園や並木通りがある。地下鉄駅まで歩いて10分、バスバス停までは5分。朝早くからウォーキングしている人も多い。住みやすいと思う。
- 北海道札幌市白石区栄通に住む人の口コミ40代男性
- 交通の便利さや飲食店やスーパーやコンビニなどが充実している点。病院も豊富にある点。
- 北海道札幌市白石区栄通に住む人の口コミ40代女性
- 近くに自然があったり、交通のべんも良いから、買い物なども行きやすいから
- 北海道札幌市白石区栄通に住む人の口コミ50代男性
- 治安が余り良くないが、スーパー・コンビニ・各種病院が充実している。
- 北海道札幌市白石区栄通に住む人の口コミ40代女性
- 公共交通機関もあるし移動するのに便利な場所だと思う。子育てや買い物も不自由しない
- 北海道札幌市白石区栄通に住む人の口コミ60代女性
- 交通の多い道路から中に入っているので、静かな場所。近くのサイクリングロードが四季を感じられ、憩いの場所。
- 北海道札幌市白石区栄通に住む人の口コミ30代女性
- 何でもそろうしどこでもいきやすい。にぎやかすぎないのもいい。
- 北海道札幌市白石区栄通に住む人の口コミ40代女性
- 近所にスーパーやコンビニ、郵便局もあるし車でちょっと走れば幹線道路に出れる
物件概要
- 建物構造
- RC(鉄筋コンクリート)
- 駐車場
- 近隣 (1台) 11,000円(税込) 物件からの距離100m
- 総戸数
- 27戸
- 契約形態
- -
- 契約期間
- 2年間
- 更新料
- -
- その他費用
- 室内清掃費用:41,800円、24時間管理費:1,100円、町内会費:300円
- 保証会社
加入要
保証会社:こむず保証(オリコフォレントインシュア)
保証会社利用料:初回契約時:50%、更新時:11、000円、月額:1%
- 住宅保険
- 要
- 管理
- -
- LIFULL HOME'S
物件番号 - 0148817-0052238
- 自社管理番号
- 8133655
- 取引態様
- 一般媒介
- 会社名
- 株式会社アシスト 賃貸・売買のアシスト麻生店
営業スタッフコメント

株式会社アシスト 賃貸・売買のアシスト麻生店
武田紘休
お客様のニーズにぴったりなお部屋をご提案いたします。
業界経験1年
- 会社実績や特徴・サービス情報
- どこの不動産屋さんより初期費用、家賃、お安く交渉致します。 当社は「総合仲介」と言う形で営業しておりますので他社様の掲載物件も全てご紹介可能。ネットをご覧になられて気になる物件は全てまとめてお調べさして頂きます! また「来店不要のオンライン内見サービス始めました」お問い合わせ当日から対応可能のオンライン内見〜鍵渡しまでワンストップで来店不要で完結します。 細かい内装写真、周辺環境どんなご要望にも全力でご対応させて頂きます、お部屋探しは是非「アシスト札幌麻生店」までお越しくださいませ。
どこの不動産屋さんより初期費用、家賃、お安く交渉致します。 当社は「総合仲介」と言う形で営業しておりますので他社様の掲載物件も全てご紹介可能。ネットをご覧になられて気になる物件は全てまとめてお調べさして頂きます! また「来店不要のオンライン内見サービス始めました」お問い合わせ当日から対応可能のオンライン内見〜鍵渡しまでワンストップで来店不要で完結します。 細かい内装写真、周辺環境どんなご要望にも全力でご対応させて頂きます、お部屋探しは是非「アシスト札幌麻生店」までお越しくださいませ。
- 電話でお問合せ(通話無料)
お問合せ先 :株式会社アシスト 賃貸・売買のアシスト麻生店
不動産会社情報
- 店舗の特徴
- 賃貸管理業務
- 引越し業者紹介可
- 年中無休
- 送迎あり
- オンライン相談可
- 法人契約取扱い
- 19時以降も営業
- 駅から歩いて3分以内
電話でお問合せお客様の電話番号は不動産会社には通知されません
- 不動産会社に
つながります
お客様の電話番号は不動産会社に通知されません
- ※光IP電話、及びIP電話からはご利用になれません
- ※お電話によるお問合せは、店舗営業時間内にお願いします。つながらない場合は、お問合せフォームよりお問合せください
- ※不動産会社がお電話に出られなかった場合、お問合せいただいた後に不動産会社より折り返しのお電話がある場合がございます(お客様が非通知設定した場合は対象外です)
- ※株式会社LIFULLは電話会社が提供するサービスを介してお客様の発信者番号を受領後、折り返し専用の電話番号を発番してお問合せの不動産会社に通知します(お客様の発信者番号がお問合せの不動産会社に通知されることはございません)
- ※携帯電話からお問合せいただいた方に対し、株式会社LIFULLは電話会社が提供するメッセ―ジサービスを介してお客様の発信者番号を受領後、ショートメッセージ(SMS)またはLINE通知メッセージによるお問合せ内容に関する通知をお届けする場合があります
- ※お客様が通話中に不動産会社にお伝えになったお客様の個人情報及び、電話会社が発番する折り返し専用の電話番号は、お問合せ先不動産会社が資料送付・電子メール送信・電話連絡などの目的で保管する可能性があります。お問合せ先不動産会社が保管する個人情報の取扱いについては、各不動産会社に直接お問合せください
- ※株式会社LIFULLでは本サービスを円滑に運用するために、お客様の発信者番号をサービスご利用の控えとして一定期間保管いたします
- ※上記および株式会社LIFULLの個人情報の取扱い方針に同意のうえ、お電話ください
【LIFULL HOME'S物件番号】0148817-0052238【自社管理番号】8133655
オンライン対応
オンライン内見・オンライン相談・IT重説に対応している物件です

「オンライン内見」「オンライン相談」「IT重説」とは?
物件の内見や不動産会社スタッフとの相談、契約前の重要事項説明をオンライン(ビデオ通話)で行うことができるサービスです。
オンライン内見
ビデオ通話で現地(物件)にいる不動産会社スタッフと映像・音声を使ってリアルタイムで会話しながら内見ができます。
オンライン相談
「物件について聞きたいことがある」など不動産会社スタッフへの相談もビデオ通話で行うことができます。
IT重説
契約前の重要事項説明(重説)をビデオ通話で行うことができます。
利用時の注意事項
- ビデオ通話については各不動産会社指定のものとなります。
- ビデオ通話利用時には通信が発生します。従量課金制通信サービスや通信量に上限があるネット回線・プランを利用する場合は、通信量にご注意ください。
- 通信速度やアプリの設定によってはビデオ通話の画質が低下することがあります。安定した画質で利用するためにも、Wi-Fi環境下での利用を推奨します。
- ご利用のビデオ通話アプリによっては、対象のOSやブラウザに制限がある場合があります。詳しくはお問合せ先不動産会社にご確認ください。
初期費用・月額費用をあわせて確認!この物件に住んだときの費用めやす
めやすを見るこの物件に住んだときの費用めやす
- 初期費用
- 月額費用
- 追加費用※ご確認ください
追加で費用が
かかる場合があります
必ずご確認ください
初期費用めやす約0円
追加で費用がかかります(※)敷金
88,000
- 礼金
0
賃料+共益費・管理費の1ヶ月分として換算
賃料の1ヶ月分+税として換算。不動産会社によって金額が異なるため正確な金額は不動産会社にお問合せください
※追加費用もチェック!
これらの項目以外にも費用がかかる場合があります。正確な金額は不動産会社にお問合せください。
- 初期費用
- 鍵交換費:不動産会社に要確認
- 室内清掃費:41,800円
- 火災保険費:不動産会社に要確認
- 月額費用
- 駐車場費:11,000円(税込)※近隣
- その他
- 24時間管理費:1100円
- 町内会費:300円
- 保証会社
- 初回契約時:50%、更新時:11、000円、月額:1%
不動産会社より
2023年9月築 都市ガス、エアコン付き、ネット無料、ワンちゃん、猫ちゃんも飼育可能でオススメです。
弊社は札幌市内であればお取り扱いの出来ない物件はございません。わざわざ何社も足を運ばなくても窓口一つでご案内フットワークが軽いスタッフが皆様のご来店、笑顔でお待ちしております。
- 保存する
- 共有する
- ※各種情報と現状に差異がある場合は、現状優先となります
- ※不動産会社が入力した情報を基に物件の位置を表示しています。詳しくは不動産会社までお問合せください
- ※不動産会社の方からの上記電話番号によるお問合せはお断りしております。こちら不動産会社詳細からお問合せください
- ※LIFULL HOME'Sは物件鮮度No.1を目指していきます。閲覧中の物件が「成約済である」「実際の物件情報と異なる点がある」などの場合、「掲載110番」からお問合せください
- ※QRコードは株式会社デンソーウェーブの登録商標です
この物件を取扱う他の会社
LIFULL HOME'Sでは、主要項目が同一の物件をまとめて表示しています。所在地や営業時間、掲載画像等から不動産会社を選んでお問合せください。
株式会社ソレア
優良店認定
北海道札幌市西区二十四軒一条5丁目1-2 ラ・ポール二十四軒2号館107号室
札幌市営東西線 二十四軒駅 徒歩1分
- 営業時間
- 09:00~21:00
- 定休日
- 年中無休
最近見た賃貸物件
LIFULL HOME'S 地図・周辺情報
買い物
- セブンイレブン 札幌栄通7丁目店
- 東光ストア南郷7丁目店
- サツドラ月寒東店
- セイコーマート南郷通8丁目店
- まいばすけっと南郷通7丁目北店
グルメ
- 松屋 南郷通店
- びっくりドンキー 南郷通店
- 吉野家 南郷通6丁目店
- ミスタードーナツ 南郷13丁目ショップ
- まいどおおきに食堂 札幌白石食堂
育児・教育
- 南郷札幌幼稚園
- 札幌市立本郷小学校
- 札幌市立白石中学校
- 札幌市東白石保育園
- 札幌市立月寒東小学校
医療
- 医療法人社団豊武会幌東病院
- 医療法人杏医会札幌呼吸器科病院
- 社会医療法人恵佑会札幌病院
- 社会医療法人医翔会札幌白石記念病院
- 日本医療大学病院
公共施設・郵便局
- 白石栄通郵便局
- 札幌市白石区民センター図書室
- 札幌市白石区役所
- 白石本郷郵便局
- 札幌市東札幌図書館
公園
- 万生公園
- 南郷丘公園
- 平和通公園
- 平和公園
- わらべ公園
利用可能な駅
- 徒歩10分以内
札幌市営東西線
- 南郷7丁目駅徒歩4分
- すべての駅
札幌市営東西線
- 南郷13丁目駅徒歩17分
- その他交通
- 札幌市営地下鉄東豊線月寒中央駅 徒歩20分
- 周辺情報は2023年07月21日時点のものになります。
- 周辺情報は、参考情報としてのみご利用ください(周辺情報は、株式会社LIFULLが地図情報の提供事業者から提供を受けた情報とLIFULL HOME'Sの物件情報に基づき、独自の方法で抽出し提供しているものです。周辺情報は、移転や閉鎖等により情報が最新ではない、または正しくない場合がありますが、地図情報の提供事業者から提供された情報をそのまま周辺情報として表示しているため、正確かつ最新の情報へ修正することができないことがあります。)
- 周辺情報は、株式会社LIFULLが掲載するものであり、不動産物件情報を掲載している不動産会社が掲載するものではありません
- 交通情報の一部については、株式会社LIFULLが掲載するものであり、不動産物件情報を掲載している不動産会社が掲載するものではない場合があります。交通情報に関する質問などは株式会社LIFULLにお問合せください












































