LIFULL HOME'Sは物件鮮度No.1!※評価について
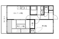
京都地下鉄東西線 椥辻駅 徒歩20分2DK/48.04㎡
京都地下鉄東西線 椥辻駅 徒歩20分2DK/48.04㎡
5.8万円/管理費等4,000円
3日前 更新
暑い日や寒い日にも嬉しいエアコン完備の物件です。同時に二つのコンロが使えるので料理しやすいですね。
物件のこだわり/設備・条件
新築(非該当)
2階以上の物件(該当)
南向き(非該当)
駐車場あり(該当)
オートロック(該当)
エアコン(該当)
バス・トイレ別(該当)
追焚機能(非該当)
フローリング(該当)
ペット相談(非該当)
入居条件
楽器不可、二人入居可、ペット不可、保証人要、即入居可キッチン/バス・トイレ
設備・サービス
オートロック、エアコン、クローゼット、シューズボックス、BS対応、インターネット対応、インターネット使用料無料、公営水道、都市ガス、下水、フローリング、バルコニー、室内洗濯機置場、タイル貼り、駐車場あり、バイク置き場あり、駐輪場ありその他
初期費用カード決済可備考
法人可
物件周辺の生活情報
学校
- 百々小学校(346m)
- 山科中学校(1,400m)
買い物
- コンビニ(450m)
- スーパー(1,872m)
その他施設
- 総合病院(1,884m)
- ケーヨーデイツー 西野山(639m)
交通
- 京都地下鉄東西線 椥辻駅 徒歩20分
- 普通(停車)
- 京都地下鉄東西線 小野駅 徒歩32分
- 普通(停車)
※急行等の停車駅情報について
急行等の停車駅に関するデータは、随時更新をしておりますが、最新の内容であることを保証するものではありません。
最新かつ正確な情報につきましては、各鉄道会社のウェブサイトにてご確認ください
物件周辺の口コミ
- 京都府京都市山科区西野山射庭ノ上町に住む人の口コミ40代女性
地域がしっかりしており人間関係がよく子育てしやすい。自然も多く、野菜販売所があり四季を感じられる。
口コミを見る
この物件周辺に住む人の口コミ
口コミは、LIFULL HOME'Sが実際にこの物件の周辺に住む18歳~69歳の男女を対象に、WEBアンケート調査を実施しています。内容には回答者の主観的な表現が含まれる場合があるほか、事実と異なる場合もございます。ご了承ください。
- 京都府京都市山科区西野山射庭ノ上町に住む人の口コミ40代女性
- 地域がしっかりしており人間関係がよく子育てしやすい。自然も多く、野菜販売所があり四季を感じられる。
- 京都府京都市山科区西野山射庭ノ上町に住む人の口コミ40代男性
- 閑静な住宅街で近所もあまり干渉する感じでは無いので落ち着いた生活が送れる
- 京都府京都市山科区西野山射庭ノ上町に住む人の口コミ40代男性
- 自宅は閑静な場所にあるものの買い物に便利なスーパー等も近くにあるのであまり困る事が無いから
- 京都府京都市山科区西野山射庭ノ上町に住む人の口コミ50代女性
- ペットが居るので、すぐ下に、動物病院と、トリミングがあるから
- 京都府京都市山科区西野山射庭ノ上町に住む人の口コミ40代男性
- 比較的静かであまり人との関係が密着しすぎず自分のペースで生活できるから
物件概要
- 建物構造
- RC(鉄筋コンクリート)
- 駐車場
- 空有 (1台) 8,000円 物件からの距離0m
- 総戸数
- 32戸
- 契約形態
- -
- 契約期間
- 2年間
- 更新料
- 新賃料の1ヶ月分
- その他費用
- 鍵交換代:16,500円、駐車場契約手数料:8,800円、退去時クリーニング費用:38,500円
- 保証会社
加入要
保証会社:日本セーフティー
保証会社利用料:初回保証料40% 月額更新料800円
- 住宅保険
- 要
- 管理
- -
- LIFULL HOME'S
物件番号 - 0108897-0130935
- 自社管理番号
- 15815306
- 取引態様
- 仲介
- 会社名
- 株式会社BRAVE 賃貸住宅サービス FC山科駅前店
営業スタッフコメント

株式会社BRAVE 賃貸住宅サービス FC山科駅前店
図師雄一
お部屋探しは、ぜひ図師へお任せください!
業界経験3年
資格宅地建物取引士、少額短期保険募集人
- 会社実績や特徴・サービス情報
- 山科駅を中心に京都市内一円並びに大津市の最新賃貸物件情報はお任せください。 どこよりもお得な条件でお部屋探しをして頂けるようスタッフ全員で 最新情報を随時更新中。交渉物件、独占物件多数あり。
山科駅を中心に京都市内一円並びに大津市の最新賃貸物件情報はお任せください。 どこよりもお得な条件でお部屋探しをして頂けるようスタッフ全員で 最新情報を随時更新中。交渉物件、独占物件多数あり。
- 電話でお問合せ(通話無料)
お問合せ先 :株式会社BRAVE 賃貸住宅サービス FC山科駅前店
不動産会社情報
株式会社BRAVE 賃貸住宅サービス FC山科駅前店

京都府京都市山科区安朱南屋敷町27
JR東海道・山陽本線 山科駅 徒歩1分
- 営業時間
- 10:00~19:00(時間外でもお客様のご希望にできるだけ合せます。)
- 定休日
- 年末年始
優良店認定
山科はJRで大阪まで35分・地下鉄で烏丸御池まで13分。便利な立地です。駅前には商業施設(ラクト山科)もありますので買い物も便利。当店は駅からスグの立地です!お部屋探しはお任せ下さい!
- 店舗の特徴
- 賃貸管理業務
- リフォーム対応
- 引越し業者紹介可
- 年中無休
- オンライン相談可
- 保証人不要な物件あり
- 法人契約取扱い
- 女性スタッフ対応可
- 19時以降も営業
- 駅から歩いて3分以内
電話でお問合せお客様の電話番号は不動産会社には通知されません
- 不動産会社に
つながります
お客様の電話番号は不動産会社に通知されません
- ※光IP電話、及びIP電話からはご利用になれません
- ※お電話によるお問合せは、店舗営業時間内にお願いします。つながらない場合は、お問合せフォームよりお問合せください
- ※不動産会社がお電話に出られなかった場合、お問合せいただいた後に不動産会社より折り返しのお電話がある場合がございます(お客様が非通知設定した場合は対象外です)
- ※株式会社LIFULLは電話会社が提供するサービスを介してお客様の発信者番号を受領後、折り返し専用の電話番号を発番してお問合せの不動産会社に通知します(お客様の発信者番号がお問合せの不動産会社に通知されることはございません)
- ※携帯電話からお問合せいただいた方に対し、株式会社LIFULLは電話会社が提供するメッセ―ジサービスを介してお客様の発信者番号を受領後、ショートメッセージ(SMS)またはLINE通知メッセージによるお問合せ内容に関する通知をお届けする場合があります
- ※お客様が通話中に不動産会社にお伝えになったお客様の個人情報及び、電話会社が発番する折り返し専用の電話番号は、お問合せ先不動産会社が資料送付・電子メール送信・電話連絡などの目的で保管する可能性があります。お問合せ先不動産会社が保管する個人情報の取扱いについては、各不動産会社に直接お問合せください
- ※株式会社LIFULLでは本サービスを円滑に運用するために、お客様の発信者番号をサービスご利用の控えとして一定期間保管いたします
- ※上記および株式会社LIFULLの個人情報の取扱い方針に同意のうえ、お電話ください
【LIFULL HOME'S物件番号】0108897-0130935【自社管理番号】15815306
オンライン対応
オンライン内見・オンライン相談・IT重説に対応している物件です

「オンライン内見」「オンライン相談」「IT重説」とは?
物件の内見や不動産会社スタッフとの相談、契約前の重要事項説明をオンライン(ビデオ通話)で行うことができるサービスです。
オンライン内見
ビデオ通話で現地(物件)にいる不動産会社スタッフと映像・音声を使ってリアルタイムで会話しながら内見ができます。
オンライン相談
「物件について聞きたいことがある」など不動産会社スタッフへの相談もビデオ通話で行うことができます。
IT重説
契約前の重要事項説明(重説)をビデオ通話で行うことができます。
利用時の注意事項
- ビデオ通話については各不動産会社指定のものとなります。
- ビデオ通話利用時には通信が発生します。従量課金制通信サービスや通信量に上限があるネット回線・プランを利用する場合は、通信量にご注意ください。
- 通信速度やアプリの設定によってはビデオ通話の画質が低下することがあります。安定した画質で利用するためにも、Wi-Fi環境下での利用を推奨します。
- ご利用のビデオ通話アプリによっては、対象のOSやブラウザに制限がある場合があります。詳しくはお問合せ先不動産会社にご確認ください。
初期費用・月額費用をあわせて確認!この物件に住んだときの費用めやす
めやすを見るこの物件に住んだときの費用めやす
- 初期費用
- 月額費用
- 追加費用※ご確認ください
追加で費用が
かかる場合があります
必ずご確認ください
初期費用めやす約0円
追加で費用がかかります(※)敷金
0
- 礼金
0
- 保証金
0
賃料+共益費・管理費の1ヶ月分として換算
賃料の1ヶ月分+税として換算。不動産会社によって金額が異なるため正確な金額は不動産会社にお問合せください
※追加費用もチェック!
これらの項目以外にも費用がかかる場合があります。正確な金額は不動産会社にお問合せください。
- 初期費用
- 鍵交換費:不動産会社に要確認
- 室内清掃費:不動産会社に要確認
- 火災保険費:不動産会社に要確認
- 月額費用
- 駐車場費:8,000円※契約任意
- その他
- 鍵交換代:16500円
- 駐車場契約手数料:8800円
- 退去時クリーニング費用:38500円
- 保証会社
- 初回保証料40% 月額更新料800円
不動産会社より
暑い日や寒い日にも嬉しいエアコン完備の物件です。同時に二つのコンロが使えるので料理しやすいですね。
法人可
- 保存する
- 共有する
- ※各種情報と現状に差異がある場合は、現状優先となります
- ※不動産会社が入力した情報を基に物件の位置を表示しています。詳しくは不動産会社までお問合せください
- ※不動産会社の方からの上記電話番号によるお問合せはお断りしております。こちら不動産会社詳細からお問合せください
- ※LIFULL HOME'Sは物件鮮度No.1を目指していきます。閲覧中の物件が「成約済である」「実際の物件情報と異なる点がある」などの場合、「掲載110番」からお問合せください
- ※QRコードは株式会社デンソーウェーブの登録商標です
したい暮らしのタグから探す
LIFULL HOME'S 地図・周辺情報
買い物
- ファミリーマート 山科西野山店
- マツヤスーパー ビア店
- ドラッグひかり西野山店
- ローソン 山科新大石道店
- ホームセンターコーナン 西野山店
グルメ
- 香の川製麺山科店
- 無添くら寿司 山科店
- ケンタッキーフライドチキン R1山科店
- すき家 1国山科西野店
- ロイヤルホスト 山科西野店
育児・教育
- 幼保連携型認定こども園なかとみこども園
- 京都市立百々小学校
- 京都市立山科中学校
- 西野山保育園
- 京都市立山階南小学校
医療
- 恵仁会なぎ辻病院
- 医療法人財団医道会稲荷山武田病院
- 加藤山科病院
- 京都第一赤十字病院
- 医療法人社団育生会京都久野病院
公共施設・郵便局
- 京都山科川田郵便局
- 京都市山科図書館
- 京都市山科区役所
- 京都勧修寺郵便局
- 京都市醍醐中央図書館
公園
- 深草墓園
利用可能な駅
- すべての駅
京都地下鉄東西線
- 椥辻駅徒歩20分
- 小野駅徒歩32分
- 東野駅徒歩36分
- 醍醐駅3.5km
京阪本線
- 鳥羽街道駅3.2km
- 伏見稲荷駅3.8km
- 龍谷大前深草駅4.3km
- 藤森駅5.1km
京阪京津線
- 御陵駅3.3km
- 京阪山科駅3.8km
JR奈良線
- 東福寺駅3.6km
- 稲荷駅3.9km
JR東海道・山陽本線
- 山科駅3.8km
- 周辺情報は2023年07月21日時点のものになります。
- 周辺情報は、参考情報としてのみご利用ください(周辺情報は、株式会社LIFULLが地図情報の提供事業者から提供を受けた情報とLIFULL HOME'Sの物件情報に基づき、独自の方法で抽出し提供しているものです。周辺情報は、移転や閉鎖等により情報が最新ではない、または正しくない場合がありますが、地図情報の提供事業者から提供された情報をそのまま周辺情報として表示しているため、正確かつ最新の情報へ修正することができないことがあります。)
- 周辺情報は、株式会社LIFULLが掲載するものであり、不動産物件情報を掲載している不動産会社が掲載するものではありません
- 交通情報の一部については、株式会社LIFULLが掲載するものであり、不動産物件情報を掲載している不動産会社が掲載するものではない場合があります。交通情報に関する質問などは株式会社LIFULLにお問合せください


































