LIFULL HOME'Sは物件鮮度No.1!※評価について
京阪本線 伏見桃山駅 徒歩8分
6万円/管理費等5,000円
20時間前 更新
画像一覧
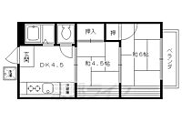
1/30間取り
間取
2/30外観
3/30外観
4/30リビング/ダイニング
9帖の広々した洋室です。
5/30リビング/ダイニング
7.5帖の和室です。
6/30リビング/ダイニング
玄関から見た室内の様子です。
7/30リビング/ダイニング
玄関周りの様子です。
8/30リビング/ダイニング
ゆったり広々した洋室です。
9/30リビング/ダイニング
ぴかぴかの室内です。
10/30リビング/ダイニング
綺麗に仕上がっています。
11/30リビング/ダイニング
広々した和室です。
12/30リビング/ダイニング
2面採光口で日当たりもよさそうですね。
13/30リビング/ダイニング
畳のよい香りがします。
14/30キッチン
L字の大きなキッチンが入っています。
15/30キッチン
キッチン周りの様子です。
16/30キッチン
キッチン周りの様子です。
17/30キッチン
コンロ設置スペースです。
18/30キッチン
シンクです。
19/30浴室
懐かしいタイプのお風呂です。
20/30トイレ
ウォシュレット付いています。
21/30収納
洋室の押し入れです。
22/30設備
洗面台です。
23/30設備
洗濯機は室内に設置可能です。
24/30玄関
玄関スペースです。
25/30バルコニー
ベランダです。
26/30バルコニー
ベランダです。
27/30エントランス
28/30エントランス
29/30駐車場
30/30周辺
伏見桃山郵便局まで115m JR桃山駅からすぐの郵便局。大手筋商店街から真っ直ぐ歩くと着きます。
間取り
外観
外観
リビング/ダイニング
リビング/ダイニング
リビング/ダイニング
リビング/ダイニング
リビング/ダイニング
リビング/ダイニング
リビング/ダイニング
リビング/ダイニング
リビング/ダイニング
リビング/ダイニング
キッチン
キッチン
キッチン
キッチン
キッチン
浴室
トイレ
収納
設備
設備
玄関
バルコニー
バルコニー
エントランス
エントランス
駐車場
周辺
お問合せ先 :株式会社京都ライフ 京都ライフ西大路店
仲介手数料割引
仲介手数料50%(税別、個人居住用に限り)
- 利用条件
- 株式会社京都ライフ 京都ライフ西大路店で利用可
- 他特典との併用可
- 積水ハウス、大東建託管理物件は除く。
利用方法
来店時に本特典の画面をスマートフォンやタブレットでスタッフに提示、または画面印刷した用紙を提示ください。
有効期限 なし
桃山の好立地物件。 買い物充実、大手筋商店街まで徒歩圏内。
物件のこだわり/設備・条件
新築(非該当)
2階以上の物件(該当)
南向き(非該当)
駐車場あり(該当)
オートロック(非該当)
エアコン(非該当)
バス・トイレ別(該当)
追焚機能(非該当)
フローリング(該当)
ペット相談(非該当)
入居条件
二人入居可、即入居可キッチン/バス・トイレ
設備・サービス
公営水道、都市ガス、下水、フローリング、バルコニー、室内洗濯機置場、駐車場あり、駐輪場ありその他
住まい探し特典あり備考
京阪伏見桃山駅まで徒歩8分の2DKです。JR、京阪、近鉄のトリプルアクセス。嬉しい3点セパレートなど充実の設備。コンビニ、スーパーなど近くにあって便利ですよ。 物件情報はもちろん京都のエリア情報まで幅広く対応させていただきます!
物件周辺の生活情報
学校
- 桃山小学校(568m)
- 桃山中学校(962m)
買い物
- コンビニ(122m)
- スーパー(544m)
その他施設
- 総合病院(1,050m)
- 公園(1,000m)
- 銀行(163m)
- ホームセンターコーナン伏見大手筋店(1,300m)
交通
- 京阪本線 伏見桃山駅 徒歩8分
- 普通(停車)
- 区間急行(通過)
- 急行(通過)
- 特急(通過)
- 通勤準急・準急(停車)
- 快速特急 洛楽(通過)
- 通勤快急・快速急行(通過)
- JR奈良線 桃山駅 徒歩4分
- 普通(停車)
- 区間快速(通過)
- 快速(通過)
- みやこ路快速(通過)
※急行等の停車駅情報について
急行等の停車駅に関するデータは、随時更新をしておりますが、最新の内容であることを保証するものではありません。
最新かつ正確な情報につきましては、各鉄道会社のウェブサイトにてご確認ください
物件周辺の口コミ
- 京都府京都市伏見区桃山町立売に住む人の口コミ50代女性
不便なことはないが、これといって気に入ったこともない。困ったこともない
口コミを見る
この物件周辺に住む人の口コミ
口コミは、LIFULL HOME'Sが実際にこの物件の周辺に住む18歳~69歳の男女を対象に、WEBアンケート調査を実施しています。内容には回答者の主観的な表現が含まれる場合があるほか、事実と異なる場合もございます。ご了承ください。
- 京都府京都市伏見区桃山町立売に住む人の口コミ50代女性
- 不便なことはないが、これといって気に入ったこともない。困ったこともない
- 京都府京都市伏見区上油掛町に住む人の口コミ50代女性
- 交通の便が良く商店街とスーパーが充実して買い物に困らない。地下水が美味しく酒処で観光地にもなってる。古くからの人もマンション住まいの人もいて共存しあってる。
- 京都府京都市伏見区奉行前町に住む人の口コミ50代女性
- 商業施設も充実している上に鉄道の駅も複数路線ありとても便利な為
- 京都府京都市伏見区東柳町に住む人の口コミ50代女性
- 交通の便が良く買い物も大体のものが揃えられる。大きな公園も近くにあり子供達も遊びやすい
- 京都府京都市伏見区京町9丁目に住む人の口コミ40代女性
- JR、近鉄、京阪があり、家から10分であまでであり、活用しやすい。5分以内に商店街がありほぼ食品、生活用品がそろう。公園や保育園、幼稚園、小学校、中学校、児童館があり子育てしやすい環境にある。
- 京都府京都市伏見区南部町に住む人の口コミ50代女性
- おしゃれな店はないが、大きな商店街があり買い物が便利であるのと、交通の便利が良いので繁華街に出かけやすい。
- 京都府京都市伏見区深草大亀谷万帖敷町に住む人の口コミ30代男性
- 公園、体育館などがあり、散歩や運動が出来る環境がある。坂の上からの景色がいい。学校も近くにあるので 治安もいい。
- 京都府京都市伏見区東組町に住む人の口コミ40代女性
- 生活に必要な施設は徒歩圏内にだいたいそろっているので、便利である。
- 京都府京都市伏見区深草大亀谷万帖敷町に住む人の口コミ40代男性
- 比較的大きな総合運動公園などもあり、福祉環境が整っているエリア。ただ、高齢になってくると坂道が多い為、終の棲家で考えるには少し不便
- 京都府京都市伏見区桃山町泰長老に住む人の口コミ50代女性
- 都市中心部へのアクセスが良い。緑が多い。徒歩20分で何でも揃うスーパーへ行ける。品質の良い魚が手に入る。
物件概要
- 建物構造
- 軽量鉄骨造
- 駐車場
- 空有 16,500円(税込)
- 総戸数
- 5戸
- 契約形態
- -
- 契約期間
- 2年間
- 更新料
- 新賃料の1ヶ月分
- その他費用
- -
- 保証会社
- -
- 住宅保険
- 要
- 管理
- -
- LIFULL HOME'S
物件番号 - 0150828-0079786
- 自社管理番号
- 13413-1-29
- 取引態様
- 仲介
- 会社名
- 株式会社京都ライフ 京都ライフ西大路店
営業スタッフコメント

株式会社京都ライフ 京都ライフ西大路店営業主任
原田亮輔
丁寧な応対を心がけております。
業界経験10年
資格宅地建物取引士
- 会社実績や特徴・サービス情報
- 京都駅の一駅隣にあるJR西大路駅、そこから徒歩1分のところに京都ライフ西大路店がございます。西大路、吉祥院、唐橋エリアは単身からファミリー層まで幅広くニーズがあり、京都ライフの豊富な取り扱い物件からお客様に合った物件をご提案いたします。住まいに関することなら、小さなことでもご相談ください。 店内にはキッズスペースも設けておりますので、小さなお子様のいらっしゃる方もどうぞ気軽にご来店ください。 スタッフ一同、ご来店をお待ちしております。
京都駅の一駅隣にあるJR西大路駅、そこから徒歩1分のところに京都ライフ西大路店がございます。西大路、吉祥院、唐橋エリアは単身からファミリー層まで幅広くニーズがあり、京都ライフの豊富な取り扱い物件からお客様に合った物件をご提案いたします。住まいに関することなら、小さなことでもご相談ください。 店内にはキッズスペースも設けておりますので、小さなお子様のいらっしゃる方もどうぞ気軽にご来店ください。 スタッフ一同、ご来店をお待ちしております。
- 電話でお問合せ(通話無料)
お問合せ先 :株式会社京都ライフ 京都ライフ西大路店
不動産会社情報
- 店舗の特徴
- 引越し業者紹介可
- 年中無休
- 系列店舗での対応可
- オンライン相談可
- 保証人不要な物件あり
- 法人契約取扱い
- 女性スタッフ対応可
- 駅から歩いて3分以内
電話でお問合せお客様の電話番号は不動産会社には通知されません
- 不動産会社に
つながります
お客様の電話番号は不動産会社に通知されません
- ※光IP電話、及びIP電話からはご利用になれません
- ※お電話によるお問合せは、店舗営業時間内にお願いします。つながらない場合は、お問合せフォームよりお問合せください
- ※不動産会社がお電話に出られなかった場合、お問合せいただいた後に不動産会社より折り返しのお電話がある場合がございます(お客様が非通知設定した場合は対象外です)
- ※株式会社LIFULLは電話会社が提供するサービスを介してお客様の発信者番号を受領後、折り返し専用の電話番号を発番してお問合せの不動産会社に通知します(お客様の発信者番号がお問合せの不動産会社に通知されることはございません)
- ※携帯電話からお問合せいただいた方に対し、株式会社LIFULLは電話会社が提供するメッセ―ジサービスを介してお客様の発信者番号を受領後、ショートメッセージ(SMS)またはLINE通知メッセージによるお問合せ内容に関する通知をお届けする場合があります
- ※お客様が通話中に不動産会社にお伝えになったお客様の個人情報及び、電話会社が発番する折り返し専用の電話番号は、お問合せ先不動産会社が資料送付・電子メール送信・電話連絡などの目的で保管する可能性があります。お問合せ先不動産会社が保管する個人情報の取扱いについては、各不動産会社に直接お問合せください
- ※株式会社LIFULLでは本サービスを円滑に運用するために、お客様の発信者番号をサービスご利用の控えとして一定期間保管いたします
- ※上記および株式会社LIFULLの個人情報の取扱い方針に同意のうえ、お電話ください
【LIFULL HOME'S物件番号】0150828-0079786【自社管理番号】13413-1-29
オンライン対応
オンライン内見・オンライン相談・IT重説に対応している物件です

「オンライン内見」「オンライン相談」「IT重説」とは?
物件の内見や不動産会社スタッフとの相談、契約前の重要事項説明をオンライン(ビデオ通話)で行うことができるサービスです。
オンライン内見
ビデオ通話で現地(物件)にいる不動産会社スタッフと映像・音声を使ってリアルタイムで会話しながら内見ができます。
オンライン相談
「物件について聞きたいことがある」など不動産会社スタッフへの相談もビデオ通話で行うことができます。
IT重説
契約前の重要事項説明(重説)をビデオ通話で行うことができます。
利用時の注意事項
- ビデオ通話については各不動産会社指定のものとなります。
- ビデオ通話利用時には通信が発生します。従量課金制通信サービスや通信量に上限があるネット回線・プランを利用する場合は、通信量にご注意ください。
- 通信速度やアプリの設定によってはビデオ通話の画質が低下することがあります。安定した画質で利用するためにも、Wi-Fi環境下での利用を推奨します。
- ご利用のビデオ通話アプリによっては、対象のOSやブラウザに制限がある場合があります。詳しくはお問合せ先不動産会社にご確認ください。
初期費用・月額費用をあわせて確認!この物件に住んだときの費用めやす
めやすを見るこの物件に住んだときの費用めやす
- 初期費用
- 月額費用
- 追加費用※ご確認ください
追加で費用が
かかる場合があります
必ずご確認ください
初期費用めやす約0円
追加で費用がかかります(※)敷金
60,000
- 礼金
60,000
賃料+共益費・管理費の1ヶ月分として換算
賃料の1ヶ月分+税として換算。不動産会社によって金額が異なるため正確な金額は不動産会社にお問合せください
※追加費用もチェック!
これらの項目以外にも費用がかかる場合があります。正確な金額は不動産会社にお問合せください。
- 初期費用
- 鍵交換費:不動産会社に要確認
- 室内清掃費:不動産会社に要確認
- 火災保険費:不動産会社に要確認
- 月額費用
- 駐車場費:16,500円(税込)※契約任意
- 保証会社
- 不動産会社に要確認
不動産会社より
桃山の好立地物件。 買い物充実、大手筋商店街まで徒歩圏内。
京阪伏見桃山駅まで徒歩8分の2DKです。JR、京阪、近鉄のトリプルアクセス。嬉しい3点セパレートなど充実の設備。コンビニ、スーパーなど近くにあって便利ですよ。 物件情報はもちろん京都のエリア情報まで幅広く対応させていただきます!
- 保存する
- 共有する
- ※各種情報と現状に差異がある場合は、現状優先となります
- ※不動産会社が入力した情報を基に物件の位置を表示しています。詳しくは不動産会社までお問合せください
- ※不動産会社の方からの上記電話番号によるお問合せはお断りしております。こちら不動産会社詳細からお問合せください
- ※LIFULL HOME'Sは物件鮮度No.1を目指していきます。閲覧中の物件が「成約済である」「実際の物件情報と異なる点がある」などの場合、「掲載110番」からお問合せください
- ※QRコードは株式会社デンソーウェーブの登録商標です
この物件を取扱う他の会社
LIFULL HOME'Sでは、主要項目が同一の物件をまとめて表示しています。所在地や営業時間、掲載画像等から不動産会社を選んでお問合せください。
LIFULL HOME'S 地図・周辺情報
買い物
- ファミリーマート 桃山御香宮前店
- フレスコ 桃山店
- マツモトキヨシ京阪伏見桃山駅店
- ローソン 伏見京町二丁目店
- ダイソー京阪伏見桃山駅前ビル店
グルメ
- コメダ珈琲店伏見桃山駅前店
- ドトールコーヒーショップ伏見桃山駅前店
- ミスタードーナツ 伏見大手筋ショップ
- マクドナルド 伏見桃山店
- なか卯 伏見桃山店
育児・教育
- 睦美幼稚園
- 京都市立桃山小学校
- 京都市立桃陵中学校
- 桃陵乳児保育園
- 京都市立向島小学校
医療
- 社会医療法人弘仁会大島病院
- 特定医療法人桃仁会桃仁会病院
- 社会福祉法人浩照会伏見桃山総合病院
- 社会医療法人岡本病院(財団)伏見岡本病院
- 医療法人健幸会むかいじま病院
公共施設・郵便局
- 伏見桃山郵便局
- 京都市伏見中央図書館
- 京都市伏見区役所
- 京都京町郵便局
- 京都市向島図書館
公園
- 宇治川公園
- 伏見桃山城運動公園
- 伏見北堀公園
- 三栖公園
- 向島東公園
利用可能な駅
- 徒歩10分以内
JR奈良線
- 桃山駅徒歩4分
近鉄京都線
- 桃山御陵前駅徒歩7分
京阪本線
- 伏見桃山駅徒歩8分
京阪宇治線
- 観月橋駅徒歩8分
- すべての駅
近鉄京都線
- 近鉄丹波橋駅徒歩12分
- 向島駅徒歩26分
- 伏見駅徒歩29分
- 竹田駅3.9km
京阪本線
- 丹波橋駅徒歩15分
- 中書島駅徒歩20分
- 墨染駅徒歩26分
- 藤森駅3.2km
京阪宇治線
- 桃山南口駅徒歩23分
- 六地蔵駅徒歩34分
- 木幡駅3.5km
JR奈良線
- JR藤森駅徒歩32分
- 六地蔵駅徒歩36分
- 木幡駅3.7km
- 周辺情報は2023年07月21日時点のものになります。
- 周辺情報は、参考情報としてのみご利用ください(周辺情報は、株式会社LIFULLが地図情報の提供事業者から提供を受けた情報とLIFULL HOME'Sの物件情報に基づき、独自の方法で抽出し提供しているものです。周辺情報は、移転や閉鎖等により情報が最新ではない、または正しくない場合がありますが、地図情報の提供事業者から提供された情報をそのまま周辺情報として表示しているため、正確かつ最新の情報へ修正することができないことがあります。)
- 周辺情報は、株式会社LIFULLが掲載するものであり、不動産物件情報を掲載している不動産会社が掲載するものではありません
- 交通情報の一部については、株式会社LIFULLが掲載するものであり、不動産物件情報を掲載している不動産会社が掲載するものではない場合があります。交通情報に関する質問などは株式会社LIFULLにお問合せください









