LIFULL HOME'Sは物件鮮度No.1!※評価について
夢ゾン鴨川 4階/506
5.5万円/管理費等5,000円
4時間前 更新
画像一覧
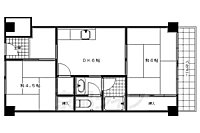
1/30間取り
2/30外観
3/30リビング/ダイニング
リビング
4/30リビング/ダイニング
リビング
5/30室内
洋室
6/30寝室
洋室
7/30寝室
洋室
8/30子供部屋
洋室
9/30キッチン
キッチン
10/30キッチン
キッチン
11/30キッチン
キッチン
12/30浴室
風呂
13/30浴室
風呂
14/30浴室
風呂
15/30トイレ
トイレ
16/30トイレ
トイレ
17/30収納
収納
18/30収納
収納
19/30設備
洗濯機置場
20/30玄関
玄関
21/30玄関
玄関
22/30バルコニー
ベランダ
23/30バルコニー
ベランダ
24/30その他
眺望
25/30その他
エアコン
26/30その他
給湯器リモコン
27/30その他
TVモニターフォン
28/30その他
給湯器
29/30周辺
フレスコ 今熊野店まで960メートル
30/30周辺
ファミリーマート 中井東福寺店まで610メートル
間取り
外観
リビング/ダイニング
リビング/ダイニング
室内
寝室
寝室
子供部屋
キッチン
キッチン
キッチン
浴室
浴室
浴室
トイレ
トイレ
収納
収納
設備
玄関
玄関
バルコニー
バルコニー
その他
その他
その他
その他
その他
周辺
周辺
お問合せ先 :株式会社エリッツ 六地蔵店
仲介手数料割引
ご成約時の仲介手数料が賃料の半月分(税別)です。
- 利用条件
- 株式会社エリッツ 六地蔵店で利用可
- 他特典との併用可
- 借主が法人または一部の物件は対象外です。
利用方法
来店時に本特典の画面をスマートフォンやタブレットでスタッフに提示、または画面印刷した用紙を提示ください。
有効期限 なし
リフォームしました、お風呂トイレ別のセパレート。--パノラマ掲載--
物件のこだわり/設備・条件
新築(非該当)
2階以上の物件(該当)
南向き(該当)
駐車場(非該当)
オートロック(非該当)
エアコン(該当)
バス・トイレ別(該当)
追焚機能(該当)
フローリング(該当)
ペット相談可(該当)
位置
角部屋入居条件
二人入居可、ペット相談、即入居可キッチン/バス・トイレ
設備・サービス
エアコン、クローゼット、インターネット対応、公営水道、プロパンガス、下水、フローリング、バルコニー、洗濯機置場あり、南面バルコニー、バイク置き場あり、駐輪場ありその他
初期費用カード決済可、住まい探し特典あり備考
【京阪本線 東福寺 徒歩8分】大規模リフォーム済み1LDKが募集開始。京阪・JR・市営地下鉄の3WAYアクセスが可能で通勤通学に便利です。周辺には公園も複数あり落ち着いたエリアとなっています。・インターネット接続可・町費(月額):330円・家賃保証料(月額):800円・駐輪ステッカー(初回):550円
物件周辺の生活情報
買い物
- コンビニ(610m)
- スーパー(960m)
その他施設
- 総合病院(710m)
交通
- 京阪本線 東福寺駅 徒歩8分
- 普通(停車)
- 区間急行(通過)
- 急行(通過)
- 特急(通過)
- 通勤準急・準急(停車)
- 快速特急 洛楽(通過)
- 通勤快急・快速急行(通過)
- JR奈良線 東福寺駅 徒歩8分
- 普通(停車)
- 区間快速(停車)
- 快速(停車)
- みやこ路快速(停車)
※急行等の停車駅情報について
急行等の停車駅に関するデータは、随時更新をしておりますが、最新の内容であることを保証するものではありません。
最新かつ正確な情報につきましては、各鉄道会社のウェブサイトにてご確認ください
物件周辺の口コミ
- 京都府京都市下京区屋形町に住む人の口コミ50代男性
交通の便は良く、家賃が安い反面、地元密着型の商業施設がほとんどなくなってしまった。披差別部落なので、ややこしい人もいるが関わらなければ問題はない
口コミを見る
この物件周辺に住む人の口コミ
口コミは、LIFULL HOME'Sが実際にこの物件の周辺に住む18歳~69歳の男女を対象に、WEBアンケート調査を実施しています。内容には回答者の主観的な表現が含まれる場合があるほか、事実と異なる場合もございます。ご了承ください。
- 京都府京都市下京区屋形町に住む人の口コミ50代男性
- 交通の便は良く、家賃が安い反面、地元密着型の商業施設がほとんどなくなってしまった。披差別部落なので、ややこしい人もいるが関わらなければ問題はない
- 京都府京都市下京区屋形町に住む人の口コミ30代男性
- 治安はいいとは言えないが駅、お店などが近くにあり、家賃なども安い方だと思います。
- 京都府京都市下京区屋形町に住む人の口コミ40代女性
- 子育ての中で、友達も出来たし困った時に、助け合える。病院、スーパーなど充実している。大きな不満は特になく過ごせているから。自然も全くない訳でもない。交通の便もよい。お年寄りが子供達を見守ってくれる。
- 京都府京都市東山区大和大路通五条下る2丁目東入に住む人の口コミ20代女性
- 山に囲まれていて自然があり、自宅周辺は治安が良い住宅街。ショッピングも徒歩圏内にある為、住みやすく満足。
- 京都府京都市東山区今熊野日吉町に住む人の口コミ50代女性
- 暑い時期でも、街中より2〜3℃低かったり、静かな住宅街なので夜寝やすい。
- 京都府京都市東山区今熊野宝蔵町に住む人の口コミ50代女性
- 交通の便が良く近くに食料品専門のスーパーがある。医療施設も比較的多い。少し足をのばせば有名な寺院があるので散策もでき。
- 京都府京都市東山区大和大路通五条下る東入に住む人の口コミ30代女性
- 交通の便もいいし、コンビニやスーパーなどもありとても便利で満足しているけれど、強いて言えばやはり家賃が高い。
- 京都府京都市下京区寺町通綾小路上るに住む人の口コミ60代女性
- 京都駅が近くて便利がいい観光地なので行きたい所がいっぱいある
- 京都府京都市東山区渋谷通東大路東入3丁目に住む人の口コミ20代女性
- 寺社仏閣、観光施設が多くあり、バスも多く走っているため楽しい。観光地なのでバイト先が多いところ、おいしい飲食店も多いところが好き。生活必需品を買う商業施設が近くにないところが少し満足できない点。
- 京都府京都市東山区大仏南門通大和大路東入2丁目に住む人の口コミ40代女性
- 京都駅に徒歩15分で行けるところ、飲食店が少ない、大きなスーパーがない。
物件概要
- 建物構造
- RC(鉄筋コンクリート)
- 駐車場
- 近隣 11,000円(税無) 物件からの距離480m
- 総戸数
- 18戸
- 契約形態
- -
- 契約期間
- 2年間
- 更新料
- 新賃料の1ヶ月分
- その他費用
- 鍵交換費用:33,000円、室内清掃費用:44,000円、抗菌施工代(初回):35,200円、その他(初回):5,280円、水道代(月額):2,200円
- 保証会社
加入要
保証会社利用料:31、265円
- 住宅保険
- 要
- 管理
- -
- LIFULL HOME'S
物件番号 - 0118323-0229324
- 自社管理番号
- 29482-0506
- 取引態様
- 仲介
- 会社名
- 株式会社エリッツ 六地蔵店
営業スタッフコメント

株式会社エリッツ 六地蔵店
三崎日向
元気に精一杯務めさせていただきます。
業界経験4年
資格少額短期保険募集人
- 会社実績や特徴・サービス情報
- エリッツは京都No.1の店舗数を誇りますので、宇治市内に限らず、京都ならどこでもご紹介・ご案内させて頂けます。賃貸物件をお探しの方は、是非エリッツ六地蔵店をご利用下さいませ。
エリッツは京都No.1の店舗数を誇りますので、宇治市内に限らず、京都ならどこでもご紹介・ご案内させて頂けます。賃貸物件をお探しの方は、是非エリッツ六地蔵店をご利用下さいませ。
- 電話でお問合せ(通話無料)
お問合せ先 :株式会社エリッツ 六地蔵店
不動産会社情報
株式会社エリッツ 六地蔵店賃貸のエリッツ六地蔵店

京都府宇治市六地蔵奈良町74番地1 パデシオン六地蔵 ザ・ミッドモール1階
京都地下鉄東西線 六地蔵駅 徒歩1分
- 営業時間
- 10:00~19:00
- 定休日
- 水曜日(祝日を除く)、年末年始 お部屋探しのお問い合わせは無休
優良店認定
エリッツは京都No.1の店舗数を誇りますので、宇治市内に限らず、京都ならどこでもご紹介・ご案内させて頂けます!!賃貸物件をお探しの方は、是非エリッツ六地蔵店をご利用下さいませ!
- 店舗の特徴
- 賃貸管理業務
- 引越し業者紹介可
- 駐車場あり
- バリアフリー
- 系列店舗での対応可
- オンライン相談可
- 保証人不要な物件あり
- 法人契約取扱い
- 駅から歩いて3分以内
電話でお問合せお客様の電話番号は不動産会社には通知されません
- 不動産会社に
つながります
お客様の電話番号は不動産会社に通知されません
- ※光IP電話、及びIP電話からはご利用になれません
- ※お電話によるお問合せは、店舗営業時間内にお願いします。つながらない場合は、お問合せフォームよりお問合せください
- ※不動産会社がお電話に出られなかった場合、お問合せいただいた後に不動産会社より折り返しのお電話がある場合がございます(お客様が非通知設定した場合は対象外です)
- ※株式会社LIFULLは電話会社が提供するサービスを介してお客様の発信者番号を受領後、折り返し専用の電話番号を発番してお問合せの不動産会社に通知します(お客様の発信者番号がお問合せの不動産会社に通知されることはございません)
- ※携帯電話からお問合せいただいた方に対し、株式会社LIFULLは電話会社が提供するメッセ―ジサービスを介してお客様の発信者番号を受領後、ショートメッセージ(SMS)またはLINE通知メッセージによるお問合せ内容に関する通知をお届けする場合があります
- ※お客様が通話中に不動産会社にお伝えになったお客様の個人情報及び、電話会社が発番する折り返し専用の電話番号は、お問合せ先不動産会社が資料送付・電子メール送信・電話連絡などの目的で保管する可能性があります。お問合せ先不動産会社が保管する個人情報の取扱いについては、各不動産会社に直接お問合せください
- ※株式会社LIFULLでは本サービスを円滑に運用するために、お客様の発信者番号をサービスご利用の控えとして一定期間保管いたします
- ※上記および株式会社LIFULLの個人情報の取扱い方針に同意のうえ、お電話ください
【LIFULL HOME'S物件番号】0118323-0229324【自社管理番号】29482-0506
オンライン対応
オンライン内見・オンライン相談・IT重説に対応している物件です

「オンライン内見」「オンライン相談」「IT重説」とは?
物件の内見や不動産会社スタッフとの相談、契約前の重要事項説明をオンライン(ビデオ通話)で行うことができるサービスです。
オンライン内見
ビデオ通話で現地(物件)にいる不動産会社スタッフと映像・音声を使ってリアルタイムで会話しながら内見ができます。
オンライン相談
「物件について聞きたいことがある」など不動産会社スタッフへの相談もビデオ通話で行うことができます。
IT重説
契約前の重要事項説明(重説)をビデオ通話で行うことができます。
利用時の注意事項
- ビデオ通話については各不動産会社指定のものとなります。
- ビデオ通話利用時には通信が発生します。従量課金制通信サービスや通信量に上限があるネット回線・プランを利用する場合は、通信量にご注意ください。
- 通信速度やアプリの設定によってはビデオ通話の画質が低下することがあります。安定した画質で利用するためにも、Wi-Fi環境下での利用を推奨します。
- ご利用のビデオ通話アプリによっては、対象のOSやブラウザに制限がある場合があります。詳しくはお問合せ先不動産会社にご確認ください。
初期費用・月額費用をあわせて確認!この物件に住んだときの費用めやす
めやすを見るこの物件に住んだときの費用めやす
- 初期費用
- 月額費用
- 追加費用※ご確認ください
追加で費用が
かかる場合があります
必ずご確認ください
初期費用めやす約0円
追加で費用がかかります(※)敷金
0
- 礼金
0
賃料+共益費・管理費の1ヶ月分として換算
賃料の1ヶ月分+税として換算。不動産会社によって金額が異なるため正確な金額は不動産会社にお問合せください
※追加費用もチェック!
これらの項目以外にも費用がかかる場合があります。正確な金額は不動産会社にお問合せください。
- 初期費用
- 鍵交換費:33,000円
- 室内清掃費:44,000円
- 火災保険費:不動産会社に要確認
- 月額費用
- 駐車場費:11,000円※近隣
- その他
- 抗菌施工代(初回):35200円
- その他(初回):5280円
- 水道代(月額):2200円
- 保証会社
- 31、265円
不動産会社より
リフォームしました、お風呂トイレ別のセパレート。--パノラマ掲載--
【京阪本線 東福寺 徒歩8分】大規模リフォーム済み1LDKが募集開始。京阪・JR・市営地下鉄の3WAYアクセスが可能で通勤通学に便利です。周辺には公園も複数あり落ち着いたエリアとなっています。・インターネット接続可・町費(月額):330円・家賃保証料(月額):800円・駐輪ステッカー(初回):550円
- 保存する
- 共有する
- ※各種情報と現状に差異がある場合は、現状優先となります
- ※不動産会社が入力した情報を基に物件の位置を表示しています。詳しくは不動産会社までお問合せください
- ※不動産会社の方からの上記電話番号によるお問合せはお断りしております。こちら不動産会社詳細からお問合せください
- ※LIFULL HOME'Sは物件鮮度No.1を目指していきます。閲覧中の物件が「成約済である」「実際の物件情報と異なる点がある」などの場合、「掲載110番」からお問合せください
- ※QRコードは株式会社デンソーウェーブの登録商標です
この物件を取扱う他の会社
LIFULL HOME'Sでは、主要項目が同一の物件をまとめて表示しています。所在地や営業時間、掲載画像等から不動産会社を選んでお問合せください。
株式会社京都ライフ 河原町四条店
京都府京都市中京区奈良屋町291-2 wise core BLD.1階
阪急京都本線 京都河原町駅 徒歩4分
- 営業時間
- 09:30~19:00
- 定休日
- 年中無休(盆正月を除く)
株式会社京都ライフ 京都駅前店
京都府京都市下京区塩小路通東洞院西入東塩小路町717-1 京都駅前ビル2階
JR東海道・山陽本線 京都駅 徒歩2分
- 営業時間
- 09:30~19:00
- 定休日
- 年中無休(盆正月を除く)
LIFULL HOME'S 地図・周辺情報
買い物
- ファミリーマート 中井東福寺店
- ドン・キホーテ 京都アバンティ店
- ダックス東山本町店
- ローソン 九条河原町店
- ダイソー京都アバンティ店
グルメ
- 廻転寿司京都CHOJIRO京都アバンティ店
- 和食さと 大石橋店
- マクドナルド 京都アバンティ店
- タリーズコーヒー京都アバンティ店
- クリスピークリームドーナツコトチカ京都店
育児・教育
- カトリック希望の家こども園
- 京都市立下京渉成小学校
- 京都市立東山泉小中学校(西学舎)
- 昭和保育園
- 京都市立九条弘道小学校
医療
- 京都第一赤十字病院
- 原田病院
- 医療法人財団康生会武田病院
- 医療法人財団医道会稲荷山武田病院
- 木津屋橋武田病院
公共施設・郵便局
- 京都本町郵便局
- 京都市南図書館
- 京都市下京区役所
- 京都赤十字病院内郵便局
- 京都市東山図書館
公園
- 梅小路公園
- 深草墓園
- 梅小路公園
- 唐橋西寺公園
- 円山公園
利用可能な駅
- 徒歩10分以内
京阪本線
- 東福寺駅徒歩8分
JR奈良線
- 東福寺駅徒歩8分
- すべての駅
京阪本線
- 七条駅徒歩13分
- 鳥羽街道駅徒歩18分
- 清水五条駅徒歩22分
- 伏見稲荷駅徒歩24分
- 龍谷大前深草駅徒歩30分
- 祇園四条駅徒歩32分
- 藤森駅3.3km
- 三条駅3.4km
京都市営烏丸線
- 九条駅徒歩13分
- 十条駅徒歩24分
- 五条駅徒歩28分
- くいな橋駅徒歩35分
- 四条駅3.2km
JR東海道・山陽本線
- 京都駅徒歩15分
近鉄京都線
- 東寺駅徒歩21分
- 十条駅徒歩29分
- 上鳥羽口駅徒歩35分
JR奈良線
- 稲荷駅徒歩27分
阪急京都本線
- 京都河原町駅徒歩34分
- 烏丸駅3.2km
- 大宮駅4km
JR山陰本線
- 梅小路京都西駅徒歩35分
- 丹波口駅3.6km
京福電気鉄道嵐山本線
- 四条大宮駅4.1km
- 周辺情報は2023年07月21日時点のものになります。
- 周辺情報は、参考情報としてのみご利用ください(周辺情報は、株式会社LIFULLが地図情報の提供事業者から提供を受けた情報とLIFULL HOME'Sの物件情報に基づき、独自の方法で抽出し提供しているものです。周辺情報は、移転や閉鎖等により情報が最新ではない、または正しくない場合がありますが、地図情報の提供事業者から提供された情報をそのまま周辺情報として表示しているため、正確かつ最新の情報へ修正することができないことがあります。)
- 周辺情報は、株式会社LIFULLが掲載するものであり、不動産物件情報を掲載している不動産会社が掲載するものではありません
- 交通情報の一部については、株式会社LIFULLが掲載するものであり、不動産物件情報を掲載している不動産会社が掲載するものではない場合があります。交通情報に関する質問などは株式会社LIFULLにお問合せください




















