LIFULL HOME'Sは物件鮮度No.1!※評価について
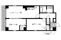
フルール川端(3階/2LDK/59.97m²)
フルール川端(3階/2LDK/59.97m²)
15.8万円/管理費等5,000円
10時間前 更新
画像一覧
1/30間取り
2/30外観
3/30外観
4/30リビング/ダイニング
リビング
5/30リビング/ダイニング
リビング
6/30室内
納戸
7/30寝室
納戸
8/30寝室
納戸
9/30子供部屋
納戸
10/30キッチン
キッチン
11/30キッチン
コンロ
12/30浴室
風呂
13/30浴室
風呂
14/30トイレ
トイレ
15/30洗面
洗面所
16/30収納
収納
17/30設備
下駄箱
18/30設備
洗濯機置場
19/30玄関
インターホン
20/30玄関
玄関
21/30バルコニー
ベランダ
22/30エントランス
エントランス
23/30その他
廊下
24/30その他
眺望
25/30その他
浴室乾燥機
26/30その他
給湯器リモコン
27/30その他
ドアフォン(TV含)
28/30周辺
フレスコ 川端店まで150メートル
29/30周辺
ローソン 川端二条店まで450メートル
30/30周辺
スギ薬局 京都市役所前店まで550メートル
間取り
外観
外観
リビング/ダイニング
リビング/ダイニング
室内
寝室
寝室
子供部屋
キッチン
キッチン
浴室
浴室
トイレ
洗面
収納
設備
設備
玄関
玄関
バルコニー
エントランス
その他
その他
その他
その他
その他
周辺
周辺
周辺
お問合せ先 :株式会社エリッツ 烏丸丸太町店
1〜4月は引越しシーズンのピークです。お問合せはお早めに!
住まい探し特典内容
電気・ガス・インターネットの手続き代行のご案内します。
- 利用条件
- 株式会社エリッツ 烏丸丸太町店で利用可
- 他特典との併用可
利用方法
来店時に本特典の画面をスマートフォンやタブレットでスタッフに提示、または画面印刷した用紙を提示ください。
有効期限 なし
ペットご相談可能ですよ。--パノラマ掲載--
物件のこだわり/設備・条件
新築(非該当)
2階以上の物件(該当)
南向き(該当)
駐車場(非該当)
オートロック(該当)
エアコン(該当)
バス・トイレ別(該当)
追焚機能(該当)
フローリング(該当)
ペット相談可(該当)
位置
角部屋入居条件
二人入居可、ペット相談- 上記以外や相談可の
詳細はお問合せください - 上記以外や相談可の詳細は
お電話ください(通話無料)電話でお問合せ キッチン/バス・トイレ
設備・サービス
オートロック、TVモニタ付インターホン、エアコン、クローゼット、シューズボックス、BS対応、公営水道、都市ガス、下水、フローリング、バルコニー、室内洗濯機置場、南面バルコニー、駐輪場ありその他
初期費用カード決済可、住まい探し特典あり備考
【錦林小学校区・岡崎中学校区】三条京阪から徒歩5分の距離にあるペット共生マンションです。魅力はペット相談可能であることだけでなく充実した設備環境と京阪・地下鉄の交通の便の良さです。 ペット相談条件:猫の場合は賃料3、000円アップ ハウスクリーニング58300円(退去時)・入居サポート(月額):1100円
物件周辺の生活情報
学校
- 錦林小学校(1,400m)
- 岡崎中学校(2,000m)
買い物
- コンビニ(450m)
- スーパー(150m)
- ドラッグストア(550m)
その他施設
- 総合病院(1,250m)
交通
- 京阪本線 三条駅 徒歩5分
- 普通(停車)
- 区間急行(通過)
- 急行(停車)
- 特急(停車)
- 通勤準急・準急(停車)
- 快速特急 洛楽(停車)
- 通勤快急・快速急行(停車)
- 京都地下鉄東西線 三条京阪駅 徒歩5分
- 普通(停車)
※急行等の停車駅情報について
急行等の停車駅に関するデータは、随時更新をしておりますが、最新の内容であることを保証するものではありません。
最新かつ正確な情報につきましては、各鉄道会社のウェブサイトにてご確認ください
物件周辺の口コミ
- 京都府京都市左京区孫橋通川端東入に住む人の口コミ40代女性
空き家は少なく、人口密度が低いわけではないと思うが、静かで清潔感がある。公共交通機関が充実していて、自家用車が無くても便利に移動できる。
口コミを見る
この物件周辺に住む人の口コミ
口コミは、LIFULL HOME'Sが実際にこの物件の周辺に住む18歳~69歳の男女を対象に、WEBアンケート調査を実施しています。内容には回答者の主観的な表現が含まれる場合があるほか、事実と異なる場合もございます。ご了承ください。
- 京都府京都市左京区孫橋通川端東入に住む人の口コミ40代女性
- 空き家は少なく、人口密度が低いわけではないと思うが、静かで清潔感がある。公共交通機関が充実していて、自家用車が無くても便利に移動できる。
- 京都府京都市上京区寺町通丸太町上る東入に住む人の口コミ30代男性
- 交通に便利だが近くに品揃えがいいスーパーがないし、買い物できるところが少ない
- 京都府京都市中京区二条通麩屋町下るに住む人の口コミ40代女性
- 交通の便利や治安の良さ、静かな所は満足しているが、近くに大きなスーパーが無い、スーパーや飲食店の価格が高い点
- 京都府京都市左京区岡崎徳成町に住む人の口コミ50代男性
- 国立大学2校 公立大学2校 私立有名大学1校が自転車で通える。東京の文京区より文化レベルが高い。西日本では最も住みやすい安全なところです
- 京都府京都市中京区御池通富小路西入に住む人の口コミ50代男性
- 木像二階建京町屋で前庭中庭付部屋は3人家族で9つその他に調理場、物置、風呂、トイレ2箇所、10畳の自部屋の丸窓からは見越しの松で鳴くセミや鴨川からの赤トンボが休む様子をロッキングチェアで見る事が出来る
- 京都府京都市中京区御幸町通三条上るに住む人の口コミ40代女性
- 交通の便がよく、川も山も御所もあり、リラックスできるし、買い物も便利だから。
- 京都府京都市左京区聖護院山王町に住む人の口コミ30代女性
- 交通は便利で、四季も感じられて、いい場所に住んでいると思う。でも、近くに安いスーパーが無い。
- 京都府京都市左京区川端通丸太町東入下るに住む人の口コミ30代女性
- 大通りのある住宅街で、治安・環境ともにいいなと感じているから。
- 京都府京都市中京区御池通麩屋町東入に住む人の口コミ50代女性
- 夫の会社に歩いて5分。地下鉄の駅も近く、バス路線も多い。少し南になると観光客でいっぱいだが、このあたりは静か。医者や買い物の便もいい。
- 京都府京都市中京区富小路通六角上るに住む人の口コミ50代女性
- 大きな災害がないこと。車に頼らずとも移動が可能なこと。街のあちこちに歴史を感じられる史跡があること。
物件概要
- 建物構造
- RC(鉄筋コンクリート)
- 駐車場
- 近隣 22,000円(税込) 物件からの距離381m
- 総戸数
- 6戸
- 契約形態
- -
- 契約期間
- 2年間
- 更新料
- -
- その他費用
- 抗菌施工代(初回):22,000円、その他(初回):3,300円、町費(月額):350円
- 保証会社
加入要
保証会社利用料:82、225円
- 住宅保険
- 要
- 管理
- -
- LIFULL HOME'S
物件番号 - 0110589-0358414
- 自社管理番号
- 84474-0302
- 取引態様
- 仲介
- 会社名
- 株式会社エリッツ 烏丸丸太町店
営業スタッフコメント

株式会社エリッツ 烏丸丸太町店主任
中村
親切丁寧にご対応致します。
業界経験12年
- スタッフ情報
- エリッツ烏丸丸太町店では、中京区・上京区の物件知識を豊富に備えたスタッフが多数在籍しております。もちろん、京都市内以外でもお探しさせて頂く事が可能です。 スタッフ一同、お客様のご来店をお待ちしております。
エリッツ烏丸丸太町店では、中京区・上京区の物件知識を豊富に備えたスタッフが多数在籍しております。もちろん、京都市内以外でもお探しさせて頂く事が可能です。 スタッフ一同、お客様のご来店をお待ちしております。
- 電話でお問合せ(通話無料)
お問合せ先 :株式会社エリッツ 烏丸丸太町店
不動産会社情報
株式会社エリッツ 烏丸丸太町店賃貸のエリッツ烏丸丸太町店

京都府京都市中京区丸太町通東洞院西入光り堂町426 ピア御所1階
京都市営烏丸線 丸太町駅 徒歩1分
- 営業時間
- 10:00~19:00
- 定休日
- 火・水曜日 (祝日を除く)、 ※部屋探しのお問い合わせは無休
優良店認定
京都でお部屋探しなら、取り扱い物件数No.1「エリッツ」の烏丸丸太町店へ!学生様・社会人様・ご家族様、法人様などなど、豊富な物件情報と市内最多の店舗数ですべてのお客様の「夢」を叶えます!
- 店舗の特徴
- 引越し業者紹介可
- 系列店舗での対応可
- オンライン相談可
- 保証人不要な物件あり
- 法人契約取扱い
- 駅から歩いて3分以内
電話でお問合せお客様の電話番号は不動産会社には通知されません
- 不動産会社に
つながります
お客様の電話番号は不動産会社に通知されません
- ※光IP電話、及びIP電話からはご利用になれません
- ※お電話によるお問合せは、店舗営業時間内にお願いします。つながらない場合は、お問合せフォームよりお問合せください
- ※不動産会社がお電話に出られなかった場合、お問合せいただいた後に不動産会社より折り返しのお電話がある場合がございます(お客様が非通知設定した場合は対象外です)
- ※株式会社LIFULLは電話会社が提供するサービスを介してお客様の発信者番号を受領後、折り返し専用の電話番号を発番してお問合せの不動産会社に通知します(お客様の発信者番号がお問合せの不動産会社に通知されることはございません)
- ※携帯電話からお問合せいただいた方に対し、株式会社LIFULLは電話会社が提供するメッセ―ジサービスを介してお客様の発信者番号を受領後、ショートメッセージ(SMS)またはLINE通知メッセージによるお問合せ内容に関する通知をお届けする場合があります
- ※お客様が通話中に不動産会社にお伝えになったお客様の個人情報及び、電話会社が発番する折り返し専用の電話番号は、お問合せ先不動産会社が資料送付・電子メール送信・電話連絡などの目的で保管する可能性があります。お問合せ先不動産会社が保管する個人情報の取扱いについては、各不動産会社に直接お問合せください
- ※株式会社LIFULLでは本サービスを円滑に運用するために、お客様の発信者番号をサービスご利用の控えとして一定期間保管いたします
- ※上記および株式会社LIFULLの個人情報の取扱い方針に同意のうえ、お電話ください
【LIFULL HOME'S物件番号】0110589-0358414【自社管理番号】84474-0302
オンライン対応
オンライン相談・IT重説に対応している物件です

「オンライン内見」「オンライン相談」「IT重説」とは?
物件の内見や不動産会社スタッフとの相談、契約前の重要事項説明をオンライン(ビデオ通話)で行うことができるサービスです。
オンライン内見
ビデオ通話で現地(物件)にいる不動産会社スタッフと映像・音声を使ってリアルタイムで会話しながら内見ができます。
オンライン相談
「物件について聞きたいことがある」など不動産会社スタッフへの相談もビデオ通話で行うことができます。
IT重説
契約前の重要事項説明(重説)をビデオ通話で行うことができます。
利用時の注意事項
- ビデオ通話については各不動産会社指定のものとなります。
- ビデオ通話利用時には通信が発生します。従量課金制通信サービスや通信量に上限があるネット回線・プランを利用する場合は、通信量にご注意ください。
- 通信速度やアプリの設定によってはビデオ通話の画質が低下することがあります。安定した画質で利用するためにも、Wi-Fi環境下での利用を推奨します。
- ご利用のビデオ通話アプリによっては、対象のOSやブラウザに制限がある場合があります。詳しくはお問合せ先不動産会社にご確認ください。
初期費用・月額費用をあわせて確認!この物件に住んだときの費用めやす
めやすを見るこの物件に住んだときの費用めやす
- 初期費用
- 月額費用
- 追加費用※ご確認ください
追加で費用が
かかる場合があります
必ずご確認ください
初期費用めやす約0円
追加で費用がかかります(※)敷金
0
- 礼金
158,000
賃料+共益費・管理費の1ヶ月分として換算
賃料の1ヶ月分+税として換算。不動産会社によって金額が異なるため正確な金額は不動産会社にお問合せください
※追加費用もチェック!
これらの項目以外にも費用がかかる場合があります。正確な金額は不動産会社にお問合せください。
- 初期費用
- 鍵交換費:不動産会社に要確認
- 室内清掃費:不動産会社に要確認
- 火災保険費:不動産会社に要確認
- 月額費用
- 駐車場費:22,000円(税込)※近隣
- その他
- 抗菌施工代(初回):22000円
- その他(初回):3300円
- 町費(月額):350円
- 保証会社
- 82、225円
不動産会社より
ペットご相談可能ですよ。--パノラマ掲載--
【錦林小学校区・岡崎中学校区】三条京阪から徒歩5分の距離にあるペット共生マンションです。魅力はペット相談可能であることだけでなく充実した設備環境と京阪・地下鉄の交通の便の良さです。 ペット相談条件:猫の場合は賃料3、000円アップ ハウスクリーニング58300円(退去時)・入居サポート(月額):1100円
- 保存する
- 共有する
- ※各種情報と現状に差異がある場合は、現状優先となります
- ※不動産会社が入力した情報を基に物件の位置を表示しています。詳しくは不動産会社までお問合せください
- ※不動産会社の方からの上記電話番号によるお問合せはお断りしております。こちら不動産会社詳細からお問合せください
- ※LIFULL HOME'Sは物件鮮度No.1を目指していきます。閲覧中の物件が「成約済である」「実際の物件情報と異なる点がある」などの場合、「掲載110番」からお問合せください
- ※QRコードは株式会社デンソーウェーブの登録商標です
この物件を取扱う他の会社
LIFULL HOME'Sでは、主要項目が同一の物件をまとめて表示しています。所在地や営業時間、掲載画像等から不動産会社を選んでお問合せください。
株式会社エリッツ 二条駅前店
優良店認定
京都府京都市中京区西ノ京職司町18−1 KOTO二条1F
JR山陰本線 二条駅 徒歩3分
- 営業時間
- 10:00~19:00
- 定休日
- 年中無休(年末年始を除く)
株式会社エリッツ 山科店
優良店認定
京都府京都市山科区竹鼻竹ノ街道町42−2 オフィス山科1F
JR東海道・山陽本線 山科駅 徒歩6分
- 営業時間
- 10:00~19:00
- 定休日
- 年中無休(年末年始を除く)
株式会社エリッツ 京都大学前店
京都府京都市左京区田中門前町88 シェモア百万遍1F
京阪本線 出町柳駅 百万遍下車 徒歩1分
- 営業時間
- 10:00~19:00
- 定休日
- 水曜日(祝日を除く)、年末年始 ※部屋探しのお問い合わせは無休
株式会社エリッツ 四条大宮店
優良店認定
京都府京都市中京区壬生坊城町1−10 宮崎ビル1F
阪急京都本線 大宮駅 徒歩2分
- 営業時間
- 10:00~19:00
- 定休日
- 水曜日(祝日を除く)、年末年始 ※部屋探しのお問い合わせは無休
株式会社エリッツ 京都駅前店
優良店認定
京都府京都市下京区塩小路通東洞院東入東塩小路町547番地 ステーションコートヤード1階
JR東海道・山陽本線 京都駅 徒歩2分
- 営業時間
- 10:00~19:00
- 定休日
- 年中無休(年末年始を除く)
LIFULL HOME'S 地図・周辺情報
買い物
- ファミリーマート 京阪三条店
- フレスコ 川端店
- スギ薬局京都市役所前店
- デイリーヤマザキ 三条京阪店
- ワッツ京阪三条店
グルメ
- しゃぶしゃぶ温野菜三条鴨川店
- ドトールコーヒーショップ京阪三条店
- スターバックスコーヒー京都三条大橋店
- ドトールコーヒーショップ京阪三条店
- 小川珈琲京都三条店
育児・教育
- だん王保育園
- 私立京都文教短期大学付属小学校
- 私立京都文教中学校
- 京都カトリック信愛幼稚園
- 京都市立御所東小学校
医療
- 貴順会吉川病院
- 京都大学医学部附属病院
- 医療法人財団足立病院
- 京都大原記念病院グループ京都近衛リハビリテーション病院
- 京都府立医科大学附属病院
公共施設・郵便局
- 京都二条川端郵便局
- 京都府立図書館
- 京都市役所
- 京都三条大橋郵便局
- 京都市こどもみらい館子育て図書館
公園
- 岡崎公園
- 円山公園
- 円山公園
- 京都御苑
- 梅屋広場公園
利用可能な駅
- 徒歩10分以内
京阪本線
- 三条駅徒歩5分
- 神宮丸太町駅徒歩10分
京都地下鉄東西線
- 三条京阪駅徒歩5分
- 京都市役所前駅徒歩7分
- すべての駅
京都地下鉄東西線
- 東山駅徒歩11分
- 烏丸御池駅徒歩18分
- 蹴上駅徒歩25分
- 二条城前駅徒歩29分
京阪本線
- 祇園四条駅徒歩14分
- 清水五条駅徒歩24分
- 出町柳駅徒歩25分
- 七条駅徒歩33分
京都市営烏丸線
- 烏丸御池駅徒歩17分
- 丸太町駅徒歩22分
- 四条駅徒歩28分
- 五条駅徒歩36分
- 今出川駅3.3km
阪急京都本線
- 京都河原町駅徒歩18分
- 烏丸駅徒歩28分
- 大宮駅3.2km
JR山陰本線
- 二条駅3.2km
京福電気鉄道嵐山本線
- 四条大宮駅3.4km
叡山電鉄叡山本線
- 元田中駅3.4km
- その他交通
- 近鉄京都線 京都駅 バス20分 三条京阪前下車 徒歩5分
- 周辺情報は2023年07月21日時点のものになります。
- 周辺情報は、参考情報としてのみご利用ください(周辺情報は、株式会社LIFULLが地図情報の提供事業者から提供を受けた情報とLIFULL HOME'Sの物件情報に基づき、独自の方法で抽出し提供しているものです。周辺情報は、移転や閉鎖等により情報が最新ではない、または正しくない場合がありますが、地図情報の提供事業者から提供された情報をそのまま周辺情報として表示しているため、正確かつ最新の情報へ修正することができないことがあります。)
- 周辺情報は、株式会社LIFULLが掲載するものであり、不動産物件情報を掲載している不動産会社が掲載するものではありません
- 交通情報の一部については、株式会社LIFULLが掲載するものであり、不動産物件情報を掲載している不動産会社が掲載するものではない場合があります。交通情報に関する質問などは株式会社LIFULLにお問合せください
















