LIFULL HOME'Sは物件鮮度No.1!※評価について
近鉄京都線 十条駅 徒歩10分(3階/1DK/30.6m²)
近鉄京都線 十条駅 徒歩10分(3階/1DK/30.6m²)
6.75万円/管理費等9,000円
20時間前 更新
画像一覧
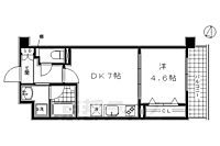
1/30間取り
間取
2/30外観
3/30外観
4/30リビング/ダイニング
5/30リビング/ダイニング
6/30リビング/ダイニング
7/30リビング/ダイニング
8/30キッチン
9/30キッチン
10/30キッチン
11/30キッチン
12/30浴室
13/30トイレ
14/30洗面
15/30収納
16/30収納
17/30設備
18/30設備
19/30設備
20/30玄関
21/30バルコニー
22/30エントランス
23/30駐車場
24/30駐車場
25/30その他
26/30その他
27/30その他
28/30その他
29/30その他
30/30周辺
セブンイレブン京都西九条菅田町店まで250m
間取り
外観
外観
リビング/ダイニング
リビング/ダイニング
リビング/ダイニング
リビング/ダイニング
キッチン
キッチン
キッチン
キッチン
浴室
トイレ
洗面
収納
収納
設備
設備
設備
玄関
バルコニー
エントランス
駐車場
駐車場
その他
その他
その他
その他
その他
周辺
LINEチャットでも
相談できます
お問合せ先 :ウインズリンク株式会社 アパマンショップ四条烏丸店
1〜4月は引越しシーズンのピークです。お問合せはお早めに!
仲介手数料割引
仲介手数料50%(税別、個人居住用に限り)
- 利用条件
- ウインズリンク株式会社 アパマンショップ四条烏丸店で利用可
- 他特典との併用可
利用方法
来店時に本特典の画面をスマートフォンやタブレットでスタッフに提示、または画面印刷した用紙を提示ください。
有効期限 なし
インターネット無料 生活に便利な十条大宮交差点の近くです
物件のこだわり/設備・条件
新築(非該当)
2階以上の物件(該当)
南向き(非該当)
駐車場あり(該当)
オートロック(該当)
エアコン(該当)
バス・トイレ別(該当)
追焚機能(非該当)
フローリング(該当)
ペット相談(非該当)
位置
角部屋入居条件
単身者限定、保証人不要キッチン/バス・トイレ
設備・サービス
オートロック、防犯カメラ、TVモニタ付インターホン、エアコン、シューズボックス、BS対応、光ファイバー、インターネット使用料無料、公営水道、都市ガス、下水、フローリング、バルコニー、室内洗濯機置場、エレベーター、ゴミ出し24時間OK、宅配ボックス、駐車場あり、駐輪場ありその他
住まい探し特典あり備考
「京都駅前店のこだわり…室内写真は広角レンズ等を使わずに出来る限り現状のお部屋をお伝え出来るよう撮影してます。」単身マンションながら高温差し湯追炊き機能付きのバスルームを完備、ガスシステムキッチン・浴室乾燥機・温水洗浄便座等ばっちり揃ってます 家庭ゴミ回収も日・祝除き毎日あり、地下鉄・近鉄・JR各線の駅から、大通りだけの通行で帰宅できる点も魅力です。お問い合わせはアパマンショップ京都駅前店ま...
物件周辺の生活情報
買い物
- コンビニ(250m)
- スーパー(475m)
- ドラッグストア(550m)
その他施設
- 総合病院(435m)
- 銀行(80m)
- 和食さと上鳥羽店(555m)
交通
- 近鉄京都線 十条駅 徒歩10分
- 普通(停車)
- 準急(通過)
- 急行(通過)
- 京都市営烏丸線 十条駅 徒歩17分
- 普通(停車)
- 急行(停車)
※急行等の停車駅情報について
急行等の停車駅に関するデータは、随時更新をしておりますが、最新の内容であることを保証するものではありません。
最新かつ正確な情報につきましては、各鉄道会社のウェブサイトにてご確認ください
物件周辺の口コミ
- 京都府京都市南区八条内田町に住む人の口コミ20代女性
徒歩でも行ける範囲で買い物する場所や病院が揃っているため。また静かな住宅地のため。
口コミを見る
この物件周辺に住む人の口コミ
口コミは、LIFULL HOME'Sが実際にこの物件の周辺に住む18歳~69歳の男女を対象に、WEBアンケート調査を実施しています。内容には回答者の主観的な表現が含まれる場合があるほか、事実と異なる場合もございます。ご了承ください。
- 京都府京都市南区八条内田町に住む人の口コミ20代女性
- 徒歩でも行ける範囲で買い物する場所や病院が揃っているため。また静かな住宅地のため。
- 京都府京都市南区唐橋門脇町に住む人の口コミ30代女性
- 学校、病院、スーパーなど子育てしやすい環境であるし駅も近くて便利です。
- 京都府京都市南区西九条島町に住む人の口コミ30代男性
- 家のすぐ近くに大型商業施設があり、駅もあるので生活に全く困らない
- 京都府京都市南区吉祥院九条町に住む人の口コミ30代女性
- 近くに大型スーパーや業務用スーパー、24時間営業のスーパーがあり、駅からも近い。自転車で行ける距離に映画館や大きな郵便局もあるので。
- 京都府京都市南区西九条川原城町に住む人の口コミ30代女性
- 治安のよい閑静な住宅街で、かつ、大きな駅やショッピングモールにもそこそこ近い。街中に出るのは少し不便だが、家賃が安いので、まあ満足している。
- 京都府京都市南区吉祥院三ノ宮町に住む人の口コミ30代女性
- 交通の便もよく、自然も近くにある。ファミリー層も多いため住みやすい。
- 京都府京都市南区西九条針小路町に住む人の口コミ20代女性
- 家の目と鼻の先にショッピングモールがあるので買い物に不自由なく暮らせて満足しています。
- 京都府京都市南区唐橋南琵琶町に住む人の口コミ20代女性
- 産まれたころから住んでいるのですみやすい。コンビニ、イオン、映画館等、近所にあるため、充実した休日を地元周辺ですごすことができる。
- 京都府京都市南区西九条蔵王町に住む人の口コミ30代女性
- 交通の便が良い、近くにスーパーがある。が、一応徒歩圏内ではあるものの、品揃えの良い商業施設までは少し距離がある。
- 京都府京都市南区唐橋井園町に住む人の口コミ30代女性
- 静かで住みやすいがタクシーで地名を告げても通じないことが多く困る
物件概要
- 建物構造
- RC(鉄筋コンクリート)
- 駐車場
- 空有 10,000円(税込)
- 総戸数
- 26戸
- 契約形態
- -
- 契約期間
- 2年間
- 更新料
- 新賃料の1ヶ月分
- その他費用
- 鍵交換費用:27,500円、室内清掃費用:44,000円、水道代:2,750円、抗菌除菌処理代:16,500円
- 保証会社
加入要
保証会社:クレディセゾン
保証会社利用料:初回:月額賃料等の50%、月額:保証料として月額賃料等の1%
- 住宅保険
- 要
- 管理
- -
- LIFULL HOME'S
物件番号 - 0113626-0289981
- 自社管理番号
- 90799-301-62
- 取引態様
- 仲介
- 会社名
- ウインズリンク株式会社 アパマンショップ四条烏丸店
営業スタッフコメント

ウインズリンク株式会社 アパマンショップ四条烏丸店営業
村井零士
何でも一生懸命がモットーです!
業界経験4年
- 会社実績や特徴・サービス情報
- アパマンショップ四条烏丸店では京都市内中心部・阪急・地下鉄・京阪沿線の物件多数取り扱っております。 全力でお客様のお部屋探しをサポートさせて頂きますので、アパマンショップ四条烏丸店までお気軽にお問い合わせ下さいませ。 事務所・店舗・高額賃貸マンションまで賃貸というカテゴリーでもご相談下さいませ。 当店では外国語対応のスタッフも在籍しております。 京都の賃貸でしたらアパマンショップ四条烏丸店にお任せください。
アパマンショップ四条烏丸店では京都市内中心部・阪急・地下鉄・京阪沿線の物件多数取り扱っております。 全力でお客様のお部屋探しをサポートさせて頂きますので、アパマンショップ四条烏丸店までお気軽にお問い合わせ下さいませ。 事務所・店舗・高額賃貸マンションまで賃貸というカテゴリーでもご相談下さいませ。 当店では外国語対応のスタッフも在籍しております。 京都の賃貸でしたらアパマンショップ四条烏丸店にお任せください。
- 電話でお問合せ(通話無料)
お問合せ先 :ウインズリンク株式会社 アパマンショップ四条烏丸店
不動産会社情報
ウインズリンク株式会社 アパマンショップ四条烏丸店アパマンショップ四条烏丸店
京都府京都市下京区月鉾町47−3
京都市営烏丸線 四条駅 徒歩3分
- 営業時間
- 09:30~19:00
- 定休日
- なし(盆休み8/13〜8/16・年末年始12/27〜1/4)
京都市一円の物件情報のご提供やご案内。社宅代行有無に関らず法人契約にも即ご対応いたします。女性のお客様には女性スタッフにてのご対応できます。お部屋探しはぜひアパマンショップ四条烏丸店にお任せください。
- 店舗の特徴
- 賃貸管理業務
- 24時間管理物件取扱い
- リフォーム対応
- 引越し業者紹介可
- 年中無休
- 保証人不要な物件あり
- 法人契約取扱い
- 女性スタッフ対応可
- 19時以降も営業
- 駅から歩いて3分以内
電話でお問合せお客様の電話番号は不動産会社には通知されません
- 不動産会社に
つながります
お客様の電話番号は不動産会社に通知されません
- ※光IP電話、及びIP電話からはご利用になれません
- ※お電話によるお問合せは、店舗営業時間内にお願いします。つながらない場合は、お問合せフォームよりお問合せください
- ※不動産会社がお電話に出られなかった場合、お問合せいただいた後に不動産会社より折り返しのお電話がある場合がございます(お客様が非通知設定した場合は対象外です)
- ※株式会社LIFULLは電話会社が提供するサービスを介してお客様の発信者番号を受領後、折り返し専用の電話番号を発番してお問合せの不動産会社に通知します(お客様の発信者番号がお問合せの不動産会社に通知されることはございません)
- ※携帯電話からお問合せいただいた方に対し、株式会社LIFULLは電話会社が提供するメッセ―ジサービスを介してお客様の発信者番号を受領後、ショートメッセージ(SMS)またはLINE通知メッセージによるお問合せ内容に関する通知をお届けする場合があります
- ※お客様が通話中に不動産会社にお伝えになったお客様の個人情報及び、電話会社が発番する折り返し専用の電話番号は、お問合せ先不動産会社が資料送付・電子メール送信・電話連絡などの目的で保管する可能性があります。お問合せ先不動産会社が保管する個人情報の取扱いについては、各不動産会社に直接お問合せください
- ※株式会社LIFULLでは本サービスを円滑に運用するために、お客様の発信者番号をサービスご利用の控えとして一定期間保管いたします
- ※上記および株式会社LIFULLの個人情報の取扱い方針に同意のうえ、お電話ください
【LIFULL HOME'S物件番号】0113626-0289981【自社管理番号】90799-301-62
初期費用・月額費用をあわせて確認!この物件に住んだときの費用めやす
めやすを見るこの物件に住んだときの費用めやす
- 初期費用
- 月額費用
- 追加費用※ご確認ください
追加で費用が
かかる場合があります
必ずご確認ください
初期費用めやす約0円
追加で費用がかかります(※)敷金
0
- 礼金
100,000
賃料+共益費・管理費の1ヶ月分として換算
賃料の1ヶ月分+税として換算。不動産会社によって金額が異なるため正確な金額は不動産会社にお問合せください
※追加費用もチェック!
これらの項目以外にも費用がかかる場合があります。正確な金額は不動産会社にお問合せください。
- 初期費用
- 鍵交換費:27,500円
- 室内清掃費:44,000円
- 火災保険費:不動産会社に要確認
- 月額費用
- 駐車場費:10,000円(税込)※契約任意
- その他
- 水道代:2750円
- 抗菌除菌処理代:16500円
- 保証会社
- 初回:月額賃料等の50%、月額:保証料として月額賃料等の1%
不動産会社より
インターネット無料 生活に便利な十条大宮交差点の近くです
「京都駅前店のこだわり…室内写真は広角レンズ等を使わずに出来る限り現状のお部屋をお伝え出来るよう撮影してます。」単身マンションながら高温差し湯追炊き機能付きのバスルームを完備、ガスシステムキッチン・浴室乾燥機・温水洗浄便座等ばっちり揃ってます 家庭ゴミ回収も日・祝除き毎日あり、地下鉄・近鉄・JR各線の駅から、大通りだけの通行で帰宅できる点も魅力です。お問い合わせはアパマンショップ京都駅前店ま...
- 保存する
- 共有する
- ※各種情報と現状に差異がある場合は、現状優先となります
- ※不動産会社が入力した情報を基に物件の位置を表示しています。詳しくは不動産会社までお問合せください
- ※不動産会社の方からの上記電話番号によるお問合せはお断りしております。こちら不動産会社詳細からお問合せください
- ※LIFULL HOME'Sは物件鮮度No.1を目指していきます。閲覧中の物件が「成約済である」「実際の物件情報と異なる点がある」などの場合、「掲載110番」からお問合せください
- ※QRコードは株式会社デンソーウェーブの登録商標です
したい暮らしのタグから探す
この物件を取扱う他の会社
LIFULL HOME'Sでは、主要項目が同一の物件をまとめて表示しています。所在地や営業時間、掲載画像等から不動産会社を選んでお問合せください。
ウインズリンク株式会社 アパマンショップ山科店
優良店認定
京都府京都市山科区安朱南屋敷町19-11
JR東海道・山陽本線 山科駅 徒歩2分
- 営業時間
- 09:30~19:00
- 定休日
- なし(盆休み8/13〜8/16・年末年始12/27〜1/4)
ウインズリンク株式会社 アパマンショップ西院店
優良店認定
京都府京都市右京区西院巽町41
阪急京都本線 西院駅 徒歩1分
- 営業時間
- 09:30~19:00
- 定休日
- なし(盆休み8/13〜8/16・年末年始12/27〜1/4)
ウインズリンク株式会社 アパマンショップ河原町三条店
京都府京都市中京区河原町通三条上る恵比須町435番地5
京都地下鉄東西線 京都市役所前駅 徒歩3分
- 営業時間
- 09:30~19:00
- 定休日
- 年中無休(盆・正月を除く)
株式会社エリッツ 伏見桃山店
優良店認定
京都府京都市伏見区観音寺町212-1 伏見ビル1階
近鉄京都線 桃山御陵前駅 徒歩1分
- 営業時間
- 10:00~19:00
- 定休日
- 年中無休(年末年始を除く)
LIFULL HOME'S 地図・周辺情報
買い物
- セブンイレブン 京都西九条菅田町店
- コーナンPRO東寺南店
- ディスカウントドラッグコスモス祥栄店
- ローソン 京都南区役所前店
- パケット 十条店
グルメ
- ジョリーパスタ 西九条店
- ステーキのどん 十条新千本店
- マクドナルド 十条大宮店
- 熟成焼肉いちばん吉祥院店
- 和食さと 上鳥羽店
育児・教育
- 塔南保育園
- 京都市立九条塔南小学校
- 京都市立洛南中学校
- 京都市南保育所
- 京都市立南大内小学校
医療
- 医療法人財団医道会十条武田リハビリテーション病院
- 洛和会ヘルスケアシステム洛和会東寺南病院
- 光仁病院
- 医療法人同仁会(社団)京都九条病院
- 医療法人財団今井会第二足立病院
公共施設・郵便局
- 京都羅城門郵便局
- 京都市吉祥院図書館
- 京都市南区役所
- 京都東寺郵便局
- 京都市南図書館
公園
- 唐橋西寺公園
- 梅小路公園
- 梅小路公園
- 東向公園
- 深草西浦南公園
利用可能な駅
- 徒歩10分以内
近鉄京都線
- 十条駅徒歩10分
- すべての駅
京都市営烏丸線
- 十条駅徒歩17分
- 九条駅徒歩26分
- くいな橋駅徒歩30分
- 五条駅4km
近鉄京都線
- 東寺駅徒歩19分
- 上鳥羽口駅徒歩21分
- 竹田駅徒歩36分
JR東海道・山陽本線
- 西大路駅徒歩23分
- 京都駅徒歩32分
京阪本線
- 鳥羽街道駅徒歩32分
- 伏見稲荷駅徒歩35分
- 龍谷大前深草駅3.4km
- 七条駅4.1km
- 藤森駅4.1km
JR山陰本線
- 梅小路京都西駅徒歩33分
- 丹波口駅3.4km
JR奈良線
- 稲荷駅3.1km
- 東福寺駅3.3km
- 周辺情報は2023年07月21日時点のものになります。
- 周辺情報は、参考情報としてのみご利用ください(周辺情報は、株式会社LIFULLが地図情報の提供事業者から提供を受けた情報とLIFULL HOME'Sの物件情報に基づき、独自の方法で抽出し提供しているものです。周辺情報は、移転や閉鎖等により情報が最新ではない、または正しくない場合がありますが、地図情報の提供事業者から提供された情報をそのまま周辺情報として表示しているため、正確かつ最新の情報へ修正することができないことがあります。)
- 周辺情報は、株式会社LIFULLが掲載するものであり、不動産物件情報を掲載している不動産会社が掲載するものではありません
- 交通情報の一部については、株式会社LIFULLが掲載するものであり、不動産物件情報を掲載している不動産会社が掲載するものではない場合があります。交通情報に関する質問などは株式会社LIFULLにお問合せください















