LIFULL HOME'Sは物件鮮度No.1!※評価について
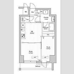
CREATIF押上(7階/701/2DK/36.72m²)
CREATIF押上(7階/701/2DK/36.72m²)
19.3万円/管理費等20,000円
1日前 更新
お問合せ先 :大東建託リーシング株式会社 池袋東口店
スタッフ一同、お客様のご来店をこころよりお待ちしております!
基本情報
不動産用語- 賃料
- 19.3万円
- 管理費等
- 20,000円
初期費用などお気軽にお問合せください
- 敷金/礼金
- 無/無
- 保証金/敷引・償却金
- -/-
- 交通
東武伊勢崎線 とうきょうスカイツリー駅 徒歩9分
都営浅草線 本所吾妻橋駅 徒歩11分
- 所在地
東京都墨田区向島3丁目4(以下未定)
地図を見る- 築年月
- 2025年12月(新築)
- 主要採光面
- -
- 専有面積
- 36.72㎡
- バルコニー面積
- -
- 所在階/階数
- 7階/12階建
- 現況
- -
- 入居可能時期
- 即時

人気物件はすぐに埋まってしまいます。
気になったらお早めにお問合せください。
- 情報公開日
2026/04/25
25日前 公開
- 情報更新日
2026/05/19
1日前 更新
- 次回更新
予定日 - 2026/06/02
物件のこだわり/設備・条件
新築(該当)
2階以上の物件(該当)
南向き(非該当)
駐車場(非該当)
オートロック(該当)
エアコン(該当)
バス・トイレ別(該当)
追焚機能(該当)
フローリング(該当)
ペット相談可(該当)
入居条件
ペット可、即入居可- 上記以外や相談可の
詳細はお問合せください - 上記以外や相談可の詳細は
お電話ください(通話無料)電話でお問合せ キッチン/バス・トイレ
設備・サービス
オートロック、エアコン、BS対応、インターネット対応、都市ガス、フローリング、バルコニー、室内洗濯機置場、エレベーター、宅配ボックス、駐輪場あり
物件周辺の生活情報
買い物
- スーパー(820m)
- 商店街(831m)
交通
- 東武伊勢崎線 とうきょうスカイツリー駅 徒歩9分
- 普通(停車)
- 区間準急(停車)
- 準急(通過)
- 区間急行(停車)
- 急行(通過)
- 都営浅草線 本所吾妻橋駅 徒歩11分
- 普通(停車)
- 急行(停車)
- 特急(停車)
- 快特(停車)
- エアポート快特(通過)
- アクセス特急(停車)
- 通勤特急(停車)
※急行等の停車駅情報について
急行等の停車駅に関するデータは、随時更新をしておりますが、最新の内容であることを保証するものではありません。
最新かつ正確な情報につきましては、各鉄道会社のウェブサイトにてご確認ください
物件周辺の口コミ
- 東京都墨田区向島に住む人の口コミ50代女性
生まれ育った街で、東京駅や銀座にもほど近く、どこに行くにも便がいい。スカイツリーが出来たおかげで、買い物は便利になったが家賃が高く、賃貸はお手上げ。
口コミを見る
この物件周辺に住む人の口コミ
口コミは、LIFULL HOME'Sが実際にこの物件の周辺に住む18歳~69歳の男女を対象に、WEBアンケート調査を実施しています。内容には回答者の主観的な表現が含まれる場合があるほか、事実と異なる場合もございます。ご了承ください。
- 東京都墨田区向島に住む人の口コミ50代女性
- 生まれ育った街で、東京駅や銀座にもほど近く、どこに行くにも便がいい。スカイツリーが出来たおかげで、買い物は便利になったが家賃が高く、賃貸はお手上げ。
- 東京都墨田区向島に住む人の口コミ30代男性
- 公園が近くにあって、有名なスポットもあり、近くである程度完結する
- 東京都墨田区向島に住む人の口コミ50代女性
- 複数の鉄道路線が使え、バスもあるので交通が便利。東京スカイツリーや隅田川の桜並木など、誇れる場所もある。地域活動への参加も、望めば受け入れてもらえる。買い物に便利な商業施設は駅の反対側に集中している。
- 東京都墨田区向島に住む人の口コミ30代女性
- 下町ということもあり、都内の中ではあまりゴミゴミしていないと思います。商業施設も多く、便利です。しかし、近所にスカイツリーがあり、いろいろな人がいるので治安については疑問です。
- 東京都墨田区向島に住む人の口コミ30代男性
- 駅まで10分の環境にあり、まわりにもスーパー、コンビニがたくさんあるから、
- 東京都墨田区向島に住む人の口コミ30代男性
- 何をするにも一通りのものは揃っており、不便さはないが、自然がないのでそこだけマイナスと感じるから。
- 東京都墨田区向島に住む人の口コミ60代女性
- JRからは1ッ歩離れてはいるがそれが、かえって静かな街並みつくりになりうっとうしさが無い。近隣はバスや交通の利便性は大きな商業施設のお蔭で使いやすくなり、出来上がった街並みとのコントラストは否めないが、
- 東京都墨田区向島に住む人の口コミ30代女性
- 駅まで行かないとドラッグストアがなく、スーパーとの距離も離れているので、買い回りがしづらい点。
- 東京都墨田区向島に住む人の口コミ40代男性
- 職場まで乗り換え一本、大きな駅ビルがある、大きな公園がすぐ近く、古い神社がある、海や山が遠い。
- 東京都墨田区向島に住む人の口コミ30代女性
- 徒歩圏内に東京スカイツリーがあるので、ほとんどの買い物がソラマチで出来子ども連れなのでとても便利。
物件概要
- 建物構造
- RC(鉄筋コンクリート)
- 駐車場
- -
- 総戸数
- 22戸
- 契約形態
- -
- 契約期間
- -
- 更新料
- 新賃料の1ヶ月分
- その他費用
- -
- 保証会社
- -
- 住宅保険
- 要
- 管理
- -
- LIFULL HOME'S
物件番号 - 3700448-0325975
- 自社管理番号
- 577-5745537
- 取引態様
- 仲介
- 会社名
- 大東建託リーシング株式会社 池袋東口店
営業スタッフコメント

大東建託リーシング株式会社 池袋東口店
安藤怜奈
親切・丁寧な接客を心がけております。
業界経験6年
資格宅地建物取引士
- 会社実績や特徴・サービス情報
- お引越し紹介サービスあり。
お引越し紹介サービスあり。
- 電話でお問合せ(通話無料)
お問合せ先 :大東建託リーシング株式会社 池袋東口店
不動産会社情報
大東建託リーシング株式会社 池袋東口店

東京都豊島区南池袋1丁目21番7号 イー・パートナーズ池袋駅前ビル8階
JR山手線 池袋駅 徒歩1分
- 営業時間
- 10:00~18:00(「12:30〜13:30は昼休憩」)
- 定休日
- 火・水 第二木曜定休:6/11(木)・7/9(木)
日管協加盟
優良店認定
当店はTV・CMでお馴染みのいい部屋ネット直営店です。直営店ならではの豊富な賃貸情報をご用意しております。いいへや探すならいい部屋ネット!
- 店舗の特徴
- 24時間管理物件取扱い
- 引越し業者紹介可
- 社宅・寮物件取扱い
- 保証人不要な物件あり
- 法人契約取扱い
- 駅から歩いて3分以内
電話でお問合せお客様の電話番号は不動産会社には通知されません
- 不動産会社に
つながります
お客様の電話番号は不動産会社に通知されません
- ※光IP電話、及びIP電話からはご利用になれません
- ※お電話によるお問合せは、店舗営業時間内にお願いします。つながらない場合は、お問合せフォームよりお問合せください
- ※不動産会社がお電話に出られなかった場合、お問合せいただいた後に不動産会社より折り返しのお電話がある場合がございます(お客様が非通知設定した場合は対象外です)
- ※株式会社LIFULLは電話会社が提供するサービスを介してお客様の発信者番号を受領後、折り返し専用の電話番号を発番してお問合せの不動産会社に通知します(お客様の発信者番号がお問合せの不動産会社に通知されることはございません)
- ※携帯電話からお問合せいただいた方に対し、株式会社LIFULLは電話会社が提供するメッセ―ジサービスを介してお客様の発信者番号を受領後、ショートメッセージ(SMS)またはLINE通知メッセージによるお問合せ内容に関する通知をお届けする場合があります
- ※お客様が通話中に不動産会社にお伝えになったお客様の個人情報及び、電話会社が発番する折り返し専用の電話番号は、お問合せ先不動産会社が資料送付・電子メール送信・電話連絡などの目的で保管する可能性があります。お問合せ先不動産会社が保管する個人情報の取扱いについては、各不動産会社に直接お問合せください
- ※株式会社LIFULLでは本サービスを円滑に運用するために、お客様の発信者番号をサービスご利用の控えとして一定期間保管いたします
- ※上記および株式会社LIFULLの個人情報の取扱い方針に同意のうえ、お電話ください
【LIFULL HOME'S物件番号】3700448-0325975【自社管理番号】577-5745537
オンライン対応
オンライン相談・IT重説に対応している物件です

「オンライン内見」「オンライン相談」「IT重説」とは?
物件の内見や不動産会社スタッフとの相談、契約前の重要事項説明をオンライン(ビデオ通話)で行うことができるサービスです。
オンライン内見
ビデオ通話で現地(物件)にいる不動産会社スタッフと映像・音声を使ってリアルタイムで会話しながら内見ができます。
オンライン相談
「物件について聞きたいことがある」など不動産会社スタッフへの相談もビデオ通話で行うことができます。
IT重説
契約前の重要事項説明(重説)をビデオ通話で行うことができます。
利用時の注意事項
- ビデオ通話については各不動産会社指定のものとなります。
- ビデオ通話利用時には通信が発生します。従量課金制通信サービスや通信量に上限があるネット回線・プランを利用する場合は、通信量にご注意ください。
- 通信速度やアプリの設定によってはビデオ通話の画質が低下することがあります。安定した画質で利用するためにも、Wi-Fi環境下での利用を推奨します。
- ご利用のビデオ通話アプリによっては、対象のOSやブラウザに制限がある場合があります。詳しくはお問合せ先不動産会社にご確認ください。
初期費用・月額費用をあわせて確認!この物件に住んだときの費用めやす
めやすを見るこの物件に住んだときの費用めやす
- 初期費用
- 月額費用
- 追加費用※ご確認ください
追加で費用が
かかる場合があります
必ずご確認ください
初期費用めやす約0円
追加で費用がかかります(※)敷金
0
- 礼金
0
- 保証金
0
賃料+共益費・管理費の1ヶ月分として換算
賃料の1ヶ月分+税として換算。不動産会社によって金額が異なるため正確な金額は不動産会社にお問合せください
※追加費用もチェック!
これらの項目以外にも費用がかかる場合があります。正確な金額は不動産会社にお問合せください。
- 初期費用
- 鍵交換費:不動産会社に要確認
- 室内清掃費:不動産会社に要確認
- 火災保険費:不動産会社に要確認
- 保証会社
- 不動産会社に要確認
不動産会社より
スタッフ一同、お客様のご来店をこころよりお待ちしております!
- 保存する
- 共有する
- ※各種情報と現状に差異がある場合は、現状優先となります
- ※不動産会社が入力した情報を基に物件の位置を表示しています。詳しくは不動産会社までお問合せください
- ※不動産会社の方からの上記電話番号によるお問合せはお断りしております。こちら不動産会社詳細からお問合せください
- ※LIFULL HOME'Sは物件鮮度No.1を目指していきます。閲覧中の物件が「成約済である」「実際の物件情報と異なる点がある」などの場合、「掲載110番」からお問合せください
- ※QRコードは株式会社デンソーウェーブの登録商標です
したい暮らしのタグから探す
この物件を取扱う他の会社
LIFULL HOME'Sでは、主要項目が同一の物件をまとめて表示しています。所在地や営業時間、掲載画像等から不動産会社を選んでお問合せください。
大東建託リーシング株式会社 亀戸店
優良店認定
東京都江東区亀戸6丁目57番7号 亀戸北斗スターマンション1階
JR総武線 亀戸駅 徒歩2分
- 営業時間
- 10:00~18:00(営業日の12:30〜13:30は昼休憩)
- 定休日
- 定休日:火・水曜日+第二木曜日
LIFULL HOME'S 地図・周辺情報
買い物
- セブンイレブン 向島店
- エネルギースーパーたじま押上店
- どらっぐぱぱすとうきょうスカイツリー駅前店
- ローソンストア100 言問橋店
- カルディコーヒーファーム東京ソラマチ店
グルメ
- ペッパーランチ とうきょうスカイツリー駅前店
- 星乃珈琲店東京スカイツリータウン・ソラマチ店
- スターバックスコーヒー東京スカイツリータウン・ソラマチ西1階店
- マクドナルド 東京スカイツリータウン・ソラマチ店
- 銀だこ 東京ソラマチ店
育児・教育
- 向島ひまわり保育園
- 墨田区立小梅小学校
- 墨田区立墨田中学校
- わらべ向島保育園
- 墨田区立言問小学校
医療
- 大岩医院
- 医療法人社団健生堂健生堂医院
- 医療法人伯鳳会東京曳舟病院
- 医療法人社団哺育会浅草病院
- 浅草寺病院
公共施設・郵便局
- 向島四郵便局
- 墨田区立ひきふね図書館
- 墨田区役所
- 本所吾妻橋駅前郵便局
- 浅草寺こども図書館
公園
- 区立隅田公園
- 銅像堀公園
- 吾妻橋公園
- 大横川親水公園
- 錦糸公園
利用可能な駅
- 徒歩10分以内
東武伊勢崎線
- とうきょうスカイツリー駅徒歩9分
- すべての駅
都営浅草線
- 本所吾妻橋駅徒歩11分
- 周辺情報は2023年07月21日時点のものになります。
- 周辺情報は、参考情報としてのみご利用ください(周辺情報は、株式会社LIFULLが地図情報の提供事業者から提供を受けた情報とLIFULL HOME'Sの物件情報に基づき、独自の方法で抽出し提供しているものです。周辺情報は、移転や閉鎖等により情報が最新ではない、または正しくない場合がありますが、地図情報の提供事業者から提供された情報をそのまま周辺情報として表示しているため、正確かつ最新の情報へ修正することができないことがあります。)
- 周辺情報は、株式会社LIFULLが掲載するものであり、不動産物件情報を掲載している不動産会社が掲載するものではありません
- 交通情報の一部については、株式会社LIFULLが掲載するものであり、不動産物件情報を掲載している不動産会社が掲載するものではない場合があります。交通情報に関する質問などは株式会社LIFULLにお問合せください































