LIFULL HOME'Sは物件鮮度No.1!※評価について
京都市営烏丸線 北山駅 徒歩1分
6万円/管理費等5,000円
20時間前 更新
画像一覧
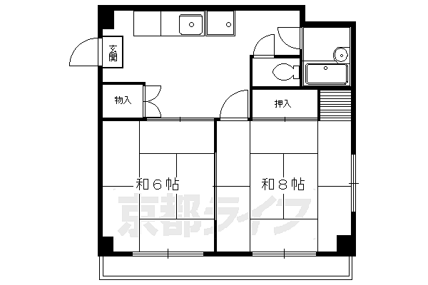
1/30間取り
間取
2/30外観
3/30外観
4/30外観
5/30リビング/ダイニング
地下鉄北山駅まで徒歩1分の通勤・通学便利な立地です。最上階・南向き、前面が北山通りの日当たりの良いお部屋です。
6/30リビング/ダイニング
6帖洋室です。
7/30リビング/ダイニング
ダイニングキッチンです。
8/30リビング/ダイニング
ダイニングキッチンです。
9/30室内
脱衣スペースです。
10/30寝室
8帖和室です。2面窓があり風が通ります。
11/30寝室
8帖和室です。
12/30寝室
8帖和室から6帖洋室方向です。
13/30キッチン
スッキリとしたキッチンです。
14/30キッチン
広いシンクです。
15/30キッチン
浴室扉から見たところです。
16/30キッチン
お好みの2口コンロ設置可能です。
17/30キッチン
キッチン収納です。
18/30キッチン
冷蔵庫設置スペースです。
19/30浴室
浴室です。
20/30トイレ
洗浄機能付きトイレです。
21/30洗面
浴室内の洗面です。
22/30収納
押入れ収納です。
23/30収納
ダイングキッチンの収納です。
24/30設備
洗濯機置き場です。
25/30設備
室内物干しです。
26/30玄関
玄関です。
27/30バルコニー
掃き出し窓の転落防止柵です。
28/30その他
窓のからの景色です。
29/30その他
玄関から見たところです。
30/30周辺
サンクス 府立植物園前店まで120m 2012年12月13日オープン。
間取り
外観
外観
外観
リビング/ダイニング
リビング/ダイニング
リビング/ダイニング
リビング/ダイニング
室内
寝室
寝室
寝室
キッチン
キッチン
キッチン
キッチン
キッチン
キッチン
浴室
トイレ
洗面
収納
収納
設備
設備
玄関
バルコニー
その他
その他
周辺
LINEチャットでも 相談できます
お問合せ先 :(株)京都ライフ 今出川店
仲介手数料割引
ご成約時、仲介手数料は賃料の半月分(税別)です。
- 利用条件
- (株)京都ライフ 今出川店で利用可
- 他特典との併用可
- ※法人契約・事業用物件は除きます。 ※大東建託・積水ハウス物件は除きます。
利用方法
来店時に本特典の画面をスマートフォンやタブレットでスタッフに提示、または画面印刷した用紙を提示ください。
有効期限 なし
北山のレトロなお部屋・ 地下鉄北山駅まですぐの2DKマンションです(徒歩1分)。
基本情報
不動産用語- 賃料
- 6万円
- 管理費等
- 5,000円
初期費用などお気軽にお問合せください
- 敷金/礼金
- 5万円/無
- 保証金/敷引・償却金
- -/-
- 交通
京都市営烏丸線 北山駅 徒歩1分
京都市営烏丸線 松ヶ崎駅 徒歩9分
- 所在地
京都府京都市左京区下鴨南芝町
地図を見る- 築年月
- 1980年1月(築46年)
- 主要採光面
- 南
- 専有面積
- 41㎡
- バルコニー面積
- -
- 所在階/階数
- 4階/4階建
入居可能日などお気軽にお問合せください
- 現況
- 空家
- 入居可能時期
- 相談

人気物件はすぐに埋まってしまいます。
気になったらお早めにお問合せください。
- 情報公開日
2025/07/04
147日前 公開
- 情報更新日
2025/11/27
20時間前 更新
- 次回更新
予定日 - 2025/12/10
物件のこだわり/設備・条件
新築(非該当)
2階以上の物件(該当)
南向き(該当)
駐車場(非該当)
オートロック(非該当)
エアコン(該当)
バス・トイレ別(該当)
追焚機能(非該当)
フローリング(非該当)
ペット相談(非該当)
位置
角部屋入居条件
学生限定キッチン/バス・トイレ
設備・サービス
エアコン、光ファイバー、インターネット使用料無料、公営水道、都市ガス、下水、バルコニー、室内洗濯機置場、南面バルコニーその他
住まい探し特典あり備考
温水洗浄便座コンビニ、スーパー、ドラッグストアなど近くにあって便利ですよ。光ファイバー対応しています。 物件情報はもちろん京都のエリア情報まで幅広く対応させていただきます!
物件周辺の生活情報
学校
- 葵小学校(785m)
- 下鴨中学校(1,500m)
買い物
- コンビニ(120m)
- スーパー(404m)
- 商店街(1,900m)
- ドラッグストア(170m)
その他施設
- 総合病院(950m)
- 銀行(150m)
- カナート洛北(1,300m)
交通
- 京都市営烏丸線 北山駅 徒歩1分
- 普通(停車)
- 急行(停車)
- 京都市営烏丸線 松ヶ崎駅 徒歩9分
- 普通(停車)
- 急行(停車)
※急行等の停車駅情報について
急行等の停車駅に関するデータは、随時更新をしておりますが、最新の内容であることを保証するものではありません。
最新かつ正確な情報につきましては、各鉄道会社のウェブサイトにてご確認ください
物件周辺の口コミ
- 京都府京都市左京区下鴨南芝町に住む人の口コミ50代男性
交通の便がよく、身近に自然も感じられ、買い物にも不自由を感じず、何より安心して暮らせる
口コミを見る
この物件周辺に住む人の口コミ
口コミは、LIFULL HOME'Sが実際にこの物件の周辺に住む18歳~69歳の男女を対象に、WEBアンケート調査を実施しています。内容には回答者の主観的な表現が含まれる場合があるほか、事実と異なる場合もございます。ご了承ください。
- 京都府京都市左京区下鴨南芝町に住む人の口コミ50代男性
- 交通の便がよく、身近に自然も感じられ、買い物にも不自由を感じず、何より安心して暮らせる
- 京都府京都市左京区下鴨南芝町に住む人の口コミ50代女性
- 地価の高い地域で大きな一軒家が多く、治安はよいと思うが賃貸物件が少なく家賃が高い。徒歩や自転車圏内に大きなスーパーや商店街がない。
- 京都府京都市北区上賀茂中大路町に住む人の口コミ50代男性
- 自然に囲まれているが決して田舎ではない。犯罪も少なく治安はいいと思う。近くに河川があり河原が広く散歩、ジョギング、犬の散歩をよく見かける。
- 京都府京都市左京区下鴨北茶ノ木町に住む人の口コミ30代男性
- 回りは高級住宅があるので少し家賃が高い。しかし、治安がいいので夜遅くに子供が一人で塾から帰って来れる。
- 京都府京都市北区紫竹上芝本町に住む人の口コミ50代女性
- 閑静な住宅街であり近くには郵便局、銀行、スーパー、コンビニと生活に必要なものが揃っている割に川や山など自然も感じられる。最寄りの公共の交通機関がバスのため遠方へ出かけるときは不便さを感じる時がある。
- 京都府京都市北区上賀茂畔勝町に住む人の口コミ50代女性
- 治安が良くスーパーや病院、郵便局、喫茶店やパン屋などが徒歩圏内にある。地下鉄を利用すれば、四条烏丸や京都駅まで30分以内で行ける。
- 京都府京都市北区大宮中林町に住む人の口コミ60代男性
- 近くに世界遺産の上賀茂神社や植物園があり、また鴨川が流れて遊歩道が整備されており、四季折々の自然が楽しめる。
- 京都府京都市左京区下鴨北園町に住む人の口コミ40代女性
- 住民同士あまり干渉しないが、困ってる時は時は助けあえる、程よい距離の近所付き合い
- 京都府京都市北区大宮南田尻町に住む人の口コミ50代女性
- 総合的には満足してますがもう少し色々な病院やカフェがあればとても満足です
- 京都府京都市北区小山下花ノ木町に住む人の口コミ50代男性
- 交通の便がよい 商業施設に近い 自然が感じられる 病院 学校 など充実している
物件概要
- 建物構造
- RC(鉄筋コンクリート)
- 駐車場
- 無
- 総戸数
- 10戸
- 契約形態
- -
- 契約期間
- 2年間
- 更新料
- 新賃料の1ヶ月分
- その他費用
- -
- 保証会社
- -
- 住宅保険
- 要
- 管理
- 管理員:巡回
- LIFULL HOME'S
物件番号 - 0001367-0267131
- 自社管理番号
- 11331-402-04
- 取引態様
- 仲介
- 会社名
- (株)京都ライフ 今出川店
営業スタッフコメント

(株)京都ライフ 今出川店
國枝昴平
迅速果断
業界経験5年
- 会社実績や特徴・サービス情報
- 京都ライフは40年以上京都に根付いている老舗仲介店舗です。 長年培った物件情報は3万戸以上。 フレッシュでフットワークのよいスタッフが気持ちよいお部屋探しをお手伝いします。
京都ライフは40年以上京都に根付いている老舗仲介店舗です。 長年培った物件情報は3万戸以上。 フレッシュでフットワークのよいスタッフが気持ちよいお部屋探しをお手伝いします。
- 電話でお問合せ(通話無料)
お問合せ先 :(株)京都ライフ 今出川店
不動産会社情報
(株)京都ライフ 今出川店京都ライフ今出川店
京都府京都市上京区烏丸通今出川上る御所八幡町115 コーポ千尋 1階
京都市営烏丸線 今出川駅 徒歩1分
- 営業時間
- 09:30~19:00
- 定休日
- 年中無休(盆正月を除く)
京都ライフでは仲介手数料が家賃の半月分(一部除外有り)!京都のお部屋探しは、創業45年、地元密着企業の京都ライフにお任せください。京都ライフ今出川店は同志社エンタープライズ提携業者です。
- 店舗の特徴
- 24時間管理物件取扱い
- 引越し業者紹介可
- 年中無休
- 送迎あり
- 系列店舗での対応可
- オンライン相談可
- 保証人不要な物件あり
- 法人契約取扱い
- 駅から歩いて3分以内
電話でお問合せお客様の電話番号は不動産会社には通知されません
- 不動産会社に
つながります
お客様の電話番号は不動産会社に通知されません
- ※光IP電話、及びIP電話からはご利用になれません
- ※お電話によるお問合せは、店舗営業時間内にお願いします。つながらない場合は、お問合せフォームよりお問合せください
- ※不動産会社がお電話に出られなかった場合、お問合せいただいた後に不動産会社より折り返しのお電話がある場合がございます(お客様が非通知設定した場合は対象外です)
- ※株式会社LIFULLは電話会社が提供するサービスを介してお客様の発信者番号を受領後、折り返し専用の電話番号を発番してお問合せの不動産会社に通知します(お客様の発信者番号がお問合せの不動産会社に通知されることはございません)
- ※携帯電話からお問合せいただいた方に対し、株式会社LIFULLは電話会社が提供するメッセ―ジサービスを介してお客様の発信者番号を受領後、ショートメッセージ(SMS)またはLINE通知メッセージによるお問合せ内容に関する通知をお届けする場合があります
- ※お客様が通話中に不動産会社にお伝えになったお客様の個人情報及び、電話会社が発番する折り返し専用の電話番号は、お問合せ先不動産会社が資料送付・電子メール送信・電話連絡などの目的で保管する可能性があります。お問合せ先不動産会社が保管する個人情報の取扱いについては、各不動産会社に直接お問合せください
- ※株式会社LIFULLでは本サービスを円滑に運用するために、お客様の発信者番号をサービスご利用の控えとして一定期間保管いたします
- ※上記および株式会社LIFULLの個人情報の取扱い方針に同意のうえ、お電話ください
【LIFULL HOME'S物件番号】0001367-0267131【自社管理番号】11331-402-04
オンライン対応
オンライン内見・オンライン相談・IT重説に対応している物件です

「オンライン内見」「オンライン相談」「IT重説」とは?
物件の内見や不動産会社スタッフとの相談、契約前の重要事項説明をオンライン(ビデオ通話)で行うことができるサービスです。
オンライン内見
ビデオ通話で現地(物件)にいる不動産会社スタッフと映像・音声を使ってリアルタイムで会話しながら内見ができます。
オンライン相談
「物件について聞きたいことがある」など不動産会社スタッフへの相談もビデオ通話で行うことができます。
IT重説
契約前の重要事項説明(重説)をビデオ通話で行うことができます。
利用時の注意事項
- ビデオ通話については各不動産会社指定のものとなります。
- ビデオ通話利用時には通信が発生します。従量課金制通信サービスや通信量に上限があるネット回線・プランを利用する場合は、通信量にご注意ください。
- 通信速度やアプリの設定によってはビデオ通話の画質が低下することがあります。安定した画質で利用するためにも、Wi-Fi環境下での利用を推奨します。
- ご利用のビデオ通話アプリによっては、対象のOSやブラウザに制限がある場合があります。詳しくはお問合せ先不動産会社にご確認ください。
初期費用・月額費用をあわせて確認!この物件に住んだときの費用めやす
めやすを見るこの物件に住んだときの費用めやす
- 初期費用
- 月額費用
- 追加費用※ご確認ください
追加で費用が
かかる場合があります
必ずご確認ください
初期費用めやす約0円
追加で費用がかかります(※)敷金
50,000
- 礼金
0
賃料+共益費・管理費の1ヶ月分として換算
賃料の1ヶ月分+税として換算。不動産会社によって金額が異なるため正確な金額は不動産会社にお問合せください
※追加費用もチェック!
これらの項目以外にも費用がかかる場合があります。正確な金額は不動産会社にお問合せください。
- 初期費用
- 鍵交換費:不動産会社に要確認
- 室内清掃費:不動産会社に要確認
- 火災保険費:不動産会社に要確認
- 保証会社
- 不動産会社に要確認
不動産会社より
北山のレトロなお部屋・ 地下鉄北山駅まですぐの2DKマンションです(徒歩1分)。
温水洗浄便座コンビニ、スーパー、ドラッグストアなど近くにあって便利ですよ。光ファイバー対応しています。 物件情報はもちろん京都のエリア情報まで幅広く対応させていただきます!
- 保存する
- 共有する
- ※各種情報と現状に差異がある場合は、現状優先となります
- ※不動産会社が入力した情報を基に物件の位置を表示しています。詳しくは不動産会社までお問合せください
- ※不動産会社の方からの上記電話番号によるお問合せはお断りしております。こちら不動産会社詳細からお問合せください
- ※LIFULL HOME'Sは物件鮮度No.1を目指していきます。閲覧中の物件が「成約済である」「実際の物件情報と異なる点がある」などの場合、「掲載110番」からお問合せください
- ※QRコードは株式会社デンソーウェーブの登録商標です
この物件を取扱う他の会社
LIFULL HOME'Sでは、主要項目が同一の物件をまとめて表示しています。所在地や営業時間、掲載画像等から不動産会社を選んでお問合せください。
株式会社京都ライフ 河原町四条店
京都府京都市中京区奈良屋町291-2 wise core BLD.1階
阪急京都本線 京都河原町駅 徒歩4分
- 営業時間
- 09:30~19:00
- 定休日
- 年中無休(盆正月を除く)
同じ建物の他の部屋
LIFULL HOME'S 地図・周辺情報
買い物
- ローソン 府立植物園前店
- フレスコ 北山店
- ココカラファイン北山店
- ローソン 上賀茂榊田町店
- フレンドフーズ
グルメ
- ロイヤルホスト 北山店
- 熊本ラーメン肥後もっこす
- フォルクス 北山通店
- CoCo壱番屋 下鴨北大路店
- 吉野家 京都洛北店
育児・教育
- 相愛幼稚園
- 私立ノートルダム学院小学校
- 京都市立下鴨中学校
- 明幼稚園
- 京都市立葵小学校
医療
- 医療法人財団康生会北山武田病院
- 社会福祉法人京都博愛会京都博愛会病院
- 京都博愛会冨田病院
- 社会福祉法人京都社会事業財団京都からすま病院
- 医療法人社団順和会京都下鴨病院
公共施設・郵便局
- 京都北山郵便局
- 京都市左京図書館
- 京都市左京区役所
- 京都洛北高校前郵便局
- 京都市北図書館
公園
- 宝が池公園子どもの楽園
- 岩倉南公園
- 宝が池公園
- 大宮交通公園
- 船岡山公園
利用可能な駅
- 徒歩10分以内
京都市営烏丸線
- 北山駅徒歩1分
- 松ヶ崎駅徒歩9分
- 周辺情報は2023年07月21日時点のものになります。
- 周辺情報は、参考情報としてのみご利用ください(周辺情報は、株式会社LIFULLが地図情報の提供事業者から提供を受けた情報とLIFULL HOME'Sの物件情報に基づき、独自の方法で抽出し提供しているものです。周辺情報は、移転や閉鎖等により情報が最新ではない、または正しくない場合がありますが、地図情報の提供事業者から提供された情報をそのまま周辺情報として表示しているため、正確かつ最新の情報へ修正することができないことがあります。)
- 周辺情報は、株式会社LIFULLが掲載するものであり、不動産物件情報を掲載している不動産会社が掲載するものではありません
- 交通情報の一部については、株式会社LIFULLが掲載するものであり、不動産物件情報を掲載している不動産会社が掲載するものではない場合があります。交通情報に関する質問などは株式会社LIFULLにお問合せください









