LIFULL HOME'Sは物件鮮度No.1!※評価について
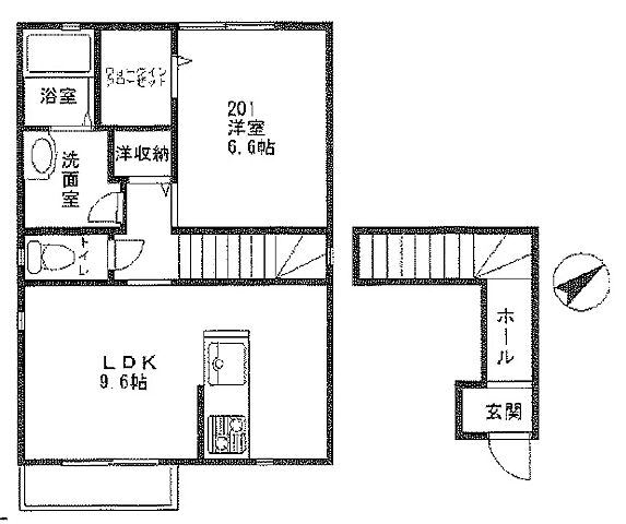
ハイツ花田(2階/201/1LDK/48.28m²)
ハイツ花田(2階/201/1LDK/48.28m²)
6.2万円/管理費等4,000円
2日前 更新
お問合せ先 :大東建託リーシング株式会社 小田原駅前店
お部屋に関する事やご入居日等のご相談お待ちしております♪気になりましたらお気軽にお問合せ下さいませ!
基本情報
不動産用語- 賃料
- 6.2万円
- 管理費等
- 4,000円
初期費用などお気軽にお問合せください
- 敷金/礼金
- 1ヶ月/無
- 保証金/敷引・償却金
- -/-
- 交通
JR東海道本線 国府津駅 徒歩15分
JR御殿場線 国府津駅 徒歩15分
- 所在地
神奈川県小田原市国府津1丁目6-49
地図を見る- 築年月
- 2014年12月(築12年)
- 主要採光面
- 南東
- 専有面積
- 48.28㎡
- バルコニー面積
- -
- 所在階/階数
- 2階/2階建
入居可能日などお気軽にお問合せください
- 現況
- -
- 入居可能時期
- 相談

人気物件はすぐに埋まってしまいます。
気になったらお早めにお問合せください。
- 情報公開日
2025/10/24
213日前 公開
- 情報更新日
2026/05/23
2日前 更新
- 次回更新
予定日 - 2026/06/05
物件のこだわり/設備・条件
新築(非該当)
2階以上の物件(該当)
南向き(非該当)
駐車場あり(該当)
オートロック(非該当)
エアコン(該当)
バス・トイレ別(該当)
追焚機能(該当)
フローリング(非該当)
ペット相談(非該当)
入居条件
二人入居可- 上記以外や相談可の
詳細はお問合せください キッチン/バス・トイレ
IHコンロ、システムキッチン、給湯、専用バス、専用トイレ、バス・トイレ別、追焚機能、シャワー設備・サービス
エアコン、BS対応、プロパンガス、バルコニー、室内洗濯機置場、駐車場あり、駐輪場ありその他
初期費用カード決済可備考
*駐車場:敷金1ケ月 礼金1ケ月 2年更新 要空確認 *法人契約:敷金2ヵ月 *その他諸費用等詳しくはお問合せ下さい。 安心入居サポート代:1100円
物件周辺の生活情報
買い物
- コンビニ(531m)
- スーパー(970m)
- 商店街(930m)
- ドラッグストア(1,046m)
交通
- JR東海道本線 国府津駅 徒歩15分
- 普通(停車)
- 快速(停車)
- 区間快速(通過)
- 特別快速(停車)
- 新快速(通過)
- JR御殿場線 国府津駅 徒歩15分
- 普通(停車)
※急行等の停車駅情報について
急行等の停車駅に関するデータは、随時更新をしておりますが、最新の内容であることを保証するものではありません。
最新かつ正確な情報につきましては、各鉄道会社のウェブサイトにてご確認ください
物件周辺の口コミ
- 神奈川県小田原市国府津に住む人の口コミ40代女性
特に不満はない。自然も多いが、大きなショッピングモールが近くにいくつもあり買い物には不便しない。ただ交通の面でいうと自家用車がなければ厳しい。高齢になってからは少し心配。
口コミを見る
この物件周辺に住む人の口コミ
口コミは、LIFULL HOME'Sが実際にこの物件の周辺に住む18歳~69歳の男女を対象に、WEBアンケート調査を実施しています。内容には回答者の主観的な表現が含まれる場合があるほか、事実と異なる場合もございます。ご了承ください。
- 神奈川県小田原市国府津に住む人の口コミ40代女性
- 特に不満はない。自然も多いが、大きなショッピングモールが近くにいくつもあり買い物には不便しない。ただ交通の面でいうと自家用車がなければ厳しい。高齢になってからは少し心配。
- 神奈川県小田原市国府津に住む人の口コミ60代女性
- 車や公共交通機関の便利性が高く、出かけていくのもこちらへ来てもらうのにも、アクセスがよい。買い物環境や、散歩する環境もほぼ整っており、子育て世代や、高齢者にも住みやすい街だと思う。
- 神奈川県小田原市国府津に住む人の口コミ40代女性
- 義理の両親が住んでいる町に比べると買い物がしやすく、駐車場も無料のところが多いので子供連れでも助かる点は満足している。市の指定ゴミ袋が安いのもありがたいです。
- 神奈川県小田原市国府津に住む人の口コミ50代女性
- 海や山など自然に恵まれ、お城があり、箱根伊豆方面にも東京にも出やすい。人もあたたかく、繋がりが多い
- 神奈川県小田原市国府津に住む人の口コミ40代女性
- 一言で言うと、程よい田舎です。物価も安いですし買い物も便利。海や山も近くにあり自然豊かで子供達が伸び伸びと育つと思います。駅から遠いのが難点ですが、それ以外は満足です。
- 神奈川県小田原市国府津に住む人の口コミ40代女性
- 坂道がないので自転車で走りやすく、大型商業施設が複数あって、しかも駐車場代がかからないのが良い
- 神奈川県小田原市国府津に住む人の口コミ60代女性
- 海も川もあり、商業施設もあり、鉄道も充実していて、東名も近い住むには、良いところです。
- 神奈川県小田原市国府津に住む人の口コミ50代女性
- 買い物便利で、海、箱根近く自然に恵まれている。バスの本数少なく、駅の送迎が、渋滞ぎみ。
- 神奈川県小田原市国府津に住む人の口コミ40代女性
- 坂道がないので自転車での買い物がとても楽。それに店の駐車場は全部無料なので気軽に車で行ける。
- 神奈川県小田原市国府津に住む人の口コミ50代女性
- 坂道がないので、自転車での移動が楽だし、大型店舗複数あるので、買い物しやすいから
物件概要
- 建物構造
- 軽量鉄骨造
- 駐車場
- 空有 5,500円(税込)
- 総戸数
- -
- 契約形態
- -
- 契約期間
- 2年間
- 更新料
- 新賃料の1ヶ月分
- その他費用
- 鍵交換費用:27,500円
- 保証会社
加入要
保証会社利用料:加入要 指定保証会社 初回保証料:賃料等の50% 事務手数料:月払い総額2%
- 住宅保険
- 要
- 管理
- -
- LIFULL HOME'S
物件番号 - 3700060-0027748
- 自社管理番号
- 323-5659554
- 取引態様
- 仲介
- 会社名
- 大東建託リーシング株式会社 小田原駅前店
営業スタッフコメント

大東建託リーシング株式会社 小田原駅前店
鈴木貴広
*お客様にとっての“いい部屋”さがし
業界経験2年
資格損害保険募集人
- 会社実績や特徴・サービス情報
- 気になるお部屋が御座いましたらお気軽にお問合せ下さいませ。お客様専属のスタッフを選定しご対応させて頂きます。ご来店、ご面談、お部屋の見学という流れになります。ご来店の際はご予約を頂きます幸いです。
気になるお部屋が御座いましたらお気軽にお問合せ下さいませ。お客様専属のスタッフを選定しご対応させて頂きます。ご来店、ご面談、お部屋の見学という流れになります。ご来店の際はご予約を頂きます幸いです。
- 電話でお問合せ(通話無料)
お問合せ先 :大東建託リーシング株式会社 小田原駅前店
不動産会社情報
大東建託リーシング株式会社 小田原駅前店

神奈川県小田原市栄町2丁目8‐31プランタン岩下1階A号室
JR東海道本線 小田原駅 徒歩3分
- 営業時間
- 10:00~18:00(休憩12:30〜13:30)
- 定休日
- 火曜日 水曜日 5/14(木)臨時休業
日管協加盟
優良店認定
TVCMでお馴染みの「いい部屋ネット」直営店です。 大東建託施工管理物件をはじめ多くの不動産を取り扱いしております。 新築・ペット可・クレジット決済可能・法人契約可能のお部屋等、お気軽にご相談下さい。
- 店舗の特徴
- 24時間管理物件取扱い
- 引越し業者紹介可
- 駐車場あり
- 社宅・寮物件取扱い
- 保証人不要な物件あり
- 法人契約取扱い
- 女性スタッフ対応可
- 駅から歩いて3分以内
電話でお問合せお客様の電話番号は不動産会社には通知されません
- 不動産会社に
つながります
お客様の電話番号は不動産会社に通知されません
- ※光IP電話、及びIP電話からはご利用になれません
- ※お電話によるお問合せは、店舗営業時間内にお願いします。つながらない場合は、お問合せフォームよりお問合せください
- ※不動産会社がお電話に出られなかった場合、お問合せいただいた後に不動産会社より折り返しのお電話がある場合がございます(お客様が非通知設定した場合は対象外です)
- ※株式会社LIFULLは電話会社が提供するサービスを介してお客様の発信者番号を受領後、折り返し専用の電話番号を発番してお問合せの不動産会社に通知します(お客様の発信者番号がお問合せの不動産会社に通知されることはございません)
- ※携帯電話からお問合せいただいた方に対し、株式会社LIFULLは電話会社が提供するメッセ―ジサービスを介してお客様の発信者番号を受領後、ショートメッセージ(SMS)またはLINE通知メッセージによるお問合せ内容に関する通知をお届けする場合があります
- ※お客様が通話中に不動産会社にお伝えになったお客様の個人情報及び、電話会社が発番する折り返し専用の電話番号は、お問合せ先不動産会社が資料送付・電子メール送信・電話連絡などの目的で保管する可能性があります。お問合せ先不動産会社が保管する個人情報の取扱いについては、各不動産会社に直接お問合せください
- ※株式会社LIFULLでは本サービスを円滑に運用するために、お客様の発信者番号をサービスご利用の控えとして一定期間保管いたします
- ※上記および株式会社LIFULLの個人情報の取扱い方針に同意のうえ、お電話ください
【LIFULL HOME'S物件番号】3700060-0027748【自社管理番号】323-5659554
オンライン対応
オンライン相談・IT重説に対応している物件です

「オンライン内見」「オンライン相談」「IT重説」とは?
物件の内見や不動産会社スタッフとの相談、契約前の重要事項説明をオンライン(ビデオ通話)で行うことができるサービスです。
オンライン内見
ビデオ通話で現地(物件)にいる不動産会社スタッフと映像・音声を使ってリアルタイムで会話しながら内見ができます。
オンライン相談
「物件について聞きたいことがある」など不動産会社スタッフへの相談もビデオ通話で行うことができます。
IT重説
契約前の重要事項説明(重説)をビデオ通話で行うことができます。
利用時の注意事項
- ビデオ通話については各不動産会社指定のものとなります。
- ビデオ通話利用時には通信が発生します。従量課金制通信サービスや通信量に上限があるネット回線・プランを利用する場合は、通信量にご注意ください。
- 通信速度やアプリの設定によってはビデオ通話の画質が低下することがあります。安定した画質で利用するためにも、Wi-Fi環境下での利用を推奨します。
- ご利用のビデオ通話アプリによっては、対象のOSやブラウザに制限がある場合があります。詳しくはお問合せ先不動産会社にご確認ください。
初期費用・月額費用をあわせて確認!この物件に住んだときの費用めやす
めやすを見るこの物件に住んだときの費用めやす
- 初期費用
- 月額費用
- 追加費用※ご確認ください
追加で費用が
かかる場合があります
必ずご確認ください
初期費用めやす約0円
追加で費用がかかります(※)敷金
62,000
- 礼金
0
賃料+共益費・管理費の1ヶ月分として換算
賃料の1ヶ月分+税として換算。不動産会社によって金額が異なるため正確な金額は不動産会社にお問合せください
※追加費用もチェック!
これらの項目以外にも費用がかかる場合があります。正確な金額は不動産会社にお問合せください。
- 初期費用
- 鍵交換費:27,500円
- 室内清掃費:不動産会社に要確認
- 火災保険費:不動産会社に要確認
- 月額費用
- 駐車場費:5,500円(税込)※契約任意
- 保証会社
- 加入要 指定保証会社 初回保証料:賃料等の50% 事務手数料:月払い総額2%
不動産会社より
お部屋に関する事やご入居日等のご相談お待ちしております♪気になりましたらお気軽にお問合せ下さいませ!
*駐車場:敷金1ケ月 礼金1ケ月 2年更新 要空確認 *法人契約:敷金2ヵ月 *その他諸費用等詳しくはお問合せ下さい。 安心入居サポート代:1100円
- 保存する
- 共有する
- ※各種情報と現状に差異がある場合は、現状優先となります
- ※不動産会社が入力した情報を基に物件の位置を表示しています。詳しくは不動産会社までお問合せください
- ※不動産会社の方からの上記電話番号によるお問合せはお断りしております。こちら不動産会社詳細からお問合せください
- ※LIFULL HOME'Sは物件鮮度No.1を目指していきます。閲覧中の物件が「成約済である」「実際の物件情報と異なる点がある」などの場合、「掲載110番」からお問合せください
- ※QRコードは株式会社デンソーウェーブの登録商標です
この物件を取扱う他の会社
LIFULL HOME'Sでは、主要項目が同一の物件をまとめて表示しています。所在地や営業時間、掲載画像等から不動産会社を選んでお問合せください。
大東建託リーシング株式会社 藤沢店
優良店認定
神奈川県藤沢市藤沢967
JR東海道本線 藤沢駅 徒歩6分
- 営業時間
- 10:00~18:00(12:30〜13:30昼休憩 ※火水は10:00〜16:00)
- 定休日
- なし
LIFULL HOME'S 地図・周辺情報
買い物
- ローソン 小田原国府津二丁目店
- スーパービバホーム 小田原国府津店
- ウエルシア小田原国府津店
- ファミリーマート 小田原国府津店
- ユーコープ 国府津店
グルメ
- 吉野家 1号線国府津インター店
- ガスト 国府津店(から好し取扱店)
- しゃぶ葉国府津店
- ケンタッキーフライドチキン 小田原国府津店
- がってん寿司 小田原店
育児・教育
- 国府津保育園
- 小田原市立国府津小学校
- 小田原市立国府津中学校
- 桃重保育園
- 小田原市立酒匂小学校
医療
- 医療法人尽誠会山近記念総合病院
- 医療法人清輝会国府津病院
- 医療法人社団三暉会永井産婦人科病院
- 医療法人邦友会小田原循環器病院
公共施設・郵便局
- 小田原国府津郵便局
- 小田原市立中央図書館
- 小田原東郵便局
- 酒匂郵便局
- 鴨宮駅前郵便局
公園
- 羽根尾史跡公園
利用可能な駅
- すべての駅
JR東海道本線
- 国府津駅徒歩15分
JR御殿場線
- 国府津駅徒歩15分
- 周辺情報は2023年07月21日時点のものになります。
- 周辺情報は、参考情報としてのみご利用ください(周辺情報は、株式会社LIFULLが地図情報の提供事業者から提供を受けた情報とLIFULL HOME'Sの物件情報に基づき、独自の方法で抽出し提供しているものです。周辺情報は、移転や閉鎖等により情報が最新ではない、または正しくない場合がありますが、地図情報の提供事業者から提供された情報をそのまま周辺情報として表示しているため、正確かつ最新の情報へ修正することができないことがあります。)
- 周辺情報は、株式会社LIFULLが掲載するものであり、不動産物件情報を掲載している不動産会社が掲載するものではありません
- 交通情報の一部については、株式会社LIFULLが掲載するものであり、不動産物件情報を掲載している不動産会社が掲載するものではない場合があります。交通情報に関する質問などは株式会社LIFULLにお問合せください















