LIFULL HOME'Sは物件鮮度No.1!※評価について
京阪本線 清水五条駅 徒歩1分
6.4万円/管理費等8,000円
5時間前 更新
画像一覧
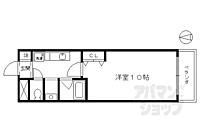
1/30間取り
間取
2/30外観
3/30外観
4/30外観
5/30リビング/ダイニング
6/30リビング/ダイニング
7/30リビング/ダイニング
8/30リビング/ダイニング
9/30室内
10/30室内
11/30室内
12/30室内
13/30キッチン
14/30キッチン
15/30キッチン
16/30キッチン
17/30浴室
18/30浴室
19/30トイレ
20/30洗面
21/30収納
22/30収納
23/30設備
24/30玄関
25/30バルコニー
26/30その他
27/30その他
28/30その他
29/30その他
30/30周辺
フレスコ 五条店まで641m
間取り
外観
外観
外観
リビング/ダイニング
リビング/ダイニング
リビング/ダイニング
リビング/ダイニング
室内
室内
室内
室内
キッチン
キッチン
キッチン
キッチン
浴室
浴室
トイレ
洗面
収納
収納
設備
玄関
バルコニー
その他
その他
その他
その他
周辺
LINEチャットでも 相談できます
お問合せ先 :アパマンショップ出町柳店 ウインズリンク株式会社
仲介手数料割引
仲介手数料:家賃の50%(税別)でご紹介可能です!
- 利用条件
- アパマンショップ出町柳店 ウインズリンク株式会社で利用可
- 他特典との併用可
利用方法
来店時に本特典の画面をスマートフォンやタブレットでスタッフに提示、または画面印刷した用紙を提示ください。
有効期限 なし
清水五条駅徒歩1分 浴室乾燥機や床暖房などのオススメ設備導入マンション
基本情報
不動産用語- 賃料
- 6.4万円
- 管理費等
- 8,000円
初期費用などお気軽にお問合せください
- 敷金/礼金
- 無/9.6万円
- 保証金/敷引・償却金
- -/-
- 交通
京阪本線 清水五条駅 徒歩1分
京都市営烏丸線 五条駅 徒歩12分
- 所在地
京都府京都市東山区五条通大橋東入ル東橋詰町
地図を見る- 築年月
- 2006年3月(築20年)
- 主要採光面
- 西
- 専有面積
- 28㎡
- バルコニー面積
- -
- 所在階/階数
- 5階/7階建
入居可能日などお気軽にお問合せください
- 現況
- 賃貸中
- 入居可能時期
- 2026年03月 中旬

人気物件はすぐに埋まってしまいます。
気になったらお早めにお問合せください。
- 情報公開日
2026/01/05
3日前 公開
- 情報更新日
2026/01/08
5時間前 更新
- 次回更新
予定日 - 2026/01/21
物件のこだわり/設備・条件
新築(非該当)
2階以上の物件(該当)
南向き(非該当)
駐車場(非該当)
オートロック(該当)
エアコン(該当)
バス・トイレ別(該当)
追焚機能(非該当)
フローリング(該当)
ペット相談(非該当)
入居条件
単身者限定、学生歓迎キッチン/バス・トイレ
設備・サービス
オートロック、防犯カメラ、TVモニタ付インターホン、エアコン、床暖房、シューズボックス、光ファイバー、公営水道、都市ガス、下水、フローリング、バルコニー、室内洗濯機置場、エレベーター、宅配ボックス、駐輪場ありその他
住まい探し特典あり備考
五条大橋スグの99円ショップ上です。京阪電車徒歩1分のオススメ立地。京都市東山区エリアでのお部屋探しは当店にお任せくださいね。 京都の賃貸はアパマンショップ京都、河原町三条店にお任せください。
物件周辺の生活情報
買い物
- コンビニ(58m)
- スーパー(641m)
その他施設
- 総合病院(2,000m)
- 五条大橋からの鴨川眺め(73m)
交通
- 京阪本線 清水五条駅 徒歩1分
- 普通(停車)
- 区間急行(通過)
- 急行(停車)
- 特急(通過)
- 通勤準急・準急(停車)
- 快速特急 洛楽(通過)
- 通勤快急・快速急行(通過)
- 京都市営烏丸線 五条駅 徒歩12分
- 普通(停車)
- 急行(停車)
※急行等の停車駅情報について
急行等の停車駅に関するデータは、随時更新をしておりますが、最新の内容であることを保証するものではありません。
最新かつ正確な情報につきましては、各鉄道会社のウェブサイトにてご確認ください
物件周辺の口コミ
- 京都府京都市東山区本町通五条上るに住む人の口コミ20代女性
生活に困ることはなく、自然も多くて歴史がある。観光客が多いので活気もあるが趣のある雰囲気が良い。家賃が高いのが困りごと。
口コミを見る
この物件周辺に住む人の口コミ
口コミは、LIFULL HOME'Sが実際にこの物件の周辺に住む18歳~69歳の男女を対象に、WEBアンケート調査を実施しています。内容には回答者の主観的な表現が含まれる場合があるほか、事実と異なる場合もございます。ご了承ください。
- 京都府京都市東山区本町通五条上るに住む人の口コミ20代女性
- 生活に困ることはなく、自然も多くて歴史がある。観光客が多いので活気もあるが趣のある雰囲気が良い。家賃が高いのが困りごと。
- 京都府京都市下京区西木屋町通七条上るに住む人の口コミ20代女性
- カフェやショッピングできる場所が豊富で自分の年代なら満足のいく生活が送れる。
- 京都府京都市下京区富小路通松原上るに住む人の口コミ30代男性
- 交通の利便性が高く、商業施設等も充実しているので、買い物も困らない。
- 京都府京都市下京区五条通烏丸東入に住む人の口コミ30代女性
- 交通の便が良く、日常の買い物にも困らない。学習環境が良く、子育てするにも選択肢がたくさんあり、公立の学校でも設備が整っている。
- 京都府京都市下京区木屋町通松原下る2丁目に住む人の口コミ30代女性
- 深夜営業のスーパー、コンビニの数が多く仕事は時間の都合上非常に助かっている。バス、電車の利便性が良い。徒歩圏内で大型商業施設もいける。
- 京都府京都市下京区烏丸通万寿寺上るに住む人の口コミ20代女性
- 大通り沿いはコンビニやスーパー、本屋などの店が多く、活気にあふれているが、一歩通りに入るととても静かで住みやすいから。
- 京都府京都市下京区富小路通五条下る西入に住む人の口コミ20代女性
- スーパー・銀行・コンビニ・薬局・100均が家から徒歩五分圏内に揃っているから。
- 京都府京都市東山区本町9丁目に住む人の口コミ30代女性
- 生活に必要なものは揃えられるが、近くにスーパーがないことが不便
- 京都府京都市下京区万寿寺通麩屋町東入に住む人の口コミ30代女性
- 特に騒音や問題もなく、街自体が綺麗。買い物、交通に不自由しない。
- 京都府京都市東山区大和大路通団栗下るに住む人の口コミ20代男性
- 自然が近く、歴史的な建物も近く、24時間のスーパー、コンビニも近いから。
物件概要
- 建物構造
- RC(鉄筋コンクリート)
- 駐車場
- 無
- 総戸数
- 36戸
- 契約形態
- -
- 契約期間
- 2年間
- 更新料
- 新賃料の1.5ヶ月分
- その他費用
- 鍵交換費用:18,700円、室内清掃費用:33,000円、シナジーサポート:8,800円、駐輪ステッカー代:550円、エアコンクリーニング代:16,500円
- 保証会社
加入要
保証会社:ジャックス
保証会社利用料:初回:月額賃料等の50%、月額:支払い手数料として月額賃料等の1%、更新時:1.05万円/1年
- 住宅保険
- 要
- 管理
- -
- LIFULL HOME'S
物件番号 - 0112427-0220969
- 自社管理番号
- 81430-502-63
- 取引態様
- 仲介
- 会社名
- アパマンショップ出町柳店 ウインズリンク株式会社
営業スタッフコメント

アパマンショップ出町柳店 ウインズリンク株式会社
伊藤駿希
真面目に誠実な対応を心がけております。
業界経験2年
- 会社実績や特徴・サービス情報
- 学生、社会人、ファミリーのお部屋探しは全てお任せ下さい。 ポンタポイントプレゼントを始めアパマンショップだけの各種キャンペーンもございます。 京都市一円、賃貸物件のお探しはアパマンショップ出町柳店にお任せ下さい。 もちろん仲介手数料は安心価格、家賃の50%(税別)です。 条件交渉・地域環境などのご相談・お問い合わせもお待ちしております。 是非ご一緒にお探しさせていただければと思います。
学生、社会人、ファミリーのお部屋探しは全てお任せ下さい。 ポンタポイントプレゼントを始めアパマンショップだけの各種キャンペーンもございます。 京都市一円、賃貸物件のお探しはアパマンショップ出町柳店にお任せ下さい。 もちろん仲介手数料は安心価格、家賃の50%(税別)です。 条件交渉・地域環境などのご相談・お問い合わせもお待ちしております。 是非ご一緒にお探しさせていただければと思います。
- 電話でお問合せ(通話無料)
お問合せ先 :アパマンショップ出町柳店 ウインズリンク株式会社
不動産会社情報
アパマンショップ出町柳店 ウインズリンク株式会社
京都府京都市左京区田中関田町28−9
京阪本線 出町柳駅 徒歩3分
- 営業時間
- 09:30~19:00(営業時間外のお部屋探しもちろん可能です。ご予約やお問合せ時にご確認下さい。)
- 定休日
- なし(盆休み8/13〜8/16・年末年始12/27〜1/4)
出町柳駅徒歩3分、今出川通沿いの南側にございます。学生さんから社会人・ご家族向け物件まで幅広くご紹介中、条件・ご希望、何でもお申し付け下さい。営業時間外のお部屋探しもご対応可能!ご相談下さい。
- 店舗の特徴
- 賃貸管理業務
- リフォーム対応
- 引越し業者紹介可
- 年中無休
- 保証人不要な物件あり
- 法人契約取扱い
- 女性スタッフ対応可
- 19時以降も営業
- 駅から歩いて3分以内
電話でお問合せお客様の電話番号は不動産会社には通知されません
- 不動産会社に
つながります
お客様の電話番号は不動産会社に通知されません
- ※光IP電話、及びIP電話からはご利用になれません
- ※お電話によるお問合せは、店舗営業時間内にお願いします。つながらない場合は、お問合せフォームよりお問合せください
- ※不動産会社がお電話に出られなかった場合、お問合せいただいた後に不動産会社より折り返しのお電話がある場合がございます(お客様が非通知設定した場合は対象外です)
- ※株式会社LIFULLは電話会社が提供するサービスを介してお客様の発信者番号を受領後、折り返し専用の電話番号を発番してお問合せの不動産会社に通知します(お客様の発信者番号がお問合せの不動産会社に通知されることはございません)
- ※携帯電話からお問合せいただいた方に対し、株式会社LIFULLは電話会社が提供するメッセ―ジサービスを介してお客様の発信者番号を受領後、ショートメッセージ(SMS)またはLINE通知メッセージによるお問合せ内容に関する通知をお届けする場合があります
- ※お客様が通話中に不動産会社にお伝えになったお客様の個人情報及び、電話会社が発番する折り返し専用の電話番号は、お問合せ先不動産会社が資料送付・電子メール送信・電話連絡などの目的で保管する可能性があります。お問合せ先不動産会社が保管する個人情報の取扱いについては、各不動産会社に直接お問合せください
- ※株式会社LIFULLでは本サービスを円滑に運用するために、お客様の発信者番号をサービスご利用の控えとして一定期間保管いたします
- ※上記および株式会社LIFULLの個人情報の取扱い方針に同意のうえ、お電話ください
【LIFULL HOME'S物件番号】0112427-0220969【自社管理番号】81430-502-63
初期費用・月額費用をあわせて確認!この物件に住んだときの費用めやす
めやすを見るこの物件に住んだときの費用めやす
- 初期費用
- 月額費用
- 追加費用※ご確認ください
追加で費用が
かかる場合があります
必ずご確認ください
初期費用めやす約0円
追加で費用がかかります(※)敷金
0
- 礼金
96,000
賃料+共益費・管理費の1ヶ月分として換算
賃料の1ヶ月分+税として換算。不動産会社によって金額が異なるため正確な金額は不動産会社にお問合せください
※追加費用もチェック!
これらの項目以外にも費用がかかる場合があります。正確な金額は不動産会社にお問合せください。
- 初期費用
- 鍵交換費:18,700円
- 室内清掃費:33,000円
- 火災保険費:不動産会社に要確認
- その他
- シナジーサポート:8800円
- 駐輪ステッカー代:550円
- エアコンクリーニング代:16500円
- 保証会社
- 初回:月額賃料等の50%、月額:支払い手数料として月額賃料等の1%、更新時:1.05万円/1年
不動産会社より
清水五条駅徒歩1分 浴室乾燥機や床暖房などのオススメ設備導入マンション
五条大橋スグの99円ショップ上です。京阪電車徒歩1分のオススメ立地。京都市東山区エリアでのお部屋探しは当店にお任せくださいね。 京都の賃貸はアパマンショップ京都、河原町三条店にお任せください。
- 保存する
- 共有する
- ※各種情報と現状に差異がある場合は、現状優先となります
- ※不動産会社が入力した情報を基に物件の位置を表示しています。詳しくは不動産会社までお問合せください
- ※不動産会社の方からの上記電話番号によるお問合せはお断りしております。こちら不動産会社詳細からお問合せください
- ※LIFULL HOME'Sは物件鮮度No.1を目指していきます。閲覧中の物件が「成約済である」「実際の物件情報と異なる点がある」などの場合、「掲載110番」からお問合せください
- ※QRコードは株式会社デンソーウェーブの登録商標です
LIFULL HOME'S 地図・周辺情報
買い物
- ファミリーマート 京阪五条店
- フレスコ 五条大橋店
- ダイコクドラッグ京阪五条駅前店
- ローソンストア100 京阪五条駅前店
- フレスコ 寺町店
グルメ
- なか卯 河原町五条店
- じゅうじゅうカルビ 五条高倉店
- 和食さと 京都五条店
- CoCo壱番屋 京阪七条店
- マクドナルド 七条京阪店
育児・教育
- 善立寺保育園
- 京都市立下京渉成小学校
- 京都市立開睛小中学校
- 永興開智こども園
- 京都市立洛央小学校
医療
- 原田病院
- 医療法人財団康生会武田病院
- 木津屋橋武田病院
- 京都第一赤十字病院
- 医療法人知音会京都新町病院
公共施設・郵便局
- 東山郵便局
- 京都市東山図書館
- 京都市東山区役所
- 京都大和大路郵便局
- 京都市下京図書館
公園
- 円山公園
- 円山公園
- 東山山頂公園
- 光徳公園
- 岡崎公園
利用可能な駅
- 徒歩10分以内
京阪本線
- 清水五条駅徒歩1分
- すべての駅
京都市営烏丸線
- 五条駅徒歩12分
- 周辺情報は2023年07月21日時点のものになります。
- 周辺情報は、参考情報としてのみご利用ください(周辺情報は、株式会社LIFULLが地図情報の提供事業者から提供を受けた情報とLIFULL HOME'Sの物件情報に基づき、独自の方法で抽出し提供しているものです。周辺情報は、移転や閉鎖等により情報が最新ではない、または正しくない場合がありますが、地図情報の提供事業者から提供された情報をそのまま周辺情報として表示しているため、正確かつ最新の情報へ修正することができないことがあります。)
- 周辺情報は、株式会社LIFULLが掲載するものであり、不動産物件情報を掲載している不動産会社が掲載するものではありません
- 交通情報の一部については、株式会社LIFULLが掲載するものであり、不動産物件情報を掲載している不動産会社が掲載するものではない場合があります。交通情報に関する質問などは株式会社LIFULLにお問合せください











