LIFULL HOME'Sは物件鮮度No.1!※評価について
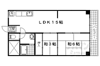
ハイツクローバー5階/A-503/3DK/53.42㎡
ハイツクローバー5階/A-503/3DK/53.42㎡
6.3万円/管理費等5,000円
9時間前 更新
画像一覧
1/30間取り
間取
2/30外観
3/30外観
4/30外観
5/30エントランス
6/30エントランス
7/30駐車場
8/30その他
9/30その他
10/30その他
11/30その他
12/30その他
13/30その他
14/30その他
15/30周辺
16/30周辺
17/30周辺
ローソン山科西野店まで37m
18/30周辺
マツヤスーパー 山科三条店まで700m 8:30から21:50まで営業
19/30周辺
愛生会山科病院まで900m
20/30周辺
ローソン国道西野店まで750m
21/30周辺
京都中央信用金庫 山科中支店まで450m
22/30周辺
山科郵便局まで260m
23/30周辺
洛東幼稚園まで450m
24/30周辺
京都市立山階小学校まで270m
25/30周辺
京都市立安祥寺中学校まで500m
26/30周辺
ドラッグユタカ 山科西野店まで750m
27/30周辺
業務スーパー 山科東野店まで750m
28/30周辺
ケーヨーデイツー 山科店まで800m
29/30周辺
京都薬科大学まで950m
30/30周辺
京都橘大学まで2500m
間取り
外観
外観
外観
エントランス
エントランス
駐車場
その他
その他
その他
その他
その他
その他
その他
周辺
周辺
周辺
周辺
周辺
周辺
周辺
周辺
周辺
周辺
周辺
周辺
周辺
周辺
周辺
周辺
仲介手数料割引
京都タワーまでお迎えサービスございます。
- 利用条件
- ウインズリンク株式会社 アパマンショップ京都駅前店 で利用可
- 他特典との併用可
- 事前にご予約下さいませ。
利用方法
来店時に本特典の画面をスマートフォンやタブレットでスタッフに提示、または画面印刷した用紙を提示ください。
有効期限 なし
インターネット無料です ディスカウントショップなど便利な施設がある楽しいエリア・
物件のこだわり/設備・条件
新築(非該当)
2階以上の物件(該当)
南向き(非該当)
駐車場あり(該当)
オートロック(非該当)
エアコン(非該当)
バス・トイレ別(該当)
追焚機能(非該当)
フローリング(該当)
ペット相談(非該当)
入居条件
二人入居可、保証人不要、即入居可キッチン/バス・トイレ
ガスコンロ設置済、コンロ三口、システムキッチン、給湯、専用バス、専用トイレ、バス・トイレ別、シャワー、シャワー付洗面化粧台、温水洗浄便座、洗面所独立設備・サービス
CATV、光ファイバー、インターネット使用料無料、公営水道、プロパンガス、下水、フローリング、バルコニー、室内洗濯機置場、ゴミ出し24時間OK、駐車場あり、駐輪場ありその他
住まい探し特典あり備考
単身の方からお子様がおられるご家族の方まで幅広くご対応出来るマンション。レストラン、ディスカウントショップなど便利な施設が色々揃っていて楽しいエリアです・アパマンショップキャンペーン中 詳しくはアパマンショップホームページまで。京都のお部屋探しはアパマンショップ京都までお気軽に。
物件周辺の生活情報
学校
- 安祥寺中学校(500m)
買い物
- コンビニ(37m)
- スーパー(700m)
- ドラッグストア(750m)
その他施設
- 総合病院(900m)
- 銀行(450m)
- 山科郵便局(260m)
交通
- JR東海道・山陽本線 山科駅 徒歩19分
- 普通(停車)
- 新快速(停車)
- 快速(停車)
- 緩行電車(停車)
- 特別快速(通過)
- 区間快速(通過)
- 京都地下鉄東西線 東野駅 徒歩8分
- 普通(停車)
※急行等の停車駅情報について
急行等の停車駅に関するデータは、随時更新をしておりますが、最新の内容であることを保証するものではありません。
最新かつ正確な情報につきましては、各鉄道会社のウェブサイトにてご確認ください
物件周辺の口コミ
- 京都府京都市山科区西野阿芸沢町に住む人の口コミ50代女性
公共交通機関が多いので出かけやすい。山も川も目に入るところにあるし、鳥もよく見かける。季節の移り変わりを感じることができる。
口コミを見る
この物件周辺に住む人の口コミ
口コミは、LIFULL HOME'Sが実際にこの物件の周辺に住む18歳~69歳の男女を対象に、WEBアンケート調査を実施しています。内容には回答者の主観的な表現が含まれる場合があるほか、事実と異なる場合もございます。ご了承ください。
- 京都府京都市山科区西野阿芸沢町に住む人の口コミ50代女性
- 公共交通機関が多いので出かけやすい。山も川も目に入るところにあるし、鳥もよく見かける。季節の移り変わりを感じることができる。
- 京都府京都市山科区御陵大津畑町に住む人の口コミ60代男性
- 買い物、交通の便に関しては、ここ以上のころはない。歴史もあり、山も近く、川もあるので自然環境的にもかなり恵まれている。
- 京都府京都市山科区西野野色町に住む人の口コミ30代女性
- 複数駅が使えるが、どの路線も徒歩20分以上かかる。ある程度のスーパーはあるが、大型の商業施設が存在しない。
- 京都府京都市山科区音羽役出町に住む人の口コミ60代女性
- 老人も多いが若い家族が増えていて活気がある。老若男女バランスよく人も多すぎず少なすぎず、交通の便がいい。
- 京都府京都市山科区竹鼻木ノ本町に住む人の口コミ60代男性
- スーパー、コンビニ等店が多く、公共交通機関、車での移動が便利
- 京都府京都市山科区東野中井ノ上町に住む人の口コミ30代男性
- 他の地域に比べると家賃が安い。歴史的にも深い地域で、交通の要所で、滋賀、奈良、京都、大阪に平均的に行きやすい。
- 京都府京都市山科区東野舞台町に住む人の口コミ40代女性
- ある程度のものがそろっていて、交通機関も色々あり過ごしやすい。
- 京都府京都市山科区西野離宮町に住む人の口コミ30代女性
- 衣食住、交通に不便がなく、京都市内中心部、大阪などにもすぐ行けるため。
- 京都府京都市山科区音羽役出町に住む人の口コミ30代女性
- スーパー、ドラッグストアなどがたくさんあり、生活に必要なものがすぐに買える。新快速がとまる駅で便利。病院が近い。マンションが多く、高いためやや家は手狭になる。
- 京都府京都市山科区西野大手先町に住む人の口コミ50代男性
- 特に目立って悪いところが無い。洛外とはいえ、京都なので歴史はある。
物件概要
- 建物構造
- RC(鉄筋コンクリート)
- 駐車場
- 空有 11,000円(税込)
- 総戸数
- 49戸
- 契約形態
- -
- 契約期間
- 2年間
- 更新料
- -
- その他費用
- 鍵交換費用:19,800円、室内清掃費用:44,000円、LIFE SUPPORT:1,100円
- 保証会社
加入要
保証会社:あんしんプラス
保証会社利用料:初回:月額賃料等の40%、月額:支払い手数料880円、更新時:月額賃料等の20%/2年
- 住宅保険
- 要
- 管理
- -
- LIFULL HOME'S
物件番号 - 0113625-0302245
- 自社管理番号
- 02-00E72-A-503-61
- 取引態様
- 専属専任媒介
- 会社名
- ウインズリンク株式会社 アパマンショップ京都駅前店
営業スタッフコメント

ウインズリンク株式会社 アパマンショップ京都駅前店 係長
石田凛太郎
どのような条件でもお任せください!全力でお探しいたします!
業界経験7年
- 会社実績や特徴・サービス情報
- 「京都駅前店のこだわり…室内写真は広角レンズ等を使わずに出来る限り現状のお部屋をお伝え出来るよう撮影してます。」お問い合わせはアパマンショップ京都駅前店までお待ちしております。
「京都駅前店のこだわり…室内写真は広角レンズ等を使わずに出来る限り現状のお部屋をお伝え出来るよう撮影してます。」お問い合わせはアパマンショップ京都駅前店までお待ちしております。
- 電話でお問合せ(通話無料)
お問合せ先 :ウインズリンク株式会社 アパマンショップ京都駅前店
不動産会社情報
ウインズリンク株式会社 アパマンショップ京都駅前店 アパマンショップ京都駅前店

京都府京都市下京区東洞院通七条下る東塩小路町541−1
JR東海道・山陽本線 京都駅 徒歩3分
- 営業時間
- 09:30~19:00
- 定休日
- なし(盆休み8/13〜8/16・年末年始12/27〜1/4)
優良店認定
お部屋探しは全国ネットで安心の「アパマンショップ」へ!オンラインでのご相談・ご内見もお任せ下さい!京都駅から歩いてスグ、他府県からお越しのお客様、地理に自信の無い方は京都タワーまでお迎えに上がります!
- 店舗の特徴
- 賃貸管理業務
- 引越し業者紹介可
- 年中無休
- 駐車場あり
- 送迎あり
- オンライン相談可
- 保証人不要な物件あり
- 法人契約取扱い
- 19時以降も営業
- 駅から歩いて3分以内
電話でお問合せお客様の電話番号は不動産会社には通知されません
- 不動産会社に
つながります
お客様の電話番号は不動産会社に通知されません
- ※光IP電話、及びIP電話からはご利用になれません
- ※お電話によるお問合せは、店舗営業時間内にお願いします。つながらない場合は、お問合せフォームよりお問合せください
- ※不動産会社がお電話に出られなかった場合、お問合せいただいた後に不動産会社より折り返しのお電話がある場合がございます(お客様が非通知設定した場合は対象外です)
- ※株式会社LIFULLは電話会社が提供するサービスを介してお客様の発信者番号を受領後、折り返し専用の電話番号を発番してお問合せの不動産会社に通知します(お客様の発信者番号がお問合せの不動産会社に通知されることはございません)
- ※携帯電話からお問合せいただいた方に対し、株式会社LIFULLは電話会社が提供するメッセ―ジサービスを介してお客様の発信者番号を受領後、ショートメッセージ(SMS)またはLINE通知メッセージによるお問合せ内容に関する通知をお届けする場合があります
- ※お客様が通話中に不動産会社にお伝えになったお客様の個人情報及び、電話会社が発番する折り返し専用の電話番号は、お問合せ先不動産会社が資料送付・電子メール送信・電話連絡などの目的で保管する可能性があります。お問合せ先不動産会社が保管する個人情報の取扱いについては、各不動産会社に直接お問合せください
- ※株式会社LIFULLでは本サービスを円滑に運用するために、お客様の発信者番号をサービスご利用の控えとして一定期間保管いたします
- ※上記および株式会社LIFULLの個人情報の取扱い方針に同意のうえ、お電話ください
【LIFULL HOME'S物件番号】0113625-0302245【自社管理番号】02-00E72-A-503-61
初期費用・月額費用をあわせて確認!この物件に住んだときの費用めやす
めやすを見るこの物件に住んだときの費用めやす
- 初期費用
- 月額費用
- 追加費用※ご確認ください
追加で費用が
かかる場合があります
必ずご確認ください
初期費用めやす約0円
追加で費用がかかります(※)敷金
0
- 礼金
0
賃料+共益費・管理費の1ヶ月分として換算
賃料の1ヶ月分+税として換算。不動産会社によって金額が異なるため正確な金額は不動産会社にお問合せください
※追加費用もチェック!
これらの項目以外にも費用がかかる場合があります。正確な金額は不動産会社にお問合せください。
- 初期費用
- 鍵交換費:19,800円
- 室内清掃費:44,000円
- 火災保険費:不動産会社に要確認
- 月額費用
- 駐車場費:11,000円(税込)※契約任意
- その他
- LIFE SUPPORT:1100円
- 保証会社
- 初回:月額賃料等の40%、月額:支払い手数料880円、更新時:月額賃料等の20%/2年
不動産会社より
インターネット無料です ディスカウントショップなど便利な施設がある楽しいエリア・
単身の方からお子様がおられるご家族の方まで幅広くご対応出来るマンション。レストラン、ディスカウントショップなど便利な施設が色々揃っていて楽しいエリアです・アパマンショップキャンペーン中 詳しくはアパマンショップホームページまで。京都のお部屋探しはアパマンショップ京都までお気軽に。
- 保存する
- 共有する
- ※各種情報と現状に差異がある場合は、現状優先となります
- ※不動産会社が入力した情報を基に物件の位置を表示しています。詳しくは不動産会社までお問合せください
- ※不動産会社の方からの上記電話番号によるお問合せはお断りしております。こちら不動産会社詳細からお問合せください
- ※LIFULL HOME'Sは物件鮮度No.1を目指していきます。閲覧中の物件が「成約済である」「実際の物件情報と異なる点がある」などの場合、「掲載110番」からお問合せください
- ※QRコードは株式会社デンソーウェーブの登録商標です
したい暮らしのタグから探す
LIFULL HOME'S 地図・周辺情報
買い物
- ローソン 山科西野店
- ジャパン 山科店
- ドラッグユタカ山科音羽店
- ローソン 山科左義長店
- フレスコ 西野店
グルメ
- ロイヤルホスト 山科西野店
- すき家 1国山科西野店
- スシロー 山科店
- ケンタッキーフライドチキン R1山科店
- 無添くら寿司 山科店
育児・教育
- 洛東幼稚園
- 京都市立山階小学校
- 京都市立安祥寺中学校
- 山階保育園
- 京都市立山階南小学校
医療
- 加藤山科病院
- 一般社団法人愛生会山科病院
- 恵仁会なぎ辻病院
- 医療法人社団洛和会洛和会音羽病院
- 医療法人社団洛和会洛和会音羽リハビリテーション病院
公共施設・郵便局
- 山科郵便局
- 京都市山科図書館
- 京都市山科区役所
- 京都山科西野郵便局
- 山科警察署
公園
- 東山山頂公園
利用可能な駅
- 徒歩10分以内
京都地下鉄東西線
- 東野駅徒歩8分
- すべての駅
JR東海道・山陽本線
- 山科駅徒歩19分
京都地下鉄東西線
- 椥辻駅徒歩19分
- 小野駅徒歩36分
京阪京津線
- 京阪山科駅徒歩20分
- 御陵駅徒歩26分
- 四宮駅徒歩28分
- 追分駅3.3km
- 周辺情報は2023年07月21日時点のものになります。
- 周辺情報は、参考情報としてのみご利用ください(周辺情報は、株式会社LIFULLが地図情報の提供事業者から提供を受けた情報とLIFULL HOME'Sの物件情報に基づき、独自の方法で抽出し提供しているものです。周辺情報は、移転や閉鎖等により情報が最新ではない、または正しくない場合がありますが、地図情報の提供事業者から提供された情報をそのまま周辺情報として表示しているため、正確かつ最新の情報へ修正することができないことがあります。)
- 周辺情報は、株式会社LIFULLが掲載するものであり、不動産物件情報を掲載している不動産会社が掲載するものではありません
- 交通情報の一部については、株式会社LIFULLが掲載するものであり、不動産物件情報を掲載している不動産会社が掲載するものではない場合があります。交通情報に関する質問などは株式会社LIFULLにお問合せください


















