LIFULL HOME'Sは物件鮮度No.1!※評価について
ヴィラージュ岩倉 2階/205
4.8万円/管理費等-
2025/12/02 更新
画像一覧
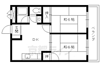
1/30間取り
2/30外観
3/30リビング/ダイニング
和室
4/30室内
和室
5/30寝室
和室
6/30寝室
和室
7/30子供部屋
和室
8/30キッチン
キッチン
9/30キッチン
キッチン
10/30キッチン
キッチン
11/30浴室
風呂
12/30トイレ
トイレ
13/30洗面
洗面所
14/30収納
収納
15/30収納
収納
16/30設備
下駄箱
17/30設備
洗濯機置場
18/30設備
洗濯機置場
19/30玄関
玄関
20/30バルコニー
ベランダ
21/30エントランス
エントランス
22/30駐車場
駐車場
23/30その他
眺望
24/30その他
シンク
25/30その他
眺望
26/30その他
コンロ置き場
27/30その他
通路
28/30その他
階段
29/30周辺
Aコープ 中央岩倉店まで460メートル
30/30周辺
ローソン 岩倉西河原店まで130メートル
間取り
外観
リビング/ダイニング
室内
寝室
寝室
子供部屋
キッチン
キッチン
キッチン
浴室
トイレ
洗面
収納
収納
設備
設備
設備
玄関
バルコニー
エントランス
駐車場
その他
その他
その他
その他
その他
その他
周辺
周辺
お問合せ先 :株式会社エリッツ 北山店
住まい探し特典内容
電気・ガス・インターネットの手続き代行のご案内します。
- 利用条件
- 株式会社エリッツ 北山店で利用可
- 他特典との併用可
利用方法
来店時に本特典の画面をスマートフォンやタブレットでスタッフに提示、または画面印刷した用紙を提示ください。
有効期限 なし
【学生用の条件です】一般の方は賃料60、000円です--パノラマ掲載--
物件のこだわり/設備・条件
新築(非該当)
2階以上の物件(該当)
南向き(非該当)
駐車場あり(該当)
オートロック(非該当)
エアコン(非該当)
バス・トイレ別(該当)
追焚機能(非該当)
フローリング(非該当)
ペット相談(非該当)
位置
角部屋入居条件
二人入居可、即入居可キッチン/バス・トイレ
設備・サービス
クローゼット、シューズボックス、CATV、BS対応、光ファイバー、公営水道、プロパンガス、下水、バルコニー、洗濯機置場あり、駐車場あり、バイク置き場あり、駐輪場ありその他
初期費用カード決済可、住まい探し特典あり備考
明徳小学校区、洛北中学校区。岩倉で初期費用を抑えた2DK。2口ガスコンロ設置可能。敷地内に駐車場も完備。岩倉駅まで徒歩6分。叡山電車で出町柳駅まで13分。京阪電車で祇園四条駅まで5分です。・光ファイバーインターネット接続可
物件周辺の生活情報
学校
- 明徳小学校(200m)
- 洛北中学校(620m)
買い物
- コンビニ(130m)
- スーパー(460m)
その他施設
- 総合病院(850m)
交通
- 叡山電鉄鞍馬線 岩倉駅 徒歩8分
- 普通(停車)
- 京都市営烏丸線 国際会館駅 徒歩18分
- 普通(停車)
- 急行(停車)
※急行等の停車駅情報について
急行等の停車駅に関するデータは、随時更新をしておりますが、最新の内容であることを保証するものではありません。
最新かつ正確な情報につきましては、各鉄道会社のウェブサイトにてご確認ください
物件周辺の口コミ
- 京都府京都市左京区岩倉西河原町に住む人の口コミ40代女性
徒歩圏内にスーパー、ドラッグストア、コンビニ、郵便局があるし、バスや電車の便もいいから。
口コミを見る
この物件周辺に住む人の口コミ
口コミは、LIFULL HOME'Sが実際にこの物件の周辺に住む18歳~69歳の男女を対象に、WEBアンケート調査を実施しています。内容には回答者の主観的な表現が含まれる場合があるほか、事実と異なる場合もございます。ご了承ください。
- 京都府京都市左京区岩倉西河原町に住む人の口コミ40代女性
- 徒歩圏内にスーパー、ドラッグストア、コンビニ、郵便局があるし、バスや電車の便もいいから。
- 京都府京都市左京区岩倉三笠町に住む人の口コミ30代男性
- 自然も多いが、交通も選択が多くて移動しやすく生活しやすいから。
- 京都府京都市左京区岩倉村松町に住む人の口コミ30代女性
- 風致地区なので、お店は徒歩圏内にはないが、バスの本数も増えたし、駅までも行きやすくなっている。車がなくては生活しにくいが、横に山と川があるので、遠出しなくても遊び場があって、満足している。
- 京都府京都市左京区岩倉村松町に住む人の口コミ50代男性
- 以前から「郊外の住宅街」という感じだったが、土地開発が進み人口が増えてきた。それに伴って便利にもなったが、いろんな人が増えるにつれて今までになかった問題も増えている。
- 京都府京都市左京区岩倉南河原町に住む人の口コミ30代女性
- 小学校も近く、人口が多いので登下校に一人になることはない。スーパーも近くにあるし、ホームセンターもあるし、買い物しやすい。
- 京都府京都市左京区岩倉南河原町に住む人の口コミ30代女性
- 道路が広く運転しやすい。子どもたちが遊べる公園が近くにいくつかある。ドラッグストア、コンビニ、スーパーが近くにある。歯科、内科、小児科、整形外科、皮膚科、眼科、歯科すべて徒歩圏内にある。
- 京都府京都市左京区岩倉南河原町に住む人の口コミ30代女性
- 自然豊かなのにスーパーや病院なども多く過ごしやすいです。ですが街中までは少し遠いです。
- 京都府京都市左京区岩倉三笠町に住む人の口コミ30代女性
- もう少し外食できるお店は欲しいけど、それ以外は満足してます。
- 京都府京都市左京区岩倉村松町に住む人の口コミ50代男性
- 古くから住んでいるので街には満足しているが、新しい住人が多くなってきてモラルやマナーの悪い人が増えている。
- 京都府京都市左京区岩倉花園町に住む人の口コミ40代男性
- 田舎でもなく都会でもなく、ちょうど良い環境。お年寄りにも優しい街
物件概要
- 建物構造
- RC(鉄筋コンクリート)
- 駐車場
- 空有 5,000円(税込)
- 総戸数
- 16戸
- 契約形態
- -
- 契約期間
- 2年間
- 更新料
- 新賃料の1ヶ月分
- その他費用
- 駐車場手数料(初回):5,500円
- 保証会社
加入要
保証会社利用料:36、400円
- 住宅保険
- 要
- 管理
- -
- LIFULL HOME'S
物件番号 - 0132666-0155165
- 自社管理番号
- 10111-0205-2
- 取引態様
- 仲介
- 会社名
- 株式会社エリッツ 北山店
営業スタッフコメント

株式会社エリッツ 北山店店長
橋本
親切丁寧にご対応いたします
業界経験17年
資格宅地建物取引士、少額短期保険募集人、損害保険募集人
- スタッフ情報
- 京都市北部でお部屋をお探しの方は是非エリッツ北山店にお越しください。 学生様も社会人様ももちろんファミリー様向けの物件まで幅広く取り扱っております。 北山・松ケ崎・国際会館周辺でお探しの方は是非。
京都市北部でお部屋をお探しの方は是非エリッツ北山店にお越しください。 学生様も社会人様ももちろんファミリー様向けの物件まで幅広く取り扱っております。 北山・松ケ崎・国際会館周辺でお探しの方は是非。
- 電話でお問合せ(通話無料)
お問合せ先 :株式会社エリッツ 北山店
不動産会社情報
株式会社エリッツ 北山店

京都府京都市北区上賀茂岩ケ垣内町95 スギサキビル1階
京都市営烏丸線 北山駅 徒歩1分
- 営業時間
- 10:00~19:00
- 定休日
- 水曜日(祝日を除く)、年末年始 ※部屋探しのお問い合わせは無休
優良店認定
エリッツ北山店は地下鉄北山駅、2番出口より徒歩1分、北山通り沿いにあります。スタッフ一同、お客様のご来店・お問い合わせをお待ちしております。お車でのご来店は最寄りパーキングをご利用下さい(清算有)
- 店舗の特徴
- 24時間管理物件取扱い
- リフォーム対応
- 引越し業者紹介可
- バリアフリー
- 社宅・寮物件取扱い
- オンライン相談可
- 保証人不要な物件あり
- 法人契約取扱い
- 駅から歩いて3分以内
電話でお問合せお客様の電話番号は不動産会社には通知されません
- 不動産会社に
つながります
お客様の電話番号は不動産会社に通知されません
- ※光IP電話、及びIP電話からはご利用になれません
- ※お電話によるお問合せは、店舗営業時間内にお願いします。つながらない場合は、お問合せフォームよりお問合せください
- ※不動産会社がお電話に出られなかった場合、お問合せいただいた後に不動産会社より折り返しのお電話がある場合がございます(お客様が非通知設定した場合は対象外です)
- ※株式会社LIFULLは電話会社が提供するサービスを介してお客様の発信者番号を受領後、折り返し専用の電話番号を発番してお問合せの不動産会社に通知します(お客様の発信者番号がお問合せの不動産会社に通知されることはございません)
- ※携帯電話からお問合せいただいた方に対し、株式会社LIFULLは電話会社が提供するメッセ―ジサービスを介してお客様の発信者番号を受領後、ショートメッセージ(SMS)またはLINE通知メッセージによるお問合せ内容に関する通知をお届けする場合があります
- ※お客様が通話中に不動産会社にお伝えになったお客様の個人情報及び、電話会社が発番する折り返し専用の電話番号は、お問合せ先不動産会社が資料送付・電子メール送信・電話連絡などの目的で保管する可能性があります。お問合せ先不動産会社が保管する個人情報の取扱いについては、各不動産会社に直接お問合せください
- ※株式会社LIFULLでは本サービスを円滑に運用するために、お客様の発信者番号をサービスご利用の控えとして一定期間保管いたします
- ※上記および株式会社LIFULLの個人情報の取扱い方針に同意のうえ、お電話ください
【LIFULL HOME'S物件番号】0132666-0155165【自社管理番号】10111-0205-2
オンライン対応
オンライン内見・オンライン相談・IT重説に対応している物件です

「オンライン内見」「オンライン相談」「IT重説」とは?
物件の内見や不動産会社スタッフとの相談、契約前の重要事項説明をオンライン(ビデオ通話)で行うことができるサービスです。
オンライン内見
ビデオ通話で現地(物件)にいる不動産会社スタッフと映像・音声を使ってリアルタイムで会話しながら内見ができます。
オンライン相談
「物件について聞きたいことがある」など不動産会社スタッフへの相談もビデオ通話で行うことができます。
IT重説
契約前の重要事項説明(重説)をビデオ通話で行うことができます。
利用時の注意事項
- ビデオ通話については各不動産会社指定のものとなります。
- ビデオ通話利用時には通信が発生します。従量課金制通信サービスや通信量に上限があるネット回線・プランを利用する場合は、通信量にご注意ください。
- 通信速度やアプリの設定によってはビデオ通話の画質が低下することがあります。安定した画質で利用するためにも、Wi-Fi環境下での利用を推奨します。
- ご利用のビデオ通話アプリによっては、対象のOSやブラウザに制限がある場合があります。詳しくはお問合せ先不動産会社にご確認ください。
初期費用・月額費用をあわせて確認!この物件に住んだときの費用めやす
めやすを見るこの物件に住んだときの費用めやす
- 初期費用
- 月額費用
- 追加費用※ご確認ください
追加で費用が
かかる場合があります
必ずご確認ください
初期費用めやす約0円
追加で費用がかかります(※)敷金
0
- 礼金
0
賃料+共益費・管理費の1ヶ月分として換算
賃料の1ヶ月分+税として換算。不動産会社によって金額が異なるため正確な金額は不動産会社にお問合せください
※追加費用もチェック!
これらの項目以外にも費用がかかる場合があります。正確な金額は不動産会社にお問合せください。
- 初期費用
- 鍵交換費:不動産会社に要確認
- 室内清掃費:不動産会社に要確認
- 火災保険費:不動産会社に要確認
- 月額費用
- 駐車場費:5,000円(税込)※契約任意
- その他
- 駐車場手数料(初回):5500円
- 保証会社
- 36、400円
不動産会社より
【学生用の条件です】一般の方は賃料60、000円です--パノラマ掲載--
明徳小学校区、洛北中学校区。岩倉で初期費用を抑えた2DK。2口ガスコンロ設置可能。敷地内に駐車場も完備。岩倉駅まで徒歩6分。叡山電車で出町柳駅まで13分。京阪電車で祇園四条駅まで5分です。・光ファイバーインターネット接続可
- 保存する
- 共有する
- ※各種情報と現状に差異がある場合は、現状優先となります
- ※不動産会社が入力した情報を基に物件の位置を表示しています。詳しくは不動産会社までお問合せください
- ※不動産会社の方からの上記電話番号によるお問合せはお断りしております。こちら不動産会社詳細からお問合せください
- ※LIFULL HOME'Sは物件鮮度No.1を目指していきます。閲覧中の物件が「成約済である」「実際の物件情報と異なる点がある」などの場合、「掲載110番」からお問合せください
- ※QRコードは株式会社デンソーウェーブの登録商標です
したい暮らしのタグから探す
この物件を取扱う他の会社
LIFULL HOME'Sでは、主要項目が同一の物件をまとめて表示しています。所在地や営業時間、掲載画像等から不動産会社を選んでお問合せください。
LIFULL HOME'S 地図・周辺情報
買い物
- ローソン 岩倉西河原店
- Aコープ 京都中央岩倉店
- ドラッグユタカ宝ヶ池店
- セブンイレブン 京都岩倉忠在地町店
- FOOD SHOPエムジー 岩倉店
グルメ
- 餃子の王将 宝ケ池店
- マクドナルド 宝ヶ池店
- ガスト 京都宝ヶ池店(から好し取扱店)
- にぎり長次郎 宝ヶ池店
- すき家 京都産業大学店
育児・教育
- 京都市立明徳幼稚園
- 京都市立明徳小学校
- 京都市立洛北中学校
- 京都ふうりん保育園
- 私立同志社小学校
医療
- 医療法人稲門会いわくら病院
- 医療法人寿尚会洛陽病院
- 医療法人三幸会北山病院
- 医療法人三幸会第二北山病院
- 医療法人浜田会洛北病院
公共施設・郵便局
- 京都岩倉郵便局
- 京都市岩倉図書館
- 京都市左京区役所
- 京都岩倉幡枝郵便局
- 京都上高野郵便局
公園
- 岩倉南公園
- 長谷土田公園
- 宝が池公園
- 宝が池公園子どもの楽園
利用可能な駅
- 徒歩10分以内
叡山電鉄鞍馬線
- 岩倉駅徒歩8分
- すべての駅
叡山電鉄鞍馬線
- 木野駅徒歩13分
- 八幡前駅徒歩22分
- 京都精華大前駅徒歩26分
- 二軒茶屋駅徒歩32分
- 市原駅4km
京都市営烏丸線
- 国際会館駅徒歩18分
- 松ヶ崎駅3.2km
- 北山駅3.7km
叡山電鉄叡山本線
- 三宅八幡駅徒歩26分
- 宝ケ池駅徒歩32分
- 八瀬比叡山口駅3.4km
- 修学院駅3.5km
- 周辺情報は2023年07月21日時点のものになります。
- 周辺情報は、参考情報としてのみご利用ください(周辺情報は、株式会社LIFULLが地図情報の提供事業者から提供を受けた情報とLIFULL HOME'Sの物件情報に基づき、独自の方法で抽出し提供しているものです。周辺情報は、移転や閉鎖等により情報が最新ではない、または正しくない場合がありますが、地図情報の提供事業者から提供された情報をそのまま周辺情報として表示しているため、正確かつ最新の情報へ修正することができないことがあります。)
- 周辺情報は、株式会社LIFULLが掲載するものであり、不動産物件情報を掲載している不動産会社が掲載するものではありません
- 交通情報の一部については、株式会社LIFULLが掲載するものであり、不動産物件情報を掲載している不動産会社が掲載するものではない場合があります。交通情報に関する質問などは株式会社LIFULLにお問合せください











