LIFULL HOME'Sは物件鮮度No.1!※評価について
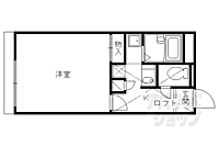
レオパレス洛西(2階/208/1K/20.28m²)
レオパレス洛西(2階/208/1K/20.28m²)
5.3万円/管理費等7,000円
13時間前 更新
画像一覧
1/29外観
2/29外観
3/29リビング/ダイニング
洋室
4/29室内
洋室
5/29寝室
洋室
6/29寝室
洋室
7/29子供部屋
洋室
8/29キッチン
キッチン
9/29キッチン
キッチン
10/29キッチン
キッチン
11/29浴室
風呂
12/29浴室
風呂
13/29トイレ
トイレ
14/29洗面
洗面所
15/29収納
収納
16/29収納
収納
17/29設備
下駄箱
18/29設備
冷蔵庫置場
19/29設備
洗濯機置場
20/29設備
下駄箱
21/29設備
冷蔵庫置場
22/29玄関
玄関
23/29駐車場
駐車場
24/29その他
廊下
25/29その他
エアコン
26/29その他
ドアホン
27/29周辺
業務スーパー 洛西店まで1300メートル
28/29周辺
ローソン 大枝沓掛店まで2200メートル
29/29周辺
高島屋 洛西店まで2100メートル
外観
外観
リビング/ダイニング
室内
寝室
寝室
子供部屋
キッチン
キッチン
キッチン
浴室
浴室
トイレ
洗面
収納
収納
設備
設備
設備
設備
設備
玄関
駐車場
その他
その他
その他
周辺
周辺
周辺
お問合せ先 :株式会社エリッツ 桂店
1〜3月は引越しシーズンのピークです。お問合せはお早めに!
住まい探し特典内容
電気・ガス・インターネットの手続き代行のご案内します。
- 利用条件
- 株式会社エリッツ 桂店で利用可
- 他特典との併用可
利用方法
来店時に本特典の画面をスマートフォンやタブレットでスタッフに提示、または画面印刷した用紙を提示ください。
有効期限 なし
ロフト付きの賃貸物件です。--パノラマ掲載--
物件のこだわり/設備・条件
新築(非該当)
2階以上の物件(該当)
南向き(非該当)
駐車場(非該当)
オートロック(非該当)
エアコン(該当)
バス・トイレ別(該当)
追焚機能(非該当)
フローリング(該当)
ペット相談(非該当)
入居条件
二人入居可、保証人不要- 上記以外や相談可の
詳細はお問合せください キッチン/バス・トイレ
設備・サービス
エアコン、クローゼット、インターネット対応、公営水道、プロパンガス、下水、フローリング、バルコニー、室内洗濯機置場、家具・家電付き、宅配ボックス、駐輪場ありその他
住まい探し特典あり備考
阪急桂駅から徒歩32分にある1Kタイプのロフト付き物件です。周辺施設にはコンビニやスーパーに飲食店もあり生活するには便利な立地です。お風呂トイレ別、家具付き。・インターネット接続可
物件周辺の生活情報
買い物
- コンビニ(2,200m)
- スーパー(1,300m)
その他施設
- 総合病院(1,500m)
交通
- 阪急京都本線 桂駅 徒歩32分
- 普通(停車)
- 準急(停車)
- 堺筋準急(停車)
- 通勤特急(停車)
- 特急(停車)
- 急行(停車)
- 準特急(停車)
- 阪急京都本線 洛西口駅 徒歩35分
- 普通(停車)
- 準急(停車)
- 堺筋準急(停車)
- 通勤特急(通過)
- 特急(通過)
- 急行(通過)
- 準特急(通過)
※急行等の停車駅情報について
急行等の停車駅に関するデータは、随時更新をしておりますが、最新の内容であることを保証するものではありません。
最新かつ正確な情報につきましては、各鉄道会社のウェブサイトにてご確認ください
物件概要
- 建物構造
- 鉄骨造
- 駐車場
- -
- 総戸数
- 20戸
- 契約形態
- -
- 契約期間
- 2年間
- 更新料
- -
- その他費用
- 鍵交換費用:16,500円、室内清掃費用:41,800円、設備維持費(月額):550円、インターネット使用料(月額):3,630円
- 保証会社
加入要
保証会社利用料:68、200円
- 住宅保険
- 要
- 管理
- -
- LIFULL HOME'S
物件番号 - 0111205-0290950
- 自社管理番号
- 100155-0208
- 取引態様
- 仲介
- 会社名
- 株式会社エリッツ 桂店
営業スタッフコメント

株式会社エリッツ 桂店
長曽
精一杯お客様のお部屋探しを手伝わさせていただきます
業界経験2年
資格宅地建物取引士、少額短期保険募集人
- 会社実績や特徴・サービス情報
- 西京区、南区、向日市でお部屋探しをされるなら、地域一番の賃貸のエリッツ桂店へ是非ご来店下さい。 エリッツ桂店は阪急桂駅東口前にございます。阪急桂駅は、特急停車駅です。特急で烏丸駅までは約5分とアクセス面が便利です。桂エリアは、市内中心部に比べると家賃、駐車場代がおさえることができます。シングル、新婚様、ファミリーを問わず賃貸人気の高いエリアです。ガレージ付き賃貸、ペット飼育可賃貸、戸建て賃貸など多数情報を揃えています。
西京区、南区、向日市でお部屋探しをされるなら、地域一番の賃貸のエリッツ桂店へ是非ご来店下さい。 エリッツ桂店は阪急桂駅東口前にございます。阪急桂駅は、特急停車駅です。特急で烏丸駅までは約5分とアクセス面が便利です。桂エリアは、市内中心部に比べると家賃、駐車場代がおさえることができます。シングル、新婚様、ファミリーを問わず賃貸人気の高いエリアです。ガレージ付き賃貸、ペット飼育可賃貸、戸建て賃貸など多数情報を揃えています。
- 電話でお問合せ(通話無料)
お問合せ先 :株式会社エリッツ 桂店
不動産会社情報
株式会社エリッツ 桂店賃貸のエリッツ桂店

京都府京都市西京区桂野里町17-3 プランド‐ル1階
阪急京都本線 桂駅 徒歩1分
- 営業時間
- 10:00~19:00
- 定休日
- 年中無休(年末年始を除く)
優良店認定
京都市内のお部屋探しはエリッツ桂店までお問い合わせ下さい。阪急沿線は桂駅、上桂駅、東向日駅、JR沿線は桂川駅、向日町駅周辺でしたらお任せ下さい。親切、丁寧に、お客様にぴったりのお部屋をご紹介します。
- 店舗の特徴
- 賃貸管理業務
- 24時間管理物件取扱い
- 引越し業者紹介可
- 年中無休
- 駐車場あり
- オンライン相談可
- 保証人不要な物件あり
- 法人契約取扱い
- 女性スタッフ対応可
- 駅から歩いて3分以内
電話でお問合せお客様の電話番号は不動産会社には通知されません
- 不動産会社に
つながります
お客様の電話番号は不動産会社に通知されません
- ※光IP電話、及びIP電話からはご利用になれません
- ※お電話によるお問合せは、店舗営業時間内にお願いします。つながらない場合は、お問合せフォームよりお問合せください
- ※不動産会社がお電話に出られなかった場合、お問合せいただいた後に不動産会社より折り返しのお電話がある場合がございます(お客様が非通知設定した場合は対象外です)
- ※株式会社LIFULLは電話会社が提供するサービスを介してお客様の発信者番号を受領後、折り返し専用の電話番号を発番してお問合せの不動産会社に通知します(お客様の発信者番号がお問合せの不動産会社に通知されることはございません)
- ※携帯電話からお問合せいただいた方に対し、株式会社LIFULLは電話会社が提供するメッセ―ジサービスを介してお客様の発信者番号を受領後、ショートメッセージ(SMS)またはLINE通知メッセージによるお問合せ内容に関する通知をお届けする場合があります
- ※お客様が通話中に不動産会社にお伝えになったお客様の個人情報及び、電話会社が発番する折り返し専用の電話番号は、お問合せ先不動産会社が資料送付・電子メール送信・電話連絡などの目的で保管する可能性があります。お問合せ先不動産会社が保管する個人情報の取扱いについては、各不動産会社に直接お問合せください
- ※株式会社LIFULLでは本サービスを円滑に運用するために、お客様の発信者番号をサービスご利用の控えとして一定期間保管いたします
- ※上記および株式会社LIFULLの個人情報の取扱い方針に同意のうえ、お電話ください
【LIFULL HOME'S物件番号】0111205-0290950【自社管理番号】100155-0208
オンライン対応
オンライン相談・IT重説に対応している物件です

「オンライン内見」「オンライン相談」「IT重説」とは?
物件の内見や不動産会社スタッフとの相談、契約前の重要事項説明をオンライン(ビデオ通話)で行うことができるサービスです。
オンライン内見
ビデオ通話で現地(物件)にいる不動産会社スタッフと映像・音声を使ってリアルタイムで会話しながら内見ができます。
オンライン相談
「物件について聞きたいことがある」など不動産会社スタッフへの相談もビデオ通話で行うことができます。
IT重説
契約前の重要事項説明(重説)をビデオ通話で行うことができます。
利用時の注意事項
- ビデオ通話については各不動産会社指定のものとなります。
- ビデオ通話利用時には通信が発生します。従量課金制通信サービスや通信量に上限があるネット回線・プランを利用する場合は、通信量にご注意ください。
- 通信速度やアプリの設定によってはビデオ通話の画質が低下することがあります。安定した画質で利用するためにも、Wi-Fi環境下での利用を推奨します。
- ご利用のビデオ通話アプリによっては、対象のOSやブラウザに制限がある場合があります。詳しくはお問合せ先不動産会社にご確認ください。
初期費用・月額費用をあわせて確認!この物件に住んだときの費用めやす
めやすを見るこの物件に住んだときの費用めやす
- 初期費用
- 月額費用
- 追加費用※ご確認ください
追加で費用が
かかる場合があります
必ずご確認ください
初期費用めやす約0円
追加で費用がかかります(※)敷金
0
- 礼金
0
賃料+共益費・管理費の1ヶ月分として換算
賃料の1ヶ月分+税として換算。不動産会社によって金額が異なるため正確な金額は不動産会社にお問合せください
※追加費用もチェック!
これらの項目以外にも費用がかかる場合があります。正確な金額は不動産会社にお問合せください。
- 初期費用
- 鍵交換費:16,500円
- 室内清掃費:41,800円
- 火災保険費:不動産会社に要確認
- その他
- 設備維持費(月額):550円
- インターネット使用料(月額):3630円
- 保証会社
- 68、200円
不動産会社より
ロフト付きの賃貸物件です。--パノラマ掲載--
阪急桂駅から徒歩32分にある1Kタイプのロフト付き物件です。周辺施設にはコンビニやスーパーに飲食店もあり生活するには便利な立地です。お風呂トイレ別、家具付き。・インターネット接続可
- 保存する
- 共有する
- ※各種情報と現状に差異がある場合は、現状優先となります
- ※不動産会社が入力した情報を基に物件の位置を表示しています。詳しくは不動産会社までお問合せください
- ※不動産会社の方からの上記電話番号によるお問合せはお断りしております。こちら不動産会社詳細からお問合せください
- ※LIFULL HOME'Sは物件鮮度No.1を目指していきます。閲覧中の物件が「成約済である」「実際の物件情報と異なる点がある」などの場合、「掲載110番」からお問合せください
- ※QRコードは株式会社デンソーウェーブの登録商標です
この物件を取扱う他の会社
LIFULL HOME'Sでは、主要項目が同一の物件をまとめて表示しています。所在地や営業時間、掲載画像等から不動産会社を選んでお問合せください。
株式会社エリッツ 長岡天神店
京都府長岡京市開田3丁目1−22
阪急京都本線 長岡天神駅 徒歩1分
- 営業時間
- 10:00~19:00
- 定休日
- 水曜日(祝日を除く)お部屋探しのお問合せは無休です
株式会社エリッツ 亀岡駅前店
優良店認定
京都府亀岡市追分町大堀17番地6 満寿家ビル1F
JR山陰本線 亀岡駅 徒歩1分
- 営業時間
- 10:00~19:00
- 定休日
- 年中無休(年末年始を除く)
- この会社の
No image
物件情報を見るレオパレスセンター京都第1
優良店認定
京都府京都市中京区烏丸通錦小路上る手洗水町670 京都フクトクビル1F
阪急京都本線 烏丸駅 徒歩3分
- 営業時間
- 10:00~18:00
- 定休日
- 定休日なし
LIFULL HOME'S 地図・周辺情報
買い物
- セブンイレブン 京都大枝中山店
- ダイソーエディオン洛西店
- ドラッグストアライフォート洛西店
- ローソン 樫原硲町店
- ドン・キホーテ 洛西店
グルメ
- はま寿司京都洛西店
- 丸亀製麺京都洛西店
- 松屋 桂店
- 和食さと 京都桂店
- 吉野家 9号線洛西中山店
育児・教育
- 京都白百合保育園
- 京都市立大枝小学校
- 京都市立樫原中学校
- 京都三ノ宮幼稚園
- 京都市立樫原小学校
医療
- 医療法人清人会洛西ニュータウン病院
- 社会福祉法人京都社会事業財団京都桂病院
- 医療法人真生会向日回生病院
- 医療法人清仁会シミズ病院
- 医療法人清仁会洛西シミズ病院
公共施設・郵便局
- 京都樫原郵便局
- 京都市洛西図書館
- 京都市西京区役所洛西支所
- 洛西郵便局
- 京都市西京図書館
公園
- 御陵公園
- 福西公園
- 境谷公園
- 新林池公園
- 京都市洛西竹林公園
利用可能な駅
- すべての駅
阪急京都本線
- 桂駅徒歩32分
- 洛西口駅徒歩35分
- 東向日駅3.7km
阪急嵐山線
- 上桂駅徒歩32分
JR東海道・山陽本線
- 桂川駅3.4km
- その他交通
- 阪急電鉄嵐山線 桂駅 バス10分 樫原秤谷町下車 徒歩4分
- 周辺情報は2023年07月21日時点のものになります。
- 周辺情報は、参考情報としてのみご利用ください(周辺情報は、株式会社LIFULLが地図情報の提供事業者から提供を受けた情報とLIFULL HOME'Sの物件情報に基づき、独自の方法で抽出し提供しているものです。周辺情報は、移転や閉鎖等により情報が最新ではない、または正しくない場合がありますが、地図情報の提供事業者から提供された情報をそのまま周辺情報として表示しているため、正確かつ最新の情報へ修正することができないことがあります。)
- 周辺情報は、株式会社LIFULLが掲載するものであり、不動産物件情報を掲載している不動産会社が掲載するものではありません
- 交通情報の一部については、株式会社LIFULLが掲載するものであり、不動産物件情報を掲載している不動産会社が掲載するものではない場合があります。交通情報に関する質問などは株式会社LIFULLにお問合せください



















