LIFULL HOME'Sは物件鮮度No.1!※評価について
ハイツ白龍 1階/1D
5.2万円/管理費等2,000円
20時間前 更新
画像一覧
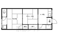
1/30間取り
間取
2/30外観
3/30外観
4/30リビング/ダイニング
落ち着く和室は寝室にいかがでしょう
5/30リビング/ダイニング
敷居とかで上手くアレンジできそうです。
6/30リビング/ダイニング
広めのキッチン辺りのスペースです
7/30リビング/ダイニング
奥行きがあります
8/30リビング/ダイニング
ダイニングにどうぞ
9/30室内
給湯器が中にあります。
10/30室内
洗濯置き場
11/30寝室
和室
12/30キッチン
大きな窓のキッチンです
13/30キッチン
2口コンロ設置可
14/30キッチン
キッチンの収納です。いっぱい入りますね
15/30浴室
窓付きの明るいバス
16/30浴室
明るいお風呂
17/30トイレ
洋式に新設されてます
18/30収納
奥行きが広い収納です
19/30収納
奥行きが広い収納です
20/30設備
洗濯機置き場
21/30設備
エアコンです
22/30設備
ネットはこちらから
23/30設備
ガスはこちらから
24/30玄関
扉は開けてもお部屋が直に見えません
25/30エントランス
26/30その他
27/30その他
28/30その他
29/30その他
30/30周辺
高野中学校まで178m 小中一貫で「生きる力」を育む「高野教育」を推進します。
間取り
外観
外観
リビング/ダイニング
リビング/ダイニング
リビング/ダイニング
リビング/ダイニング
リビング/ダイニング
室内
室内
寝室
キッチン
キッチン
キッチン
浴室
浴室
トイレ
収納
収納
設備
設備
設備
設備
玄関
エントランス
その他
その他
その他
その他
周辺
お問合せ先 :株式会社京都ライフ 百万遍店
仲介手数料割引
京都ライフなら、ご成約時に仲介手数料が家賃の50%(外税)です。
- 利用条件
- 株式会社京都ライフ 百万遍店で利用可
- 他特典との併用可
- ・法人契約時、事業用契約は除く。 ・積水ハウス、大東建託の管理物件は除く。
利用方法
来店時に本特典の画面をスマートフォンやタブレットでスタッフに提示、または画面印刷した用紙を提示ください。
有効期限 なし
利便性良好 大型バイクが置けますよ 叡山茶山駅まですぐの2Kマンションです(徒歩3分)。
物件周辺の生活情報
買い物
- コンビニ(195m)
- スーパー(501m)
その他施設
- 総合病院(1,100m)
- 銀行(385m)
- ケーヨーD2(1,800m)
交通
- 叡山電鉄叡山本線 茶山・京都芸術大学駅 徒歩3分
- 普通(停車)
- 京阪本線 出町柳駅 徒歩20分
- 普通(停車)
- 区間急行(通過)
- 急行(停車)
- 特急(停車)
- 通勤準急・準急(停車)
- 快速特急 洛楽(停車)
- 通勤快急・快速急行(停車)
※急行等の停車駅情報について
急行等の停車駅に関するデータは、随時更新をしておりますが、最新の内容であることを保証するものではありません。
最新かつ正確な情報につきましては、各鉄道会社のウェブサイトにてご確認ください
物件周辺の口コミ
- 京都府京都市左京区一乗寺河原田町に住む人の口コミ20代男性
交通手段はバスがあり、スーパーも大手から個人商店まである。ラーメン街があふので、人も昼間は多く、夜は静か。食べ物には困らず、川も流れており、自然もいい。
口コミを見る
この物件周辺に住む人の口コミ
口コミは、LIFULL HOME'Sが実際にこの物件の周辺に住む18歳~69歳の男女を対象に、WEBアンケート調査を実施しています。内容には回答者の主観的な表現が含まれる場合があるほか、事実と異なる場合もございます。ご了承ください。
- 京都府京都市左京区一乗寺河原田町に住む人の口コミ20代男性
- 交通手段はバスがあり、スーパーも大手から個人商店まである。ラーメン街があふので、人も昼間は多く、夜は静か。食べ物には困らず、川も流れており、自然もいい。
- 京都府京都市左京区松ケ崎桜木町に住む人の口コミ20代女性
- 身近なところで生活に必要なものが大体揃うので街に出なくても良いところ。
- 京都府京都市左京区高野竹屋町に住む人の口コミ30代女性
- 大型スーパーや家電屋や有名なチェーン店などがすぐ近くにあり、ある程度は便利なので
- 京都府京都市左京区田中古川町に住む人の口コミ30代女性
- 交通はバス以外は少し不便だが、それでもら困るほどではなく、自転車、バスの移動で生活に必要なものは全て手に入る
- 京都府京都市左京区田中東樋ノ口町に住む人の口コミ30代女性
- 交通の便があまり良くないことややスーパーが徒歩15分圏内にしかない点はマイナスですが、大学が近くにある、自然が多い、自転車で少し移動すれば魅力的な文化施設や商業施設がある点はプラスなため
- 京都府京都市左京区下鴨宮崎町に住む人の口コミ20代女性
- 都会から少し離れているため、住みやすい。近くにスーパーもレストランもあり、都会に出る必要もなくい。また出る必要がある時も、バスや電車などで簡単にいける。夜も静かで治安がよい
- 京都府京都市左京区下鴨本町に住む人の口コミ30代男性
- 交通の弁が良いし、銀行や郵便局、スーパー、料理屋など生活に必要なものが徒歩圏内に揃っている
- 京都府京都市左京区北白川西伊織町に住む人の口コミ30代女性
- スーパーがたくさんあるので、いろいろ比べながら帰る。徒歩圏内に2,3か所ある。病院が多い。バスがたくさん走っていてのがしてもすぐに次のバスがくる。不満は家賃が高いのと、自然が少なく、散歩がつまらない。
- 京都府京都市左京区高野東開町に住む人の口コミ30代女性
- 自分や家族に必要な物は徒歩数分の場所で購入することができるし、バス停も近い。書館、小学校も近くにあり育児も比較的しやすい環境。昔馴染みの知り合いが多く、人との関わりを持てるので孤独さもない。
- 京都府京都市左京区松ケ崎杉ケ海道町に住む人の口コミ30代女性
- 治安が割と良い方ではある。適度に自然もあり、適度に便利である。
物件概要
- 建物構造
- RC(鉄筋コンクリート)
- 駐車場
- 無
- 総戸数
- 16戸
- 契約形態
- -
- 契約期間
- 2年間
- 更新料
- 新賃料の1ヶ月分
- その他費用
- 鍵交換費用:19,800円、水道代:2,500円
- 保証会社
加入要
保証会社:全保連
保証会社利用料:初回:月額賃料等の30%、更新時:1万円/1年
- 住宅保険
- 要
- 管理
- 管理員:巡回
- LIFULL HOME'S
物件番号 - 0148837-0096288
- 自社管理番号
- 38960-1D-28
- 取引態様
- 仲介
- 会社名
- 株式会社京都ライフ 百万遍店
営業スタッフコメント

株式会社京都ライフ 百万遍店
今西駿平
京都賃貸なら京都ライフへお任せください!
業界経験2年
資格少額短期保険募集人
- 会社実績や特徴・サービス情報
- 百万遍交差点から東へすぐ!住まいに関するご相談はお任せ下さい。 国内外から多くの学生、研究者の集まる京都大学のメインキャンパスである吉田キャンパス。その北側、今出川通を挟んで向かい側に京都ライフ百万遍店がございます。 学生向けのワンルーム、1K物件や、左京区近辺のファミリー物件など、豊富な物件情報からお客様に合った物件をご提案いたします。 京都大学以外にも京都工芸繊維大学、京都芸術大学、京都精華大学、京都府立大学、ノートルダム女子大学、京都産業大学といった近隣の大学生向けのお部屋探しもお任せください!京都ライフ百万遍店のスタッフがお手伝いいたします。
百万遍交差点から東へすぐ!住まいに関するご相談はお任せ下さい。 国内外から多くの学生、研究者の集まる京都大学のメインキャンパスである吉田キャンパス。その北側、今出川通を挟んで向かい側に京都ライフ百万遍店がございます。 学生向けのワンルーム、1K物件や、左京区近辺のファミリー物件など、豊富な物件情報からお客様に合った物件をご提案いたします。 京都大学以外にも京都工芸繊維大学、京都芸術大学、京都精華大学、京都府立大学、ノートルダム女子大学、京都産業大学といった近隣の大学生向けのお部屋探しもお任せください!京都ライフ百万遍店のスタッフがお手伝いいたします。
- 電話でお問合せ(通話無料)
お問合せ先 :株式会社京都ライフ 百万遍店
不動産会社情報
京阪電鉄・叡山電鉄「出町柳駅」から徒歩9分、叡山電鉄「元田中駅」から徒歩10分。京都大学からは今出川通を挟んですぐ向かい。京都大学周辺、百万遍エリア、左京区のお部屋探しならお任せ下さい。
- 店舗の特徴
- 賃貸管理業務
- リフォーム対応
- 引越し業者紹介可
- 年中無休
- 系列店舗での対応可
- 保証人不要な物件あり
- 法人契約取扱い
電話でお問合せお客様の電話番号は不動産会社には通知されません
- 不動産会社に
つながります
お客様の電話番号は不動産会社に通知されません
- ※光IP電話、及びIP電話からはご利用になれません
- ※お電話によるお問合せは、店舗営業時間内にお願いします。つながらない場合は、お問合せフォームよりお問合せください
- ※不動産会社がお電話に出られなかった場合、お問合せいただいた後に不動産会社より折り返しのお電話がある場合がございます(お客様が非通知設定した場合は対象外です)
- ※株式会社LIFULLは電話会社が提供するサービスを介してお客様の発信者番号を受領後、折り返し専用の電話番号を発番してお問合せの不動産会社に通知します(お客様の発信者番号がお問合せの不動産会社に通知されることはございません)
- ※携帯電話からお問合せいただいた方に対し、株式会社LIFULLは電話会社が提供するメッセ―ジサービスを介してお客様の発信者番号を受領後、ショートメッセージ(SMS)またはLINE通知メッセージによるお問合せ内容に関する通知をお届けする場合があります
- ※お客様が通話中に不動産会社にお伝えになったお客様の個人情報及び、電話会社が発番する折り返し専用の電話番号は、お問合せ先不動産会社が資料送付・電子メール送信・電話連絡などの目的で保管する可能性があります。お問合せ先不動産会社が保管する個人情報の取扱いについては、各不動産会社に直接お問合せください
- ※株式会社LIFULLでは本サービスを円滑に運用するために、お客様の発信者番号をサービスご利用の控えとして一定期間保管いたします
- ※上記および株式会社LIFULLの個人情報の取扱い方針に同意のうえ、お電話ください
【LIFULL HOME'S物件番号】0148837-0096288【自社管理番号】38960-1D-28
初期費用・月額費用をあわせて確認!この物件に住んだときの費用めやす
めやすを見るこの物件に住んだときの費用めやす
- 初期費用
- 月額費用
- 追加費用※ご確認ください
追加で費用が
かかる場合があります
必ずご確認ください
初期費用めやす約0円
追加で費用がかかります(※)敷金
100,000
- 礼金
100,000
賃料+共益費・管理費の1ヶ月分として換算
賃料の1ヶ月分+税として換算。不動産会社によって金額が異なるため正確な金額は不動産会社にお問合せください
※追加費用もチェック!
これらの項目以外にも費用がかかる場合があります。正確な金額は不動産会社にお問合せください。
- 初期費用
- 鍵交換費:19,800円
- 室内清掃費:不動産会社に要確認
- 火災保険費:不動産会社に要確認
- その他
- 水道代:2500円
- 保証会社
- 初回:月額賃料等の30%、更新時:1万円/1年
不動産会社より
利便性良好 大型バイクが置けますよ 叡山茶山駅まですぐの2Kマンションです(徒歩3分)。
コンビニ、スーパーなど近くにあって便利ですよ。 物件情報はもちろん京都のエリア情報まで幅広く対応させていただきます!
- 保存する
- 共有する
- ※各種情報と現状に差異がある場合は、現状優先となります
- ※不動産会社が入力した情報を基に物件の位置を表示しています。詳しくは不動産会社までお問合せください
- ※不動産会社の方からの上記電話番号によるお問合せはお断りしております。こちら不動産会社詳細からお問合せください
- ※LIFULL HOME'Sは物件鮮度No.1を目指していきます。閲覧中の物件が「成約済である」「実際の物件情報と異なる点がある」などの場合、「掲載110番」からお問合せください
- ※QRコードは株式会社デンソーウェーブの登録商標です
この物件を取扱う他の会社
LIFULL HOME'Sでは、主要項目が同一の物件をまとめて表示しています。所在地や営業時間、掲載画像等から不動産会社を選んでお問合せください。
最近見た賃貸物件
LIFULL HOME'S 地図・周辺情報
買い物
- ファミリーマート 一乗寺染殿町店
- ライフ 北白川店
- ダックス左京一乗寺店
- セブンイレブン 京都田中上古川町店
- イズミヤ ショッピングセンター高野店
グルメ
- サイゼリヤ 京都一乗寺店
- なか卯 北大路高野店
- 餃子の王将 北白川店
- 天下一品本店
- CoCo壱番屋 左京区一乗寺店
育児・教育
- 鴨東幼稚園
- 京都市立養徳小学校
- 京都市立高野中学校
- 認定こども園ふたば幼稚園
- 京都市立修学院第二小学校
医療
- 医療法人一仁会脳神経リハビリ北大路病院
- 医療法人社団順和会京都下鴨病院
- 公益社団法人信和会京都民医連あすかい病院
- (財)日本バプテスト連盟医療団総合病院日本バプテスト病院
- (財)川越病院
公共施設・郵便局
- 京都田中高原郵便局
- 京都市左京図書館
- 京都市左京区役所
- 京都田中樋ノ口郵便局
- 京都府立図書館
公園
- 吉田山公園
- 宝が池公園子どもの楽園
- 宝が池公園
- 京都御苑
- 岡崎公園
利用可能な駅
- 徒歩10分以内
叡山電鉄叡山本線
- 茶山・京都芸術大学駅徒歩3分
- 元田中駅徒歩10分
- すべての駅
叡山電鉄叡山本線
- 一乗寺駅徒歩11分
- 修学院駅徒歩19分
- 宝ケ池駅徒歩31分
- 三宅八幡駅3.2km
京阪本線
- 出町柳駅徒歩20分
- 神宮丸太町駅3.4km
京都市営烏丸線
- 松ヶ崎駅徒歩25分
- 北山駅徒歩36分
- 北大路駅徒歩36分
- 鞍馬口駅3.1km
- 今出川駅3.4km
- 国際会館駅3.6km
- 周辺情報は2023年07月21日時点のものになります。
- 周辺情報は、参考情報としてのみご利用ください(周辺情報は、株式会社LIFULLが地図情報の提供事業者から提供を受けた情報とLIFULL HOME'Sの物件情報に基づき、独自の方法で抽出し提供しているものです。周辺情報は、移転や閉鎖等により情報が最新ではない、または正しくない場合がありますが、地図情報の提供事業者から提供された情報をそのまま周辺情報として表示しているため、正確かつ最新の情報へ修正することができないことがあります。)
- 周辺情報は、株式会社LIFULLが掲載するものであり、不動産物件情報を掲載している不動産会社が掲載するものではありません
- 交通情報の一部については、株式会社LIFULLが掲載するものであり、不動産物件情報を掲載している不動産会社が掲載するものではない場合があります。交通情報に関する質問などは株式会社LIFULLにお問合せください






















































