LIFULL HOME'Sは物件鮮度No.1!※評価について
シギハイツ竹田(2階/1DK/27.4m²)
シギハイツ竹田(2階/1DK/27.4m²)
5.3万円/管理費等3,000円
7時間前 更新
画像一覧
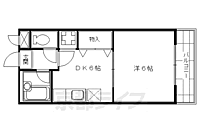
1/25間取り
2/25リビング/ダイニング
洋室
3/25室内
ダイニング
4/25寝室
洋室
5/25寝室
洋室
6/25子供部屋
洋室
7/25キッチン
ダイニング
8/25キッチン
キッチン
9/25キッチン
キッチン
10/25浴室
換気扇
11/25トイレ
トイレ
12/25トイレ
トイレ
13/25洗面
洗面所
14/25収納
収納
15/25収納
収納
16/25設備
洗濯機置場
17/25玄関
キッチン収納
18/25玄関
玄関
19/25バルコニー
ベランダ
20/25バルコニー
ベランダ
21/25その他
エアコン
22/25その他
収納・換気扇
23/25周辺
スーパーマツモト伏見店まで1350メートル
24/25周辺
ファミリーマート 竹田駅前店まで400メートル
25/25周辺
ダックス 新堀川店まで900メートル
間取り
リビング/ダイニング
室内
寝室
寝室
子供部屋
キッチン
キッチン
キッチン
浴室
トイレ
トイレ
洗面
収納
収納
設備
玄関
玄関
バルコニー
バルコニー
その他
その他
周辺
周辺
周辺
お問合せ先 :株式会社エリッツ 伏見桃山店
住まい探し特典内容
電気・ガス・インターネットの手続き代行のご案内します。
- 利用条件
- 株式会社エリッツ 伏見桃山店で利用可
- 他特典との併用可
利用方法
来店時に本特典の画面をスマートフォンやタブレットでスタッフに提示、または画面印刷した用紙を提示ください。
有効期限 なし
2人入居水道代プラス1、100円、ベルヴィクラブ会費38、500円--パノラマ掲載--
物件のこだわり/設備・条件
新築(非該当)
2階以上の物件(該当)
南向き(非該当)
駐車場(非該当)
オートロック(非該当)
エアコン(該当)
バス・トイレ別(該当)
追焚機能(非該当)
フローリング(該当)
ペット相談(非該当)
入居条件
二人入居可、即入居可キッチン/バス・トイレ
設備・サービス
エアコン、クローゼット、CATV、光ファイバー、公営水道、都市ガス、下水、フローリング、バルコニー、室内洗濯機置場、エレベーター、駐輪場ありその他
住まい探し特典あり備考
【近鉄・地下鉄竹田駅まで徒歩約8分の立地】お風呂・トイレが別々で室内に洗濯機設置可能です。エレベーターありで上階でも安心です。鉄筋コンクリート造のマンションタイプで防音面も安心ですね。・光ファイバーインターネット接続可 ハウスクリーニング27500円(退去時)・水道代(月額):2200円
物件周辺の生活情報
学校
- 竹田小学校(300m)
- 藤森中学校(1,100m)
買い物
- コンビニ(400m)
- スーパー(1,350m)
- ドラッグストア(900m)
その他施設
- 総合病院(1,980m)
交通
- 近鉄京都線 竹田駅 徒歩8分
- 普通(停車)
- 準急(停車)
- 急行(停車)
- 京都市営烏丸線 竹田駅 徒歩7分
- 普通(停車)
- 急行(停車)
※急行等の停車駅情報について
急行等の停車駅に関するデータは、随時更新をしておりますが、最新の内容であることを保証するものではありません。
最新かつ正確な情報につきましては、各鉄道会社のウェブサイトにてご確認ください
物件周辺の口コミ
- 京都府京都市南区上鳥羽北島田町に住む人の口コミ20代女性
引っ越してきたばかりですが便利です。まだお店の開拓などはできてないですが目につく場所に飲食店があるイメージです。車通りが多い一本道なので、信号が少ないのがマイナスポイントです。
口コミを見る
この物件周辺に住む人の口コミ
口コミは、LIFULL HOME'Sが実際にこの物件の周辺に住む18歳~69歳の男女を対象に、WEBアンケート調査を実施しています。内容には回答者の主観的な表現が含まれる場合があるほか、事実と異なる場合もございます。ご了承ください。
- 京都府京都市南区上鳥羽北島田町に住む人の口コミ20代女性
- 引っ越してきたばかりですが便利です。まだお店の開拓などはできてないですが目につく場所に飲食店があるイメージです。車通りが多い一本道なので、信号が少ないのがマイナスポイントです。
- 京都府京都市伏見区竹田桶ノ井町に住む人の口コミ30代女性
- 四条や京都駅ほどはオシャレなお店はないけど、電車でわりとすぐ行ける。食品や日用品などは近くでそろえられるし、それ以外も特に困ったことはないから。
- 京都府京都市伏見区竹田久保町に住む人の口コミ30代女性
- 交通の便が非常に充実しており、車を所有していなくても、移動に困ることはなく、十分に生活できる。
- 京都府京都市伏見区深草西浦町8丁目に住む人の口コミ20代男性
- 生活をする上で、衣食住及び交通の面で不自由することがないから。
- 京都府京都市伏見区深草西浦町8丁目に住む人の口コミ20代男性
- 一人暮らしの学生でも生活ができる。買い物、外食、駅のちかさ、交通の利便性があり、困ることがほとんどない。
- 京都府京都市伏見区竹田向代町に住む人の口コミ20代女性
- 程よく都会で、程よく田舎。子育てしやすいかと聞かれればそうでもないが、交通の便が良いので満足している。
- 京都府京都市伏見区竹田段川原町に住む人の口コミ30代男性
- 学生時代から過ごしてきて、一度も今の地域から出たいと思ったことがないから
- 京都府京都市伏見区竹田田中宮町に住む人の口コミ30代女性
- 行きたい美容院などが近く無いので、不便なのと道が危ない所が多い
- 京都府京都市伏見区竹田中内畑町に住む人の口コミ20代女性
- 買い物に行くにも特に不便なことはないし、都会すぎず田舎すぎないから良い。
- 京都府京都市伏見区竹田向代町川町に住む人の口コミ20代女性
- もう少し敷地が広く自然が欲しい。スーパーなどのお店は近くにたくさんあり、生活しやすい。
物件概要
- 建物構造
- RC(鉄筋コンクリート)
- 駐車場
- 近隣 9,000円(税込) 物件からの距離440m
- 総戸数
- 47戸
- 契約形態
- -
- 契約期間
- 2年間
- 更新料
- 22,000円
- その他費用
- 電子契約手数料(初回):11,000円、ベルヴィクラブ(初回):33,000円、その他(初回):1,100円
- 保証会社
加入要
保証会社利用料:29、265円
- 住宅保険
- 要
- 管理
- -
- LIFULL HOME'S
物件番号 - 0110593-0278488
- 自社管理番号
- 8151-0207
- 取引態様
- 仲介
- 会社名
- 株式会社エリッツ 伏見桃山店
営業スタッフコメント

株式会社エリッツ 伏見桃山店
阿部翔也
納得のいくお部屋探しを全力サポート!
業界経験2年
資格宅地建物取引士、少額短期保険募集人
- 会社実績や特徴・サービス情報
- 京都市伏見区エリアのお部屋探しはぜひエリッツ伏見桃山店へ!! 当店は大手筋商店街や京阪伏見桃山駅・近鉄桃山御陵前駅・JR桃山駅の3WAYアクセスで生活便利な伏見桃山エリアにございます。伏見桃山エリア中心に人気の丹波橋周辺や伏見区全般の物件をほぼお取り扱いしております。
京都市伏見区エリアのお部屋探しはぜひエリッツ伏見桃山店へ!! 当店は大手筋商店街や京阪伏見桃山駅・近鉄桃山御陵前駅・JR桃山駅の3WAYアクセスで生活便利な伏見桃山エリアにございます。伏見桃山エリア中心に人気の丹波橋周辺や伏見区全般の物件をほぼお取り扱いしております。
- 電話でお問合せ(通話無料)
お問合せ先 :株式会社エリッツ 伏見桃山店
不動産会社情報
株式会社エリッツ 伏見桃山店

京都府京都市伏見区観音寺町212-1 伏見ビル1階
近鉄京都線 桃山御陵前駅 徒歩1分
- 営業時間
- 10:00~19:00
- 定休日
- 年中無休(年末年始を除く)
優良店認定
伏見エリアのお部屋探しは当店にお任せ下さい。伏見桃山・丹波橋・伏見・竹田・下鳥羽・淀・桃山南口・六地蔵・向島エリアを中心に、近隣エリアだけではなく周辺の物件もご相談下さい。
- 店舗の特徴
- リフォーム対応
- 引越し業者紹介可
- 年中無休
- 系列店舗での対応可
- 社宅・寮物件取扱い
- オンライン相談可
- 保証人不要な物件あり
- 法人契約取扱い
- 駅から歩いて3分以内
電話でお問合せお客様の電話番号は不動産会社には通知されません
- 不動産会社に
つながります
お客様の電話番号は不動産会社に通知されません
- ※光IP電話、及びIP電話からはご利用になれません
- ※お電話によるお問合せは、店舗営業時間内にお願いします。つながらない場合は、お問合せフォームよりお問合せください
- ※不動産会社がお電話に出られなかった場合、お問合せいただいた後に不動産会社より折り返しのお電話がある場合がございます(お客様が非通知設定した場合は対象外です)
- ※株式会社LIFULLは電話会社が提供するサービスを介してお客様の発信者番号を受領後、折り返し専用の電話番号を発番してお問合せの不動産会社に通知します(お客様の発信者番号がお問合せの不動産会社に通知されることはございません)
- ※携帯電話からお問合せいただいた方に対し、株式会社LIFULLは電話会社が提供するメッセ―ジサービスを介してお客様の発信者番号を受領後、ショートメッセージ(SMS)またはLINE通知メッセージによるお問合せ内容に関する通知をお届けする場合があります
- ※お客様が通話中に不動産会社にお伝えになったお客様の個人情報及び、電話会社が発番する折り返し専用の電話番号は、お問合せ先不動産会社が資料送付・電子メール送信・電話連絡などの目的で保管する可能性があります。お問合せ先不動産会社が保管する個人情報の取扱いについては、各不動産会社に直接お問合せください
- ※株式会社LIFULLでは本サービスを円滑に運用するために、お客様の発信者番号をサービスご利用の控えとして一定期間保管いたします
- ※上記および株式会社LIFULLの個人情報の取扱い方針に同意のうえ、お電話ください
【LIFULL HOME'S物件番号】0110593-0278488【自社管理番号】8151-0207
オンライン対応
オンライン内見・オンライン相談・IT重説に対応している物件です

「オンライン内見」「オンライン相談」「IT重説」とは?
物件の内見や不動産会社スタッフとの相談、契約前の重要事項説明をオンライン(ビデオ通話)で行うことができるサービスです。
オンライン内見
ビデオ通話で現地(物件)にいる不動産会社スタッフと映像・音声を使ってリアルタイムで会話しながら内見ができます。
オンライン相談
「物件について聞きたいことがある」など不動産会社スタッフへの相談もビデオ通話で行うことができます。
IT重説
契約前の重要事項説明(重説)をビデオ通話で行うことができます。
利用時の注意事項
- ビデオ通話については各不動産会社指定のものとなります。
- ビデオ通話利用時には通信が発生します。従量課金制通信サービスや通信量に上限があるネット回線・プランを利用する場合は、通信量にご注意ください。
- 通信速度やアプリの設定によってはビデオ通話の画質が低下することがあります。安定した画質で利用するためにも、Wi-Fi環境下での利用を推奨します。
- ご利用のビデオ通話アプリによっては、対象のOSやブラウザに制限がある場合があります。詳しくはお問合せ先不動産会社にご確認ください。
初期費用・月額費用をあわせて確認!この物件に住んだときの費用めやす
めやすを見るこの物件に住んだときの費用めやす
- 初期費用
- 月額費用
- 追加費用※ご確認ください
追加で費用が
かかる場合があります
必ずご確認ください
初期費用めやす約0円
追加で費用がかかります(※)敷金
53,000
- 礼金
0
賃料+共益費・管理費の1ヶ月分として換算
賃料の1ヶ月分+税として換算。不動産会社によって金額が異なるため正確な金額は不動産会社にお問合せください
※追加費用もチェック!
これらの項目以外にも費用がかかる場合があります。正確な金額は不動産会社にお問合せください。
- 初期費用
- 鍵交換費:不動産会社に要確認
- 室内清掃費:不動産会社に要確認
- 火災保険費:不動産会社に要確認
- 月額費用
- 駐車場費:9,000円(税込)※近隣
- その他
- 電子契約手数料(初回):11000円
- ベルヴィクラブ(初回):33000円
- その他(初回):1100円
- 保証会社
- 29、265円
不動産会社より
2人入居水道代プラス1、100円、ベルヴィクラブ会費38、500円--パノラマ掲載--
【近鉄・地下鉄竹田駅まで徒歩約8分の立地】お風呂・トイレが別々で室内に洗濯機設置可能です。エレベーターありで上階でも安心です。鉄筋コンクリート造のマンションタイプで防音面も安心ですね。・光ファイバーインターネット接続可 ハウスクリーニング27500円(退去時)・水道代(月額):2200円
- 保存する
- 共有する
- ※各種情報と現状に差異がある場合は、現状優先となります
- ※不動産会社が入力した情報を基に物件の位置を表示しています。詳しくは不動産会社までお問合せください
- ※不動産会社の方からの上記電話番号によるお問合せはお断りしております。こちら不動産会社詳細からお問合せください
- ※LIFULL HOME'Sは物件鮮度No.1を目指していきます。閲覧中の物件が「成約済である」「実際の物件情報と異なる点がある」などの場合、「掲載110番」からお問合せください
- ※QRコードは株式会社デンソーウェーブの登録商標です
したい暮らしのタグから探す
この物件を取扱う他の会社
LIFULL HOME'Sでは、主要項目が同一の物件をまとめて表示しています。所在地や営業時間、掲載画像等から不動産会社を選んでお問合せください。
株式会社エリッツ 京都駅前店
優良店認定
京都府京都市下京区塩小路通東洞院東入東塩小路町547番地 ステーションコートヤード1階
JR東海道・山陽本線 京都駅 徒歩2分
- 営業時間
- 10:00~19:00
- 定休日
- 年中無休(年末年始を除く)
株式会社エリッツ 西大路駅前店
優良店認定
京都府京都市南区唐橋西平垣町19−2
JR東海道・山陽本線 西大路駅 徒歩1分
- 営業時間
- 10:00~19:00
- 定休日
- 年中無休(年末年始を除く)
LIFULL HOME'S 地図・周辺情報
買い物
- セブンイレブン 京都竹田西内畑町店
- FLET’S竹田店
- ダックス伏見新堀川店
- ファミリーマート 竹田駅前店
- フレスコ 竹田店
グルメ
- 和食さと 竹田店
- にぎり長次郎 竹田店
- マクドナルド 1号線上鳥羽店
- 餃子の王将 上鳥羽店
- 吉野家 1号線京都南インター店
育児・教育
- 京都市立竹田幼稚園
- 京都市立竹田小学校
- 京都市立藤森中学校
- モーツァルトしずかこども園
- 京都市立上鳥羽小学校
医療
- 医療法人五木田病院介護医療院
- 医療法人清水会京都リハビリテーション病院
- 社会医療法人岡本病院(財団)伏見岡本病院
- 独立行政法人国立病院機構京都医療センター
- 医療法人社団育生会京都久野病院
公共施設・郵便局
- 京都竹田郵便局
- 京都市吉祥院図書館
- 京都市伏見区役所深草支所
- 京都小久保郵便局
- 京都市伏見中央図書館
公園
- 竹田公園
- 深草西浦南公園
- 鳥羽離宮跡公園
- 東向公園
- 下鳥羽公園
利用可能な駅
- 徒歩10分以内
京都市営烏丸線
- 竹田駅徒歩7分
近鉄京都線
- 竹田駅徒歩8分
- すべての駅
京都市営烏丸線
- くいな橋駅徒歩14分
- 十条駅徒歩29分
- 九条駅3.2km
近鉄京都線
- 上鳥羽口駅徒歩17分
- 伏見駅徒歩21分
- 十条駅徒歩30分
- 近鉄丹波橋駅徒歩37分
- 東寺駅3.1km
- 桃山御陵前駅3.5km
京阪本線
- 藤森駅徒歩23分
- 墨染駅徒歩27分
- 龍谷大前深草駅徒歩30分
- 丹波橋駅徒歩35分
- 伏見稲荷駅徒歩36分
- 鳥羽街道駅3.2km
- 伏見桃山駅3.4km
JR奈良線
- 稲荷駅徒歩35分
- JR藤森駅徒歩35分
- 周辺情報は2023年07月21日時点のものになります。
- 周辺情報は、参考情報としてのみご利用ください(周辺情報は、株式会社LIFULLが地図情報の提供事業者から提供を受けた情報とLIFULL HOME'Sの物件情報に基づき、独自の方法で抽出し提供しているものです。周辺情報は、移転や閉鎖等により情報が最新ではない、または正しくない場合がありますが、地図情報の提供事業者から提供された情報をそのまま周辺情報として表示しているため、正確かつ最新の情報へ修正することができないことがあります。)
- 周辺情報は、株式会社LIFULLが掲載するものであり、不動産物件情報を掲載している不動産会社が掲載するものではありません
- 交通情報の一部については、株式会社LIFULLが掲載するものであり、不動産物件情報を掲載している不動産会社が掲載するものではない場合があります。交通情報に関する質問などは株式会社LIFULLにお問合せください



















