LIFULL HOME'Sは物件鮮度No.1!※評価について
エテルノポッソ 5階/508
6.9万円/管理費等8,000円
16時間前 更新
画像一覧
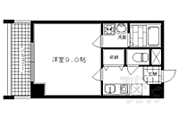
1/30間取り
2/30外観
3/30外観
4/30リビング/ダイニング
洋室
5/30室内
洋室
6/30寝室
洋室
7/30寝室
洋室
8/30子供部屋
洋室
9/30キッチン
キッチン
10/30キッチン
キッチン
11/30キッチン
キッチン
12/30浴室
風呂
13/30トイレ
トイレ
14/30洗面
洗面所
15/30洗面
洗面所
16/30収納
収納
17/30収納
収納
18/30設備
冷蔵庫置場
19/30設備
洗濯機置場
20/30玄関
玄関
21/30バルコニー
ベランダ
22/30バルコニー
ベランダ
23/30駐車場
駐車場
24/30その他
廊下
25/30その他
エアコン
26/30その他
給湯器リモコン
27/30その他
カーテンレール
28/30周辺
フレスコ 四条店まで150メートル
29/30周辺
ファミリーマート 四条西洞院店まで220メートル
30/30周辺
大丸 京都店まで600メートル
間取り
外観
外観
リビング/ダイニング
室内
寝室
寝室
子供部屋
キッチン
キッチン
キッチン
浴室
トイレ
洗面
洗面
収納
収納
設備
設備
玄関
バルコニー
バルコニー
駐車場
その他
その他
その他
その他
周辺
周辺
周辺
お問合せ先 :株式会社エリッツ 立命館大学前店
住まい探し特典内容
電気・ガス・インターネットの手続き代行のご案内します。
- 利用条件
- 株式会社エリッツ 立命館大学前店で利用可
- 他特典との併用可
利用方法
来店時に本特典の画面をスマートフォンやタブレットでスタッフに提示、または画面印刷した用紙を提示ください。
有効期限 なし
スーパーまで徒歩2分。四条烏丸すぐの便利な立地。--パノラマ掲載--
基本情報
不動産用語- 賃料
- 6.9万円
- 管理費等
- 8,000円
初期費用などお気軽にお問合せください
物件のこだわり/設備・条件
新築(非該当)
2階以上の物件(該当)
南向き(非該当)
駐車場(非該当)
オートロック(該当)
エアコン(該当)
バス・トイレ別(該当)
追焚機能(非該当)
フローリング(該当)
ペット相談(非該当)
入居条件
二人入居不可、単身者限定、即入居可キッチン/バス・トイレ
設備・サービス
オートロック、エアコン、クローゼット、CATV、BS対応、光ファイバー、公営水道、都市ガス、下水、フローリング、バルコニー、室内洗濯機置場、エレベーター、駐輪場ありその他
初期費用カード決済可、住まい探し特典あり備考
人気の四条エリアに建つ物件です。地下鉄四条駅・阪急烏丸駅まで徒歩7分と好立地。2000年築賃貸マンションに募集がかかりました。洋室も8帖ありお部屋広々です。脱衣所もあり女性の方からの人気も高いです。・光ファイバーインターネット接続可
物件周辺の生活情報
買い物
- コンビニ(220m)
- スーパー(150m)
交通
- 京都市営烏丸線 四条駅 徒歩7分
- 普通(停車)
- 急行(停車)
- 阪急京都本線 烏丸駅 徒歩7分
- 普通(停車)
- 準急(停車)
- 堺筋準急(停車)
- 通勤特急(停車)
- 特急(停車)
- 急行(停車)
- 準特急(停車)
※急行等の停車駅情報について
急行等の停車駅に関するデータは、随時更新をしておりますが、最新の内容であることを保証するものではありません。
最新かつ正確な情報につきましては、各鉄道会社のウェブサイトにてご確認ください
物件周辺の口コミ
- 京都府京都市中京区高倉通六角上るに住む人の口コミ30代女性
治安がよく街もキレイ、自治会は少し面倒だが治安に貢献している。店が多く買い物が便利、公立学校も安心して通えるレベルにある。地域や地元企業がスポンサーになり、子どもの為のイベントや活動を行ってくれる
口コミを見る
この物件周辺に住む人の口コミ
口コミは、LIFULL HOME'Sが実際にこの物件の周辺に住む18歳~69歳の男女を対象に、WEBアンケート調査を実施しています。内容には回答者の主観的な表現が含まれる場合があるほか、事実と異なる場合もございます。ご了承ください。
- 京都府京都市中京区高倉通六角上るに住む人の口コミ30代女性
- 治安がよく街もキレイ、自治会は少し面倒だが治安に貢献している。店が多く買い物が便利、公立学校も安心して通えるレベルにある。地域や地元企業がスポンサーになり、子どもの為のイベントや活動を行ってくれる
- 京都府京都市中京区壬生坊城町に住む人の口コミ30代男性
- 交通の便が非常に良く市内ならば,ほぼ乗換無しで移動できる。又,利用できる鉄道路線が多いため近隣の町に行くのも非常に便利
- 京都府京都市中京区六角通神泉苑西入に住む人の口コミ20代女性
- 交通の便が良い。繁華街に徒歩圏内。十分に都会。住みやすい。自慢できる。
- 京都府京都市中京区堀川通三条東入に住む人の口コミ30代女性
- 百貨店など繁華街に徒歩でいくことができ、バスや地下鉄、私鉄があり便利。閑静な住宅街で、治安も良い。ただ保育施設までが遠く、図書館や大型のショッピングモール、ホームセンターなどはないため不便。
- 京都府京都市中京区姉小路通烏丸西入に住む人の口コミ20代男性
- 身近な環境でなんでも手に入りますが、その代わり家賃が比較的に高いです。
- 京都府京都市下京区綾小路通新町東入に住む人の口コミ20代女性
- 一人暮らしをするには、充分に買い物ができる場所があり、治安がいい。しかし、観光客が多い、路線が地下鉄のため階段が多い、人気が少ないところがないことは少し不満に思う、
- 京都府京都市中京区錦小路通堀川東入に住む人の口コミ30代女性
- 近くにスーパーもコンビニも充実しているが、観光客や修学旅行生が多く、大通りはだいたい混んでいるから。
- 京都府京都市中京区壬生馬場町に住む人の口コミ30代女性
- 都会でも田舎でもなく、車がなくても十分生活できる範囲にいろいろなものがあるから。とても便利。
- 京都府京都市下京区綾小路通新町西入下るに住む人の口コミ30代女性
- 交通の便が良いところと買い物をしやすい点。ただ、郊外にあるような大きな総合スーパーがないのは不便。
物件概要
- 建物構造
- RC(鉄筋コンクリート)
- 駐車場
- 近隣 27,500円(税込) 物件からの距離264m
- 総戸数
- 30戸
- 契約形態
- -
- 契約期間
- 2年間
- 更新料
- -
- その他費用
- 室内清掃費用:38,500円、安心入居サポート(初回):16,500円、町費(月額):300円
- 保証会社
加入要
保証会社利用料:38、650円
- 住宅保険
- 要
- 管理
- -
- LIFULL HOME'S
物件番号 - 0117111-0258633
- 自社管理番号
- 3125-508
- 取引態様
- 仲介
- 会社名
- 株式会社エリッツ 立命館大学前店
営業スタッフコメント

株式会社エリッツ 立命館大学前店店長
浅田
何でもご相談ください!
業界経験6年
資格宅地建物取引士、少額短期保険募集人
- 会社実績や特徴・サービス情報
- 京都の賃貸物件なら、支店数最多の賃貸のエリッツにお任せ下さい。 エリッツ立命館大学前店は、立命館大学衣笠キャンパス東門から徒歩30秒。立命館大学衣笠キャンパス在校生の皆様に人気の上京区、新入生の方々も安心な北区・右京区と、幅広いエリアの賃貸物件が揃っています。 立命館大学衣笠キャンパスに通学しやすく、お客様のご要望に適した物件を丁寧に探し致します。 エリッツ立命館大学前店では、新築賃貸物件はもちろん、家族向け賃貸物件も多数ございますので、立命館大学衣笠キャンパスの学生さん以外の方もぜひお越し下さいませ。 立命館大学衣笠キャンパスの留学生の方向けの賃貸物件も、数多く扱っています。 立命館大学衣笠キャンパスの学生さんは、学校帰りにお気軽にお立ち寄り下さい。お部屋探しは賃貸のエリッツ立命館大学前店へ。
京都の賃貸物件なら、支店数最多の賃貸のエリッツにお任せ下さい。 エリッツ立命館大学前店は、立命館大学衣笠キャンパス東門から徒歩30秒。立命館大学衣笠キャンパス在校生の皆様に人気の上京区、新入生の方々も安心な北区・右京区と、幅広いエリアの賃貸物件が揃っています。 立命館大学衣笠キャンパスに通学しやすく、お客様のご要望に適した物件を丁寧に探し致します。 エリッツ立命館大学前店では、新築賃貸物件はもちろん、家族向け賃貸物件も多数ございますので、立命館大学衣笠キャンパスの学生さん以外の方もぜひお越し下さいませ。 立命館大学衣笠キャンパスの留学生の方向けの賃貸物件も、数多く扱っています。 立命館大学衣笠キャンパスの学生さんは、学校帰りにお気軽にお立ち寄り下さい。お部屋探しは賃貸のエリッツ立命館大学前店へ。
- 電話でお問合せ(通話無料)
お問合せ先 :株式会社エリッツ 立命館大学前店
不動産会社情報
株式会社エリッツ 立命館大学前店賃貸のエリッツ立命館大学前店

京都府京都市北区小松原北町19−27 シャルム小松原1F
京福電気鉄道北野線 北野白梅町駅 徒歩12分
- 営業時間
- 10:00~19:00
- 定休日
- 火曜日(祝日を除く)、年末年始 ※部屋探しの問い合わせは無休
優良店認定
立命館大学前店は、立命館大学東門から徒歩30秒です。立命館大学前店の在籍期間の長いスタッフが複数おりますので、新入生の方も安心してお部屋探しをしていただけます。
- 店舗の特徴
- 賃貸管理業務
- 24時間管理物件取扱い
- リフォーム対応
- 引越し業者紹介可
- 駐車場あり
- 系列店舗での対応可
- 社宅・寮物件取扱い
- オンライン相談可
- 保証人不要な物件あり
- 法人契約取扱い
電話でお問合せお客様の電話番号は不動産会社には通知されません
- 不動産会社に
つながります
お客様の電話番号は不動産会社に通知されません
- ※光IP電話、及びIP電話からはご利用になれません
- ※お電話によるお問合せは、店舗営業時間内にお願いします。つながらない場合は、お問合せフォームよりお問合せください
- ※不動産会社がお電話に出られなかった場合、お問合せいただいた後に不動産会社より折り返しのお電話がある場合がございます(お客様が非通知設定した場合は対象外です)
- ※株式会社LIFULLは電話会社が提供するサービスを介してお客様の発信者番号を受領後、折り返し専用の電話番号を発番してお問合せの不動産会社に通知します(お客様の発信者番号がお問合せの不動産会社に通知されることはございません)
- ※携帯電話からお問合せいただいた方に対し、株式会社LIFULLは電話会社が提供するメッセ―ジサービスを介してお客様の発信者番号を受領後、ショートメッセージ(SMS)またはLINE通知メッセージによるお問合せ内容に関する通知をお届けする場合があります
- ※お客様が通話中に不動産会社にお伝えになったお客様の個人情報及び、電話会社が発番する折り返し専用の電話番号は、お問合せ先不動産会社が資料送付・電子メール送信・電話連絡などの目的で保管する可能性があります。お問合せ先不動産会社が保管する個人情報の取扱いについては、各不動産会社に直接お問合せください
- ※株式会社LIFULLでは本サービスを円滑に運用するために、お客様の発信者番号をサービスご利用の控えとして一定期間保管いたします
- ※上記および株式会社LIFULLの個人情報の取扱い方針に同意のうえ、お電話ください
【LIFULL HOME'S物件番号】0117111-0258633【自社管理番号】3125-508
オンライン対応
オンライン内見・オンライン相談・IT重説に対応している物件です

「オンライン内見」「オンライン相談」「IT重説」とは?
物件の内見や不動産会社スタッフとの相談、契約前の重要事項説明をオンライン(ビデオ通話)で行うことができるサービスです。
オンライン内見
ビデオ通話で現地(物件)にいる不動産会社スタッフと映像・音声を使ってリアルタイムで会話しながら内見ができます。
オンライン相談
「物件について聞きたいことがある」など不動産会社スタッフへの相談もビデオ通話で行うことができます。
IT重説
契約前の重要事項説明(重説)をビデオ通話で行うことができます。
利用時の注意事項
- ビデオ通話については各不動産会社指定のものとなります。
- ビデオ通話利用時には通信が発生します。従量課金制通信サービスや通信量に上限があるネット回線・プランを利用する場合は、通信量にご注意ください。
- 通信速度やアプリの設定によってはビデオ通話の画質が低下することがあります。安定した画質で利用するためにも、Wi-Fi環境下での利用を推奨します。
- ご利用のビデオ通話アプリによっては、対象のOSやブラウザに制限がある場合があります。詳しくはお問合せ先不動産会社にご確認ください。
初期費用・月額費用をあわせて確認!この物件に住んだときの費用めやす
めやすを見るこの物件に住んだときの費用めやす
- 初期費用
- 月額費用
- 追加費用※ご確認ください
追加で費用が
かかる場合があります
必ずご確認ください
初期費用めやす約0円
追加で費用がかかります(※)敷金
0
- 礼金
69,000
賃料+共益費・管理費の1ヶ月分として換算
賃料の1ヶ月分+税として換算。不動産会社によって金額が異なるため正確な金額は不動産会社にお問合せください
※追加費用もチェック!
これらの項目以外にも費用がかかる場合があります。正確な金額は不動産会社にお問合せください。
- 初期費用
- 鍵交換費:不動産会社に要確認
- 室内清掃費:38,500円
- 火災保険費:不動産会社に要確認
- 月額費用
- 駐車場費:27,500円(税込)※近隣
- その他
- 安心入居サポート(初回):16500円
- 町費(月額):300円
- 保証会社
- 38、650円
不動産会社より
スーパーまで徒歩2分。四条烏丸すぐの便利な立地。--パノラマ掲載--
人気の四条エリアに建つ物件です。地下鉄四条駅・阪急烏丸駅まで徒歩7分と好立地。2000年築賃貸マンションに募集がかかりました。洋室も8帖ありお部屋広々です。脱衣所もあり女性の方からの人気も高いです。・光ファイバーインターネット接続可
- 保存する
- 共有する
- ※各種情報と現状に差異がある場合は、現状優先となります
- ※不動産会社が入力した情報を基に物件の位置を表示しています。詳しくは不動産会社までお問合せください
- ※不動産会社の方からの上記電話番号によるお問合せはお断りしております。こちら不動産会社詳細からお問合せください
- ※LIFULL HOME'Sは物件鮮度No.1を目指していきます。閲覧中の物件が「成約済である」「実際の物件情報と異なる点がある」などの場合、「掲載110番」からお問合せください
- ※QRコードは株式会社デンソーウェーブの登録商標です
したい暮らしのタグから探す
この物件を取扱う他の会社
LIFULL HOME'Sでは、主要項目が同一の物件をまとめて表示しています。所在地や営業時間、掲載画像等から不動産会社を選んでお問合せください。
株式会社ALIVE 賃貸住宅サービス FC四条烏丸店
優良店認定
京都府京都市下京区四条通新町東入月鉾町37-1
京都市営烏丸線 四条駅 徒歩3分
- 営業時間
- 10:00~19:00
- 定休日
- 無し (年末年始休み12/31〜1/3)
ウインズリンク株式会社 アパマンショップ河原町三条店
優良店認定
京都府京都市中京区河原町通三条上る恵比須町435番地5
京都地下鉄東西線 京都市役所前駅 徒歩3分
- 営業時間
- 09:30~19:00
- 定休日
- 年中無休(盆・正月を除く)
株式会社京都ライフ 二条駅前店
京都府京都市中京区西ノ京職司町72 ウエストフィールド1階
京都地下鉄東西線 二条駅 徒歩3分
- 営業時間
- 09:30~19:00
- 定休日
- 年中無休(盆正月を除く)
株式会社京都ライフ 京都駅前店
京都府京都市下京区塩小路通東洞院西入東塩小路町717-1 京都駅前ビル2階
JR東海道・山陽本線 京都駅 徒歩2分
- 営業時間
- 09:30~19:00
- 定休日
- 年中無休(盆正月を除く)
最近見た賃貸物件
LIFULL HOME'S 地図・周辺情報
買い物
- セブンイレブン 京都四条西洞院通り店
- ライフ 四条烏丸店
- ドラッグひかり四条堀川店
- ファミリーマート 四条西洞院店
- フレスコ 四条店
グルメ
- まいどおおきに食堂 四条西洞院食堂
- タリーズコーヒー京都四条烏丸店
- やよい軒 四条烏丸店
- すき家 四条堀川店
- タリーズコーヒー四条大宮店
育児・教育
- 池坊保育園
- 京都市立洛中小学校
- 京都市立下京中学校成徳学舎
- 光林保育園
- 京都市立高倉小学校
医療
- 医療法人知音会京都新町病院
- 山元病院
- 医療法人毛利病院
- 医療法人財団足立病院
- 医療法人令寿会しまばら病院
公共施設・郵便局
- 京都新町蛸薬師郵便局
- 京都市下京図書館
- 京都市中京区役所
- 京都西洞院綾小路郵便局
- 京都市こどもみらい館子育て図書館
公園
- 光徳公園
- 梅屋広場公園
- 京都御苑
- 梅小路公園
- 梅小路公園
利用可能な駅
- 徒歩10分以内
京都市営烏丸線
- 四条駅徒歩7分
阪急京都本線
- 烏丸駅徒歩7分
- その他交通
- 京都地下鉄東西線 二条城前駅 徒歩12分
- 周辺情報は2023年07月21日時点のものになります。
- 周辺情報は、参考情報としてのみご利用ください(周辺情報は、株式会社LIFULLが地図情報の提供事業者から提供を受けた情報とLIFULL HOME'Sの物件情報に基づき、独自の方法で抽出し提供しているものです。周辺情報は、移転や閉鎖等により情報が最新ではない、または正しくない場合がありますが、地図情報の提供事業者から提供された情報をそのまま周辺情報として表示しているため、正確かつ最新の情報へ修正することができないことがあります。)
- 周辺情報は、株式会社LIFULLが掲載するものであり、不動産物件情報を掲載している不動産会社が掲載するものではありません
- 交通情報の一部については、株式会社LIFULLが掲載するものであり、不動産物件情報を掲載している不動産会社が掲載するものではない場合があります。交通情報に関する質問などは株式会社LIFULLにお問合せください




















































