LIFULL HOME'Sは物件鮮度No.1!※評価について
ビューテラス桂南(5階/3LDK/65.52m²)
ビューテラス桂南(5階/3LDK/65.52m²)
9.5万円/管理費等9,000円
17時間前 更新
画像一覧
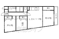
1/30間取り
間取
2/30外観
3/30外観
4/30リビング/ダイニング
広い居室
5/30リビング/ダイニング
6/30リビング/ダイニング
7/30リビング/ダイニング
8/30リビング/ダイニング
9/30子供部屋
10/30子供部屋
11/30子供部屋
12/30キッチン
お料理はこちらで
13/30キッチン
14/30浴室
疲れを流しましょう
15/30浴室
16/30トイレ
お掃除も忘れずに
17/30洗面
身だしなみチェック
18/30収納
広々収納
19/30設備
20/30設備
21/30玄関
靴は揃えましょう
22/30バルコニー
広いベランダ
23/30エントランス
24/30エントランス
25/30その他
見晴らしが良い
26/30その他
27/30その他
28/30その他
29/30その他
30/30周辺
セブンイレブン京都上久世店まで160m
間取り
外観
外観
リビング/ダイニング
リビング/ダイニング
リビング/ダイニング
リビング/ダイニング
リビング/ダイニング
子供部屋
子供部屋
子供部屋
キッチン
キッチン
浴室
浴室
トイレ
洗面
収納
設備
設備
玄関
バルコニー
エントランス
エントランス
その他
その他
その他
その他
その他
周辺
LINEチャットでも
相談できます
お問合せ先 :株式会社京都ライフ 二条駅前店
1〜3月は引越しシーズンのピークです。お問合せはお早めに!
仲介手数料割引
ご成約時、仲介手数料は賃料50%(外税)です。
- 利用条件
- 株式会社京都ライフ 二条駅前店で利用可
- 他特典との併用可
- ・法人契約、事業用物件は除きます。 ・積水ハウス、大東建託の管理物件は除きます。
利用方法
来店時に本特典の画面をスマートフォンやタブレットでスタッフに提示、または画面印刷した用紙を提示ください。
有効期限 なし
JR桂川駅まで徒歩5分 本格的な3LDK物件です。やっぱり鉄筋コンクリートだね。
物件のこだわり/設備・条件
新築(非該当)
2階以上の物件(該当)
南向き(非該当)
駐車場あり(該当)
オートロック(該当)
エアコン(該当)
バス・トイレ別(該当)
追焚機能(非該当)
フローリング(該当)
ペット相談(非該当)
位置
角部屋入居条件
二人入居可キッチン/バス・トイレ
設備・サービス
オートロック、エアコン、CATV、BS対応、光ファイバー、公営水道、都市ガス、下水、フローリング、バルコニー、室内洗濯機置場、エレベーター、駐車場あり、駐輪場ありその他
住まい探し特典あり備考
本格的な3LDK物件です。JR桂川駅開業に伴い、ますます利便性もUP。その他コンビニ・大型スーパー等も徒歩圏内に揃ううれしい生活環境。やっぱり鉄筋コンクリートのマンションタイプに住みたい。そんなご家族へお届けします。今、HOTで注目の物件のひとつです。 京都の西の玄関口、JR桂川駅の賃貸のお問い合わせは京都ライフまで。 久... 物件情報はもちろん京都のエリア情報まで幅広く対応させていただきます!
物件周辺の生活情報
学校
- 久世西小学校(180m)
- 久世中学校(860m)
買い物
- コンビニ(160m)
- スーパー(340m)
- ドラッグストア(160m)
その他施設
- 総合病院(2,300m)
- 銀行(670m)
- 京都久世郵便局(690m)
交通
- JR東海道・山陽本線 桂川駅 徒歩5分
- 普通(停車)
- 新快速(通過)
- 快速(停車)
- 緩行電車(停車)
- 特別快速(通過)
- 区間快速(通過)
- 阪急京都本線 洛西口駅 徒歩13分
- 普通(停車)
- 準急(停車)
- 堺筋準急(停車)
- 通勤特急(通過)
- 特急(通過)
- 急行(通過)
- 準特急(通過)
※急行等の停車駅情報について
急行等の停車駅に関するデータは、随時更新をしておりますが、最新の内容であることを保証するものではありません。
最新かつ正確な情報につきましては、各鉄道会社のウェブサイトにてご確認ください
物件周辺の口コミ
- 京都府京都市南区久世上久世町に住む人の口コミ30代男性
イオンモールがあるので買い物には不自由しない。居酒屋などはないので深夜は静かでよい。
口コミを見る
この物件周辺に住む人の口コミ
口コミは、LIFULL HOME'Sが実際にこの物件の周辺に住む18歳~69歳の男女を対象に、WEBアンケート調査を実施しています。内容には回答者の主観的な表現が含まれる場合があるほか、事実と異なる場合もございます。ご了承ください。
- 京都府京都市南区久世上久世町に住む人の口コミ30代男性
- イオンモールがあるので買い物には不自由しない。居酒屋などはないので深夜は静かでよい。
- 京都府京都市南区久世上久世町に住む人の口コミ60代女性
- 引っ越して来た頃に比べたら、交通機関も便利になり、商業施設もできたかろ
- 京都府京都市南区久世上久世町に住む人の口コミ40代男性
- 買い物の利便性が良く、交通機関の利便性も悪くない。2駅で京都中心街まで出ることができる。
- 京都府京都市南区久世上久世町に住む人の口コミ40代女性
- 歩いて行ける範囲に、買い物するところや病院があるので生活しやすいです。駅も近いです。
- 京都府京都市南区久世上久世町に住む人の口コミ30代女性
- 公共交通機関が利用しやすいのと、仕事帰りに買い物ができる場所が近くにある。最近開発されている街なので、若いファミリー層が多く、落ち着いた環境だと思う。
- 京都府京都市南区久世上久世町に住む人の口コミ40代女性
- 交通も買い物も病院も近くにあるので、遠くへ行かなくても生活できることが満足です。歩いて行ける範囲にあるので、とても便利です。
- 京都府京都市南区久世上久世町に住む人の口コミ40代女性
- 人もそんなに多くなく、交通も不便なほどではなく、治安も悪くないから。
- 京都府京都市南区久世上久世町に住む人の口コミ30代女性
- 飲食店が周りに多く、外食は歩いて行ける。駅にも比較的近く、その駅に直通でイオンモールがあり、色々な物が買えるし、映画館もあるので、遠出せずともそこで全て済ませることが出来る。
- 京都府京都市南区久世上久世町に住む人の口コミ60代男性
- 交通の便、スーパーマーケットなどが近くにあるのはいいが、もう少し都会っぽい雰囲気が欲しい
- 京都府京都市南区久世上久世町に住む人の口コミ50代女性
- 今住んでいる南区桂川街道から向日市 長岡京市に行くバスがなく不便
物件概要
- 建物構造
- RC(鉄筋コンクリート)
- 駐車場
- 空有 13,200円(税込)
- 総戸数
- 32戸
- 契約形態
- -
- 契約期間
- 2年間
- 更新料
- 新賃料の1ヶ月分
- その他費用
- 室内清掃費用:44,000円、くらしーど24:16,500円
- 保証会社
加入要
保証会社:全保連
保証会社利用料:初回:月額賃料等の50%、更新時:1.3万円/1年(初回保証料 総賃料120% 更新保証料なしプランあり)
- 住宅保険
- 要
- 管理
- -
- LIFULL HOME'S
物件番号 - 0142941-0193463
- 自社管理番号
- 01061-501-27
- 取引態様
- 仲介
- 会社名
- 株式会社京都ライフ 二条駅前店
営業スタッフコメント

株式会社京都ライフ 二条駅前店
酒井栞
素晴らしいお部屋に出会えるまで全力でサポート致します!
業界経験2年
資格少額短期保険募集人
- 会社実績や特徴・サービス情報
- 京都市内部屋付け数3年連続1位。(株式会社全国賃貸住宅新聞調べ) 当店はJR山陰線、地下鉄東西線の二条駅から3分に立地し、通勤・通学のアクセスの良さ、近隣施設の充実から近年住みたい街と言われる二条駅すぐの所に店舗を構えております。 各エリア専門のスタッフが揃っておりますので、二条駅周辺だけでなく、京都市全域、向日市・長岡京市・宇治市など幅広くご紹介させて頂きます。 社会人のご単身・ファミリー様をはじめ、先端科学大学・同志社大学・立命館大学・京都大学など大学生のお部屋探しも全力でサポートさせて頂きます。 創業40年、地域密着に拘らせて頂いた京都最大級の物件情報をもとに、 誠心誠意、ご満足頂けるお部屋をご紹介させて頂きます。 お部屋を探しは京都ライフ 二条駅前店へ、お気軽にお立ち寄りください
京都市内部屋付け数3年連続1位。(株式会社全国賃貸住宅新聞調べ) 当店はJR山陰線、地下鉄東西線の二条駅から3分に立地し、通勤・通学のアクセスの良さ、近隣施設の充実から近年住みたい街と言われる二条駅すぐの所に店舗を構えております。 各エリア専門のスタッフが揃っておりますので、二条駅周辺だけでなく、京都市全域、向日市・長岡京市・宇治市など幅広くご紹介させて頂きます。 社会人のご単身・ファミリー様をはじめ、先端科学大学・同志社大学・立命館大学・京都大学など大学生のお部屋探しも全力でサポートさせて頂きます。 創業40年、地域密着に拘らせて頂いた京都最大級の物件情報をもとに、 誠心誠意、ご満足頂けるお部屋をご紹介させて頂きます。 お部屋を探しは京都ライフ 二条駅前店へ、お気軽にお立ち寄りください
- 電話でお問合せ(通話無料)
お問合せ先 :株式会社京都ライフ 二条駅前店
不動産会社情報
株式会社京都ライフ 二条駅前店
京都府京都市中京区西ノ京職司町72 ウエストフィールド1階
京都地下鉄東西線 二条駅 徒歩3分
- 営業時間
- 09:30~19:00
- 定休日
- 年中無休(盆正月を除く)
JR、地下鉄とアクセスの良さで人気の二条エリアはもちろん、京都中心地エリア、大宮エリア、西院エリア、円町エリア、北野白梅町エリアなど幅広いエリアでのお部屋探しをサポートいたします。
- 店舗の特徴
- 賃貸管理業務
- 24時間管理物件取扱い
- リフォーム対応
- 引越し業者紹介可
- バリアフリー
- 系列店舗での対応可
- 保証人不要な物件あり
- 法人契約取扱い
- 駅から歩いて3分以内
電話でお問合せお客様の電話番号は不動産会社には通知されません
- 不動産会社に
つながります
お客様の電話番号は不動産会社に通知されません
- ※光IP電話、及びIP電話からはご利用になれません
- ※お電話によるお問合せは、店舗営業時間内にお願いします。つながらない場合は、お問合せフォームよりお問合せください
- ※不動産会社がお電話に出られなかった場合、お問合せいただいた後に不動産会社より折り返しのお電話がある場合がございます(お客様が非通知設定した場合は対象外です)
- ※株式会社LIFULLは電話会社が提供するサービスを介してお客様の発信者番号を受領後、折り返し専用の電話番号を発番してお問合せの不動産会社に通知します(お客様の発信者番号がお問合せの不動産会社に通知されることはございません)
- ※携帯電話からお問合せいただいた方に対し、株式会社LIFULLは電話会社が提供するメッセ―ジサービスを介してお客様の発信者番号を受領後、ショートメッセージ(SMS)またはLINE通知メッセージによるお問合せ内容に関する通知をお届けする場合があります
- ※お客様が通話中に不動産会社にお伝えになったお客様の個人情報及び、電話会社が発番する折り返し専用の電話番号は、お問合せ先不動産会社が資料送付・電子メール送信・電話連絡などの目的で保管する可能性があります。お問合せ先不動産会社が保管する個人情報の取扱いについては、各不動産会社に直接お問合せください
- ※株式会社LIFULLでは本サービスを円滑に運用するために、お客様の発信者番号をサービスご利用の控えとして一定期間保管いたします
- ※上記および株式会社LIFULLの個人情報の取扱い方針に同意のうえ、お電話ください
【LIFULL HOME'S物件番号】0142941-0193463【自社管理番号】01061-501-27
初期費用・月額費用をあわせて確認!この物件に住んだときの費用めやす
めやすを見るこの物件に住んだときの費用めやす
- 初期費用
- 月額費用
- 追加費用※ご確認ください
追加で費用が
かかる場合があります
必ずご確認ください
初期費用めやす約0円
追加で費用がかかります(※)敷金
0
- 礼金
150,000
賃料+共益費・管理費の1ヶ月分として換算
賃料の1ヶ月分+税として換算。不動産会社によって金額が異なるため正確な金額は不動産会社にお問合せください
※追加費用もチェック!
これらの項目以外にも費用がかかる場合があります。正確な金額は不動産会社にお問合せください。
- 初期費用
- 鍵交換費:不動産会社に要確認
- 室内清掃費:44,000円
- 火災保険費:不動産会社に要確認
- 月額費用
- 駐車場費:13,200円(税込)※契約任意
- その他
- くらしーど24:16500円
- 保証会社
- 初回:月額賃料等の50%、更新時:1.3万円/1年(初回保証料 総賃料120% 更新保証料なしプランあり)
不動産会社より
JR桂川駅まで徒歩5分 本格的な3LDK物件です。やっぱり鉄筋コンクリートだね。
本格的な3LDK物件です。JR桂川駅開業に伴い、ますます利便性もUP。その他コンビニ・大型スーパー等も徒歩圏内に揃ううれしい生活環境。やっぱり鉄筋コンクリートのマンションタイプに住みたい。そんなご家族へお届けします。今、HOTで注目の物件のひとつです。 京都の西の玄関口、JR桂川駅の賃貸のお問い合わせは京都ライフまで。 久... 物件情報はもちろん京都のエリア情報まで幅広く対応させていただきます!
- 保存する
- 共有する
- ※各種情報と現状に差異がある場合は、現状優先となります
- ※不動産会社が入力した情報を基に物件の位置を表示しています。詳しくは不動産会社までお問合せください
- ※不動産会社の方からの上記電話番号によるお問合せはお断りしております。こちら不動産会社詳細からお問合せください
- ※LIFULL HOME'Sは物件鮮度No.1を目指していきます。閲覧中の物件が「成約済である」「実際の物件情報と異なる点がある」などの場合、「掲載110番」からお問合せください
- ※QRコードは株式会社デンソーウェーブの登録商標です
この物件を取扱う他の会社
LIFULL HOME'Sでは、主要項目が同一の物件をまとめて表示しています。所在地や営業時間、掲載画像等から不動産会社を選んでお問合せください。
株式会社エリッツ 長岡天神店
京都府長岡京市開田3丁目1−22
阪急京都本線 長岡天神駅 徒歩1分
- 営業時間
- 10:00~19:00
- 定休日
- 水曜日(祝日を除く)お部屋探しのお問合せは無休です
LIFULL HOME'S 地図・周辺情報
買い物
- セブンイレブン 京都上久世店
- ダイソーダイエー桂南店
- ドラッグユタカ久世店
- セブンイレブン 京都牛ケ瀬店
- ダイエー 桂南店
グルメ
- じゅうじゅうカルビ 桂南店
- 松のや桂川店
- 焼肉きんぐ京都桂店
- 揚げ天まるイオンモール京都桂川店
- 銀だこ イオンモール京都桂川店
育児・教育
- 詩音つばさ保育園
- 京都市立久世西小学校
- 京都市立久世中学校
- くぜにしこども園
- 京都市立大藪小学校
医療
- 公益社団法人京都保健会吉祥院病院
- 医療法人真生会向日回生病院
- 医療法人財団医道会十条武田リハビリテーション病院
- 医療法人清仁会シミズ病院
- 三菱京都病院
公共施設・郵便局
- 京都久世郵便局
- 京都市久世ふれあいセンター図書館
- 向日市役所
- 京都下津林郵便局
- 京都市吉祥院図書館
公園
- 牛ケ瀬公園
- 車塚緑地
- 東向公園
- 京都市洛西竹林公園
- 塔ノ森公園
利用可能な駅
- 徒歩10分以内
JR東海道・山陽本線
- 桂川駅徒歩5分
- すべての駅
阪急京都本線
- 洛西口駅徒歩13分
- 東向日駅徒歩30分
- 桂駅徒歩34分
- 西向日駅4km
JR東海道・山陽本線
- 向日町駅徒歩21分
- 西大路駅3.2km
- 周辺情報は2023年07月21日時点のものになります。
- 周辺情報は、参考情報としてのみご利用ください(周辺情報は、株式会社LIFULLが地図情報の提供事業者から提供を受けた情報とLIFULL HOME'Sの物件情報に基づき、独自の方法で抽出し提供しているものです。周辺情報は、移転や閉鎖等により情報が最新ではない、または正しくない場合がありますが、地図情報の提供事業者から提供された情報をそのまま周辺情報として表示しているため、正確かつ最新の情報へ修正することができないことがあります。)
- 周辺情報は、株式会社LIFULLが掲載するものであり、不動産物件情報を掲載している不動産会社が掲載するものではありません
- 交通情報の一部については、株式会社LIFULLが掲載するものであり、不動産物件情報を掲載している不動産会社が掲載するものではない場合があります。交通情報に関する質問などは株式会社LIFULLにお問合せください


















