LIFULL HOME'Sは物件鮮度No.1!※評価について
京都市営烏丸線 北大路駅 バス10分 常徳寺前下車 徒歩4分
4.5万円/管理費等4,500円
2時間前 更新
画像一覧
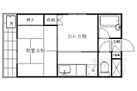
1/30間取り
2/30外観
3/30外観
4/30リビング/ダイニング
リビング
5/30リビング/ダイニング
リビング
6/30リビング/ダイニング
リビング
7/30室内
和室
8/30寝室
和室
9/30寝室
和室
10/30子供部屋
和室
11/30キッチン
キッチン
12/30キッチン
キッチン
13/30キッチン
キッチン
14/30浴室
風呂
15/30トイレ
トイレ
16/30収納
収納
17/30設備
下駄箱
18/30設備
冷蔵庫置場
19/30設備
洗濯機置場
20/30玄関
玄関
21/30玄関
玄関
22/30バルコニー
ベランダ
23/30エントランス
エントランス
24/30駐車場
駐車場
25/30その他
廊下
26/30その他
眺望
27/30その他
給湯器リモコン
28/30周辺
生鮮館 北山店まで230メートル
29/30周辺
ローソンストア100 紫野泉堂店まで450メートル
30/30周辺
ダックス 北山店まで60メートル
間取り
外観
外観
リビング/ダイニング
リビング/ダイニング
リビング/ダイニング
室内
寝室
寝室
子供部屋
キッチン
キッチン
キッチン
浴室
トイレ
収納
設備
設備
設備
玄関
玄関
バルコニー
エントランス
駐車場
その他
その他
その他
周辺
周辺
周辺
お問合せ先 :株式会社エリッツ 北山店
住まい探し特典内容
電気・ガス・インターネットの手続き代行のご案内します。
- 利用条件
- 株式会社エリッツ 北山店で利用可
- 他特典との併用可
利用方法
来店時に本特典の画面をスマートフォンやタブレットでスタッフに提示、または画面印刷した用紙を提示ください。
有効期限 なし
2人入居相談可の家賃抑え目の1DK賃貸。--パノラマ掲載--
基本情報
不動産用語- 賃料
- 4.5万円
- 管理費等
- 4,500円
初期費用などお気軽にお問合せください
- 敷金/礼金
- 無/無
- 保証金/敷引・償却金
- -/-
- 交通
京都市営烏丸線 鞍馬口駅 徒歩34分
京都市営烏丸線 松ヶ崎駅 3.1km
京福電気鉄道北野線 北野白梅町駅 3.3km
京阪本線 出町柳駅 バス28分 紫野泉堂町下車 徒歩6分
他3駅が利用可能(地図で調べる)- 所在地
京都府京都市北区紫竹栗栖町
地図を見る- 築年月
- 1988年3月(築38年)
- 主要採光面
- 南
- 専有面積
- 28.35㎡
- バルコニー面積
- -
- 所在階/階数
- 2階/3階建
入居可能日などお気軽にお問合せください
- 現況
- 居住中
- 入居可能時期
- 2025年11月 下旬

人気物件はすぐに埋まってしまいます。
気になったらお早めにお問合せください。
- 情報公開日
2025/11/07
21日前 公開
- 情報更新日
2025/11/28
2時間前 更新
- 次回更新
予定日 - 2025/12/05
物件のこだわり/設備・条件
新築(非該当)
2階以上の物件(該当)
南向き(該当)
駐車場(非該当)
オートロック(非該当)
エアコン(該当)
バス・トイレ別(該当)
追焚機能(非該当)
フローリング(該当)
ペット相談(非該当)
位置
角部屋入居条件
二人入居可キッチン/バス・トイレ
設備・サービス
エアコン、シューズボックス、CATV、BS対応、光ファイバー、公営水道、都市ガス、下水、フローリング、バルコニー、洗濯機置場あり、南面バルコニー、駐輪場ありその他
住まい探し特典あり備考
待鳳小学校、旭丘中学校区です。佛教大学まで徒歩11分、自転車6分、環境も良く、暮しやすい静かな住宅地に初期費用も抑え目です。スーパーまで徒歩4分、コンビニまで徒歩2分と買い物も便利。・光ファイバーインターネット接続可 ハウスクリーニング22000円(退去時)
物件周辺の生活情報
学校
- 待鳳小学校(280m)
- 旭丘中学校(550m)
買い物
- コンビニ(450m)
- スーパー(230m)
- ドラッグストア(60m)
交通
- 京都市営烏丸線 北大路駅 バス10分 常徳寺前下車 徒歩4分
- 普通(停車)
- 急行(停車)
- 京都市営烏丸線 北山駅 バス7分 常徳寺前下車 徒歩7分
- 普通(停車)
- 急行(停車)
※急行等の停車駅情報について
急行等の停車駅に関するデータは、随時更新をしておりますが、最新の内容であることを保証するものではありません。
最新かつ正確な情報につきましては、各鉄道会社のウェブサイトにてご確認ください
物件周辺の口コミ
- 京都府京都市北区紫竹栗栖町に住む人の口コミ30代女性
毎日の生活に必要なスーパーも充実しているし、公園も多く子供が外で遊べる環境もあるし生活がしやすい環境だから
口コミを見る
この物件周辺に住む人の口コミ
口コミは、LIFULL HOME'Sが実際にこの物件の周辺に住む18歳~69歳の男女を対象に、WEBアンケート調査を実施しています。内容には回答者の主観的な表現が含まれる場合があるほか、事実と異なる場合もございます。ご了承ください。
- 京都府京都市北区紫竹栗栖町に住む人の口コミ30代女性
- 毎日の生活に必要なスーパーも充実しているし、公園も多く子供が外で遊べる環境もあるし生活がしやすい環境だから
- 京都府京都市北区紫竹栗栖町に住む人の口コミ30代女性
- 静かで生活しやすいし、公園も所々にあり、子供の遊ぶ場所もあるので
- 京都府京都市北区大宮釈迦谷に住む人の口コミ30代女性
- 都会に住みたい人には向かないが、静かで落ち着いていて、車さえあれば何不自由ない暮らしができる。ザワザワした人達もおらず、ゆっくり子育てしたい人や、田舎は嫌だけれどのんびり暮らしたい人にはちょうど良い。
- 京都府京都市北区大宮西小野堀町に住む人の口コミ20代男性
- 近くにスーパーやコンビニがあり、交通も市バスが近くを通ってるなど利便性があるが衛生面は少々悪いか。ゴミ出しの回収が比較的遅く、ゴミを回収する間にカラスにゴミをついばまれゴミが散乱する場所も見受けられる
- 京都府京都市北区小山下総町に住む人の口コミ30代女性
- 歴史を身近に感じられる。都市部の割に自然が多くて身近。ごはんが美味しい。和菓子屋さんが多くて和カフェも充実。カフェも充実。
- 京都府京都市北区紫竹上ノ岸町に住む人の口コミ20代女性
- 駅が近いわけではないが、主要な場所までバス1本で行ける点。スーパー24時間開いている点。
- 京都府京都市北区上賀茂荒草町に住む人の口コミ20代女性
- 下宿生なので学校に近いことが私にとって今住んでいる街の最大のメリットです。
- 京都府京都市上京区寺之内通大宮東入に住む人の口コミ20代女性
- スーパーが2店舗、コンビニも2店舗、薬局も2店舗近くにあり、食材や日用品の調達で困ることが無い。区役所や郵便局も近くにある。交通機関はバスが徒歩圏内にあり、少し離れているがJRや地下鉄もある。
- 京都府京都市上京区堀川通寺之内上るに住む人の口コミ20代女性
- 買い物がしやすい。スーパーが夜中空いてるのは嬉しい。ただ若干敷居の高い店がある。
- 京都府京都市北区上賀茂菖蒲園町に住む人の口コミ20代女性
- 治安の良さや歴史ある町並み、落ち着いた雰囲気で子供を安心して育てられる環境にあると思う一方、子育て支援という点では教育費などの負担が大きかったりと不満があるので
物件概要
- 建物構造
- RC(鉄筋コンクリート)
- 駐車場
- 近隣 9,900円(税込) 物件からの距離361m
- 総戸数
- 21戸
- 契約形態
- -
- 契約期間
- 2年間
- 更新料
- 新賃料の1ヶ月分
- その他費用
- 管理会社書類代(初回):11,000円、駐輪代(原付(月額):1,100円
- 保証会社
加入要
保証会社利用料:25、300円
- 住宅保険
- 要
- 管理
- -
- LIFULL HOME'S
物件番号 - 0132666-0159822
- 自社管理番号
- 3561-203
- 取引態様
- 仲介
- 会社名
- 株式会社エリッツ 北山店
営業スタッフコメント

株式会社エリッツ 北山店店長
橋本
親切丁寧にご対応いたします
業界経験17年
資格宅地建物取引士、少額短期保険募集人、損害保険募集人
- スタッフ情報
- 京都市北部でお部屋をお探しの方は是非エリッツ北山店にお越しください。 学生様も社会人様ももちろんファミリー様向けの物件まで幅広く取り扱っております。 北山・松ケ崎・国際会館周辺でお探しの方は是非。
京都市北部でお部屋をお探しの方は是非エリッツ北山店にお越しください。 学生様も社会人様ももちろんファミリー様向けの物件まで幅広く取り扱っております。 北山・松ケ崎・国際会館周辺でお探しの方は是非。
- 電話でお問合せ(通話無料)
お問合せ先 :株式会社エリッツ 北山店
不動産会社情報
株式会社エリッツ 北山店

京都府京都市北区上賀茂岩ケ垣内町95 スギサキビル1階
京都市営烏丸線 北山駅 徒歩1分
- 営業時間
- 10:00~19:00
- 定休日
- 水曜日(祝日を除く)、年末年始 ※部屋探しのお問い合わせは無休
優良店認定
エリッツ北山店は地下鉄北山駅、2番出口より徒歩1分、北山通り沿いにあります。スタッフ一同、お客様のご来店・お問い合わせをお待ちしております。お車でのご来店は最寄りパーキングをご利用下さい(清算有)
- 店舗の特徴
- 24時間管理物件取扱い
- リフォーム対応
- 引越し業者紹介可
- バリアフリー
- 社宅・寮物件取扱い
- オンライン相談可
- 保証人不要な物件あり
- 法人契約取扱い
- 駅から歩いて3分以内
電話でお問合せお客様の電話番号は不動産会社には通知されません
- 不動産会社に
つながります
お客様の電話番号は不動産会社に通知されません
- ※光IP電話、及びIP電話からはご利用になれません
- ※お電話によるお問合せは、店舗営業時間内にお願いします。つながらない場合は、お問合せフォームよりお問合せください
- ※不動産会社がお電話に出られなかった場合、お問合せいただいた後に不動産会社より折り返しのお電話がある場合がございます(お客様が非通知設定した場合は対象外です)
- ※株式会社LIFULLは電話会社が提供するサービスを介してお客様の発信者番号を受領後、折り返し専用の電話番号を発番してお問合せの不動産会社に通知します(お客様の発信者番号がお問合せの不動産会社に通知されることはございません)
- ※携帯電話からお問合せいただいた方に対し、株式会社LIFULLは電話会社が提供するメッセ―ジサービスを介してお客様の発信者番号を受領後、ショートメッセージ(SMS)またはLINE通知メッセージによるお問合せ内容に関する通知をお届けする場合があります
- ※お客様が通話中に不動産会社にお伝えになったお客様の個人情報及び、電話会社が発番する折り返し専用の電話番号は、お問合せ先不動産会社が資料送付・電子メール送信・電話連絡などの目的で保管する可能性があります。お問合せ先不動産会社が保管する個人情報の取扱いについては、各不動産会社に直接お問合せください
- ※株式会社LIFULLでは本サービスを円滑に運用するために、お客様の発信者番号をサービスご利用の控えとして一定期間保管いたします
- ※上記および株式会社LIFULLの個人情報の取扱い方針に同意のうえ、お電話ください
【LIFULL HOME'S物件番号】0132666-0159822【自社管理番号】3561-203
オンライン対応
オンライン相談・IT重説に対応している物件です

「オンライン内見」「オンライン相談」「IT重説」とは?
物件の内見や不動産会社スタッフとの相談、契約前の重要事項説明をオンライン(ビデオ通話)で行うことができるサービスです。
オンライン内見
ビデオ通話で現地(物件)にいる不動産会社スタッフと映像・音声を使ってリアルタイムで会話しながら内見ができます。
オンライン相談
「物件について聞きたいことがある」など不動産会社スタッフへの相談もビデオ通話で行うことができます。
IT重説
契約前の重要事項説明(重説)をビデオ通話で行うことができます。
利用時の注意事項
- ビデオ通話については各不動産会社指定のものとなります。
- ビデオ通話利用時には通信が発生します。従量課金制通信サービスや通信量に上限があるネット回線・プランを利用する場合は、通信量にご注意ください。
- 通信速度やアプリの設定によってはビデオ通話の画質が低下することがあります。安定した画質で利用するためにも、Wi-Fi環境下での利用を推奨します。
- ご利用のビデオ通話アプリによっては、対象のOSやブラウザに制限がある場合があります。詳しくはお問合せ先不動産会社にご確認ください。
初期費用・月額費用をあわせて確認!この物件に住んだときの費用めやす
めやすを見るこの物件に住んだときの費用めやす
- 初期費用
- 月額費用
- 追加費用※ご確認ください
追加で費用が
かかる場合があります
必ずご確認ください
初期費用めやす約0円
追加で費用がかかります(※)敷金
0
- 礼金
0
賃料+共益費・管理費の1ヶ月分として換算
賃料の1ヶ月分+税として換算。不動産会社によって金額が異なるため正確な金額は不動産会社にお問合せください
※追加費用もチェック!
これらの項目以外にも費用がかかる場合があります。正確な金額は不動産会社にお問合せください。
- 初期費用
- 鍵交換費:不動産会社に要確認
- 室内清掃費:不動産会社に要確認
- 火災保険費:不動産会社に要確認
- 月額費用
- 駐車場費:9,900円(税込)※近隣
- その他
- 管理会社書類代(初回):11000円
- 駐輪代(原付(月額):1100円
- 保証会社
- 25、300円
不動産会社より
2人入居相談可の家賃抑え目の1DK賃貸。--パノラマ掲載--
待鳳小学校、旭丘中学校区です。佛教大学まで徒歩11分、自転車6分、環境も良く、暮しやすい静かな住宅地に初期費用も抑え目です。スーパーまで徒歩4分、コンビニまで徒歩2分と買い物も便利。・光ファイバーインターネット接続可 ハウスクリーニング22000円(退去時)
- 保存する
- 共有する
- ※各種情報と現状に差異がある場合は、現状優先となります
- ※不動産会社が入力した情報を基に物件の位置を表示しています。詳しくは不動産会社までお問合せください
- ※不動産会社の方からの上記電話番号によるお問合せはお断りしております。こちら不動産会社詳細からお問合せください
- ※LIFULL HOME'Sは物件鮮度No.1を目指していきます。閲覧中の物件が「成約済である」「実際の物件情報と異なる点がある」などの場合、「掲載110番」からお問合せください
- ※QRコードは株式会社デンソーウェーブの登録商標です
したい暮らしのタグから探す
この物件を取扱う他の会社
LIFULL HOME'Sでは、主要項目が同一の物件をまとめて表示しています。所在地や営業時間、掲載画像等から不動産会社を選んでお問合せください。
株式会社エリッツ 立命館大学前店
優良店認定
京都府京都市北区小松原北町19−27 シャルム小松原1F
京福電気鉄道北野線 北野白梅町駅 徒歩12分
- 営業時間
- 10:00~19:00
- 定休日
- 火曜日(祝日を除く)、年末年始 ※部屋探しの問い合わせは無休
LIFULL HOME'S 地図・周辺情報
買い物
- ファミリーマート 北山栗栖町店
- 生鮮館なかむら 北山店
- ダックス京都北山店
- ファミリーマート 大宮交通公園前店
- ワッツ北山グルメシティ店
グルメ
- にぎり長次郎 北山紫竹店
- すき家 堀川通今宮店
- 天下一品佛大前店
- 餃子の王将 御薗橋店
- なか卯 上賀茂店
育児・教育
- 紫野保育園
- 京都市立待鳳小学校
- 京都市立旭丘中学校
- 待鳳保育園
- 京都市立紫竹小学校
医療
- 医療法人明生会賀茂病院
- 医療法人葵会介護医療院おおみや葵の郷
- (財)薬師山病院
- 社会福祉法人京都社会事業財団京都からすま病院
- 京都博愛会冨田病院
公共施設・郵便局
- 京都紫竹郵便局
- 京都市北図書館
- 京都府北警察署
- 京都大宮小野堀郵便局
- 京都市北区役所
公園
- 大宮交通公園
- 船岡山公園
- 上庄田第二公園
利用可能な駅
- 徒歩10分以内
京都市営烏丸線
- 北大路駅 バス10分 常徳寺前下車徒歩4分
- 北山駅 バス7分 常徳寺前下車徒歩7分
- すべての駅
京都市営烏丸線
- 鞍馬口駅徒歩34分
- 松ヶ崎駅3.1km
- 今出川駅3.5km
京福電気鉄道北野線
- 北野白梅町駅3.3km
- その他交通
- 京阪本線 出町柳駅 バス28分 紫野泉堂町下車 徒歩6分
- 周辺情報は2023年07月21日時点のものになります。
- 周辺情報は、参考情報としてのみご利用ください(周辺情報は、株式会社LIFULLが地図情報の提供事業者から提供を受けた情報とLIFULL HOME'Sの物件情報に基づき、独自の方法で抽出し提供しているものです。周辺情報は、移転や閉鎖等により情報が最新ではない、または正しくない場合がありますが、地図情報の提供事業者から提供された情報をそのまま周辺情報として表示しているため、正確かつ最新の情報へ修正することができないことがあります。)
- 周辺情報は、株式会社LIFULLが掲載するものであり、不動産物件情報を掲載している不動産会社が掲載するものではありません
- 交通情報の一部については、株式会社LIFULLが掲載するものであり、不動産物件情報を掲載している不動産会社が掲載するものではない場合があります。交通情報に関する質問などは株式会社LIFULLにお問合せください








